Jan Steenstraat 87 B
€ 285.000 k.k.
Schiedam
Bovenwoning
69 m²
2 slaapkamers
In overleg
In een gezellige en levendige wijk in Schiedam ligt deze charmante dubbele bovenwoning uit 1938, een fijne plek voor wie centraal en toch rustig wil wonen. Hier woon je op korte afstand van winkels, supermarkten, het openbaar vervoer en de uitvalswegen, terwijl ook het historische centrum met zijn grachten, horeca en terrassen binnen handbereik is. Alles wat je dagelijks nodig hebt, ligt letterlijk om de hoek. Via de open trapopgang bereik je de woning op de eerste verdieping. Binnen valt direct de lichte afwerking op. Gesausde wanden, een laminaatvloer en karaktervolle paneeldeuren geven het geheel een prettige sfeer. De woonkamer aan de voorzijde staat via een toog in open verbinding met de keuken aan de achterzijde, wat zorgt voor een speelse en open indeling. Het plafond is afgewerkt met sierlijsten en ornamenten, wat een knipoog geeft naar de bouwperiode. De keuken is praktisch ingericht met een recht keukenblok, bovenkasten, diverse apparatuur en een extra werkblad aan de overzijde. Vanuit de badkamer, die is voorzien van een ligbad met douche, wastafelmeubel en handdoeken radiator, stap je zo het knusse balkon aan de achterzijde op. Op de derde verdieping bevindt zich de slaapkamer met vaste kast en een dakkapel, die gedeeld is met de berging, voor extra ruimte en licht zorgt. De overloop geeft daarnaast toegang tot een aparte wasruimte met wasmachineaansluiting en een praktische berging met opstelling van de cv-ketel. Dankzij de vele opbergmogelijkheden is er verrassend veel ruimte aanwezig. De woning is volledig voorzien van kunststof kozijnen met dubbel glas en heeft energielabel D. Doordat de woning leeg staat, is een snelle oplevering mogelijk, waardoor je hier op korte termijn jouw eigen plek van kunt maken.
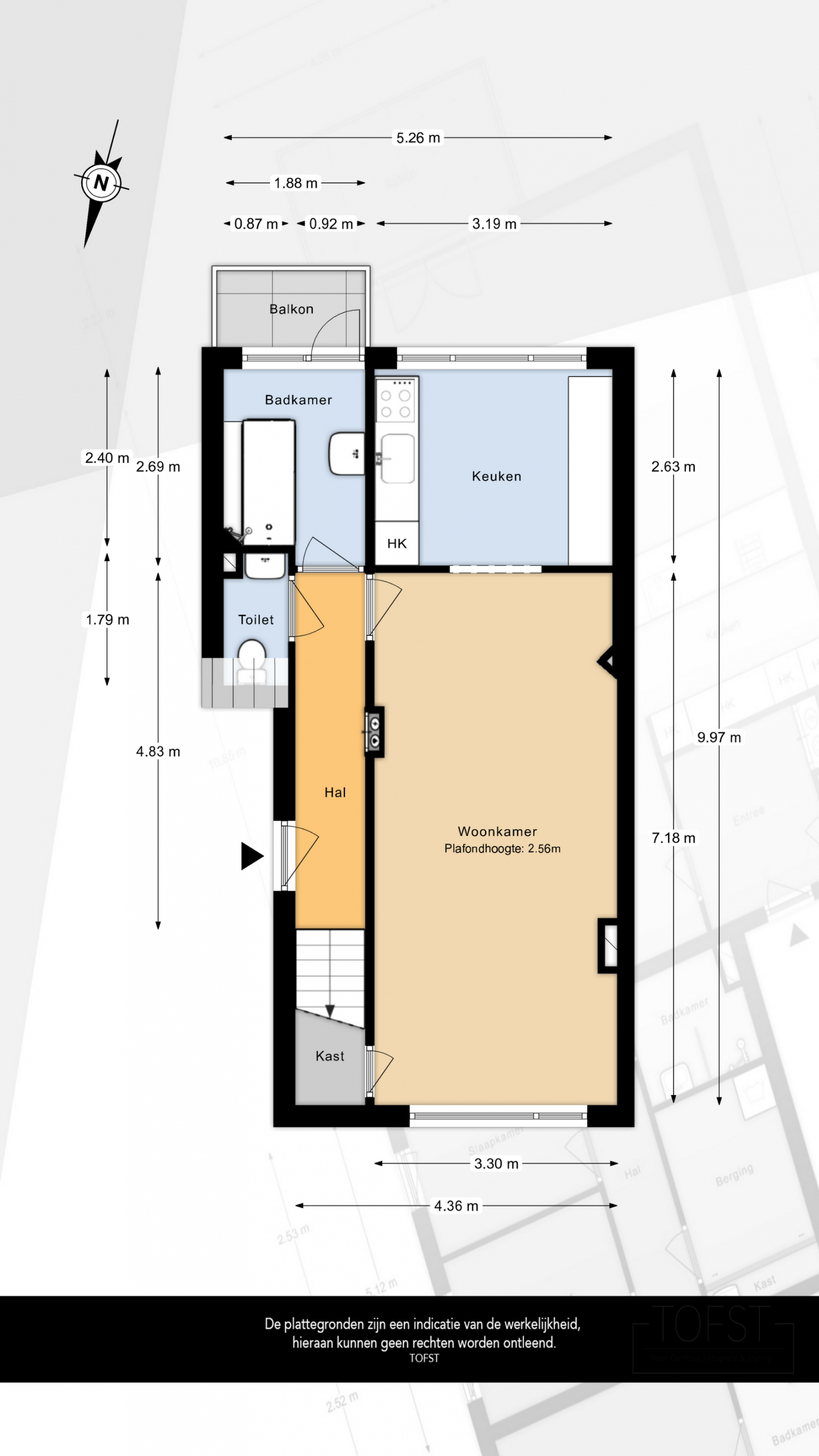
INDELING
Via de open trapopgang is de voordeur bereikbaar.
1E VERDIEPING
Na de voordeur is er een binnenkomst in de entreehal. Deze is voorzien van de meterkast en geeft toegang tot de trap naar de 3e verdieping, de woonkamer, de badkamer en het gedeeltelijk betegelde toilet. Alle wanden zijn gesausd en er ligt een laminaatvloer.
De woonkamer is gesitueerd aan de voorzijde en heeft, via een toog, een open verbinding met de keuken aan de achterzijde. Er is een vaste kast aanwezig en het plafond is afgewerkt met een sierlijst en ornamenten. De keuken beschikt over een recht keukenblok dat is voorzien van bovenkasten en diverse apparatuur, met tegenover het keukenblok nog een extra werkblad.
Het is mogelijk een slaapkamer extra te maken.
De grotendeels betegelde badkamer is uitgerust met een ligbad met een douche en een wastafelmeubel. Daarnaast hangt er ook een handdoeken radiator en is er een deur naar het balkon.
3E VERDIEPING
Na de trapopgang is er een bovenkomst op de overloop, die toegang geeft tot de slaapkamer, de berging en de gedeeltelijk betegelde wasruimte, met daarin de wasmachineaansluiting. Alle wanden zijn gesausd en de vloer is voorzien van laminaat.
De berging is een fijne extra ruimte die is voorzien van een dakkapel. In deze ruimte bevindt zich de opstelling van de Cv-ketel, de wanden zijn deels betegeld en de vloer is voorzien van laminaat.
De slaapkamer beschikt over een vaste kast en deelt de dakkapel met de berging. Alle wanden zijn gesausd en op de vloer ligt laminaat.
BIJZONDERHEDEN
- Geheel voorzien van kunststof kozijnen met dubbel glas
- Voorzien van paneeldeuren
- Veel opbergmogelijkheden
- Balkon aan de achterzijde
- Actieve VvE
- Gelegen op eigen grond
- Bouwjaar 1938
- Energielabel D
- Oplevering in overleg, kan snel
Woonoppervlakte
De Meetinstructie is gebaseerd op de NEN2580. De Meetinstructie is bedoeld om een meer eenduidige manier van meten toe te passen voor het geven van een indicatie van de gebruiksoppervlakte. De Meetinstructie sluit verschillen in meetuitkomsten niet volledig uit, door bijvoorbeeld interpretatieverschillen, afrondingen of beperkingen bij het uitvoeren van de meting. Indien de exacte maten voor een koper van cruciaal belang zijn, adviseren wij deze zelf na te meten. De (kandidaat)koper(s) zullen, indien gewenst, daartoe in de gelegenheid gesteld worden op een passend moment teneinde teleurstellingen en schade te voorkomen.
Ouderdomsclausule
Bij woningen ouder dan 30 jaar zal er standaard in de koopakte een ouderdomsclausule worden opgenomen.
Notariskeuze en kosten
In principe ligt de notariskeuze bij de koper. Het doorhalen van de hypothecaire inschrijving in het kadaster moet door de verkoper betaald worden. Zijn de kosten voor deze doorhaling hoger dan € 400,- inclusief BTW dan wordt het meerdere bij de koper in rekening gebracht. Indien de koper een notaris kiest buiten een straal van 20 kilometer van de verkochte onroerende zaak dan zijn de eventuele kosten die de notaris berekent voor een eventuele verkoopvolmacht en legalisatie hiervan ten behoeve van de verkoper voor rekening van de koper.
Zelfbewoningsplicht
Koper is bekend met de zelfbewoningsplicht welke vanaf 01-01-2023 binnen de gemeente Schiedam van kracht is. De verkopend makelaar heeft koper doorverwezen naar de gemeente Vlaardingen omtrent de desbetreffende regelgeving. Verkoper noch verkopend makelaar aanvaarden geen enkele aansprakelijkheid voor geleden schade wegens het niet juist naleven van deze zelfbewoningsplicht.
Gunning
Verkoper behoudt zich uitdrukkelijk het recht voor het object te gunnen aan de gegadigde van zijn keuze.
Nadrukkelijk zij vermeld dat alle informatie in deze brochure moet beschouwd worden als een uitnodiging tot het doen van een bod of om in onderhandeling te treden. Er kunnen geen rechten worden ontleend aan deze informatie.
Vlietlanden NVM Makelaars streeft ernaar de informatie op haar website / brochures en andere uitingen zo actueel en nauwkeurig mogelijk weer te geven. Hoewel de informatie met de grootst mogelijke zorgvuldigheid is samengesteld aanvaarden wij geen enkele aansprakelijkheid ten aanzien van de juistheid van de vermelde gegevens.
INDELING
Via de open trapopgang is de voordeur bereikbaar.
1E VERDIEPING
Na de voordeur is er een binnenkomst in de entreehal. Deze is voorzien van de meterkast en geeft toegang tot de trap naar de 3e verdieping, de woonkamer, de badkamer en het gedeeltelijk betegelde toilet. Alle wanden zijn gesausd en er ligt een laminaatvloer.
De woonkamer is gesitueerd aan de voorzijde en heeft, via een toog, een open verbinding met de keuken aan de achterzijde. Er is een vaste kast aanwezig en het plafond is afgewerkt met een sierlijst en ornamenten. De keuken beschikt over een recht keukenblok dat is voorzien van bovenkasten en diverse apparatuur, met tegenover het keukenblok nog een extra werkblad.
Het is mogelijk een slaapkamer extra te maken.
De grotendeels betegelde badkamer is uitgerust met een ligbad met een douche en een wastafelmeubel. Daarnaast hangt er ook een handdoeken radiator en is er een deur naar het balkon.
3E VERDIEPING
Na de trapopgang is er een bovenkomst op de overloop, die toegang geeft tot de slaapkamer, de berging en de gedeeltelijk betegelde wasruimte, met daarin de wasmachineaansluiting. Alle wanden zijn gesausd en de vloer is voorzien van laminaat.
De berging is een fijne extra ruimte die is voorzien van een dakkapel. In deze ruimte bevindt zich de opstelling van de Cv-ketel, de wanden zijn deels betegeld en de vloer is voorzien van laminaat.
De slaapkamer beschikt over een vaste kast en deelt de dakkapel met de berging. Alle wanden zijn gesausd en op de vloer ligt laminaat.
BIJZONDERHEDEN
- Geheel voorzien van kunststof kozijnen met dubbel glas
- Voorzien van paneeldeuren
- Veel opbergmogelijkheden
- Balkon aan de achterzijde
- Actieve VvE
- Gelegen op eigen grond
- Bouwjaar 1938
- Energielabel D
- Oplevering in overleg, kan snel
Woonoppervlakte
De Meetinstructie is gebaseerd op de NEN2580. De Meetinstructie is bedoeld om een meer eenduidige manier van meten toe te passen voor het geven van een indicatie van de gebruiksoppervlakte. De Meetinstructie sluit verschillen in meetuitkomsten niet volledig uit, door bijvoorbeeld interpretatieverschillen, afrondingen of beperkingen bij het uitvoeren van de meting. Indien de exacte maten voor een koper van cruciaal belang zijn, adviseren wij deze zelf na te meten. De (kandidaat)koper(s) zullen, indien gewenst, daartoe in de gelegenheid gesteld worden op een passend moment teneinde teleurstellingen en schade te voorkomen.
Ouderdomsclausule
Bij woningen ouder dan 30 jaar zal er standaard in de koopakte een ouderdomsclausule worden opgenomen.
Notariskeuze en kosten
In principe ligt de notariskeuze bij de koper. Het doorhalen van de hypothecaire inschrijving in het kadaster moet door de verkoper betaald worden. Zijn de kosten voor deze doorhaling hoger dan € 400,- inclusief BTW dan wordt het meerdere bij de koper in rekening gebracht. Indien de koper een notaris kiest buiten een straal van 20 kilometer van de verkochte onroerende zaak dan zijn de eventuele kosten die de notaris berekent voor een eventuele verkoopvolmacht en legalisatie hiervan ten behoeve van de verkoper voor rekening van de koper.
Zelfbewoningsplicht
Koper is bekend met de zelfbewoningsplicht welke vanaf 01-01-2023 binnen de gemeente Schiedam van kracht is. De verkopend makelaar heeft koper doorverwezen naar de gemeente Vlaardingen omtrent de desbetreffende regelgeving. Verkoper noch verkopend makelaar aanvaarden geen enkele aansprakelijkheid voor geleden schade wegens het niet juist naleven van deze zelfbewoningsplicht.
Gunning
Verkoper behoudt zich uitdrukkelijk het recht voor het object te gunnen aan de gegadigde van zijn keuze.
Nadrukkelijk zij vermeld dat alle informatie in deze brochure moet beschouwd worden als een uitnodiging tot het doen van een bod of om in onderhandeling te treden. Er kunnen geen rechten worden ontleend aan deze informatie.
Vlietlanden NVM Makelaars streeft ernaar de informatie op haar website / brochures en andere uitingen zo actueel en nauwkeurig mogelijk weer te geven. Hoewel de informatie met de grootst mogelijke zorgvuldigheid is samengesteld aanvaarden wij geen enkele aansprakelijkheid ten aanzien van de juistheid van de vermelde gegevens.
Kenmerken
Overdracht
- vraagprijs
- € 285.000 k.k.
- Status
- Beschikbaar
- Aanvaarding
- In overleg
Bouw
- Soort woning
- Bovenwoning, appartement
- Soort bouw
- Bestaande bouw
Oppervlakten en inhoud
- Woonoppervlakte
- 69 m²
- Inhoud
- 239 m³
Indeling
- Aantal kamers
- 3 kamers (2 slaapkamers)
- Aantal verdiepingen
- 2 Verdiepingen
- Voorzieningen
- Tv kabel
Energie
- Energielabel
- D
- Isolatie
- Dubbel glas
Buitenruimte
- Ligging
- In woonwijk
- Tuin
- Geen tuin
Garage
- Soort garage
- Geen garage
Parkeren
- Soort parkeergelegenheid
- Openbaar parkeren