Blois van Treslongstraat 113
€ 600.000 k.k.
Vlaardingen
Eengezinswoning
153 m²
5 slaapkamers
West
In overleg
Wonen in Vlaardingen West betekent genieten van rust, ruimte en alle dagelijkse voorzieningen binnen handbereik. In deze groene en kindvriendelijke woonomgeving vind je scholen, speelgelegenheden en winkels op korte afstand, terwijl ook uitvalswegen en openbaar vervoer snel bereikbaar zijn. Hier woon je ruim en comfortabel, met volop mogelijkheden om het huis helemaal naar eigen wens vorm te geven. Deze royale twee-onder-een-kapwoning uit 2012 biedt maar liefst vijf slaapkamers en verrassend veel leefruimte, ideaal voor een groot gezin, werken aan huis of hobby’s. De volledig bestraatte voortuin met hekwerk leidt naar de overkapte entree. Binnen kom je in de hal met vaste kast en toilet, waarna de woonkamer zich aan de achterzijde bevindt. Dankzij het grote zijraam en de openslaande deuren naar de tuin geniet je hier van extra lichtinval. De vloerverwarming zorgt voor comfort en er is volop plek voor een royale zithoek en een gezellige eethoek. Aan de voorzijde sluit de, recent vernieuwde (2023), open keuken in hoekopstelling mooi aan, voorzien van diverse inbouwapparatuur en een Smeg gasfornuis. De diepe achtertuin is volledig bestraat en biedt met de aangebouwde overkapping een heerlijke plek om beschut buiten te zitten, die desgewenst afsluitbaar is met zeildoeken. Achterin staat een houten berging met elektra en via de achterom is de tuin gemakkelijk bereikbaar. Naast de woning bevindt zich bovendien een eigen parkeerplaats, zodat je altijd vrij kunt parkeren. Op de eerste verdieping zijn drie goed bemeten slaapkamers en een volledig betegelde badkamer met inloopdouche, toilet, wastafelmeubel en praktische kastruimte. De tweede verdieping verrast met nog eens twee slaapkamers én een aparte wasruimte met Cv-opstelling, wasmachine- en drogeraansluiting en een raam voor daglicht. Met houten kozijnen voorzien van dubbel glas, energielabel A en gelegen op eigen grond is dit een huis met een sterke basis, veel ruimte en volop potentie op een fijne plek in de stad.
INDELING
De volledig bestraatte voortuin met een metalen hekwerk is vrij toegankelijk vanaf de straat en geeft toegang tot de overkapte voordeur.
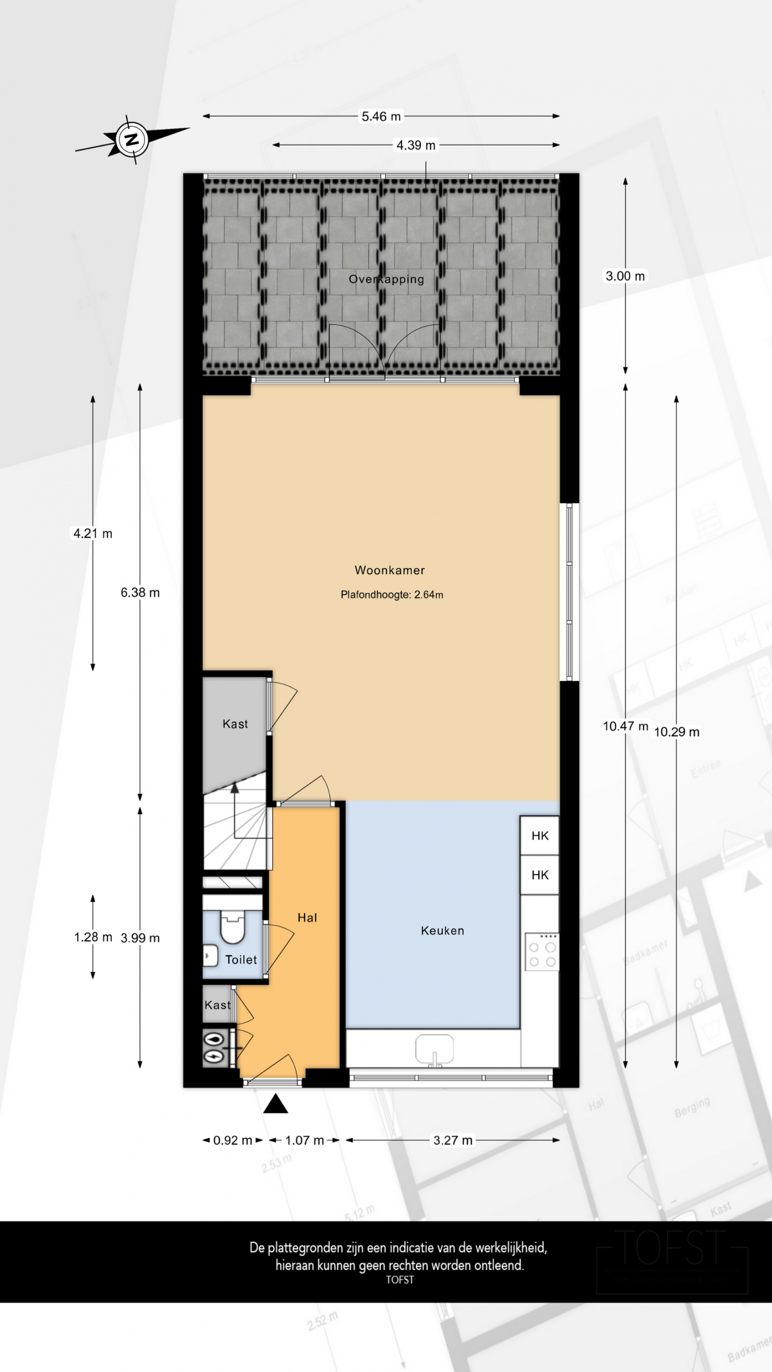
BEGANE GROND
Na de voordeur is er een binnenkomst in de entreehal. Hier bevindt zich een vaste kast, met daarin de meterkast en vanuit hier is er toegang tot de trap naar de 1e verdieping, de woonkamer en het gedeeltelijk betegelde toilet. Alle wanden zijn afgewerkt met spachtelputz en er ligt een laminaatvloer, die is doorgetrokken naar de woonkamer.
De woonkamer, met vloerverwarming, is gesitueerd aan de achterzijde en beschikt over openslaande deuren naar de achtertuin. Het grote zijraam zorgt voor extra daglicht en de wanden zijn afwisselend afgewerkt met behang en spachtelputz. Er is ruimte voor zowel een zit- als een eethoek en er is een vaste kast aanwezig. De woonkamer loopt naar de voorzijde over in de open keuken, die is opgesteld in een hoek met bovenkasten. De achterwand is betegeld en er is diverse apparatuur aanwezig, zoals een koelkast, een vriezer, een vaatwasser, een oven, een Smeg gasfornuis en een afzuigkap.
De diepe achtertuin is voorzien van een overkapping die aan de woning is geplaatst. Deze kan worden afgesloten met zeildoeken. De tuin is volledig voorzien van tegels met rondom houten schuttingen als afscheiding. Achterin de tuin staat een houten berging die is voorzien van elektra en er is een achteruitgang.
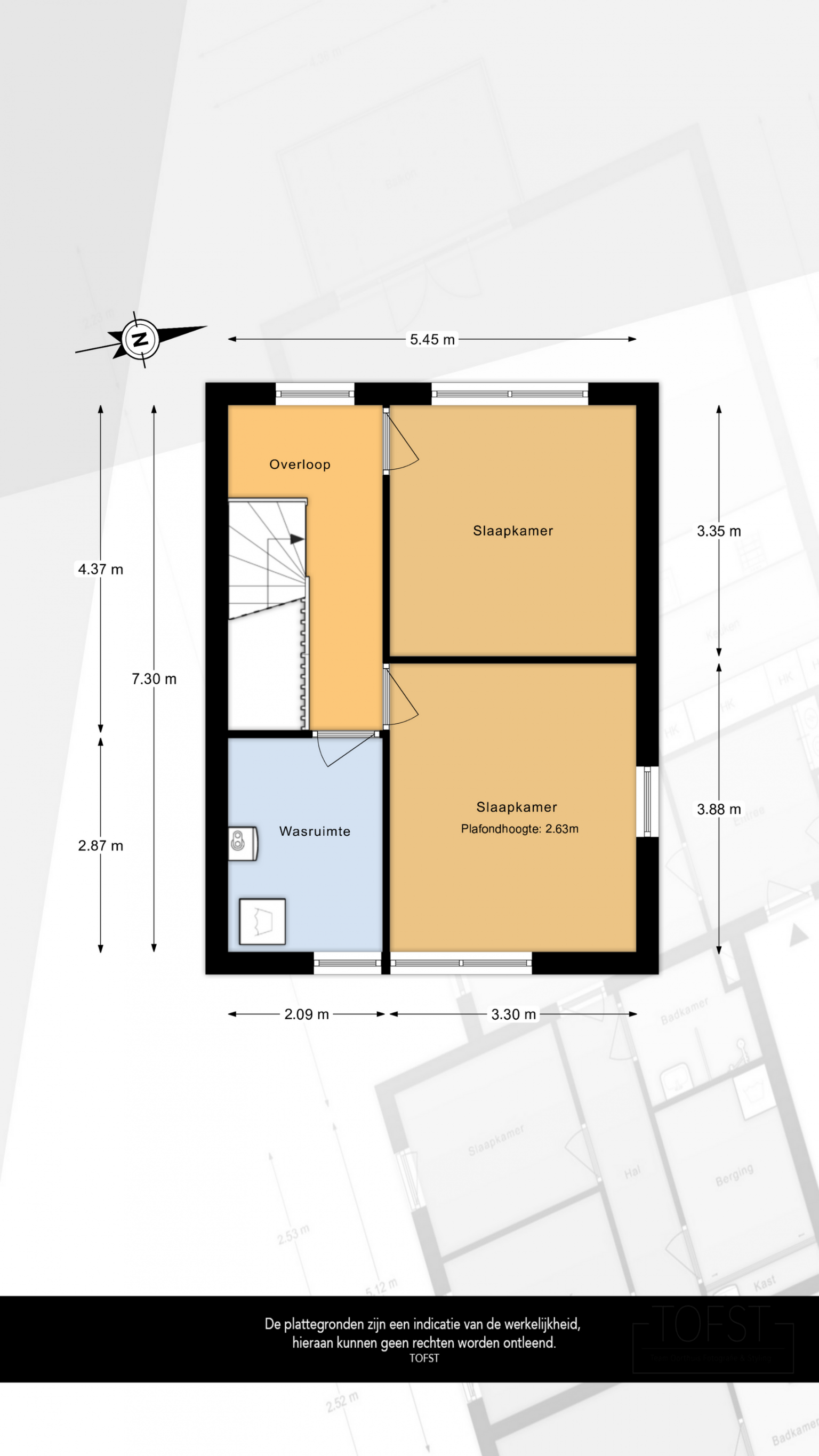
1E VERDIEPING
Na de trapopgang is de overloop bereikbaar, die toegang geeft tot de trap naar de 2e verdieping, drie slaapkamers en de badkamer. Alle wanden zijn afgewerkt met spachtelputz en er ligt een laminaatvloer, die is doorgetrokken naar alle slaapkamers.
De slaapkamers zijn verdeeld gelegen, waarbij er twee kamers zijn voorzien van een extra zijraam en alle wanden wisselend zijn afgewerkt met spachtelputz en behang.
De volledig betegelde badkamer is uitgerust met een inloopdouche, een toilet en een wastafelmeubel met daarboven een spiegelkast. Er hangen twee aparte hoge kasten en er is een te openen raam aanwezig.
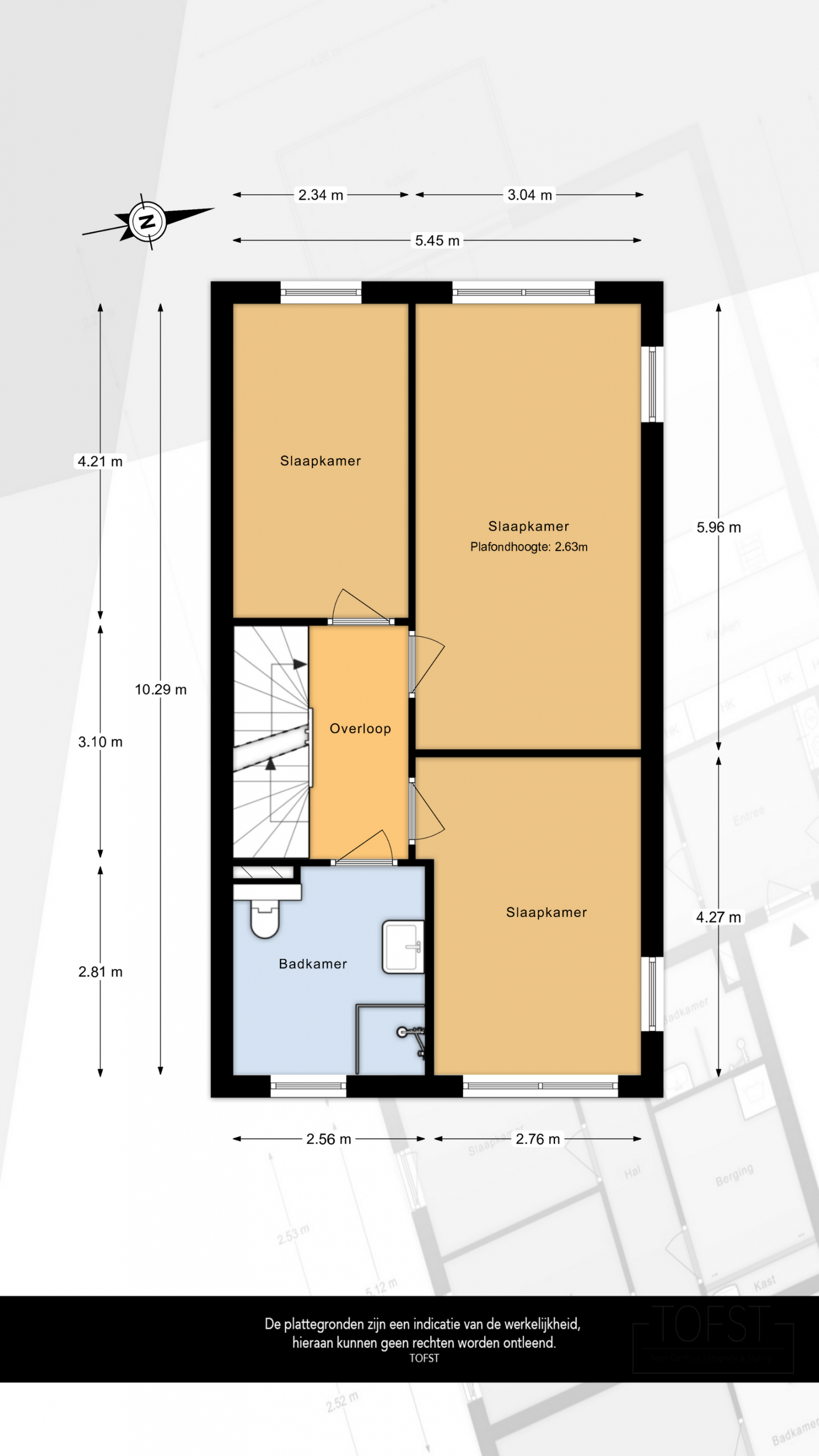
2E VERDIEPING
Vanaf deze overloop, met een laminaatvloer en spachtelputz wanden, is er toegang tot nog twee slaapkamers en de wasruimte.
Ook deze kamers zijn verdeeld gelegen over de voor- en achterzijde en zijn beide voorzien van een laminaatvloer en spachtelputz wanden.
De wasruimte is een fijne extra ruimte met daarin de opstelling van de Cv-ketel en de wasmachine-/drogeraansluiting. Ook hier ligt een laminaatvloer, zijn de wanden afgewerkt met spachtelputz en is er een raam.
BIJZONDERHEDEN
- Voorzien van houten kozijnen met dubbel glas
- Tuindeuren voorzien van een hordeur
- Keuken nieuw geplaatst (2023)
- Houten berging met elektra
- Eigen parkeerplaats
- Cv-ketel (2012)
- Gelegen op eigen grond
- Bouwjaar 2012
- Energielabel A
- Oplevering in overleg
Woonoppervlakte
De Meetinstructie is gebaseerd op de NEN2580. De Meetinstructie is bedoeld om een meer eenduidige manier van meten toe te passen voor het geven van een indicatie van de gebruiksoppervlakte. De Meetinstructie sluit verschillen in meetuitkomsten niet volledig uit, door bijvoorbeeld interpretatieverschillen, afrondingen of beperkingen bij het uitvoeren van de meting. Indien de exacte maten voor een koper van cruciaal belang zijn, adviseren wij deze zelf na te meten. De (kandidaat)koper(s) zullen, indien gewenst, daartoe in de gelegenheid gesteld worden op een passend moment teneinde teleurstellingen en schade te voorkomen.
Notariskeuze en kosten
In principe ligt de notariskeuze bij de koper. Het doorhalen van de hypothecaire inschrijving in het kadaster moet door de verkoper betaald worden. Zijn de kosten voor deze doorhaling hoger dan € 400,- inclusief BTW dan wordt het meerdere bij de koper in rekening gebracht. Indien de koper een notaris kiest buiten een straal van 20 kilometer van de verkochte onroerende zaak dan zijn de eventuele kosten die de notaris berekent voor een eventuele verkoopvolmacht en legalisatie hiervan ten behoeve van de verkoper voor rekening van de koper.
Zelfbewoningsplicht
Koper is bekend met de zelfbewoningsplicht welke vanaf 01-01-2023 binnen de gemeente Vlaardingen van kracht is. De verkopend makelaar heeft koper doorverwezen naar de gemeente Vlaardingen omtrent de desbetreffende regelgeving. Verkoper noch verkopend makelaar aanvaarden geen enkele aansprakelijkheid voor geleden schade wegens het niet juist naleven van deze zelfbewoningsplicht.
Niet-zelfbewoningsclausule
Koper verklaart ermee bekend te zijn, dat verkoper de onroerende zaak nooit zelf feitelijk heeft gebruikt en dat hij derhalve koper niet heeft kunnen informeren over eigenschappen van casu quo gebreken aan de onroerende zaak welke hij niet kende doch waarvan hij op de hoogte zou zijn geweest als hij de onroerende zaak zelf feitelijk had gebruikt.
Gunning
Verkoper behoudt zich uitdrukkelijk het recht voor het object te gunnen aan de gegadigde van zijn keuze.
Nadrukkelijk zij vermeld dat alle informatie in deze brochure moet beschouwd worden als een uitnodiging tot het doen van een bod of om in onderhandeling te treden. Er kunnen geen rechten worden ontleend aan deze informatie.
Vlietlanden NVM Makelaars streeft ernaar de informatie op haar website / brochures en andere uitingen zo actueel en nauwkeurig mogelijk weer te geven. Hoewel de informatie met de grootst mogelijke zorgvuldigheid is samengesteld aanvaarden wij geen enkele aansprakelijkheid ten aanzien van de juistheid van de vermelde gegevens.
INDELING
De volledig bestraatte voortuin met een metalen hekwerk is vrij toegankelijk vanaf de straat en geeft toegang tot de overkapte voordeur.
BEGANE GROND
Na de voordeur is er een binnenkomst in de entreehal. Hier bevindt zich een vaste kast, met daarin de meterkast en vanuit hier is er toegang tot de trap naar de 1e verdieping, de woonkamer en het gedeeltelijk betegelde toilet. Alle wanden zijn afgewerkt met spachtelputz en er ligt een laminaatvloer, die is doorgetrokken naar de woonkamer.
De woonkamer, met vloerverwarming, is gesitueerd aan de achterzijde en beschikt over openslaande deuren naar de achtertuin. Het grote zijraam zorgt voor extra daglicht en de wanden zijn afwisselend afgewerkt met behang en spachtelputz. Er is ruimte voor zowel een zit- als een eethoek en er is een vaste kast aanwezig. De woonkamer loopt naar de voorzijde over in de open keuken, die is opgesteld in een hoek met bovenkasten. De achterwand is betegeld en er is diverse apparatuur aanwezig, zoals een koelkast, een vriezer, een vaatwasser, een oven, een Smeg gasfornuis en een afzuigkap.
De diepe achtertuin is voorzien van een overkapping die aan de woning is geplaatst. Deze kan worden afgesloten met zeildoeken. De tuin is volledig voorzien van tegels met rondom houten schuttingen als afscheiding. Achterin de tuin staat een houten berging die is voorzien van elektra en er is een achteruitgang.
1E VERDIEPING
Na de trapopgang is de overloop bereikbaar, die toegang geeft tot de trap naar de 2e verdieping, drie slaapkamers en de badkamer. Alle wanden zijn afgewerkt met spachtelputz en er ligt een laminaatvloer, die is doorgetrokken naar alle slaapkamers.
De slaapkamers zijn verdeeld gelegen, waarbij er twee kamers zijn voorzien van een extra zijraam en alle wanden wisselend zijn afgewerkt met spachtelputz en behang.
De volledig betegelde badkamer is uitgerust met een inloopdouche, een toilet en een wastafelmeubel met daarboven een spiegelkast. Er hangen twee aparte hoge kasten en er is een te openen raam aanwezig.
2E VERDIEPING
Vanaf deze overloop, met een laminaatvloer en spachtelputz wanden, is er toegang tot nog twee slaapkamers en de wasruimte.
Ook deze kamers zijn verdeeld gelegen over de voor- en achterzijde en zijn beide voorzien van een laminaatvloer en spachtelputz wanden.
De wasruimte is een fijne extra ruimte met daarin de opstelling van de Cv-ketel en de wasmachine-/drogeraansluiting. Ook hier ligt een laminaatvloer, zijn de wanden afgewerkt met spachtelputz en is er een raam.
BIJZONDERHEDEN
- Voorzien van houten kozijnen met dubbel glas
- Tuindeuren voorzien van een hordeur
- Keuken nieuw geplaatst (2023)
- Houten berging met elektra
- Eigen parkeerplaats
- Cv-ketel (2012)
- Gelegen op eigen grond
- Bouwjaar 2012
- Energielabel A
- Oplevering in overleg
Woonoppervlakte
De Meetinstructie is gebaseerd op de NEN2580. De Meetinstructie is bedoeld om een meer eenduidige manier van meten toe te passen voor het geven van een indicatie van de gebruiksoppervlakte. De Meetinstructie sluit verschillen in meetuitkomsten niet volledig uit, door bijvoorbeeld interpretatieverschillen, afrondingen of beperkingen bij het uitvoeren van de meting. Indien de exacte maten voor een koper van cruciaal belang zijn, adviseren wij deze zelf na te meten. De (kandidaat)koper(s) zullen, indien gewenst, daartoe in de gelegenheid gesteld worden op een passend moment teneinde teleurstellingen en schade te voorkomen.
Notariskeuze en kosten
In principe ligt de notariskeuze bij de koper. Het doorhalen van de hypothecaire inschrijving in het kadaster moet door de verkoper betaald worden. Zijn de kosten voor deze doorhaling hoger dan € 400,- inclusief BTW dan wordt het meerdere bij de koper in rekening gebracht. Indien de koper een notaris kiest buiten een straal van 20 kilometer van de verkochte onroerende zaak dan zijn de eventuele kosten die de notaris berekent voor een eventuele verkoopvolmacht en legalisatie hiervan ten behoeve van de verkoper voor rekening van de koper.
Zelfbewoningsplicht
Koper is bekend met de zelfbewoningsplicht welke vanaf 01-01-2023 binnen de gemeente Vlaardingen van kracht is. De verkopend makelaar heeft koper doorverwezen naar de gemeente Vlaardingen omtrent de desbetreffende regelgeving. Verkoper noch verkopend makelaar aanvaarden geen enkele aansprakelijkheid voor geleden schade wegens het niet juist naleven van deze zelfbewoningsplicht.
Niet-zelfbewoningsclausule
Koper verklaart ermee bekend te zijn, dat verkoper de onroerende zaak nooit zelf feitelijk heeft gebruikt en dat hij derhalve koper niet heeft kunnen informeren over eigenschappen van casu quo gebreken aan de onroerende zaak welke hij niet kende doch waarvan hij op de hoogte zou zijn geweest als hij de onroerende zaak zelf feitelijk had gebruikt.
Gunning
Verkoper behoudt zich uitdrukkelijk het recht voor het object te gunnen aan de gegadigde van zijn keuze.
Nadrukkelijk zij vermeld dat alle informatie in deze brochure moet beschouwd worden als een uitnodiging tot het doen van een bod of om in onderhandeling te treden. Er kunnen geen rechten worden ontleend aan deze informatie.
Vlietlanden NVM Makelaars streeft ernaar de informatie op haar website / brochures en andere uitingen zo actueel en nauwkeurig mogelijk weer te geven. Hoewel de informatie met de grootst mogelijke zorgvuldigheid is samengesteld aanvaarden wij geen enkele aansprakelijkheid ten aanzien van de juistheid van de vermelde gegevens.
Kenmerken
Overdracht
- vraagprijs
- € 600.000 k.k.
- Status
- Beschikbaar
- Aanvaarding
- In overleg
Bouw
- Soort woning
- Eengezinswoning, 2-onder-1-kapwoning
- Soort bouw
- Bestaande bouw
Oppervlakten en inhoud
- Woonoppervlakte
- 153 m²
- Externe bergruimte
- 6 m²
- Perceel
- 135 m²
- Inhoud
- 539 m³
Indeling
- Aantal kamers
- 6 kamers (5 slaapkamers)
- Aantal verdiepingen
- 3 Verdiepingen
- Voorzieningen
- Tv kabel
Energie
- Energielabel
- A
- Isolatie
- Dakisolatie, muurisolatie, vloerisolatie, dubbel glas
Buitenruimte
- Ligging
- Aan rustige weg, in woonwijk
- Tuin
- Achtertuin
- Achtertuin
- 39 m² (7,15m Diep / 5,46m Breed)
- Ligging tuin
- West
Garage
- Soort garage
- Parkeerplaats
Parkeren
- Soort parkeergelegenheid
- Openbaar parkeren