Vettenoordstraat 67 C
€ 325.000 k.k.
Vlaardingen
Portiekflat
113 m²
3 slaapkamers
In overleg
Wonen op een plek waar alles samenkomt. Ruimte, licht en een levendige maar prettige omgeving. Dit royale appartement op de derde woonlaag ligt in een fijne wijk van Vlaardingen, met winkels, supermarkten en gezellige eetgelegenheden om de hoek en zowel het centrum als het openbaar vervoer op korte afstand. Ook groen en ontspanning zijn dichtbij te vinden, waardoor je hier heerlijk woont met alle dagelijkse voorzieningen binnen handbereik en bovendien vrij kunt parkeren in de straat. Achter de afgesloten entree wacht een verrassend ruim en praktisch ingedeeld appartement met maar liefst vijf kamers. De woning voelt direct verzorgd aan, met nette wandafwerkingen en een speelse mix van siergrind en laminaatvloeren. De lichte woonkamer valt op door het grote raam en het extra zijraam en wordt extra bijzonder door de vaste kast met glas-in-lood en de aangrenzende zijkamer die perfect dienstdoet als werk- of hobbyruimte. De keuken vormt het hart van het appartement en geeft toegang tot het overdekte balkon, een fijne plek voor een zitje in de buitenlucht. Met drie volwaardige slaapkamers, een kamer ingericht als wasruimte, een nette badkamer en volop bergruimte is het hier comfortabel wonen. Daarbij maken de externe berging, de gezamenlijke fietsenberging, kunststof kozijnen met dubbel glas, blokverwarming en een actieve VvE het geheel compleet. Een heerlijk licht en ruim appartement op een centrale plek, klaar voor een nieuwe bewoner die hier met plezier zijn thuis van maakt.
INDELING
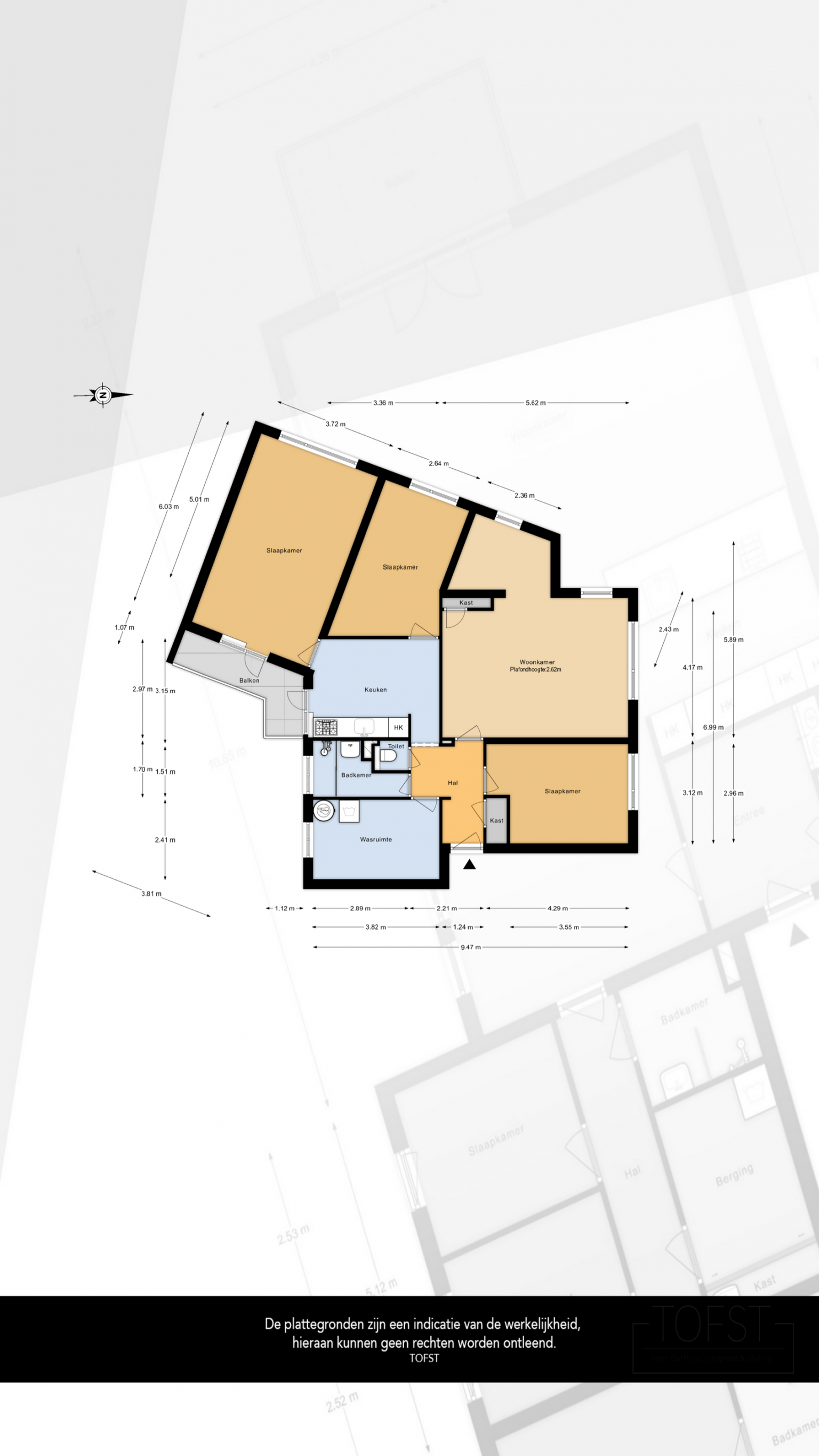
Vanuit de centrale afgesloten entree, die is voorzien van een bellentableau de brievenbussen, is er toegang tot de entreehal. Vanuit hier is er toegang tot de trap naar de verdiepingen, de externe berging en de gezamenlijke fietsenberging.
APPARTEMENT
Na de voordeur is er een binnenkomst in de hal met een open voorportaal. Hier is ruimte voor de garderobe en zorgen de vaste kast en de kast boven het verlaagde plafond met inbouw spots, voor extra opbergmogelijkheden. Verder is er vanuit de hal toegang tot de wasruimte, de badkamer, het volledig betegelde toilet, de keuken, de woonkamer en de eerste slaapkamer. De wanden zijn afgewerkt met glasweefselbehang en op de vloer ligt siergrind dat is doorgetrokken naar de keuken.
Een kamer die ingericht is als wasruimte, deze ruimte is voorzien van een werkblad met daaronder de aansluiting voor de wasmachine en de droger. Daarnaast hangt de boiler voor het warme water en is er voldoende plaats voor het opbergen van diverse spullen. De wanden zijn voorzien van glasweefselbehang en op de vloer ligt laminaat.
De volledig betegelde badkamer is uitgerust met een inloopdouche en een wastafel. Ook is er een te openen raam voor natuurlijke ventilatie en hangt er een handdoeken radiator.
De keuken is de verbindingsruimte naar de overige twee slaapkamers en het balkon. De keuken beschikt over een recht keukenblok met bovenkasten en diverse inbouwapparatuur. De achterwand is volledig betegeld en de andere wanden zijn halfhoog betegeld. Door de ruime afmeting is er genoeg ruimte voor extra kasten en zelfs een eethoek.
De woonkamer is heerlijk licht door het grote raam en het extra zijraam. De ruimte leent zich prima voor zowel een zit- als een eethoek en heeft een vaste kast met een deur die is voorzien van een glas-in-lood raam. Extra fijn is hier de aangrenzende zijkamer met speelse schuine wanden. Ook hier een raam voor daglicht en daardoor kan deze ruimte perfect worden gebruikt als werk-/hobbyruimte. Ook hier zijn de wanden afgewerkt met glasweefselbehang en is de vloer voorzien van laminaat.
De hoofdslaapkamer is de grootste slaapkamer en biedt genoeg ruimte voor een groot tweepersoonsbed en een garderobekast. Er is veel lichtinval doordat deze kamer ook een toegang heeft tot het balkon met daartegenover een groot raam. De wanden zijn hier wisselend afgewerkt met fotobehang en glasweefselbehang en de vloer is voorzien van laminaat. De tweede en derde slaapkamer zijn nagenoeg gelijk van afmeting en beide zijn voorzien van glasweefselbehang en een laminaatvloer. Daarnaast beschikt één van de kamers ook over extra bergruimte boven de deur.
Het overdekte balkon is een fijne buitenruimte met plaats voor een gezellige zitje.
BIJZONDERHEDEN
- De woning is volledig voorzien van kunststof kozijnen met dubbel glas, met uitzondering van de slaapkamer aan de voorzijde en de woonkamer aan de voorzijde. Deze zijn voorzien van houten kozijnen met dubbel glas
- De radiatoren in de woonkamer en de zijkamer zijn vernieuwd
- Vaste kast in de woonkamer met glas-in-lood
- Boiler voor warm water (huur Eneco)
- Blokverwarming
- Actieve VvE (€243,25 per maand, inclusief voorschot stookkosten)
- Aparte externe berging
- Gezamenlijke fietsenberging
- Vrij parkeren in de straat
- Glasvezelverbinding
- Gelegen op eigen grond
- Bouwjaar 1949
- Energielabel E
- Oplevering in overleg
Woonoppervlakte
De Meetinstructie is gebaseerd op de NEN2580. De Meetinstructie is bedoeld om een meer eenduidige manier van meten toe te passen voor het geven van een indicatie van de gebruiksoppervlakte. De Meetinstructie sluit verschillen in meetuitkomsten niet volledig uit, door bijvoorbeeld interpretatieverschillen, afrondingen of beperkingen bij het uitvoeren van de meting. Indien de exacte maten voor een koper van cruciaal belang zijn, adviseren wij deze zelf na te meten. De (kandidaat)koper(s) zullen, indien gewenst, daartoe in de gelegenheid gesteld worden op een passend moment teneinde teleurstellingen en schade te voorkomen.
Ouderdomsclausule
Bij woningen ouder dan 30 jaar zal er standaard in de koopakte een ouderdomsclausule worden opgenomen.
Notariskeuze en kosten
In principe ligt de notariskeuze bij de koper. Het doorhalen van de hypothecaire inschrijving in het kadaster moet door de verkoper betaald worden. Zijn de kosten voor deze doorhaling hoger dan € 400,- inclusief BTW dan wordt het meerdere bij de koper in rekening gebracht. Indien de koper een notaris kiest buiten een straal van 20 kilometer van de verkochte onroerende zaak dan zijn de eventuele kosten die de notaris berekent voor een eventuele verkoopvolmacht en legalisatie hiervan ten behoeve van de verkoper voor rekening van de koper.
Zelfbewoningsplicht
Koper is bekend met de zelfbewoningsplicht welke vanaf 01-01-2023 binnen de gemeente Vlaardingen van kracht is. De verkopend makelaar heeft koper doorverwezen naar de gemeente Vlaardingen omtrent de desbetreffende regelgeving. Verkoper noch verkopend makelaar aanvaarden geen enkele aansprakelijkheid voor geleden schade wegens het niet juist naleven van deze zelfbewoningsplicht.
Gunning
Verkoper behoudt zich uitdrukkelijk het recht voor het object te gunnen aan de gegadigde van zijn keuze.
Nadrukkelijk zij vermeld dat alle informatie in deze brochure moet beschouwd worden als een uitnodiging tot het doen van een bod of om in onderhandeling te treden. Er kunnen geen rechten worden ontleend aan deze informatie.
Vlietlanden NVM Makelaars streeft ernaar de informatie op haar website / brochures en andere uitingen zo actueel en nauwkeurig mogelijk weer te geven. Hoewel de informatie met de grootst mogelijke zorgvuldigheid is samengesteld aanvaarden wij geen enkele aansprakelijkheid ten aanzien van de juistheid van de vermelde gegevens.
INDELING
Vanuit de centrale afgesloten entree, die is voorzien van een bellentableau de brievenbussen, is er toegang tot de entreehal. Vanuit hier is er toegang tot de trap naar de verdiepingen, de externe berging en de gezamenlijke fietsenberging.
APPARTEMENT
Na de voordeur is er een binnenkomst in de hal met een open voorportaal. Hier is ruimte voor de garderobe en zorgen de vaste kast en de kast boven het verlaagde plafond met inbouw spots, voor extra opbergmogelijkheden. Verder is er vanuit de hal toegang tot de wasruimte, de badkamer, het volledig betegelde toilet, de keuken, de woonkamer en de eerste slaapkamer. De wanden zijn afgewerkt met glasweefselbehang en op de vloer ligt siergrind dat is doorgetrokken naar de keuken.
Een kamer die ingericht is als wasruimte, deze ruimte is voorzien van een werkblad met daaronder de aansluiting voor de wasmachine en de droger. Daarnaast hangt de boiler voor het warme water en is er voldoende plaats voor het opbergen van diverse spullen. De wanden zijn voorzien van glasweefselbehang en op de vloer ligt laminaat.
De volledig betegelde badkamer is uitgerust met een inloopdouche en een wastafel. Ook is er een te openen raam voor natuurlijke ventilatie en hangt er een handdoeken radiator.
De keuken is de verbindingsruimte naar de overige twee slaapkamers en het balkon. De keuken beschikt over een recht keukenblok met bovenkasten en diverse inbouwapparatuur. De achterwand is volledig betegeld en de andere wanden zijn halfhoog betegeld. Door de ruime afmeting is er genoeg ruimte voor extra kasten en zelfs een eethoek.
De woonkamer is heerlijk licht door het grote raam en het extra zijraam. De ruimte leent zich prima voor zowel een zit- als een eethoek en heeft een vaste kast met een deur die is voorzien van een glas-in-lood raam. Extra fijn is hier de aangrenzende zijkamer met speelse schuine wanden. Ook hier een raam voor daglicht en daardoor kan deze ruimte perfect worden gebruikt als werk-/hobbyruimte. Ook hier zijn de wanden afgewerkt met glasweefselbehang en is de vloer voorzien van laminaat.
De hoofdslaapkamer is de grootste slaapkamer en biedt genoeg ruimte voor een groot tweepersoonsbed en een garderobekast. Er is veel lichtinval doordat deze kamer ook een toegang heeft tot het balkon met daartegenover een groot raam. De wanden zijn hier wisselend afgewerkt met fotobehang en glasweefselbehang en de vloer is voorzien van laminaat. De tweede en derde slaapkamer zijn nagenoeg gelijk van afmeting en beide zijn voorzien van glasweefselbehang en een laminaatvloer. Daarnaast beschikt één van de kamers ook over extra bergruimte boven de deur.
Het overdekte balkon is een fijne buitenruimte met plaats voor een gezellige zitje.
BIJZONDERHEDEN
- De woning is volledig voorzien van kunststof kozijnen met dubbel glas, met uitzondering van de slaapkamer aan de voorzijde en de woonkamer aan de voorzijde. Deze zijn voorzien van houten kozijnen met dubbel glas
- De radiatoren in de woonkamer en de zijkamer zijn vernieuwd
- Vaste kast in de woonkamer met glas-in-lood
- Boiler voor warm water (huur Eneco)
- Blokverwarming
- Actieve VvE (€243,25 per maand, inclusief voorschot stookkosten)
- Aparte externe berging
- Gezamenlijke fietsenberging
- Vrij parkeren in de straat
- Glasvezelverbinding
- Gelegen op eigen grond
- Bouwjaar 1949
- Energielabel E
- Oplevering in overleg
Woonoppervlakte
De Meetinstructie is gebaseerd op de NEN2580. De Meetinstructie is bedoeld om een meer eenduidige manier van meten toe te passen voor het geven van een indicatie van de gebruiksoppervlakte. De Meetinstructie sluit verschillen in meetuitkomsten niet volledig uit, door bijvoorbeeld interpretatieverschillen, afrondingen of beperkingen bij het uitvoeren van de meting. Indien de exacte maten voor een koper van cruciaal belang zijn, adviseren wij deze zelf na te meten. De (kandidaat)koper(s) zullen, indien gewenst, daartoe in de gelegenheid gesteld worden op een passend moment teneinde teleurstellingen en schade te voorkomen.
Ouderdomsclausule
Bij woningen ouder dan 30 jaar zal er standaard in de koopakte een ouderdomsclausule worden opgenomen.
Notariskeuze en kosten
In principe ligt de notariskeuze bij de koper. Het doorhalen van de hypothecaire inschrijving in het kadaster moet door de verkoper betaald worden. Zijn de kosten voor deze doorhaling hoger dan € 400,- inclusief BTW dan wordt het meerdere bij de koper in rekening gebracht. Indien de koper een notaris kiest buiten een straal van 20 kilometer van de verkochte onroerende zaak dan zijn de eventuele kosten die de notaris berekent voor een eventuele verkoopvolmacht en legalisatie hiervan ten behoeve van de verkoper voor rekening van de koper.
Zelfbewoningsplicht
Koper is bekend met de zelfbewoningsplicht welke vanaf 01-01-2023 binnen de gemeente Vlaardingen van kracht is. De verkopend makelaar heeft koper doorverwezen naar de gemeente Vlaardingen omtrent de desbetreffende regelgeving. Verkoper noch verkopend makelaar aanvaarden geen enkele aansprakelijkheid voor geleden schade wegens het niet juist naleven van deze zelfbewoningsplicht.
Gunning
Verkoper behoudt zich uitdrukkelijk het recht voor het object te gunnen aan de gegadigde van zijn keuze.
Nadrukkelijk zij vermeld dat alle informatie in deze brochure moet beschouwd worden als een uitnodiging tot het doen van een bod of om in onderhandeling te treden. Er kunnen geen rechten worden ontleend aan deze informatie.
Vlietlanden NVM Makelaars streeft ernaar de informatie op haar website / brochures en andere uitingen zo actueel en nauwkeurig mogelijk weer te geven. Hoewel de informatie met de grootst mogelijke zorgvuldigheid is samengesteld aanvaarden wij geen enkele aansprakelijkheid ten aanzien van de juistheid van de vermelde gegevens.
Kenmerken
Overdracht
- vraagprijs
- € 325.000 k.k.
- Status
- Verkocht onder voorbehoud
- Aanvaarding
- In overleg
Bouw
- Soort woning
- Portiekflat, appartement
- Soort bouw
- Bestaande bouw
Oppervlakten en inhoud
- Woonoppervlakte
- 113 m²
- Externe bergruimte
- 4 m²
- Inhoud
- 348 m³
Indeling
- Aantal kamers
- 5 kamers (3 slaapkamers)
- Aantal verdiepingen
- 1 Verdiepingen
- Voorzieningen
- Tv kabel
Energie
- Energielabel
- E
- Isolatie
- Dubbel glas
Buitenruimte
- Ligging
- Aan rustige weg, in woonwijk, vrij uitzicht
- Tuin
- Geen tuin
Garage
- Soort garage
- Geen garage
Parkeren
- Soort parkeergelegenheid
- Openbaar parkeren