Rossinistraat 35
€ 289.000 k.k.
Schiedam
Portiekflat
85 m²
3 slaapkamers
In overleg
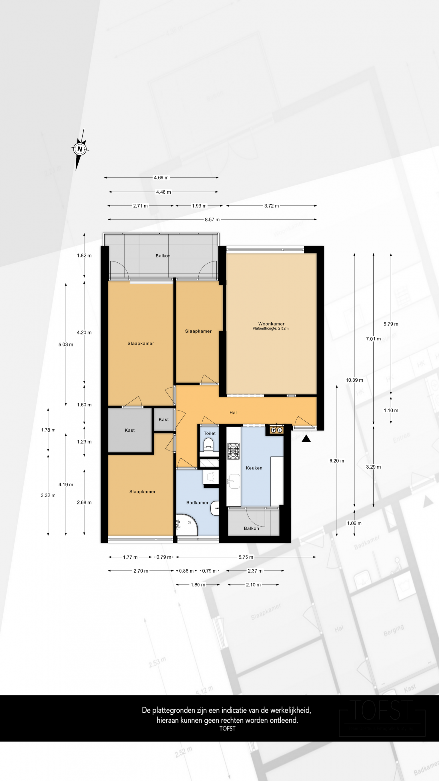
In een prettige, groene woonwijk van Schiedam ligt dit ruime 4-kamerappartement, gelegen op de bovenste woonlaag van een verzorgd complex. De omgeving is rustig en vriendelijk, met winkels, scholen, het openbaar vervoer en uitvalswegen op korte afstand. Ook voor een wandeling of een moment buiten is er volop groen in de buurt, wat het wonen hier extra aangenaam maakt. Via de afgesloten entree met bellentableau kom je in het appartement, waar de hal toegang geeft tot alle vertrekken. De woonkamer ligt aan de achterzijde en is heerlijk licht dankzij het grote raam. De open verbinding met de keuken zorgt voor een ruimtelijk gevoel. De keuken is praktisch ingericht met voldoende werkruimte, een 5-pits gaskookplaat en toegang tot een beschut balkon met een leuk uitzicht over de wijk. Het appartement beschikt over drie slaapkamers, waarvan twee aan de achterzijde met toegang tot een tweede, ruimer balkon dat grotendeels overdekt is en plaats biedt voor een gezellig zitje. De badkamer is volledig betegeld en voorzien van een douchecabine, wastafelmeubel, wasmachineaansluiting en ramen voor daglicht en natuurlijke ventilatie. Daarnaast is er een separaat toilet en extra bergruimte aanwezig. Met kunststof kozijnen en dubbel glas, een zonnescherm aan de woonkamerzijde, een actieve VvE, een externe berging en erfpacht die is afgekocht tot 2040, is dit een comfortabel en compleet appartement met een fijne ligging en veel woonruimte.
INDELING
Het complex heeft een afgesloten entree dat is voorzien van een bellentableau en de brievenbussen. Vanuit de centrale hal is er een trap naar de verdiepingen en is de externe berging bereikbaar.
APPARTEMENT
Binnenkomst in de entreehal die toegang geeft tot alle vertrekken. Zo is er een open verbinding naar de woonkamer en de keuken en zijn er deuren naar de drie slaapkamers, de badkamer en het gedeeltelijk betegelde toilet. In de hal bevindt zich ook de meterkast en een aparte vaste kast. De wanden zijn afgewerkt met spachtelputz en op de vloer ligt vloerbedekking dat drempelloos is doorgetrokken naar de woonkamer.
De woonkamer is gelegen aan de achterzijde en heeft een groot raampartij, wat zorgt voor veel lichtinval. De wanden zijn afgewerkt met spachtelputz en er is een lang smal raam met zicht naar de hal.
De keuken beschikt over een recht keukenblok met een betegelde achterwand en bovenkasten. Er is een 5-pits gaskookplaat en een afzuigkap aanwezig. Tegenover het keukenblok is nog een extra werkblad, handig voor het plaatsen van spullen en er is ruimte voor een grote Amerikaanse koelkast. De vloer is voorzien van vinyl in houtmotief en in het plafond zijn inbouw spots verwerkt. Vanuit de keuken is er een deur naar het balkon.
Het balkon is beschut gelegen over overdekt. De ondergrond is bedekt met kunstgras en vanaf hier is er een fraai zicht over de wijk.
De hoofdslaapkamer is gelegen aan de voorzijde. De radiator is netjes weggewerkt achter een ombouw, de wanden zijn voorzien van lambrisering en op de vloer ligt vloerbedekking. De tweede en derde slaapkamer zijn beide gelegen aan de achterzijde en beschikken over een deur naar het tweede balkon. De wanden zijn afwisselend afgewerkt en in de ene slaapkamer ligt vinyl en in de andere slaapkamer ligt vloerbedekking. Daarnaast beschikt één van de kamers ook over een vaste kast.
Het tweede balkon is ruimer van afmeting en biedt voldoende plaats voor een gezellig zitje. Het balkon is grotendeels overdekt en de ondergrond is voorzien van vlondertegels.
De volledig betegelde badkamer is uitgerust met een douchecabine en een wastafelmeubel met twee hoge kasten en een spiegel. Tevens is er een wasmachine- en drogeraansluiting en is het plafond voorzien van inbouw spots. Er zijn twee ramen aanwezig, waarbij er eentje te openen is, wat zorgt voor natuurlijk ventilatie.
BIJZONDERHEDEN
- De woning is voorzien van kunststof kozijnen met dubbel glas
- Handbedienbaar zonnescherm aan de woonkamer zijde
- Geiser voor warm water
- Cv-ketel (1991) (via VvE)
- Actieve VvE (€ 258,20 per maand, inclusief voorschot stookkosten)
- Externe berging
- Erfpacht, afgekocht tot 2040. Erfpacht loopt tot 30-06-2064.
- Bouwjaar 1968
- Energielabel D
Woonoppervlakte
De Meetinstructie is gebaseerd op de NEN2580. De Meetinstructie is bedoeld om een meer eenduidige manier van meten toe te passen voor het geven van een indicatie van de gebruiksoppervlakte. De Meetinstructie sluit verschillen in meetuitkomsten niet volledig uit, door bijvoorbeeld interpretatieverschillen, afrondingen of beperkingen bij het uitvoeren van de meting. Indien de exacte maten voor een koper van cruciaal belang zijn, adviseren wij deze zelf na te meten. De (kandidaat)koper(s) zullen, indien gewenst, daartoe in de gelegenheid gesteld worden op een passend moment teneinde teleurstellingen en schade te voorkomen.
Ouderdomsclausule
Bij woningen ouder dan 30 jaar zal er standaard in de koopakte een ouderdomsclausule worden opgenomen.
Notariskeuze en kosten
In principe ligt de notariskeuze bij de koper. Het doorhalen van de hypothecaire inschrijving in het kadaster moet door de verkoper betaald worden. Zijn de kosten voor deze doorhaling hoger dan € 400,- inclusief BTW dan wordt het meerdere bij de koper in rekening gebracht. Indien de koper een notaris kiest buiten een straal van 20 kilometer van de verkochte onroerende zaak dan zijn de eventuele kosten die de notaris berekent voor een eventuele verkoopvolmacht en legalisatie hiervan ten behoeve van de verkoper voor rekening van de koper.
Zelfbewoningsplicht
Koper is bekend met de zelfbewoningsplicht welke vanaf 01-01-2023 binnen de gemeente Schiedam van kracht is. De verkopend makelaar heeft koper doorverwezen naar de gemeente Vlaardingen omtrent de desbetreffende regelgeving. Verkoper noch verkopend makelaar aanvaarden geen enkele aansprakelijkheid voor geleden schade wegens het niet juist naleven van deze zelfbewoningsplicht.
Gunning
Verkoper behoudt zich uitdrukkelijk het recht voor het object te gunnen aan de gegadigde van zijn keuze.
Nadrukkelijk zij vermeld dat alle informatie in deze brochure moet beschouwd worden als een uitnodiging tot het doen van een bod of om in onderhandeling te treden. Er kunnen geen rechten worden ontleend aan deze informatie.
Vlietlanden NVM Makelaars streeft ernaar de informatie op haar website / brochures en andere uitingen zo actueel en nauwkeurig mogelijk weer te geven. Hoewel de informatie met de grootst mogelijke zorgvuldigheid is samengesteld aanvaarden wij geen enkele aansprakelijkheid ten aanzien van de juistheid van de vermelde gegevens.
- Oplevering in overleg
INDELING
Het complex heeft een afgesloten entree dat is voorzien van een bellentableau en de brievenbussen. Vanuit de centrale hal is er een trap naar de verdiepingen en is de externe berging bereikbaar.
APPARTEMENT
Binnenkomst in de entreehal die toegang geeft tot alle vertrekken. Zo is er een open verbinding naar de woonkamer en de keuken en zijn er deuren naar de drie slaapkamers, de badkamer en het gedeeltelijk betegelde toilet. In de hal bevindt zich ook de meterkast en een aparte vaste kast. De wanden zijn afgewerkt met spachtelputz en op de vloer ligt vloerbedekking dat drempelloos is doorgetrokken naar de woonkamer.
De woonkamer is gelegen aan de achterzijde en heeft een groot raampartij, wat zorgt voor veel lichtinval. De wanden zijn afgewerkt met spachtelputz en er is een lang smal raam met zicht naar de hal.
De keuken beschikt over een recht keukenblok met een betegelde achterwand en bovenkasten. Er is een 5-pits gaskookplaat en een afzuigkap aanwezig. Tegenover het keukenblok is nog een extra werkblad, handig voor het plaatsen van spullen en er is ruimte voor een grote Amerikaanse koelkast. De vloer is voorzien van vinyl in houtmotief en in het plafond zijn inbouw spots verwerkt. Vanuit de keuken is er een deur naar het balkon.
Het balkon is beschut gelegen over overdekt. De ondergrond is bedekt met kunstgras en vanaf hier is er een fraai zicht over de wijk.
De hoofdslaapkamer is gelegen aan de voorzijde. De radiator is netjes weggewerkt achter een ombouw, de wanden zijn voorzien van lambrisering en op de vloer ligt vloerbedekking. De tweede en derde slaapkamer zijn beide gelegen aan de achterzijde en beschikken over een deur naar het tweede balkon. De wanden zijn afwisselend afgewerkt en in de ene slaapkamer ligt vinyl en in de andere slaapkamer ligt vloerbedekking. Daarnaast beschikt één van de kamers ook over een vaste kast.
Het tweede balkon is ruimer van afmeting en biedt voldoende plaats voor een gezellig zitje. Het balkon is grotendeels overdekt en de ondergrond is voorzien van vlondertegels.
De volledig betegelde badkamer is uitgerust met een douchecabine en een wastafelmeubel met twee hoge kasten en een spiegel. Tevens is er een wasmachine- en drogeraansluiting en is het plafond voorzien van inbouw spots. Er zijn twee ramen aanwezig, waarbij er eentje te openen is, wat zorgt voor natuurlijk ventilatie.
BIJZONDERHEDEN
- De woning is voorzien van kunststof kozijnen met dubbel glas
- Handbedienbaar zonnescherm aan de woonkamer zijde
- Geiser voor warm water
- Cv-ketel (1991) (via VvE)
- Actieve VvE (€ 258,20 per maand, inclusief voorschot stookkosten)
- Externe berging
- Erfpacht, afgekocht tot 2040. Erfpacht loopt tot 30-06-2064.
- Bouwjaar 1968
- Energielabel D
Woonoppervlakte
De Meetinstructie is gebaseerd op de NEN2580. De Meetinstructie is bedoeld om een meer eenduidige manier van meten toe te passen voor het geven van een indicatie van de gebruiksoppervlakte. De Meetinstructie sluit verschillen in meetuitkomsten niet volledig uit, door bijvoorbeeld interpretatieverschillen, afrondingen of beperkingen bij het uitvoeren van de meting. Indien de exacte maten voor een koper van cruciaal belang zijn, adviseren wij deze zelf na te meten. De (kandidaat)koper(s) zullen, indien gewenst, daartoe in de gelegenheid gesteld worden op een passend moment teneinde teleurstellingen en schade te voorkomen.
Ouderdomsclausule
Bij woningen ouder dan 30 jaar zal er standaard in de koopakte een ouderdomsclausule worden opgenomen.
Notariskeuze en kosten
In principe ligt de notariskeuze bij de koper. Het doorhalen van de hypothecaire inschrijving in het kadaster moet door de verkoper betaald worden. Zijn de kosten voor deze doorhaling hoger dan € 400,- inclusief BTW dan wordt het meerdere bij de koper in rekening gebracht. Indien de koper een notaris kiest buiten een straal van 20 kilometer van de verkochte onroerende zaak dan zijn de eventuele kosten die de notaris berekent voor een eventuele verkoopvolmacht en legalisatie hiervan ten behoeve van de verkoper voor rekening van de koper.
Zelfbewoningsplicht
Koper is bekend met de zelfbewoningsplicht welke vanaf 01-01-2023 binnen de gemeente Schiedam van kracht is. De verkopend makelaar heeft koper doorverwezen naar de gemeente Vlaardingen omtrent de desbetreffende regelgeving. Verkoper noch verkopend makelaar aanvaarden geen enkele aansprakelijkheid voor geleden schade wegens het niet juist naleven van deze zelfbewoningsplicht.
Gunning
Verkoper behoudt zich uitdrukkelijk het recht voor het object te gunnen aan de gegadigde van zijn keuze.
Nadrukkelijk zij vermeld dat alle informatie in deze brochure moet beschouwd worden als een uitnodiging tot het doen van een bod of om in onderhandeling te treden. Er kunnen geen rechten worden ontleend aan deze informatie.
Vlietlanden NVM Makelaars streeft ernaar de informatie op haar website / brochures en andere uitingen zo actueel en nauwkeurig mogelijk weer te geven. Hoewel de informatie met de grootst mogelijke zorgvuldigheid is samengesteld aanvaarden wij geen enkele aansprakelijkheid ten aanzien van de juistheid van de vermelde gegevens.
- Oplevering in overleg
Kenmerken
Overdracht
- vraagprijs
- € 289.000 k.k.
- Status
- Verkocht onder voorbehoud
- Aanvaarding
- In overleg
Bouw
- Soort woning
- Portiekflat, appartement
- Soort bouw
- Bestaande bouw
Oppervlakten en inhoud
- Woonoppervlakte
- 85 m²
- Externe bergruimte
- 9 m²
- Inhoud
- 287 m³
Indeling
- Aantal kamers
- 4 kamers (3 slaapkamers)
- Aantal verdiepingen
- 1 Verdiepingen
- Voorzieningen
- Buitenzonwering
Energie
- Energielabel
- D
- Isolatie
- Dubbel glas
Buitenruimte
- Ligging
- In woonwijk
- Tuin
- Geen tuin
Garage
- Soort garage
- Geen garage
Parkeren
- Soort parkeergelegenheid
- Openbaar parkeren