Vondelstraat 57
€ 525.000 k.k.
Vlaardingen
Eengezinswoning
120 m²
4 slaapkamers
Zuidwest
In overleg
Zodra je de straat inloopt, voel je het al. Hier woon je met alles dichtbij! Deze fijne tussenwoning ligt op een paar stappen van de levendige binnenstad, met winkels, terrassen en horeca binnen handbereik, terwijl scholen en het openbaar vervoer praktisch om de hoek te vinden zijn. Een ideale plek voor wie centraal wil wonen zonder in te leveren op comfort en sfeer. Binnen valt direct de strakke afwerking op. De begane grond is voorzien van een fraaie PVC-visgraatvloer met comfortabele vloerverwarming, strak gestuukte wanden en een lichte, uitnodigende woonkamer waar de openslaande deuren zorgen voor een prettige verbinding met de onderhoudsvriendelijke achtertuin. De open keuken sluit hier perfect op aan en is een echte eyecatcher, met onder andere een Quooker, een Smeg gasfornuis met oven en volop werk- en bergruimte. Een plek waar koken en samenzijn moeiteloos samengaan. Achterin de tuin vind je een berging met elektra en verlichting en via de achteruitgang loop je zo naar het mandelige terrein met de eigen parkeerplaats. Op de eerste verdieping bevinden zich drie goed ingedeelde slaapkamers en een nette badkamer met daglicht en zowel natuurlijke als mechanische ventilatie. De tweede verdieping verrast met een ruime vierde slaapkamer, dankzij de dakkapel over de volle breedte van de woning, compleet met extra bergruimte achter de knieschotten en een karaktervolle houten balk. Daarnaast is hier een praktische wasruimte en een aparte technische ruimte gerealiseerd. Met onder andere zes zonnepanelen, energielabel A, nieuwe vloeren, grotendeels gestuukte wanden en een bouwjaar van 2008 is dit een instapklare woning waar comfort, duurzaamheid en een fijne ligging perfect samenkomen.
INDELING
BEGANE GROND
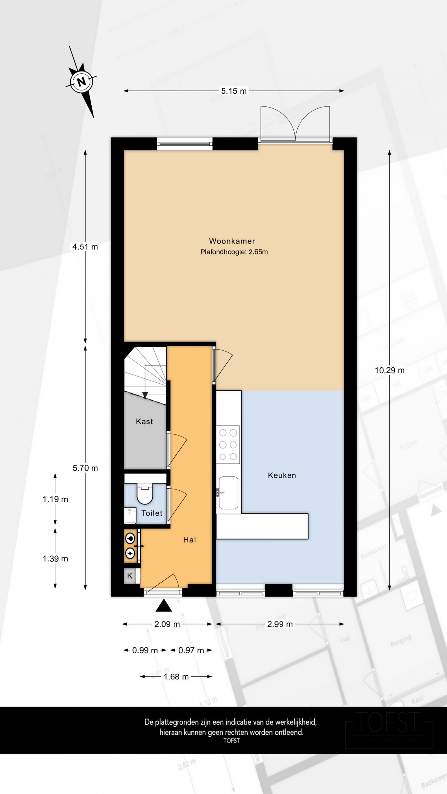
De voordeur is direct bereikbaar vanaf de straat en zorgt voor een binnenkomst in de entreehal. Vanuit hier is er toegang tot de woonkamer, de trap naar de 1e verdieping en het volledig betegelde toilet, dat extra is voorzien van een fonteintje. Tevens bevindt zich in de hal de meterkast en is er onder de trap een trapkast aanwezig. Achter de voordeur ligt een grote schoonloopmat met aansluitend een PVC vloer in visgraatmotief, die drempelloos is doorgetrokken naar de woonkamer. Onder deze vloer is vloerverwarming aanwezig en alle wanden en het plafond zijn gestuukt.
De woonkamer heeft een gezellige zithoek aan de achterzijde en beschikt over openslaande deuren naar de tuin. In het verlengde, richting de open keuken is er ruimte voor een eethoek en ook hier zijn alle wanden gestuukt. De keuken is opgesteld in een L-vorm en staat gedeeltelijk vrij. De bovenkasten zijn voorzien van verlichting en de achterwand is voorzien van een gladde, makkelijk afneembare plaat. Daarnaast is er diverse apparatuur aanwezig, zoals een vaatwasser, een een Quooker en te midden van het aanrechtblad staat er een Smeg gasfornuis met oven. Daarboven hangt een afzuigkap en de Amerikaanse koelkast is ter overname.
De achtertuin is nagenoeg onderhoudsvrij, waarbij de ondergrond deels is voorzien van kunstgras en deels is betegeld. De houten schuttingen rondom zorgen voor een afscheiding en er achterin de tuin staat een houten berging met verlichting en elektra. De achteruitgang geeft toegang tot het mandelig terrein, waar zich de eigen parkeerplaats bevindt.
1E VERDIEPING
Na de trapopgang is de overloop bereikbaar. Deze geeft toegang tot drie slaapkamers, de badkamer en de trap naar de 2e verdieping. Ook hier zijn alle wanden gestuukt en er ligt een laminaatvloer, die terug te vinden is in alle slaapkamers.
Alle drie de slaapkamers hebben gestuukte wanden en zijn verdeeld gelegen over de voor- en achterzijde.
De badkamer is grotendeels betegeld en uitgerust met een douche, een zwevend toilet en een wastafelmeubel. Het te openen raam zorgt naast daglicht ook voor natuurlijke ventilatie en daarnaast is er ook mechanische ventilatie aanwezig.
2E VERDIEPING
Hier is er een bovenkomst op een kleine overloop, die direct toegang biedt tot de vierde slaapkamer en de berging.
Deze ruime slaapkamer beschikt over een grote dakkapel met daaronder knieschotten voor extra opbergmogelijkheden. De houten balk is een fraai detail, op de vloer ligt vloerbedekking en alle wanden zijn gestuukt.
De ruime berging is voorzien van de wasmachine en droger aansluiting en biedt daarnaast voldoende ruimte voor een strijkplank, wasmanden en een droogrek. In deze ruimte is een aparte kast aanwezig, waarin zich de opstelling van de Cv-ketel bevindt.
BIJZONDERHEDEN
- Geheel voorzien van houten kozijnen met HR++ glas
- Alle ramen op de twee verdieping zijn voorzien van insectenhorren
- De begane grond (hal, woonkamer en keuken) is voorzien van vloerverwarming
- 6 zonnepanelen (2024)
- Cv-ketel (2020)
- Berging met verlichting en elektra
- Eigen parkeerplaats op mandelig terrein
- VvE bijdrage mandelig terrein €100,- per jaar
- Bijna alle wanden gestuukt en geschilderd (2024)
- Geheel voorzien van nieuwe vloeren (2024)
- Dakkapel over de gehele breedte van de woning geplaatst (2024)
- Wasruimte en aparte technische ruimte gecreëerd (2024)
- Riolering vervangen (2024)
- Alarminstallatie aanwezig
- Gelegen op eigen grond
- Bouwjaar 2008
- Energielabel A
- Oplevering in overleg
Woonoppervlakte
De Meetinstructie is gebaseerd op de NEN2580. De Meetinstructie is bedoeld om een meer eenduidige manier van meten toe te passen voor het geven van een indicatie van de gebruiksoppervlakte. De Meetinstructie sluit verschillen in meetuitkomsten niet volledig uit, door bijvoorbeeld interpretatieverschillen, afrondingen of beperkingen bij het uitvoeren van de meting. Indien de exacte maten voor een koper van cruciaal belang zijn, adviseren wij deze zelf na te meten. De (kandidaat)koper(s) zullen, indien gewenst, daartoe in de gelegenheid gesteld worden op een passend moment teneinde teleurstellingen en schade te voorkomen.
Ouderdomsclausule
Bij woningen ouder dan 30 jaar zal er standaard in de koopakte een ouderdomsclausule worden opgenomen.
Notariskeuze en kosten
In principe ligt de notariskeuze bij de koper. Het doorhalen van de hypothecaire inschrijving in het kadaster moet door de verkoper betaald worden. Zijn de kosten voor deze doorhaling hoger dan € 400,- inclusief BTW dan wordt het meerdere bij de koper in rekening gebracht. Indien de koper een notaris kiest buiten een straal van 20 kilometer van de verkochte onroerende zaak dan zijn de eventuele kosten die de notaris berekent voor een eventuele verkoopvolmacht en legalisatie hiervan ten behoeve van de verkoper voor rekening van de koper.
Zelfbewoningsplicht
Koper is bekend met de zelfbewoningsplicht welke vanaf 01-01-2023 binnen de gemeente Vlaardingen van kracht is. De verkopend makelaar heeft koper doorverwezen naar de gemeente Vlaardingen omtrent de desbetreffende regelgeving. Verkoper noch verkopend makelaar aanvaarden geen enkele aansprakelijkheid voor geleden schade wegens het niet juist naleven van deze zelfbewoningsplicht.
Gunning
Verkoper behoudt zich uitdrukkelijk het recht voor het object te gunnen aan de gegadigde van zijn keuze.
Nadrukkelijk zij vermeld dat alle informatie in deze brochure moet beschouwd worden als een uitnodiging tot het doen van een bod of om in onderhandeling te treden. Er kunnen geen rechten worden ontleend aan deze informatie.
Vlietlanden NVM Makelaars streeft ernaar de informatie op haar website / brochures en andere uitingen zo actueel en nauwkeurig mogelijk weer te geven. Hoewel de informatie met de grootst mogelijke zorgvuldigheid is samengesteld aanvaarden wij geen enkele aansprakelijkheid ten aanzien van de juistheid van de vermelde gegevens.
INDELING
BEGANE GROND
De voordeur is direct bereikbaar vanaf de straat en zorgt voor een binnenkomst in de entreehal. Vanuit hier is er toegang tot de woonkamer, de trap naar de 1e verdieping en het volledig betegelde toilet, dat extra is voorzien van een fonteintje. Tevens bevindt zich in de hal de meterkast en is er onder de trap een trapkast aanwezig. Achter de voordeur ligt een grote schoonloopmat met aansluitend een PVC vloer in visgraatmotief, die drempelloos is doorgetrokken naar de woonkamer. Onder deze vloer is vloerverwarming aanwezig en alle wanden en het plafond zijn gestuukt.
De woonkamer heeft een gezellige zithoek aan de achterzijde en beschikt over openslaande deuren naar de tuin. In het verlengde, richting de open keuken is er ruimte voor een eethoek en ook hier zijn alle wanden gestuukt. De keuken is opgesteld in een L-vorm en staat gedeeltelijk vrij. De bovenkasten zijn voorzien van verlichting en de achterwand is voorzien van een gladde, makkelijk afneembare plaat. Daarnaast is er diverse apparatuur aanwezig, zoals een vaatwasser, een een Quooker en te midden van het aanrechtblad staat er een Smeg gasfornuis met oven. Daarboven hangt een afzuigkap en de Amerikaanse koelkast is ter overname.
De achtertuin is nagenoeg onderhoudsvrij, waarbij de ondergrond deels is voorzien van kunstgras en deels is betegeld. De houten schuttingen rondom zorgen voor een afscheiding en er achterin de tuin staat een houten berging met verlichting en elektra. De achteruitgang geeft toegang tot het mandelig terrein, waar zich de eigen parkeerplaats bevindt.
1E VERDIEPING
Na de trapopgang is de overloop bereikbaar. Deze geeft toegang tot drie slaapkamers, de badkamer en de trap naar de 2e verdieping. Ook hier zijn alle wanden gestuukt en er ligt een laminaatvloer, die terug te vinden is in alle slaapkamers.
Alle drie de slaapkamers hebben gestuukte wanden en zijn verdeeld gelegen over de voor- en achterzijde.
De badkamer is grotendeels betegeld en uitgerust met een douche, een zwevend toilet en een wastafelmeubel. Het te openen raam zorgt naast daglicht ook voor natuurlijke ventilatie en daarnaast is er ook mechanische ventilatie aanwezig.
2E VERDIEPING
Hier is er een bovenkomst op een kleine overloop, die direct toegang biedt tot de vierde slaapkamer en de berging.
Deze ruime slaapkamer beschikt over een grote dakkapel met daaronder knieschotten voor extra opbergmogelijkheden. De houten balk is een fraai detail, op de vloer ligt vloerbedekking en alle wanden zijn gestuukt.
De ruime berging is voorzien van de wasmachine en droger aansluiting en biedt daarnaast voldoende ruimte voor een strijkplank, wasmanden en een droogrek. In deze ruimte is een aparte kast aanwezig, waarin zich de opstelling van de Cv-ketel bevindt.
BIJZONDERHEDEN
- Geheel voorzien van houten kozijnen met HR++ glas
- Alle ramen op de twee verdieping zijn voorzien van insectenhorren
- De begane grond (hal, woonkamer en keuken) is voorzien van vloerverwarming
- 6 zonnepanelen (2024)
- Cv-ketel (2020)
- Berging met verlichting en elektra
- Eigen parkeerplaats op mandelig terrein
- VvE bijdrage mandelig terrein €100,- per jaar
- Bijna alle wanden gestuukt en geschilderd (2024)
- Geheel voorzien van nieuwe vloeren (2024)
- Dakkapel over de gehele breedte van de woning geplaatst (2024)
- Wasruimte en aparte technische ruimte gecreëerd (2024)
- Riolering vervangen (2024)
- Alarminstallatie aanwezig
- Gelegen op eigen grond
- Bouwjaar 2008
- Energielabel A
- Oplevering in overleg
Woonoppervlakte
De Meetinstructie is gebaseerd op de NEN2580. De Meetinstructie is bedoeld om een meer eenduidige manier van meten toe te passen voor het geven van een indicatie van de gebruiksoppervlakte. De Meetinstructie sluit verschillen in meetuitkomsten niet volledig uit, door bijvoorbeeld interpretatieverschillen, afrondingen of beperkingen bij het uitvoeren van de meting. Indien de exacte maten voor een koper van cruciaal belang zijn, adviseren wij deze zelf na te meten. De (kandidaat)koper(s) zullen, indien gewenst, daartoe in de gelegenheid gesteld worden op een passend moment teneinde teleurstellingen en schade te voorkomen.
Ouderdomsclausule
Bij woningen ouder dan 30 jaar zal er standaard in de koopakte een ouderdomsclausule worden opgenomen.
Notariskeuze en kosten
In principe ligt de notariskeuze bij de koper. Het doorhalen van de hypothecaire inschrijving in het kadaster moet door de verkoper betaald worden. Zijn de kosten voor deze doorhaling hoger dan € 400,- inclusief BTW dan wordt het meerdere bij de koper in rekening gebracht. Indien de koper een notaris kiest buiten een straal van 20 kilometer van de verkochte onroerende zaak dan zijn de eventuele kosten die de notaris berekent voor een eventuele verkoopvolmacht en legalisatie hiervan ten behoeve van de verkoper voor rekening van de koper.
Zelfbewoningsplicht
Koper is bekend met de zelfbewoningsplicht welke vanaf 01-01-2023 binnen de gemeente Vlaardingen van kracht is. De verkopend makelaar heeft koper doorverwezen naar de gemeente Vlaardingen omtrent de desbetreffende regelgeving. Verkoper noch verkopend makelaar aanvaarden geen enkele aansprakelijkheid voor geleden schade wegens het niet juist naleven van deze zelfbewoningsplicht.
Gunning
Verkoper behoudt zich uitdrukkelijk het recht voor het object te gunnen aan de gegadigde van zijn keuze.
Nadrukkelijk zij vermeld dat alle informatie in deze brochure moet beschouwd worden als een uitnodiging tot het doen van een bod of om in onderhandeling te treden. Er kunnen geen rechten worden ontleend aan deze informatie.
Vlietlanden NVM Makelaars streeft ernaar de informatie op haar website / brochures en andere uitingen zo actueel en nauwkeurig mogelijk weer te geven. Hoewel de informatie met de grootst mogelijke zorgvuldigheid is samengesteld aanvaarden wij geen enkele aansprakelijkheid ten aanzien van de juistheid van de vermelde gegevens.
Kenmerken
Overdracht
- vraagprijs
- € 525.000 k.k.
- Status
- Verkocht onder voorbehoud
- Aanvaarding
- In overleg
Bouw
- Soort woning
- Eengezinswoning, tussenwoning
- Soort bouw
- Bestaande bouw
Oppervlakten en inhoud
- Woonoppervlakte
- 120 m²
- Externe bergruimte
- 6 m²
- Perceel
- 116 m²
- Inhoud
- 431 m³
Indeling
- Aantal kamers
- 5 kamers (4 slaapkamers)
- Aantal verdiepingen
- 3 Verdiepingen
- Voorzieningen
- Mechanische ventilatie, tv kabel, alarminstallatie
Energie
- Energielabel
- A
Buitenruimte
- Ligging
- Aan rustige weg, in centrum, in woonwijk
- Tuin
- Achtertuin
- Achtertuin
- 45 m² (8,65m Diep / 5,15m Breed)
- Ligging tuin
- Zuidwest
Garage
- Soort garage
- Geen garage
Parkeren
- Soort parkeergelegenheid
- Betaald parkeren, parkeervergunningen