van Slingelandtstraat 11 C
€ 218.500 k.k.
Vlaardingen
Portiekflat
56 m²
2 slaapkamers
In overleg
Wonen op een plek waar rust en groen samenkomen met alle dagelijkse voorzieningen binnen handbereik. Dit fijne 3-kamerappartement op de derde verdieping biedt precies dat. De omgeving is prettig en ruim opgezet, met veel groen, waterpartijen en voldoende parkeergelegenheid direct voor de deur. Winkels, het openbaar vervoer en de uitvalswegen bevinden zich op korte afstand, waardoor je hier rustig woont zonder in te leveren op bereikbaarheid. Het appartement zelf voelt licht en overzichtelijk aan en beschikt over twee slaapkamers, een gezellige woonkamer en een praktische keuken. Aan de achterzijde geniet je vanuit de woonkamer van een vrij en groen uitzicht over een brede vijver, wat zorgt voor een verrassend rustige sfeer. De schouw met moederhaard geeft de woonkamer extra karakter en warmte. Aan de voorzijde bevinden zich het balkon en een slaapkamer, ideaal om even buiten te zitten en het straatbeeld te volgen. Ook de keuken biedt toegang tot het balkon, wat het geheel extra praktisch maakt. Verder is het appartement volledig voorzien van kunststof kozijnen met dubbel glas, beschikt het over een externe berging op de begane grond en is de afgesloten entree netjes verzorgd met een bellentableau en brievenbussen. Een fijne plek voor wie comfortabel wil wonen in een groene, goed bereikbare wijk, met de mogelijkheid tot een snelle oplevering.
INDELING
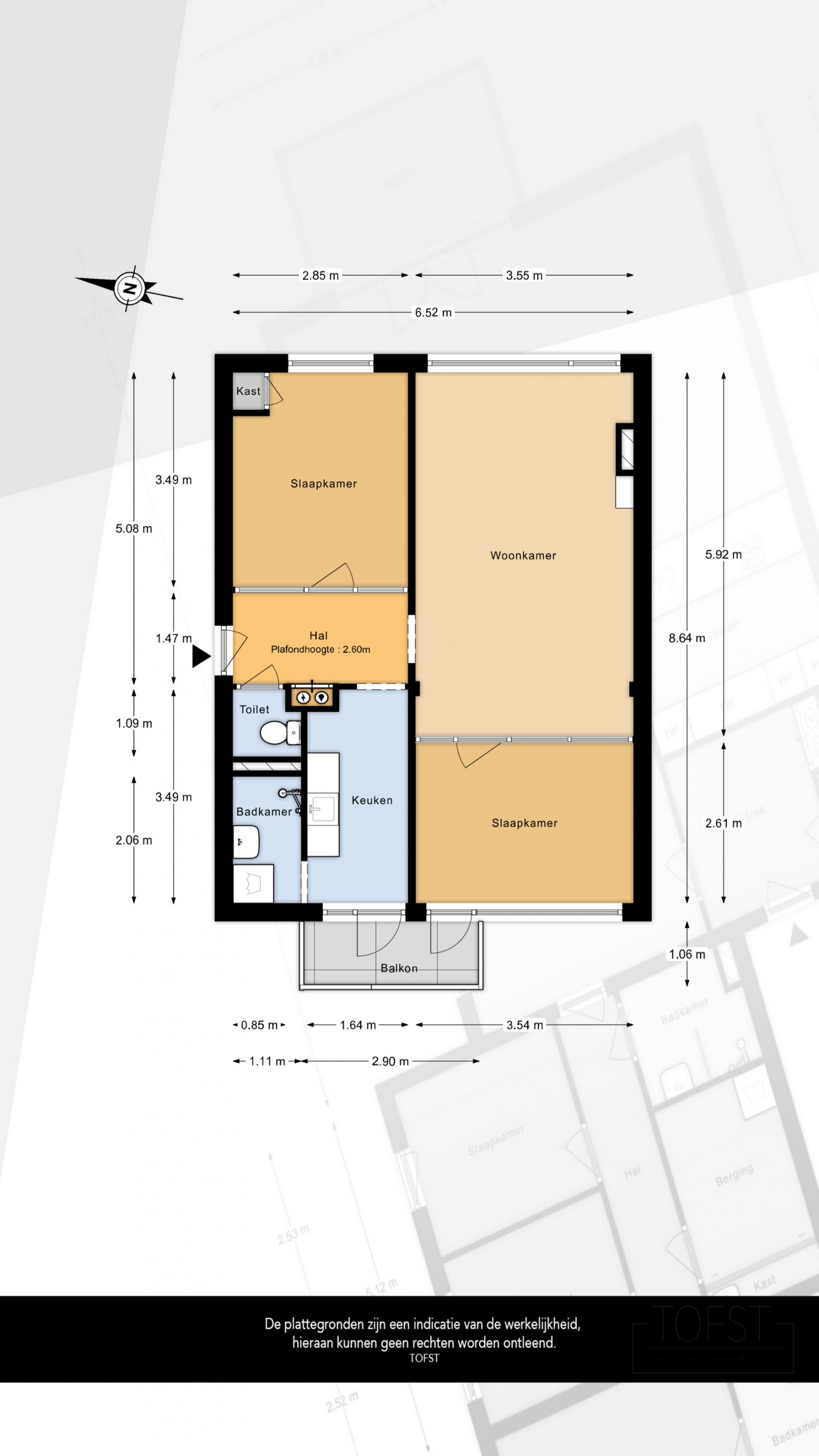
De afgesloten entree is voorzien van een bellentableau en de brievenbussen. Vanuit de entreehal is er een trap naar de verdiepingen en is de berging bereikbaar.
APPARTEMENT
Na de voordeur is er een binnenkomst in de entreehal. Deze geeft toegang tot de woonkamer, de keuken, twee slaapkamers en het toilet. In de entreehal bevindt zich de meterkast en de vloer is voorzien van vloerbedekking.
De woonkamer is gelegen aan de achterzijde en heeft een rustig uitzicht over het groen en een brede sloot. De schouw met moederhaard zorgt hier voor verwarming en vanuit de woonkamer is er toegang tot de aangrenzende slaapkamer. De wanden zijn behangen en de vloer is voorzien van vloerbedekking.
De eerste slaapkamer bevindt zich aan de voorzijde en heeft een deur naar het balkon. De wanden zijn gesausd en de vloer is voorzien van vloerbedekking. De tweede slaapkamer is gelegen naast de woonkamer, aan de achterzijde en beschikt over een vaste kast. De wanden zijn hier gesausd en op de vloer ligt vinyl.
De keuken beschikt over een recht keukenblok met bovenkasten. De wanden zijn halfhoog betegeld en er hangt een geiser voor warm water. Het plafond is afgewerkt met houten schroten en de vloer is voorzien van vinyl. Tevens is er een deur naar het balkon.
Het balkon is overdekt door het bovengelegen balkon en geeft uitzicht over de straat.
De badkamer is deels betegeld en uitgerust met een douche, een wastafel en de wasmachineaansluiting.
BIJZONDERHEDEN
- Volledig voorzien van kunststof kozijnen met dubbel glas
- Verwarming via een moederhaard
- Geiser voor warm water
- Balkon aan de voorzijde
- Externe berging
- Actieve VvE
- Gelegen op erfpachtgrond
- Bouwjaar 1956
- Energielabel E
- Oplevering kan snel
Woonoppervlakte
De Meetinstructie is gebaseerd op de NEN2580. De Meetinstructie is bedoeld om een meer eenduidige manier van meten toe te passen voor het geven van een indicatie van de gebruiksoppervlakte. De Meetinstructie sluit verschillen in meetuitkomsten niet volledig uit, door bijvoorbeeld interpretatieverschillen, afrondingen of beperkingen bij het uitvoeren van de meting. Indien de exacte maten voor een koper van cruciaal belang zijn, adviseren wij deze zelf na te meten. De (kandidaat)koper(s) zullen, indien gewenst, daartoe in de gelegenheid gesteld worden op een passend moment teneinde teleurstellingen en schade te voorkomen.
Ouderdomsclausule
Bij woningen ouder dan 30 jaar zal er standaard in de koopakte een ouderdomsclausule worden opgenomen.
Notariskeuze en kosten
In principe ligt de notariskeuze bij de koper. Het doorhalen van de hypothecaire inschrijving in het kadaster moet door de verkoper betaald worden. Zijn de kosten voor deze doorhaling hoger dan € 400,- inclusief BTW dan wordt het meerdere bij de koper in rekening gebracht. Indien de koper een notaris kiest buiten een straal van 20 kilometer van de verkochte onroerende zaak dan zijn de eventuele kosten die de notaris berekent voor een eventuele verkoopvolmacht en legalisatie hiervan ten behoeve van de verkoper voor rekening van de koper.
Zelfbewoningsplicht
Koper is bekend met de zelfbewoningsplicht welke vanaf 01-01-2023 binnen de gemeente Schiedam van kracht is. De verkopend makelaar heeft koper doorverwezen naar de gemeente Vlaardingen omtrent de desbetreffende regelgeving. Verkoper noch verkopend makelaar aanvaarden geen enkele aansprakelijkheid voor geleden schade wegens het niet juist naleven van deze zelfbewoningsplicht.
Gunning
Verkoper behoudt zich uitdrukkelijk het recht voor het object te gunnen aan de gegadigde van zijn keuze.
Nadrukkelijk zij vermeld dat alle informatie in deze brochure moet beschouwd worden als een uitnodiging tot het doen van een bod of om in onderhandeling te treden. Er kunnen geen rechten worden ontleend aan deze informatie.
Vlietlanden NVM Makelaars streeft ernaar de informatie op haar website / brochures en andere uitingen zo actueel en nauwkeurig mogelijk weer te geven. Hoewel de informatie met de grootst mogelijke zorgvuldigheid is samengesteld aanvaarden wij geen enkele aansprakelijkheid ten aanzien van de juistheid van de vermelde gegevens.
INDELING
De afgesloten entree is voorzien van een bellentableau en de brievenbussen. Vanuit de entreehal is er een trap naar de verdiepingen en is de berging bereikbaar.
APPARTEMENT
Na de voordeur is er een binnenkomst in de entreehal. Deze geeft toegang tot de woonkamer, de keuken, twee slaapkamers en het toilet. In de entreehal bevindt zich de meterkast en de vloer is voorzien van vloerbedekking.
De woonkamer is gelegen aan de achterzijde en heeft een rustig uitzicht over het groen en een brede sloot. De schouw met moederhaard zorgt hier voor verwarming en vanuit de woonkamer is er toegang tot de aangrenzende slaapkamer. De wanden zijn behangen en de vloer is voorzien van vloerbedekking.
De eerste slaapkamer bevindt zich aan de voorzijde en heeft een deur naar het balkon. De wanden zijn gesausd en de vloer is voorzien van vloerbedekking. De tweede slaapkamer is gelegen naast de woonkamer, aan de achterzijde en beschikt over een vaste kast. De wanden zijn hier gesausd en op de vloer ligt vinyl.
De keuken beschikt over een recht keukenblok met bovenkasten. De wanden zijn halfhoog betegeld en er hangt een geiser voor warm water. Het plafond is afgewerkt met houten schroten en de vloer is voorzien van vinyl. Tevens is er een deur naar het balkon.
Het balkon is overdekt door het bovengelegen balkon en geeft uitzicht over de straat.
De badkamer is deels betegeld en uitgerust met een douche, een wastafel en de wasmachineaansluiting.
BIJZONDERHEDEN
- Volledig voorzien van kunststof kozijnen met dubbel glas
- Verwarming via een moederhaard
- Geiser voor warm water
- Balkon aan de voorzijde
- Externe berging
- Actieve VvE
- Gelegen op erfpachtgrond
- Bouwjaar 1956
- Energielabel E
- Oplevering kan snel
Woonoppervlakte
De Meetinstructie is gebaseerd op de NEN2580. De Meetinstructie is bedoeld om een meer eenduidige manier van meten toe te passen voor het geven van een indicatie van de gebruiksoppervlakte. De Meetinstructie sluit verschillen in meetuitkomsten niet volledig uit, door bijvoorbeeld interpretatieverschillen, afrondingen of beperkingen bij het uitvoeren van de meting. Indien de exacte maten voor een koper van cruciaal belang zijn, adviseren wij deze zelf na te meten. De (kandidaat)koper(s) zullen, indien gewenst, daartoe in de gelegenheid gesteld worden op een passend moment teneinde teleurstellingen en schade te voorkomen.
Ouderdomsclausule
Bij woningen ouder dan 30 jaar zal er standaard in de koopakte een ouderdomsclausule worden opgenomen.
Notariskeuze en kosten
In principe ligt de notariskeuze bij de koper. Het doorhalen van de hypothecaire inschrijving in het kadaster moet door de verkoper betaald worden. Zijn de kosten voor deze doorhaling hoger dan € 400,- inclusief BTW dan wordt het meerdere bij de koper in rekening gebracht. Indien de koper een notaris kiest buiten een straal van 20 kilometer van de verkochte onroerende zaak dan zijn de eventuele kosten die de notaris berekent voor een eventuele verkoopvolmacht en legalisatie hiervan ten behoeve van de verkoper voor rekening van de koper.
Zelfbewoningsplicht
Koper is bekend met de zelfbewoningsplicht welke vanaf 01-01-2023 binnen de gemeente Schiedam van kracht is. De verkopend makelaar heeft koper doorverwezen naar de gemeente Vlaardingen omtrent de desbetreffende regelgeving. Verkoper noch verkopend makelaar aanvaarden geen enkele aansprakelijkheid voor geleden schade wegens het niet juist naleven van deze zelfbewoningsplicht.
Gunning
Verkoper behoudt zich uitdrukkelijk het recht voor het object te gunnen aan de gegadigde van zijn keuze.
Nadrukkelijk zij vermeld dat alle informatie in deze brochure moet beschouwd worden als een uitnodiging tot het doen van een bod of om in onderhandeling te treden. Er kunnen geen rechten worden ontleend aan deze informatie.
Vlietlanden NVM Makelaars streeft ernaar de informatie op haar website / brochures en andere uitingen zo actueel en nauwkeurig mogelijk weer te geven. Hoewel de informatie met de grootst mogelijke zorgvuldigheid is samengesteld aanvaarden wij geen enkele aansprakelijkheid ten aanzien van de juistheid van de vermelde gegevens.
Kenmerken
Overdracht
- vraagprijs
- € 218.500 k.k.
- Status
- Verkocht onder voorbehoud
- Aanvaarding
- In overleg
Bouw
- Soort woning
- Portiekflat, appartement
- Soort bouw
- Bestaande bouw
Oppervlakten en inhoud
- Woonoppervlakte
- 56 m²
- Externe bergruimte
- 10 m²
- Inhoud
- 180 m³
Indeling
- Aantal kamers
- 3 kamers (2 slaapkamers)
- Aantal verdiepingen
- 1 Verdiepingen
- Voorzieningen
- Tv kabel
Energie
- Energielabel
- E
- Isolatie
- Dubbel glas
Buitenruimte
- Ligging
- In woonwijk, vrij uitzicht
- Tuin
- Geen tuin
Garage
- Soort garage
- Geen garage
Parkeren
- Soort parkeergelegenheid
- Openbaar parkeren