2e van Leyden Gaelstraat 129
€ 345.000 k.k.
Vlaardingen
Eengezinswoning
104 m²
3 slaapkamers
Noordwest
In overleg
Stel je voor: wonen op een plek waar de charme van een rustige omgeving samenkomt met het gemak van alle voorzieningen om de hoek. Hier vind je supermarkten, scholen, sportvelden en fijne wandelroutes door het nabijgelegen groen, ideaal voor wie graag alles binnen handbereik heeft, maar toch de gezelligheid van een woonwijk zoekt. Ook op loopafstand van metro station (Vlaardingen Oost) die je direct tot hartje van Rotterdam brengt.
Deze hoekwoning biedt precies die combinatie en is bovendien een heerlijke kans voor de aanpakker die droomt van een eigen plekje dat helemaal naar wens kan worden opgeknapt. Achter de voordeur wacht een praktische basis met elementen zoals houten schroten, lambrisering en grote ramen die zorgen voor een prettige lichtinval. De woonkamer met originele schouw, de functionele keuken met doorgang naar de praktische bijkeuken, de inpandige badkamer én de extra gebruiksruimte maken dat je op de begane grond verrassend veel mogelijkheden hebt. Buiten ontdek je een diepe achtertuin met schutting, stenen border, een grote boom en toegang tot de berging én de zijsteeg. Een plek die met liefde en aandacht kan uitgroeien tot een heerlijk buitenverblijf. Op de eerste verdieping bevinden zich drie slaapkamers, allemaal voorzien van laminaat en behang, en twee kamers met louvredeurtjes aan de voorzijde. De overloop biedt extra bergruimte en zelfs de kans om jouw droom van een dakterras werkelijkheid te laten worden. Met voorzieningen als grotendeels dubbel glas, een Cv-ketel, kunststof kozijnen in de hoofdslaapkamer en de diepe tuin met berging, vormt dit huis een solide basis uit 1926 die wacht op iemand met een frisse blik en creatieve plannen.
Kortom, een woning vol potentie, gunstig gelegen en klaar om door jou omgetoverd te worden tot een heerlijke thuisplek.
INDELING
BEGANE GROND
De voordeur is direct bereikbaar vanaf de straat waarna er toegang is tot de afsluitbare entreehal, die doorloopt naar de hal met de trapopgang naar de verdieping en de deur naar de woonkamer. Een gedeelte van de wanden en het plafond zijn voorzien van houten schroten en aan de andere zijde is de wand voorzien van lambrisering en behang. Op de vloer ligt laminaat en in de entreehal liggen schoonloopmatten.
De woonkamer is gesitueerd aan de voorzijde en heeft twee hoge ramen die zicht bieden over de straat. De originele schouw is nog aanwezig, maar de moederhaard is weggehaald. De wanden zijn deels afwerkt met schroten en deels behangen, er is een systeemplafond aanwezig en er ligt een laminaatvloer. Vanuit de woonkamer is er een groot raam en een open toegang richting de keuken.
De keuken is opgesteld in een L-vorm waarbij de achterwand is betegeld en is voorzien van stopcontacten. Naast bovenkasten is er ook diverse apparatuur aanwezig en is er vanuit de keuken en directe toegang tot de bijkeuken. De wanden zijn voorzien van lambrisering en behang en op de vloer ligt vinyl.
De bijkeuken is een verbinding naar het gedeeltelijk betegelde toilet, de badkamer en de achtertuin. In deze ruimte bevindt zich een vaste kast en de wasmachine aansluiting met daarboven kasten. De wanden (deels) en de vloer zijn betegeld en de deur naar de tuin is voorzien van een hordeur.
De diepe achtertuin behoeft enige aandacht, maar heeft een mooie schutting als afscheiding naar de buren. De ondergrond is voorzien van tegels, achterin de tuin staat een grote boom en langs de schutting is een stenen border gemaakt voor beplanting. Daarnaast is er vanuit de tuin nog toegang tot de berging en er is een deur naar de zijsteeg richting de straat.
De inpandige badkamer is functioneel met een douche en een wastafelmeubel en is daarnaast de verbinding met de achtergelegen kamer. Dit hoorde voorheen bij de berging, maar deze is dichtgezet waardoor er een extra gebruiksruimte is ontstaan. Hier is dan ook verwarming aanwezig, de wanden zijn glad afgewerkt en er ligt een laminaatvloer.
1E VERDIEPING
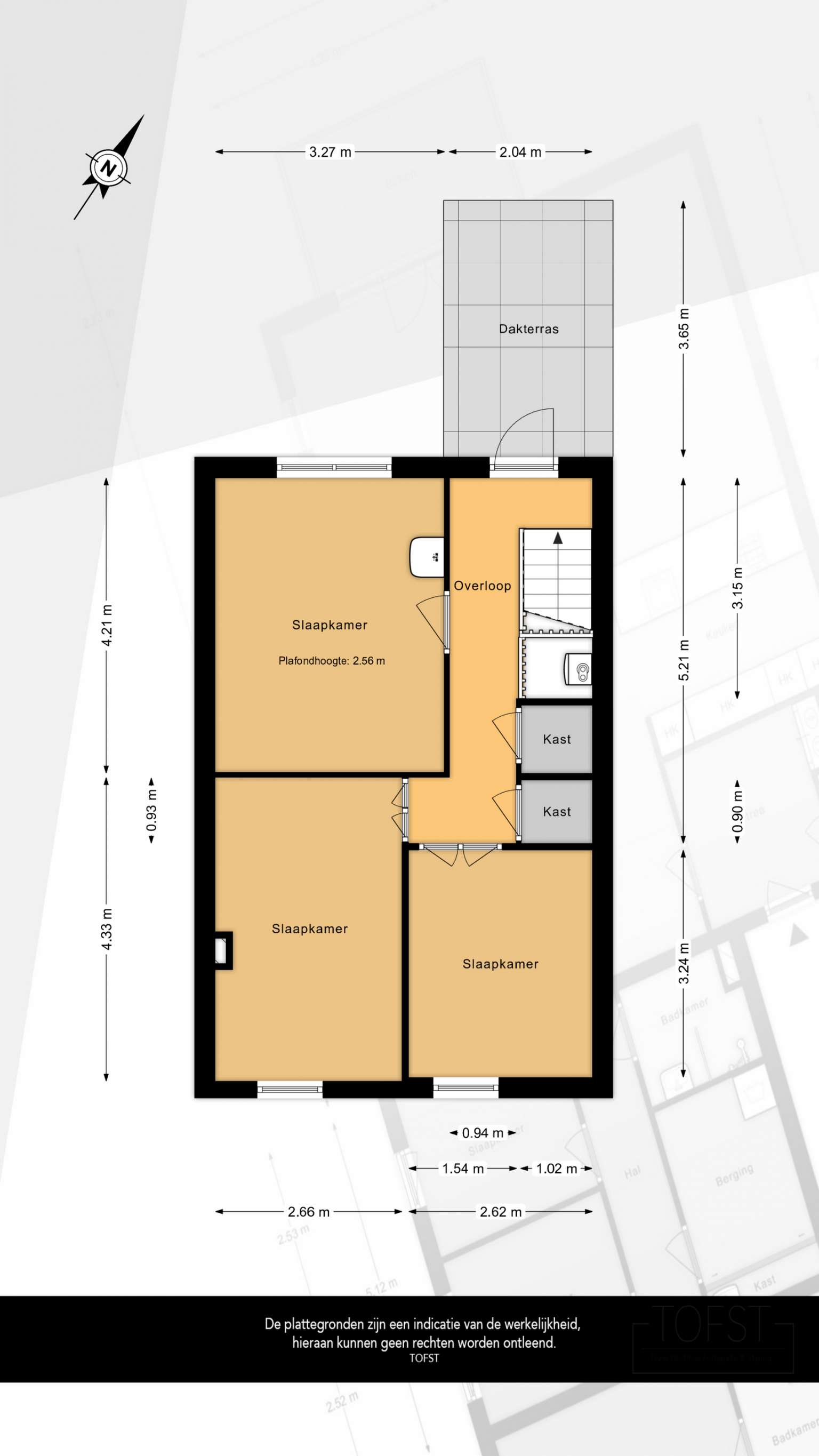
Na de trapopgang is de overloop bereikbaar die toegang geeft tot drie slaapkamers en het platte dak, waar eventueel een dakterras gecreëerd kan worden. Op de overloop bevindt zich de opstelling van de Cv-ketel en er zijn twee handige vaste kasten aanwezig. Ook hier is de vloer voorzien van laminaat en zijn de wanden deels afgewerkt met schroten en deels afgewerkt met lambrisering en behang.
De eerste twee slaapkamers zijn gelegen aan de voorzijde en zijn beide toegankelijk via openslaande louvredeurtjes. In beide kamers ligt laminaat en zijn de wanden behangen. De hoofdslaapkamer is gelegen aan de achterzijde en is net als de andere kamers afgewerkt met behang en laminaat. Daarnaast heeft deze kamer als extra nog een wastafel.
BIJZONDERHEDEN
- Grotendeels voorzien van dubbel glas
- Voorzetramen aan de voorzijde op de begane grond
- Kunststof kozijnen met dubbel glas in de hoofdslaapkamer
- Diepe achtertuin met berging
- De woning is geheel naar eigen wens op te knappen/in te richten
- Cv-ketel voor verwarming en warm water
- Erfpacht eeuwigdurend
- Bouwjaar 1926
- Oplevering in overleg
Woonoppervlakte
De Meetinstructie is gebaseerd op de NEN2580. De Meetinstructie is bedoeld om een meer eenduidige manier van meten toe te passen voor het geven van een indicatie van de gebruiksoppervlakte. De Meetinstructie sluit verschillen in meetuitkomsten niet volledig uit, door bijvoorbeeld interpretatieverschillen, afrondingen of beperkingen bij het uitvoeren van de meting. Indien de exacte maten voor een koper van cruciaal belang zijn, adviseren wij deze zelf na te meten. De (kandidaat)koper(s) zullen, indien gewenst, daartoe in de gelegenheid gesteld worden op een passend moment teneinde teleurstellingen en schade te voorkomen.
Ouderdomsclausule
Bij woningen ouder dan 30 jaar zal er standaard in de koopakte een ouderdomsclausule worden opgenomen.
Notariskeuze en kosten
In principe ligt de notariskeuze bij de koper. Het doorhalen van de hypothecaire inschrijving in het kadaster moet door de verkoper betaald worden. Zijn de kosten voor deze doorhaling hoger dan € 400,- inclusief BTW dan wordt het meerdere bij de koper in rekening gebracht. Indien de koper een notaris kiest buiten een straal van 20 kilometer van de verkochte onroerende zaak dan zijn de eventuele kosten die de notaris berekent voor een eventuele verkoopvolmacht en legalisatie hiervan ten behoeve van de verkoper voor rekening van de koper.
Zelfbewoningsplicht
Koper is bekend met de zelfbewoningsplicht welke vanaf 01-01-2023 binnen de gemeente Vlaardingen van kracht is. De verkopend makelaar heeft koper doorverwezen naar de gemeente Vlaardingen omtrent de desbetreffende regelgeving. Verkoper noch verkopend makelaar aanvaarden geen enkele aansprakelijkheid voor geleden schade wegens het niet juist naleven van deze zelfbewoningsplicht.
Gunning
Verkoper behoudt zich uitdrukkelijk het recht voor het object te gunnen aan de gegadigde van zijn keuze.
Nadrukkelijk zij vermeld dat alle informatie in deze brochure moet beschouwd worden als een uitnodiging tot het doen van een bod of om in onderhandeling te treden. Er kunnen geen rechten worden ontleend aan deze informatie.
Vlietlanden NVM Makelaars streeft ernaar de informatie op haar website / brochures en andere uitingen zo actueel en nauwkeurig mogelijk weer te geven. Hoewel de informatie met de grootst mogelijke zorgvuldigheid is samengesteld aanvaarden wij geen enkele aansprakelijkheid ten aanzien van de juistheid van de vermelde gegevens.
Deze hoekwoning biedt precies die combinatie en is bovendien een heerlijke kans voor de aanpakker die droomt van een eigen plekje dat helemaal naar wens kan worden opgeknapt. Achter de voordeur wacht een praktische basis met elementen zoals houten schroten, lambrisering en grote ramen die zorgen voor een prettige lichtinval. De woonkamer met originele schouw, de functionele keuken met doorgang naar de praktische bijkeuken, de inpandige badkamer én de extra gebruiksruimte maken dat je op de begane grond verrassend veel mogelijkheden hebt. Buiten ontdek je een diepe achtertuin met schutting, stenen border, een grote boom en toegang tot de berging én de zijsteeg. Een plek die met liefde en aandacht kan uitgroeien tot een heerlijk buitenverblijf. Op de eerste verdieping bevinden zich drie slaapkamers, allemaal voorzien van laminaat en behang, en twee kamers met louvredeurtjes aan de voorzijde. De overloop biedt extra bergruimte en zelfs de kans om jouw droom van een dakterras werkelijkheid te laten worden. Met voorzieningen als grotendeels dubbel glas, een Cv-ketel, kunststof kozijnen in de hoofdslaapkamer en de diepe tuin met berging, vormt dit huis een solide basis uit 1926 die wacht op iemand met een frisse blik en creatieve plannen.
Kortom, een woning vol potentie, gunstig gelegen en klaar om door jou omgetoverd te worden tot een heerlijke thuisplek.
INDELING
BEGANE GROND
De voordeur is direct bereikbaar vanaf de straat waarna er toegang is tot de afsluitbare entreehal, die doorloopt naar de hal met de trapopgang naar de verdieping en de deur naar de woonkamer. Een gedeelte van de wanden en het plafond zijn voorzien van houten schroten en aan de andere zijde is de wand voorzien van lambrisering en behang. Op de vloer ligt laminaat en in de entreehal liggen schoonloopmatten.
De woonkamer is gesitueerd aan de voorzijde en heeft twee hoge ramen die zicht bieden over de straat. De originele schouw is nog aanwezig, maar de moederhaard is weggehaald. De wanden zijn deels afwerkt met schroten en deels behangen, er is een systeemplafond aanwezig en er ligt een laminaatvloer. Vanuit de woonkamer is er een groot raam en een open toegang richting de keuken.
De keuken is opgesteld in een L-vorm waarbij de achterwand is betegeld en is voorzien van stopcontacten. Naast bovenkasten is er ook diverse apparatuur aanwezig en is er vanuit de keuken en directe toegang tot de bijkeuken. De wanden zijn voorzien van lambrisering en behang en op de vloer ligt vinyl.
De bijkeuken is een verbinding naar het gedeeltelijk betegelde toilet, de badkamer en de achtertuin. In deze ruimte bevindt zich een vaste kast en de wasmachine aansluiting met daarboven kasten. De wanden (deels) en de vloer zijn betegeld en de deur naar de tuin is voorzien van een hordeur.
De diepe achtertuin behoeft enige aandacht, maar heeft een mooie schutting als afscheiding naar de buren. De ondergrond is voorzien van tegels, achterin de tuin staat een grote boom en langs de schutting is een stenen border gemaakt voor beplanting. Daarnaast is er vanuit de tuin nog toegang tot de berging en er is een deur naar de zijsteeg richting de straat.
De inpandige badkamer is functioneel met een douche en een wastafelmeubel en is daarnaast de verbinding met de achtergelegen kamer. Dit hoorde voorheen bij de berging, maar deze is dichtgezet waardoor er een extra gebruiksruimte is ontstaan. Hier is dan ook verwarming aanwezig, de wanden zijn glad afgewerkt en er ligt een laminaatvloer.
1E VERDIEPING
Na de trapopgang is de overloop bereikbaar die toegang geeft tot drie slaapkamers en het platte dak, waar eventueel een dakterras gecreëerd kan worden. Op de overloop bevindt zich de opstelling van de Cv-ketel en er zijn twee handige vaste kasten aanwezig. Ook hier is de vloer voorzien van laminaat en zijn de wanden deels afgewerkt met schroten en deels afgewerkt met lambrisering en behang.
De eerste twee slaapkamers zijn gelegen aan de voorzijde en zijn beide toegankelijk via openslaande louvredeurtjes. In beide kamers ligt laminaat en zijn de wanden behangen. De hoofdslaapkamer is gelegen aan de achterzijde en is net als de andere kamers afgewerkt met behang en laminaat. Daarnaast heeft deze kamer als extra nog een wastafel.
BIJZONDERHEDEN
- Grotendeels voorzien van dubbel glas
- Voorzetramen aan de voorzijde op de begane grond
- Kunststof kozijnen met dubbel glas in de hoofdslaapkamer
- Diepe achtertuin met berging
- De woning is geheel naar eigen wens op te knappen/in te richten
- Cv-ketel voor verwarming en warm water
- Erfpacht eeuwigdurend
- Bouwjaar 1926
- Oplevering in overleg
Woonoppervlakte
De Meetinstructie is gebaseerd op de NEN2580. De Meetinstructie is bedoeld om een meer eenduidige manier van meten toe te passen voor het geven van een indicatie van de gebruiksoppervlakte. De Meetinstructie sluit verschillen in meetuitkomsten niet volledig uit, door bijvoorbeeld interpretatieverschillen, afrondingen of beperkingen bij het uitvoeren van de meting. Indien de exacte maten voor een koper van cruciaal belang zijn, adviseren wij deze zelf na te meten. De (kandidaat)koper(s) zullen, indien gewenst, daartoe in de gelegenheid gesteld worden op een passend moment teneinde teleurstellingen en schade te voorkomen.
Ouderdomsclausule
Bij woningen ouder dan 30 jaar zal er standaard in de koopakte een ouderdomsclausule worden opgenomen.
Notariskeuze en kosten
In principe ligt de notariskeuze bij de koper. Het doorhalen van de hypothecaire inschrijving in het kadaster moet door de verkoper betaald worden. Zijn de kosten voor deze doorhaling hoger dan € 400,- inclusief BTW dan wordt het meerdere bij de koper in rekening gebracht. Indien de koper een notaris kiest buiten een straal van 20 kilometer van de verkochte onroerende zaak dan zijn de eventuele kosten die de notaris berekent voor een eventuele verkoopvolmacht en legalisatie hiervan ten behoeve van de verkoper voor rekening van de koper.
Zelfbewoningsplicht
Koper is bekend met de zelfbewoningsplicht welke vanaf 01-01-2023 binnen de gemeente Vlaardingen van kracht is. De verkopend makelaar heeft koper doorverwezen naar de gemeente Vlaardingen omtrent de desbetreffende regelgeving. Verkoper noch verkopend makelaar aanvaarden geen enkele aansprakelijkheid voor geleden schade wegens het niet juist naleven van deze zelfbewoningsplicht.
Gunning
Verkoper behoudt zich uitdrukkelijk het recht voor het object te gunnen aan de gegadigde van zijn keuze.
Nadrukkelijk zij vermeld dat alle informatie in deze brochure moet beschouwd worden als een uitnodiging tot het doen van een bod of om in onderhandeling te treden. Er kunnen geen rechten worden ontleend aan deze informatie.
Vlietlanden NVM Makelaars streeft ernaar de informatie op haar website / brochures en andere uitingen zo actueel en nauwkeurig mogelijk weer te geven. Hoewel de informatie met de grootst mogelijke zorgvuldigheid is samengesteld aanvaarden wij geen enkele aansprakelijkheid ten aanzien van de juistheid van de vermelde gegevens.
Kenmerken
Overdracht
- vraagprijs
- € 345.000 k.k.
- Status
- Beschikbaar
- Aanvaarding
- In overleg
Bouw
- Soort woning
- Eengezinswoning, hoekwoning
- Soort bouw
- Bestaande bouw
Oppervlakten en inhoud
- Woonoppervlakte
- 104 m²
- Perceel
- 116 m²
- Inhoud
- 396 m³
Indeling
- Aantal kamers
- 5 kamers (3 slaapkamers)
- Aantal verdiepingen
- 2 Verdiepingen
- Voorzieningen
- Tv kabel
Energie
- Energielabel
- G
- Isolatie
- Gedeeltelijk dubbel glas
Buitenruimte
- Ligging
- In woonwijk
- Tuin
- Achtertuin
- Achtertuin
- 31 m² (12m Diep / 2,62m Breed)
- Ligging tuin
- Noordwest
Garage
- Soort garage
- Geen garage
Parkeren
- Soort parkeergelegenheid
- Openbaar parkeren, betaald parkeren, parkeervergunningen