Schiedamseweg 248 A
€ 315.000 k.k.
Vlaardingen
Galerijflat
66 m²
2 slaapkamers
In overleg
Wonen in een heerlijk licht en verzorgd appartement op een plek waar alles binnen handbereik is: dat kan hier! Dit fijne 3-kamer appartement op de vierde woonlaag ligt pal naast het metrostation, waardoor je met een paar stappen op weg bent naar Rotterdam of Hoek van Holland. Ook de uitvalswegen zijn dichtbij en binnen enkele minuten wandel je zo het gezellige Van Hogendorpkwartier op, met zijn mix van winkels, horeca en dagelijkse voorzieningen. Rondom het complex kun je bovendien altijd gemakkelijk en gratis parkeren, wat het woongenot alleen maar groter maakt. Het appartement zelf voelt meteen prettig aan, mede dankzij het overdekte balkon met levendig uitzicht over de wijk, de gestuukte wanden en de stijlvolle marmerlook laminaatvloer die in meerdere ruimtes is doorgelegd. De keuken is volledig betegeld en uitgerust met diverse apparatuur, waardoor koken hier met gemak een feestje wordt. Verder is er een nette badkamer met alle comfort, twee fijne slaapkamers en een praktische indeling die voor elk type bewoner geschikt is. Extra pluspunten zijn de vernieuwde afwerkingen van de afgelopen jaren, zoals het opnieuw gestuukte en geschilderde interieur, de vernieuwde keukenapparatuur, het vers betegelde balkon en de recent geplaatste binnendeuren. De externe berging met verlichting en de gezamenlijke fietsenstalling zorgen voor extra gemak, terwijl het energielabel B, de actieve VvE en de ligging in een verzorgd complex het geheel compleet maken. Kortom: een heerlijke woonplek waar comfort, gemak en bereikbaarheid hand in hand gaan.
INDELING
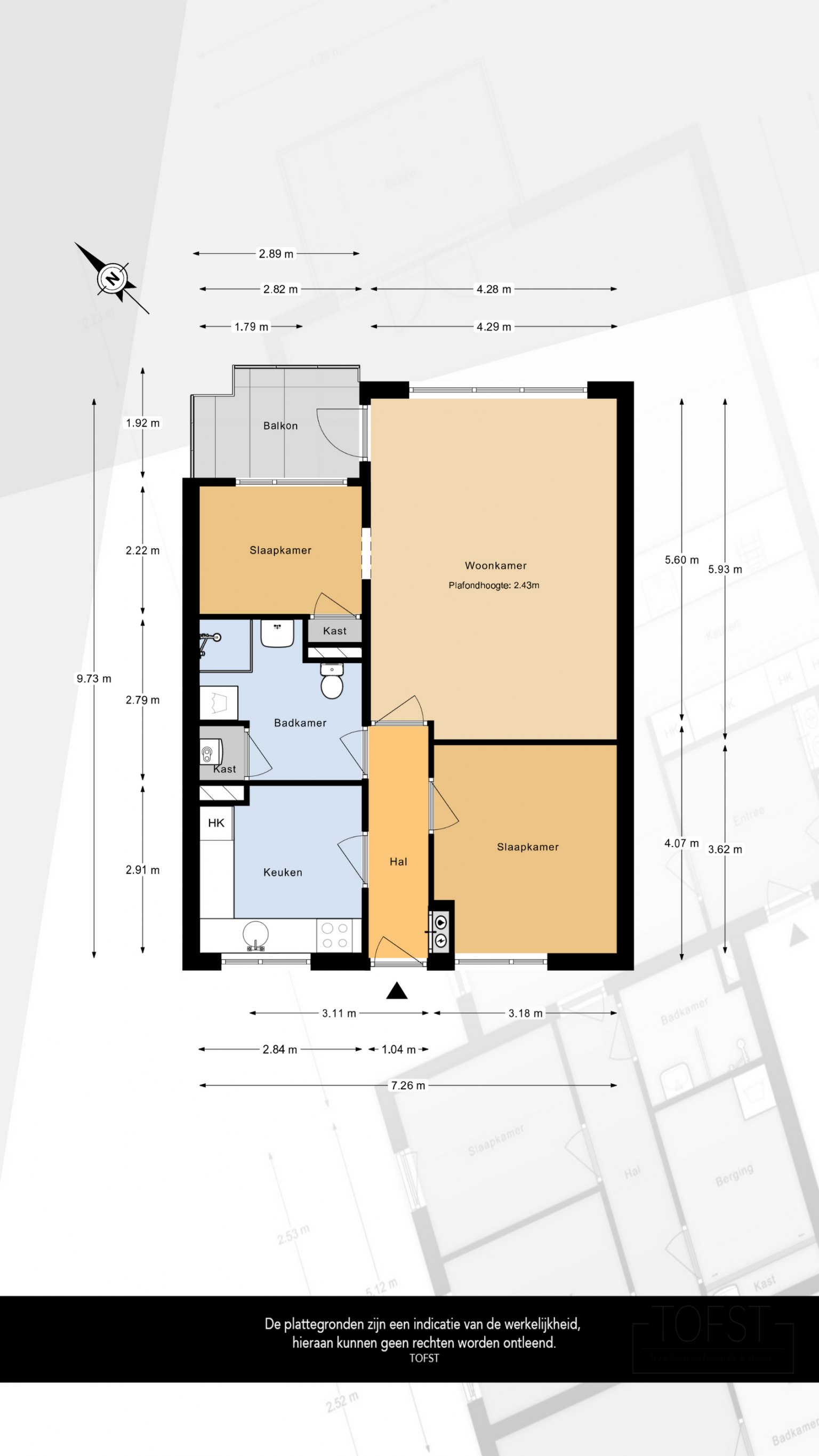
De centrale entree is aan de buitenzijde afgesloten en voorzien van een bellentableau en de brievenbussen. Vanuit de centrale entree is er een lift en een trap naar de verdiepingen en er is een brandtrap aanwezig in de galerijen.
APPARTEMENT
Vanaf de overdekte galerij is de voordeur bereikbaar, waarna er een binnenkomst is in de afsluitbare entreehal. Deze geeft toegang tot de woonkamer, de keuken, de badkamer en de eerste slaapkamer. In de hal bevindt zich de meterkast, de wanden zijn hier gestuukt en er ligt een tegelvloer, die is doorgetrokken naar de keuken en de badkamer.
De woonkamer is gelegen aan straatzijde en heeft toegang tot het overdekte balkon met een levendig uitzicht over de wijk. De wanden zijn hier gestuukt en op de vloer ligt een marmerlook laminaatvloer, die is doorgetrokken naar de aangrenzende tweede slaapkamer met een vaste kast, waarbij ook hier de wanden zijn gestuukt.
De keuken is opgesteld in een hoek en de ruimte is hier volledig betegeld. Er is de beschikking over twee hoge kasten en bovenkasten. Daarnaast is er diverse apparatuur aanwezig , zoals een oven, een magnetron, een koelkast, een vaatwasser, een inductiekookplaat en een afzuigkap.
De volledig betegelde badkamer is uitgerust met een douchecabine, een wastafelmeubel, een zwevend toilet en een handdoeken radiator. Daarnaast bevinden zich hier de aansluitingen voor de wasmachine en de droger en er is een vaste kast aanwezig, met daarin de opstelling van de Cv-ketel.
De eerste slaapkamer is gelegen aan de galerijzijde en heeft net als de tweede slaapkamer, gestuukte wanden en een marmerlook laminaatvloer.
BIJZONDERHEDEN
- Volledig voorzien van houten kozijnen met dubbel glas
- Het balkon is opnieuw betegeld (2023)
- Opnieuw gestuukt en geschilderd (2022)
- Nieuwe stopcontacten geplaatst in de woonkamer (2022)
- Vaatwasser, inductiekookplaat en afzuigkap vernieuwd (2022)
- Nieuwe binnendeuren geplaatst (2025)
- Cv-ketel (2018)
- Externe berging met verlichting
- Gezamenlijke fietsenstalling
- Vrij parkeren rondom het complex
- Actieve VvE (bijdrage €194,- per maand)
- Eigendom
- Bouwjaar 1989
- Energielabel B
- Oplevering in overleg
Woonoppervlakte
De Meetinstructie is gebaseerd op de NEN2580. De Meetinstructie is bedoeld om een meer eenduidige manier van meten toe te passen voor het geven van een indicatie van de gebruiksoppervlakte. De Meetinstructie sluit verschillen in meetuitkomsten niet volledig uit, door bijvoorbeeld interpretatieverschillen, afrondingen of beperkingen bij het uitvoeren van de meting. Indien de exacte maten voor een koper van cruciaal belang zijn, adviseren wij deze zelf na te meten. De (kandidaat)koper(s) zullen, indien gewenst, daartoe in de gelegenheid gesteld worden op een passend moment teneinde teleurstellingen en schade te voorkomen.
Ouderdomsclausule
Bij woningen ouder dan 30 jaar zal er standaard in de koopakte een ouderdomsclausule worden opgenomen.
Notariskeuze en kosten
In principe ligt de notariskeuze bij de koper. Het doorhalen van de hypothecaire inschrijving in het kadaster moet door de verkoper betaald worden. Zijn de kosten voor deze doorhaling hoger dan € 400,- inclusief BTW dan wordt het meerdere bij de koper in rekening gebracht. Indien de koper een notaris kiest buiten een straal van 20 kilometer van de verkochte onroerende zaak dan zijn de eventuele kosten die de notaris berekent voor een eventuele verkoopvolmacht en legalisatie hiervan ten behoeve van de verkoper voor rekening van de koper.
Zelfbewoningsplicht
Koper is bekend met de zelfbewoningsplicht welke vanaf 01-01-2023 binnen de gemeente Vlaardingen van kracht is. De verkopend makelaar heeft koper doorverwezen naar de gemeente Vlaardingen omtrent de desbetreffende regelgeving. Verkoper noch verkopend makelaar aanvaarden geen enkele aansprakelijkheid voor geleden schade wegens het niet juist naleven van deze zelfbewoningsplicht.
Gunning
Verkoper behoudt zich uitdrukkelijk het recht voor het object te gunnen aan de gegadigde van zijn keuze.
Nadrukkelijk zij vermeld dat alle informatie in deze brochure moet beschouwd worden als een uitnodiging tot het doen van een bod of om in onderhandeling te treden. Er kunnen geen rechten worden ontleend aan deze informatie.
Vlietlanden NVM Makelaars streeft ernaar de informatie op haar website / brochures en andere uitingen zo actueel en nauwkeurig mogelijk weer te geven. Hoewel de informatie met de grootst mogelijke zorgvuldigheid is samengesteld aanvaarden wij geen enkele aansprakelijkheid ten aanzien van de juistheid van de vermelde gegevens.
INDELING
De centrale entree is aan de buitenzijde afgesloten en voorzien van een bellentableau en de brievenbussen. Vanuit de centrale entree is er een lift en een trap naar de verdiepingen en er is een brandtrap aanwezig in de galerijen.
APPARTEMENT
Vanaf de overdekte galerij is de voordeur bereikbaar, waarna er een binnenkomst is in de afsluitbare entreehal. Deze geeft toegang tot de woonkamer, de keuken, de badkamer en de eerste slaapkamer. In de hal bevindt zich de meterkast, de wanden zijn hier gestuukt en er ligt een tegelvloer, die is doorgetrokken naar de keuken en de badkamer.
De woonkamer is gelegen aan straatzijde en heeft toegang tot het overdekte balkon met een levendig uitzicht over de wijk. De wanden zijn hier gestuukt en op de vloer ligt een marmerlook laminaatvloer, die is doorgetrokken naar de aangrenzende tweede slaapkamer met een vaste kast, waarbij ook hier de wanden zijn gestuukt.
De keuken is opgesteld in een hoek en de ruimte is hier volledig betegeld. Er is de beschikking over twee hoge kasten en bovenkasten. Daarnaast is er diverse apparatuur aanwezig , zoals een oven, een magnetron, een koelkast, een vaatwasser, een inductiekookplaat en een afzuigkap.
De volledig betegelde badkamer is uitgerust met een douchecabine, een wastafelmeubel, een zwevend toilet en een handdoeken radiator. Daarnaast bevinden zich hier de aansluitingen voor de wasmachine en de droger en er is een vaste kast aanwezig, met daarin de opstelling van de Cv-ketel.
De eerste slaapkamer is gelegen aan de galerijzijde en heeft net als de tweede slaapkamer, gestuukte wanden en een marmerlook laminaatvloer.
BIJZONDERHEDEN
- Volledig voorzien van houten kozijnen met dubbel glas
- Het balkon is opnieuw betegeld (2023)
- Opnieuw gestuukt en geschilderd (2022)
- Nieuwe stopcontacten geplaatst in de woonkamer (2022)
- Vaatwasser, inductiekookplaat en afzuigkap vernieuwd (2022)
- Nieuwe binnendeuren geplaatst (2025)
- Cv-ketel (2018)
- Externe berging met verlichting
- Gezamenlijke fietsenstalling
- Vrij parkeren rondom het complex
- Actieve VvE (bijdrage €194,- per maand)
- Eigendom
- Bouwjaar 1989
- Energielabel B
- Oplevering in overleg
Woonoppervlakte
De Meetinstructie is gebaseerd op de NEN2580. De Meetinstructie is bedoeld om een meer eenduidige manier van meten toe te passen voor het geven van een indicatie van de gebruiksoppervlakte. De Meetinstructie sluit verschillen in meetuitkomsten niet volledig uit, door bijvoorbeeld interpretatieverschillen, afrondingen of beperkingen bij het uitvoeren van de meting. Indien de exacte maten voor een koper van cruciaal belang zijn, adviseren wij deze zelf na te meten. De (kandidaat)koper(s) zullen, indien gewenst, daartoe in de gelegenheid gesteld worden op een passend moment teneinde teleurstellingen en schade te voorkomen.
Ouderdomsclausule
Bij woningen ouder dan 30 jaar zal er standaard in de koopakte een ouderdomsclausule worden opgenomen.
Notariskeuze en kosten
In principe ligt de notariskeuze bij de koper. Het doorhalen van de hypothecaire inschrijving in het kadaster moet door de verkoper betaald worden. Zijn de kosten voor deze doorhaling hoger dan € 400,- inclusief BTW dan wordt het meerdere bij de koper in rekening gebracht. Indien de koper een notaris kiest buiten een straal van 20 kilometer van de verkochte onroerende zaak dan zijn de eventuele kosten die de notaris berekent voor een eventuele verkoopvolmacht en legalisatie hiervan ten behoeve van de verkoper voor rekening van de koper.
Zelfbewoningsplicht
Koper is bekend met de zelfbewoningsplicht welke vanaf 01-01-2023 binnen de gemeente Vlaardingen van kracht is. De verkopend makelaar heeft koper doorverwezen naar de gemeente Vlaardingen omtrent de desbetreffende regelgeving. Verkoper noch verkopend makelaar aanvaarden geen enkele aansprakelijkheid voor geleden schade wegens het niet juist naleven van deze zelfbewoningsplicht.
Gunning
Verkoper behoudt zich uitdrukkelijk het recht voor het object te gunnen aan de gegadigde van zijn keuze.
Nadrukkelijk zij vermeld dat alle informatie in deze brochure moet beschouwd worden als een uitnodiging tot het doen van een bod of om in onderhandeling te treden. Er kunnen geen rechten worden ontleend aan deze informatie.
Vlietlanden NVM Makelaars streeft ernaar de informatie op haar website / brochures en andere uitingen zo actueel en nauwkeurig mogelijk weer te geven. Hoewel de informatie met de grootst mogelijke zorgvuldigheid is samengesteld aanvaarden wij geen enkele aansprakelijkheid ten aanzien van de juistheid van de vermelde gegevens.
Kenmerken
Overdracht
- vraagprijs
- € 315.000 k.k.
- Status
- Beschikbaar
- Aanvaarding
- In overleg
Bouw
- Soort woning
- Galerijflat, appartement
- Soort bouw
- Bestaande bouw
Oppervlakten en inhoud
- Woonoppervlakte
- 66 m²
- Externe bergruimte
- 6 m²
- Inhoud
- 199 m³
Indeling
- Aantal kamers
- 3 kamers (2 slaapkamers)
- Aantal verdiepingen
- 1 Verdiepingen
- Voorzieningen
- Tv kabel, lift
Energie
- Energielabel
- B
- Isolatie
- Dubbel glas
Buitenruimte
- Ligging
- Vrij uitzicht
- Tuin
- Geen tuin
Garage
- Soort garage
- Geen garage
Parkeren
- Soort parkeergelegenheid
- Openbaar parkeren