Broekweg 76
€ 215.000 k.k.
Vlaardingen
Benedenwoning
67 m²
1 slaapkamer
Zuidoost
In overleg
Ben jij handig en op zoek naar een woning die je volledig naar eigen smaak kunt creëren? Dan is deze benedenwoning van ca. 67 m² in het hart van Vlaardingen een unieke kans. Een voormalige kantoorruimte met woonbestemming, klaar voor een complete transformatie naar een volwaardig 3-kamerappartement mét fijne achtertuin.
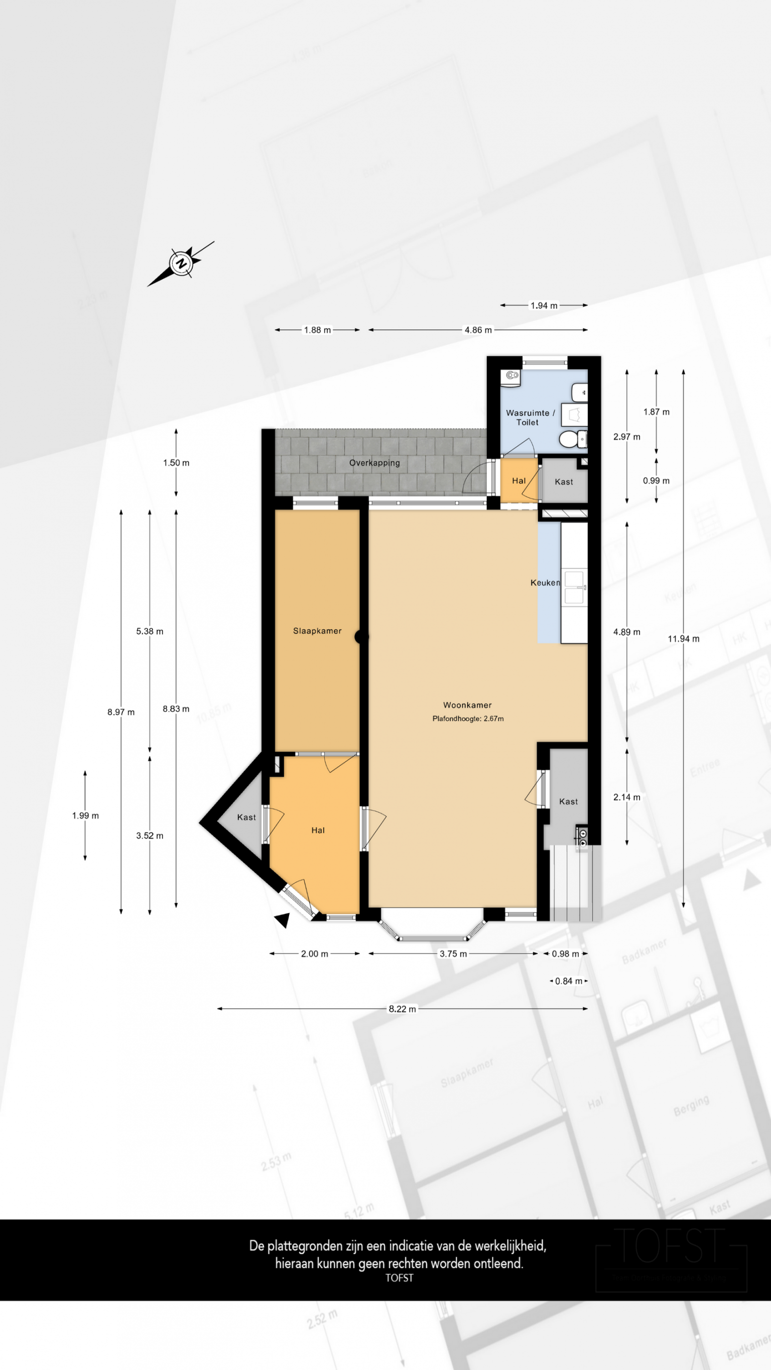
De huidige indeling bestaat uit een entree met hal, bergkast en garderoberuimte, een ruime woonkamer en één slaapkamer. Met een slimme herindeling realiseer je eenvoudig twee slaapkamers en een open woonkeuken aan de achterzijde, direct grenzend aan de tuin. Op de plek van het huidige toilet kan een badkamer worden gecreëerd, waardoor een logische en moderne indeling ontstaat. Hier heb je de vrijheid om alles naar eigen wens vorm te geven.
De ligging is ideaal: midden in het centrum van Vlaardingen, op loopafstand van winkels, supermarkten, horeca, bioscoop, theater, zwembad en openbaar vervoer (bus en metro). Binnen enkele minuten bereik je de A4 en A20, waardoor steden als Rotterdam, Delft en het strand van Hoek van Holland snel bereikbaar zijn.
Kortom: een perfecte kans voor de handige koper die op zoek is naar ruimte, locatie én mogelijkheden.
BIJZONDERHEDEN:
- Woonoppervlakte van ca. 67 vierkante meter
- Volledig voorzien van kunststof kozijnen met dubbel isolerend glas aan de voorzijde, achterzijde van hout.
- Voorzien van CV-combiketel Remeha Avanti 2018
- Mogelijkheid tot het realiseren van een 3-kamerappartement
- Actieve Vereniging van Eigenaren, bijdrage van € 250 per maand
- Achtertuin gelegen op zuidoost
- Gelegen op eigen grond
- woning wordt verkocht zonder vragenlijst en lijst van zaken
- Bouwjaar 1932
- Oplevering in overleg
Woonoppervlakte
De Meetinstructie is gebaseerd op de NEN2580. De Meetinstructie is bedoeld om een meer eenduidige manier van meten toe te passen voor het geven van een indicatie van de gebruiksoppervlakte. De Meetinstructie sluit verschillen in meetuitkomsten niet volledig uit, door bijvoorbeeld interpretatieverschillen, afrondingen of beperkingen bij het uitvoeren van de meting. Indien de exacte maten voor een koper van cruciaal belang zijn, adviseren wij deze zelf na te meten. De (kandidaat)koper(s) zullen, indien gewenst, daartoe in de gelegenheid gesteld worden op een passend moment teneinde teleurstellingen en schade te voorkomen.
Ouderdomsclausule
Bij woningen ouder dan 30 jaar zal er standaard in de koopakte een ouderdomsclausule worden opgenomen.
Notariskeuze en kosten
In principe ligt de notariskeuze bij de koper. Het doorhalen van de hypothecaire inschrijving in het kadaster moet door de verkoper betaald worden. Zijn de kosten voor deze doorhaling hoger dan € 400,- inclusief BTW dan wordt het meerdere bij de koper in rekening gebracht. Indien de koper een notaris kiest buiten een straal van 20 kilometer van de verkochte onroerende zaak dan zijn de eventuele kosten die de notaris berekent voor een eventuele verkoopvolmacht en legalisatie hiervan ten behoeve van de verkoper voor rekening van de koper.
Zelfbewoningsplicht
Koper is bekend met de zelfbewoningsplicht welke vanaf 01-01-2023 binnen de gemeente Vlaardingen van kracht is. De verkopend makelaar heeft koper doorverwezen naar de gemeente Vlaardingen omtrent de desbetreffende regelgeving. Verkoper noch verkopend makelaar aanvaarden geen enkele aansprakelijkheid voor geleden schade wegens het niet juist naleven van deze zelfbewoningsplicht.
Niet-zelfbewoningsclausule
Koper verklaart ermee bekend te zijn, dat verkoper de onroerende zaak nooit zelf feitelijk heeft gebruikt en dat hij derhalve koper niet heeft kunnen informeren over eigenschappen van casu quo gebreken aan de onroerende zaak welke hij niet kende doch waarvan hij op de hoogte zou zijn geweest als hij de onroerende zaak zelf feitelijk had gebruikt.
Gunning
Verkoper behoudt zich uitdrukkelijk het recht voor het object te gunnen aan de gegadigde van zijn keuze.
Nadrukkelijk zij vermeld dat alle informatie in deze brochure moet beschouwd worden als een uitnodiging tot het doen van een bod of om in onderhandeling te treden. Er kunnen geen rechten worden ontleend aan deze informatie.
Vlietlanden NVM Makelaars streeft ernaar de informatie op haar website / brochures en andere uitingen zo actueel en nauwkeurig mogelijk weer te geven. Hoewel de informatie met de grootst mogelijke zorgvuldigheid is samengesteld aanvaarden wij geen enkele aansprakelijkheid ten aanzien van de juistheid van de vermelde gegevens.
De huidige indeling bestaat uit een entree met hal, bergkast en garderoberuimte, een ruime woonkamer en één slaapkamer. Met een slimme herindeling realiseer je eenvoudig twee slaapkamers en een open woonkeuken aan de achterzijde, direct grenzend aan de tuin. Op de plek van het huidige toilet kan een badkamer worden gecreëerd, waardoor een logische en moderne indeling ontstaat. Hier heb je de vrijheid om alles naar eigen wens vorm te geven.
De ligging is ideaal: midden in het centrum van Vlaardingen, op loopafstand van winkels, supermarkten, horeca, bioscoop, theater, zwembad en openbaar vervoer (bus en metro). Binnen enkele minuten bereik je de A4 en A20, waardoor steden als Rotterdam, Delft en het strand van Hoek van Holland snel bereikbaar zijn.
Kortom: een perfecte kans voor de handige koper die op zoek is naar ruimte, locatie én mogelijkheden.
BIJZONDERHEDEN:
- Woonoppervlakte van ca. 67 vierkante meter
- Volledig voorzien van kunststof kozijnen met dubbel isolerend glas aan de voorzijde, achterzijde van hout.
- Voorzien van CV-combiketel Remeha Avanti 2018
- Mogelijkheid tot het realiseren van een 3-kamerappartement
- Actieve Vereniging van Eigenaren, bijdrage van € 250 per maand
- Achtertuin gelegen op zuidoost
- Gelegen op eigen grond
- woning wordt verkocht zonder vragenlijst en lijst van zaken
- Bouwjaar 1932
- Oplevering in overleg
Woonoppervlakte
De Meetinstructie is gebaseerd op de NEN2580. De Meetinstructie is bedoeld om een meer eenduidige manier van meten toe te passen voor het geven van een indicatie van de gebruiksoppervlakte. De Meetinstructie sluit verschillen in meetuitkomsten niet volledig uit, door bijvoorbeeld interpretatieverschillen, afrondingen of beperkingen bij het uitvoeren van de meting. Indien de exacte maten voor een koper van cruciaal belang zijn, adviseren wij deze zelf na te meten. De (kandidaat)koper(s) zullen, indien gewenst, daartoe in de gelegenheid gesteld worden op een passend moment teneinde teleurstellingen en schade te voorkomen.
Ouderdomsclausule
Bij woningen ouder dan 30 jaar zal er standaard in de koopakte een ouderdomsclausule worden opgenomen.
Notariskeuze en kosten
In principe ligt de notariskeuze bij de koper. Het doorhalen van de hypothecaire inschrijving in het kadaster moet door de verkoper betaald worden. Zijn de kosten voor deze doorhaling hoger dan € 400,- inclusief BTW dan wordt het meerdere bij de koper in rekening gebracht. Indien de koper een notaris kiest buiten een straal van 20 kilometer van de verkochte onroerende zaak dan zijn de eventuele kosten die de notaris berekent voor een eventuele verkoopvolmacht en legalisatie hiervan ten behoeve van de verkoper voor rekening van de koper.
Zelfbewoningsplicht
Koper is bekend met de zelfbewoningsplicht welke vanaf 01-01-2023 binnen de gemeente Vlaardingen van kracht is. De verkopend makelaar heeft koper doorverwezen naar de gemeente Vlaardingen omtrent de desbetreffende regelgeving. Verkoper noch verkopend makelaar aanvaarden geen enkele aansprakelijkheid voor geleden schade wegens het niet juist naleven van deze zelfbewoningsplicht.
Niet-zelfbewoningsclausule
Koper verklaart ermee bekend te zijn, dat verkoper de onroerende zaak nooit zelf feitelijk heeft gebruikt en dat hij derhalve koper niet heeft kunnen informeren over eigenschappen van casu quo gebreken aan de onroerende zaak welke hij niet kende doch waarvan hij op de hoogte zou zijn geweest als hij de onroerende zaak zelf feitelijk had gebruikt.
Gunning
Verkoper behoudt zich uitdrukkelijk het recht voor het object te gunnen aan de gegadigde van zijn keuze.
Nadrukkelijk zij vermeld dat alle informatie in deze brochure moet beschouwd worden als een uitnodiging tot het doen van een bod of om in onderhandeling te treden. Er kunnen geen rechten worden ontleend aan deze informatie.
Vlietlanden NVM Makelaars streeft ernaar de informatie op haar website / brochures en andere uitingen zo actueel en nauwkeurig mogelijk weer te geven. Hoewel de informatie met de grootst mogelijke zorgvuldigheid is samengesteld aanvaarden wij geen enkele aansprakelijkheid ten aanzien van de juistheid van de vermelde gegevens.
Kenmerken
Overdracht
- vraagprijs
- € 215.000 k.k.
- Status
- Verkocht onder voorbehoud
- Aanvaarding
- In overleg
Bouw
- Soort woning
- Benedenwoning, appartement
- Soort bouw
- Bestaande bouw
Oppervlakten en inhoud
- Woonoppervlakte
- 67 m²
- Inhoud
- 220 m³
Indeling
- Aantal kamers
- 2 kamers (1 slaapkamer)
- Aantal verdiepingen
- 1 Verdiepingen
Energie
- Energielabel
- D
- Isolatie
- Dubbel glas
Buitenruimte
- Ligging
- In centrum, in woonwijk
- Tuin
- Achtertuin
- Achtertuin
- 50 m² (7,46m Diep / 6,74m Breed)
- Ligging tuin
- Zuidoost
Garage
- Soort garage
- Geen garage
Parkeren
- Soort parkeergelegenheid
- Betaald parkeren, parkeervergunningen