Boerhaavelaan 68
€ 495.000 k.k.
Schiedam
Eengezinswoning
208 m²
7 slaapkamers
West
In overleg
In een levendige stadswijk waar alles binnen handbereik ligt, wacht deze royale en multifunctionele woning op nieuwe bewoners die houden van ruimte én mogelijkheden. Met winkels, scholen, het openbaar vervoer en recreatie op loopafstand én het bruisende centrum op korte afstand, combineert deze plek het beste van twee werelden. Ruim wonen met alle gemakken dichtbij. Hier woon je in een karakteristiek jaren ’30 huis, maar dan mét het comfort van nu, dankzij kunststof kozijnen met HR+ glas, recent schilderwerk en maar liefst 9 zonnepanelen. Achter de karakteristieke gevel schuilt een verrassend ruime woning die uitermate geschikt is voor dubbele bewoning of voor wie graag royaal leeft. Van de doorzonwoonkamer met openslaande deuren naar het overdekte balkon en de diepe tuin, tot de open keuken met benodigde apparatuur. De begane grond vormt een heerlijk leefniveau met fijne lichtinval en volop leefcomfort. Verdeeld over de meerdere verdiepingen vind je talloze kamers die flexibel inzetbaar zijn. Van slaapkamers tot werkkamers en zelfs een tweede zelfstandige woonlaag met eigen keuken, badkamer en balkons. Ideaal voor gezinnen, thuiswerkers, hobbyisten of het creëren van een eigen gastenverdieping. De woning biedt daarnaast tal van praktische extra’s, zoals meerdere balkons, een loggia met een wasmachineaansluiting, een ruime vliering met daglicht, vaste kasten op diverse plekken en een tuin met een betonnen fundament voor een toekomstige schuur. Dankzij voorzieningen als insectenhorren, een zonnescherm aan de achterzijde en de mogelijkheid een fietsbox aan te vragen, is het wooncomfort helemaal compleet. En dat alles op eigen grond, in een wijk waar het dagelijks leven nét even makkelijker wordt.
Kortom, een unieke kans voor wie zoekt naar ruimte, veelzijdigheid en een fijne omgeving om vol plezier in te wonen.
INDELING
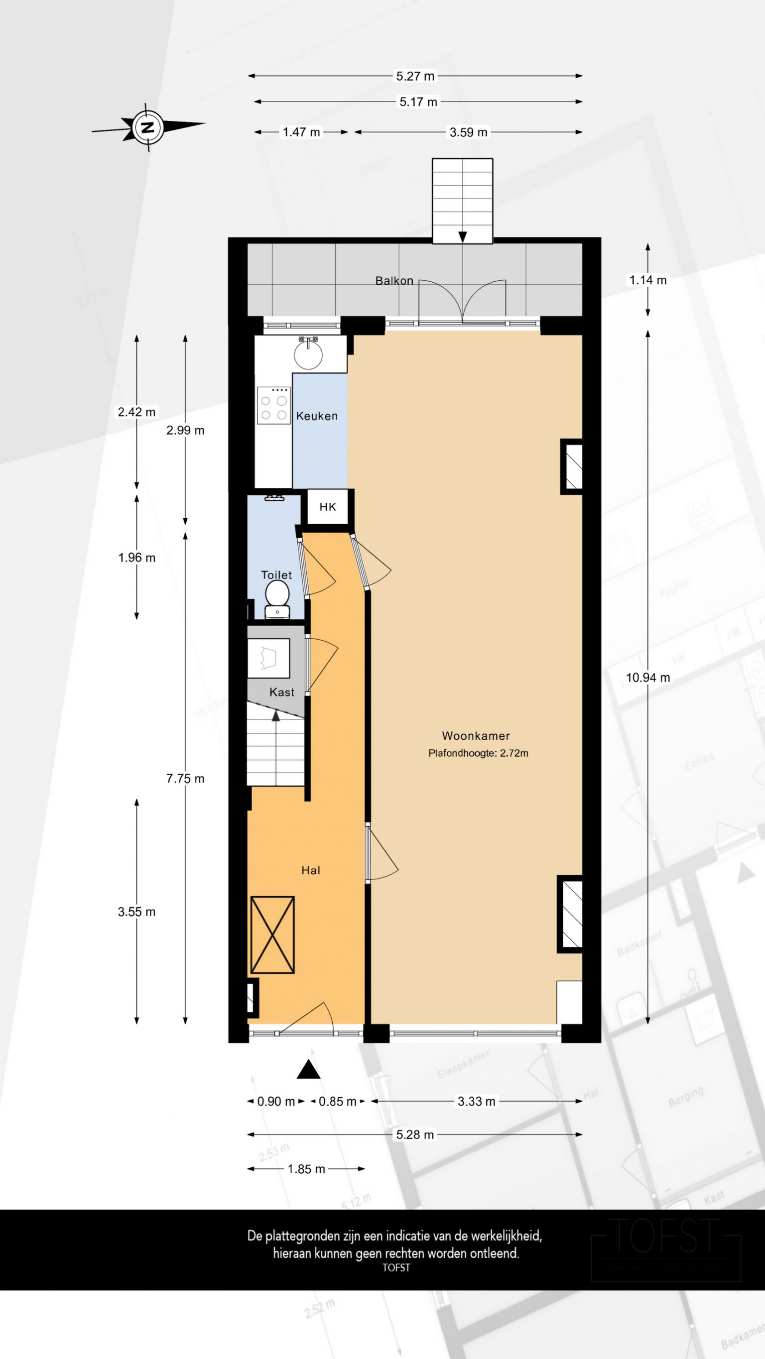
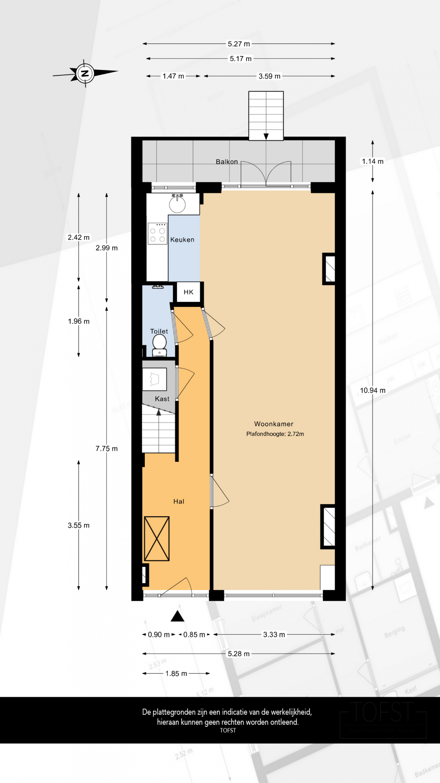
BEGANE GROND
Vanaf de straat is de voordeur bereikbaar via twee treden, waarna er toegang is tot de entreehal. Vanuit hier is de woonkamer, het toilet, de kelder en de trap naar de 1e verdieping, met daaronder een vaste kast met de aansluiting voor de wasmachine, bereikbaar. Op de vloer ligt achter de voordeur een schoonloopmat, met aansluitend een laminaat vloer. De wanden zijn wisselend afgewerkt met tegels en stucwerk en het verlaagde plafond naast de trap is voorzien van inbouw spots.
De woonkamer loopt geheel van de voorzijde naar de achterzijde, waardoor er voldoende ruimte is voor zowel een zit- als een eethoek. Aan de achterzijde zijn er twee openslaande deuren naar het balkon met daarvoor in de vloer een convectorput. Tevens is er een open toegang tot de keuken, die is opgesteld in een L-vorm met een aparte ingebouwde hoge kast en bovenkasten. De achterwand is betegeld en in de keuken is diverse apparatuur aanwezig, zoals een koelkast, een magnetron, een close-in boiler, een inductiekookplaat en een afzuigkap.
Het balkon is inpandig gelegen tussen twee gemetselde wanden en is overdekt. De ondergrond is voorzien van tegels en vanaf het balkon is er een trap naar de achtertuin. Deze is grotendeels voorzien van tegels en houten schuttingen. Langs de schuttingen liggen borders met beplanting en er is een toegangsdeur naar de kelder.
Het toilet is deels betegeld en voorzien van een toilet en een aansluiting voor een douche. Op de vloer ligt vinyl, afgewisseld met houten planken bij de douchehoek.
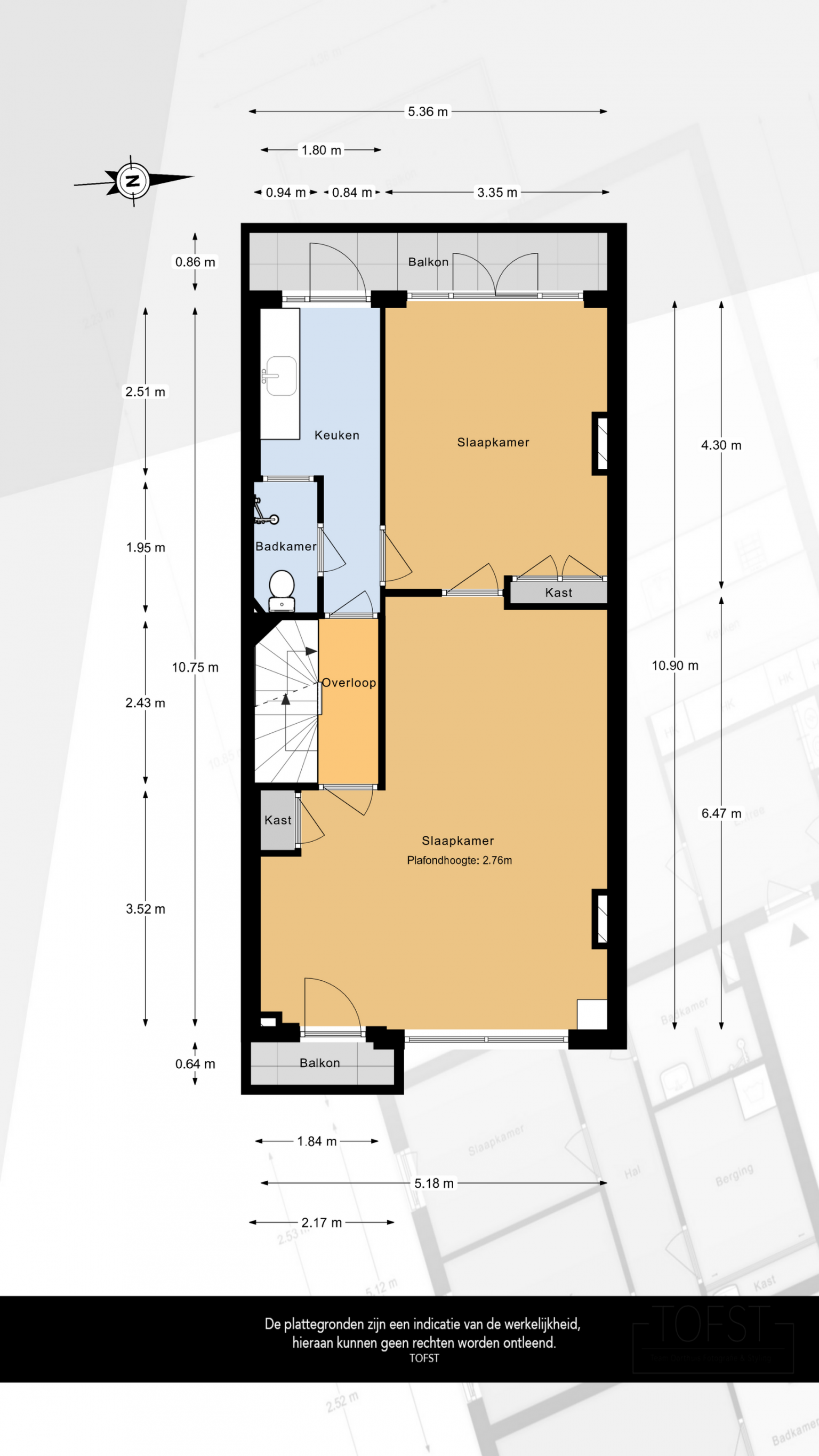
1E VERDIEPING
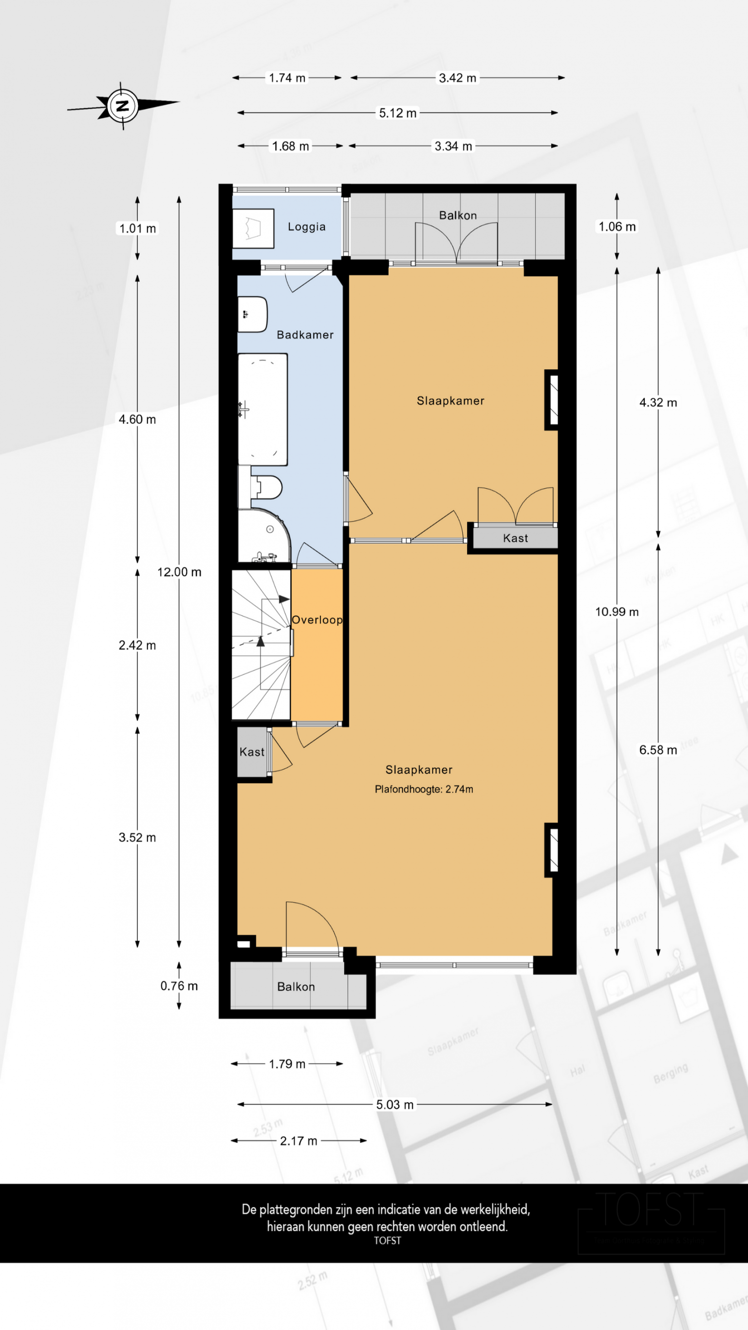
Na de trapopgang is de overloop bereikbaar. Deze geeft toegang tot twee slaapkamers, de badkamer en de trap naar de 2e verdieping. Ook hier ligt een laminaatvloer en zijn de wanden gestuukt en deels voorzien van houten schroten.
De eerste slaapkamer is gelegen aan de voorzijde en beschikt over een vaste kast en een deur naar het kleine balkon. De koof van de schoorsteen is nog aanwezig en deels voorzien van tegels. Vanuit deze slaapkamer is er een directe verbinding met de twee slaapkamer. Deze is gelegen aan de achterzijde en beschikt over een vaste kast en openslaande deuren naar de tweede balkon aan de achterzijde, dat geheel is beschut. Tevens is er een deur naar de badkamer en zorgt het aanwezige raam voor een doorkijk naar de eerste slaapkamer. In beide kamers zijn de wanden gestuukt en ligt er in de eerste slaapkamer een laminaatvloer en in de tweede slaapkamer een houten vloer.
De badkamer is volledig betegeld en uitgerust met een douchecabine, een toilet, een ligbad en een wastafelmeubel met een spiegel en verlichting. Er hangen twee handdoeken radiatoren, het plafond is voorzien van inbouw spots en er is vanuit hier toegang tot de deels betegelde loggia met een aansluiting voor de wasmachine.
2E VERDIEPING
Deze verdieping is eigenlijk een geheel eigen woonverdieping. Vanaf de overloop is er namelijk toegang tot twee slaapkamers, die gemakkelijk als woonkamer kunnen dienen, de tweede keuken, een tweede badkamer en de trap naar de 3e verdieping. Op de vloer ligt laminaat en de wanden zijn deels gestuukt en deels afgewerkt met houten platen.
De verdeling van de slaapkamers is gelijk aan de 1e verdieping en ook hier hebben beide kamers een vaste kast en een deur naar de balkons. Ze staan in verbinding via een deur en beide kamers zijn voorzien van een laminaatvloer en gestuukte wanden.
De keuken is deels betegeld en beschikt over een recht keukenblok met bovenkasten en een spoelbak met een kraan. Er is een deur naar het achtergelegen balkon en er is toegang tot de badkamer.
De gedeeltelijk betegelde badkamer is uitgerust met een toilet en een douche.
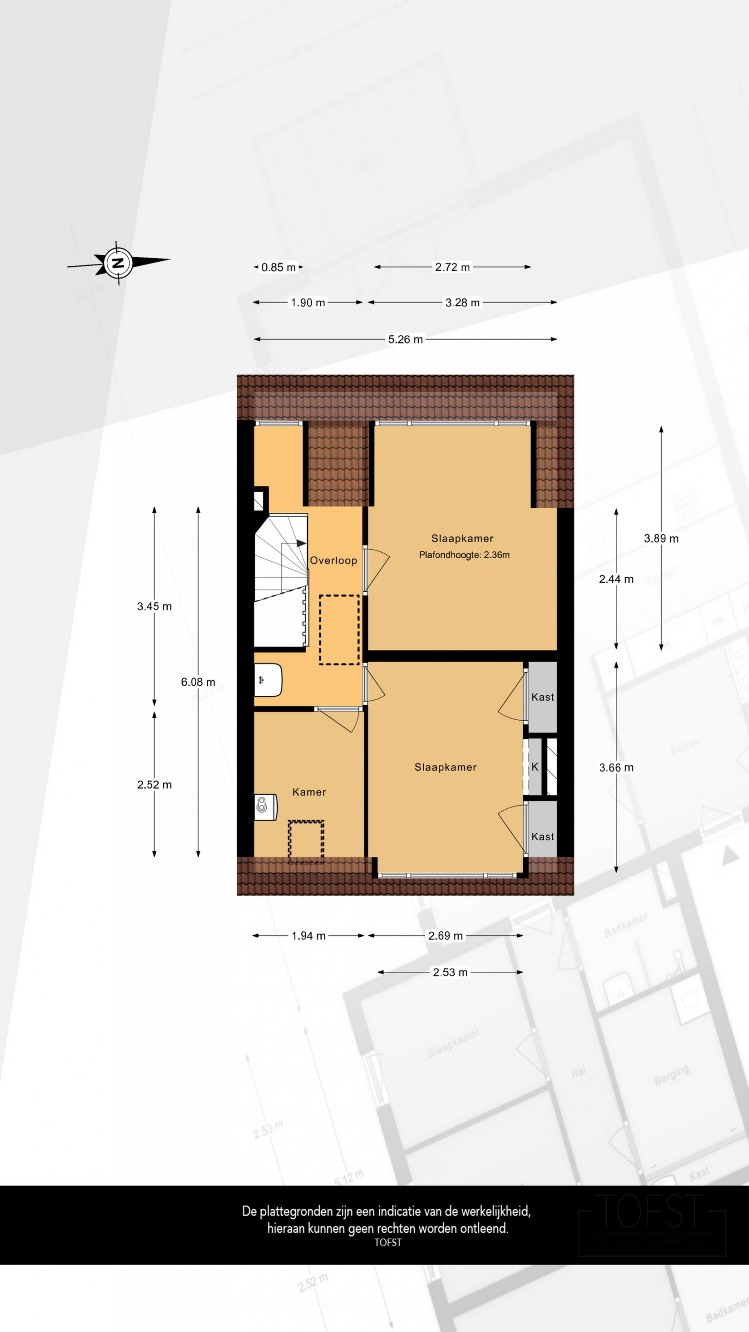
3E VERDIEPING
De bovenste overloop is het meest ruim door de kleine dakkapel en geeft toegang tot nogmaals twee slaapkamers, een derde kamer met daarin de opstelling van de Cv-ketel en de vliering. Op de overloop bevindt zich ook een wastafel en op de vloer ligt vinyl en de wanden zijn gestuukt.
De beide slaapkamers zijn verdeeld gelegen over de voor- en achterzijde en beschikken beide over een dakkapel, een vinyl vloer en gestuukte wanden. Daarnaast is een slaapkamer nog voorzien van vaste kasten.
De derde kamer op deze verdieping is uitermate geschikt als werk- of hobbyruimte. Het heeft een dakraam in de schuine kap, een vinyl vloer en gestuukte wanden.
VLIERING
Deze verdieping is voor diverse doeleinden geschikt en door het aanwezige dakraam is er, naast gewonen verlichting, ook voldoende daglicht aanwezig. Op de vloer ligt vinyl en de wanden zijn hier gestuukt.
BIJZONDERHEDEN
- Geheel voorzien van kunststof kozijnen met HR+ glas
- Aantal ramen zijn voorzien van insectenhorren
- 9 zonnepanelen
- De begane grond heeft aan de achterzijde een zonnescherm
- De tuin beschikt over een betonnen fundament voor een eventuele schuur
- Schilderwerk recentelijk uitgevoerd
- Er is een mogelijkheid om een fietsbox aan te vragen via het buurthuis
- Cv-ketel
- Gelegen op eigen grond
- Bouwjaar 1930
- Energielabel C
- Oplevering in overleg
Woonoppervlakte
De Meetinstructie is gebaseerd op de NEN2580. De Meetinstructie is bedoeld om een meer eenduidige manier van meten toe te passen voor het geven van een indicatie van de gebruiksoppervlakte. De Meetinstructie sluit verschillen in meetuitkomsten niet volledig uit, door bijvoorbeeld interpretatieverschillen, afrondingen of beperkingen bij het uitvoeren van de meting. Indien de exacte maten voor een koper van cruciaal belang zijn, adviseren wij deze zelf na te meten. De (kandidaat)koper(s) zullen, indien gewenst, daartoe in de gelegenheid gesteld worden op een passend moment teneinde teleurstellingen en schade te voorkomen.
Ouderdomsclausule
Bij woningen ouder dan 30 jaar zal er standaard in de koopakte een ouderdomsclausule worden opgenomen.
Notariskeuze en kosten
In principe ligt de notariskeuze bij de koper. Het doorhalen van de hypothecaire inschrijving in het kadaster moet door de verkoper betaald worden. Zijn de kosten voor deze doorhaling hoger dan € 400,- inclusief BTW dan wordt het meerdere bij de koper in rekening gebracht. Indien de koper een notaris kiest buiten een straal van 20 kilometer van de verkochte onroerende zaak dan zijn de eventuele kosten die de notaris berekent voor een eventuele verkoopvolmacht en legalisatie hiervan ten behoeve van de verkoper voor rekening van de koper.
Zelfbewoningsplicht
Koper is bekend met de zelfbewoningsplicht welke vanaf 01-01-2023 binnen de gemeente Schiedam van kracht is. De verkopend makelaar heeft koper doorverwezen naar de gemeente Schiedam omtrent de desbetreffende regelgeving. Verkoper noch verkopend makelaar aanvaarden geen enkele aansprakelijkheid voor geleden schade wegens het niet juist naleven van deze zelfbewoningsplicht.
Gunning
Verkoper behoudt zich uitdrukkelijk het recht voor het object te gunnen aan de gegadigde van zijn keuze.
Nadrukkelijk zij vermeld dat alle informatie in deze brochure moet beschouwd worden als een uitnodiging tot het doen van een bod of om in onderhandeling te treden. Er kunnen geen rechten worden ontleend aan deze informatie.
Vlietlanden NVM Makelaars streeft ernaar de informatie op haar website / brochures en andere uitingen zo actueel en nauwkeurig mogelijk weer te geven. Hoewel de informatie met de grootst mogelijke zorgvuldigheid is samengesteld aanvaarden wij geen enkele aansprakelijkheid ten aanzien van de juistheid van de vermelde gegevens.
Kortom, een unieke kans voor wie zoekt naar ruimte, veelzijdigheid en een fijne omgeving om vol plezier in te wonen.
INDELING
BEGANE GROND
Vanaf de straat is de voordeur bereikbaar via twee treden, waarna er toegang is tot de entreehal. Vanuit hier is de woonkamer, het toilet, de kelder en de trap naar de 1e verdieping, met daaronder een vaste kast met de aansluiting voor de wasmachine, bereikbaar. Op de vloer ligt achter de voordeur een schoonloopmat, met aansluitend een laminaat vloer. De wanden zijn wisselend afgewerkt met tegels en stucwerk en het verlaagde plafond naast de trap is voorzien van inbouw spots.
De woonkamer loopt geheel van de voorzijde naar de achterzijde, waardoor er voldoende ruimte is voor zowel een zit- als een eethoek. Aan de achterzijde zijn er twee openslaande deuren naar het balkon met daarvoor in de vloer een convectorput. Tevens is er een open toegang tot de keuken, die is opgesteld in een L-vorm met een aparte ingebouwde hoge kast en bovenkasten. De achterwand is betegeld en in de keuken is diverse apparatuur aanwezig, zoals een koelkast, een magnetron, een close-in boiler, een inductiekookplaat en een afzuigkap.
Het balkon is inpandig gelegen tussen twee gemetselde wanden en is overdekt. De ondergrond is voorzien van tegels en vanaf het balkon is er een trap naar de achtertuin. Deze is grotendeels voorzien van tegels en houten schuttingen. Langs de schuttingen liggen borders met beplanting en er is een toegangsdeur naar de kelder.
Het toilet is deels betegeld en voorzien van een toilet en een aansluiting voor een douche. Op de vloer ligt vinyl, afgewisseld met houten planken bij de douchehoek.
1E VERDIEPING
Na de trapopgang is de overloop bereikbaar. Deze geeft toegang tot twee slaapkamers, de badkamer en de trap naar de 2e verdieping. Ook hier ligt een laminaatvloer en zijn de wanden gestuukt en deels voorzien van houten schroten.
De eerste slaapkamer is gelegen aan de voorzijde en beschikt over een vaste kast en een deur naar het kleine balkon. De koof van de schoorsteen is nog aanwezig en deels voorzien van tegels. Vanuit deze slaapkamer is er een directe verbinding met de twee slaapkamer. Deze is gelegen aan de achterzijde en beschikt over een vaste kast en openslaande deuren naar de tweede balkon aan de achterzijde, dat geheel is beschut. Tevens is er een deur naar de badkamer en zorgt het aanwezige raam voor een doorkijk naar de eerste slaapkamer. In beide kamers zijn de wanden gestuukt en ligt er in de eerste slaapkamer een laminaatvloer en in de tweede slaapkamer een houten vloer.
De badkamer is volledig betegeld en uitgerust met een douchecabine, een toilet, een ligbad en een wastafelmeubel met een spiegel en verlichting. Er hangen twee handdoeken radiatoren, het plafond is voorzien van inbouw spots en er is vanuit hier toegang tot de deels betegelde loggia met een aansluiting voor de wasmachine.
2E VERDIEPING
Deze verdieping is eigenlijk een geheel eigen woonverdieping. Vanaf de overloop is er namelijk toegang tot twee slaapkamers, die gemakkelijk als woonkamer kunnen dienen, de tweede keuken, een tweede badkamer en de trap naar de 3e verdieping. Op de vloer ligt laminaat en de wanden zijn deels gestuukt en deels afgewerkt met houten platen.
De verdeling van de slaapkamers is gelijk aan de 1e verdieping en ook hier hebben beide kamers een vaste kast en een deur naar de balkons. Ze staan in verbinding via een deur en beide kamers zijn voorzien van een laminaatvloer en gestuukte wanden.
De keuken is deels betegeld en beschikt over een recht keukenblok met bovenkasten en een spoelbak met een kraan. Er is een deur naar het achtergelegen balkon en er is toegang tot de badkamer.
De gedeeltelijk betegelde badkamer is uitgerust met een toilet en een douche.
3E VERDIEPING
De bovenste overloop is het meest ruim door de kleine dakkapel en geeft toegang tot nogmaals twee slaapkamers, een derde kamer met daarin de opstelling van de Cv-ketel en de vliering. Op de overloop bevindt zich ook een wastafel en op de vloer ligt vinyl en de wanden zijn gestuukt.
De beide slaapkamers zijn verdeeld gelegen over de voor- en achterzijde en beschikken beide over een dakkapel, een vinyl vloer en gestuukte wanden. Daarnaast is een slaapkamer nog voorzien van vaste kasten.
De derde kamer op deze verdieping is uitermate geschikt als werk- of hobbyruimte. Het heeft een dakraam in de schuine kap, een vinyl vloer en gestuukte wanden.
VLIERING
Deze verdieping is voor diverse doeleinden geschikt en door het aanwezige dakraam is er, naast gewonen verlichting, ook voldoende daglicht aanwezig. Op de vloer ligt vinyl en de wanden zijn hier gestuukt.
BIJZONDERHEDEN
- Geheel voorzien van kunststof kozijnen met HR+ glas
- Aantal ramen zijn voorzien van insectenhorren
- 9 zonnepanelen
- De begane grond heeft aan de achterzijde een zonnescherm
- De tuin beschikt over een betonnen fundament voor een eventuele schuur
- Schilderwerk recentelijk uitgevoerd
- Er is een mogelijkheid om een fietsbox aan te vragen via het buurthuis
- Cv-ketel
- Gelegen op eigen grond
- Bouwjaar 1930
- Energielabel C
- Oplevering in overleg
Woonoppervlakte
De Meetinstructie is gebaseerd op de NEN2580. De Meetinstructie is bedoeld om een meer eenduidige manier van meten toe te passen voor het geven van een indicatie van de gebruiksoppervlakte. De Meetinstructie sluit verschillen in meetuitkomsten niet volledig uit, door bijvoorbeeld interpretatieverschillen, afrondingen of beperkingen bij het uitvoeren van de meting. Indien de exacte maten voor een koper van cruciaal belang zijn, adviseren wij deze zelf na te meten. De (kandidaat)koper(s) zullen, indien gewenst, daartoe in de gelegenheid gesteld worden op een passend moment teneinde teleurstellingen en schade te voorkomen.
Ouderdomsclausule
Bij woningen ouder dan 30 jaar zal er standaard in de koopakte een ouderdomsclausule worden opgenomen.
Notariskeuze en kosten
In principe ligt de notariskeuze bij de koper. Het doorhalen van de hypothecaire inschrijving in het kadaster moet door de verkoper betaald worden. Zijn de kosten voor deze doorhaling hoger dan € 400,- inclusief BTW dan wordt het meerdere bij de koper in rekening gebracht. Indien de koper een notaris kiest buiten een straal van 20 kilometer van de verkochte onroerende zaak dan zijn de eventuele kosten die de notaris berekent voor een eventuele verkoopvolmacht en legalisatie hiervan ten behoeve van de verkoper voor rekening van de koper.
Zelfbewoningsplicht
Koper is bekend met de zelfbewoningsplicht welke vanaf 01-01-2023 binnen de gemeente Schiedam van kracht is. De verkopend makelaar heeft koper doorverwezen naar de gemeente Schiedam omtrent de desbetreffende regelgeving. Verkoper noch verkopend makelaar aanvaarden geen enkele aansprakelijkheid voor geleden schade wegens het niet juist naleven van deze zelfbewoningsplicht.
Gunning
Verkoper behoudt zich uitdrukkelijk het recht voor het object te gunnen aan de gegadigde van zijn keuze.
Nadrukkelijk zij vermeld dat alle informatie in deze brochure moet beschouwd worden als een uitnodiging tot het doen van een bod of om in onderhandeling te treden. Er kunnen geen rechten worden ontleend aan deze informatie.
Vlietlanden NVM Makelaars streeft ernaar de informatie op haar website / brochures en andere uitingen zo actueel en nauwkeurig mogelijk weer te geven. Hoewel de informatie met de grootst mogelijke zorgvuldigheid is samengesteld aanvaarden wij geen enkele aansprakelijkheid ten aanzien van de juistheid van de vermelde gegevens.
Kenmerken
Overdracht
- vraagprijs
- € 495.000 k.k.
- Status
- Verkocht onder voorbehoud
- Aanvaarding
- In overleg
Bouw
- Soort woning
- Eengezinswoning, tussenwoning
- Soort bouw
- Bestaande bouw
Oppervlakten en inhoud
- Woonoppervlakte
- 208 m²
- Perceel
- 121 m²
- Inhoud
- 896 m³
Indeling
- Aantal kamers
- 8 kamers (7 slaapkamers)
- Aantal verdiepingen
- 6 Verdiepingen
- Voorzieningen
- Buitenzonwering, tv kabel
Energie
- Energielabel
- C
Buitenruimte
- Ligging
- In woonwijk
- Tuin
- Achtertuin
- Achtertuin
- 56 m² (10,71m Diep / 5,27m Breed)
- Ligging tuin
- West
Garage
- Soort garage
- Geen garage
Parkeren
- Soort parkeergelegenheid
- Openbaar parkeren