Strijensestraat 24
€ 275.000 k.k.
Schiedam
Eengezinswoning
79 m²
2 slaapkamers
Noordwest
In overleg
In de geliefde Gorzen, waar de sfeer gemoedelijk is en je alle dagelijkse voorzieningen binnen handbereik hebt, staat deze fijne tussenwoning klaar voor een nieuwe eigenaar. De buurt voelt warm en levendig aan, met leuke winkels, eetgelegenheden en de groene Maasboulevard op loopafstand. Het is een plek waar je prettig woont, met vrij parkeren voor de deur en alles dichtbij.
De woning zelf biedt een gezellige basis met een lichte woonkamer, een praktische open keuken en een knusse tuin waar je verrassend veel privacy hebt dankzij de hoge muren. Boven bevinden zich twee ruime slaapkamers met dakkapellen die voor extra licht en ruimte zorgen en de badkamer is compact maar volledig betegeld en voorzien van een douchecabine, een wastafelmeubel en een hoge kast. Met onder andere een vernieuwde meterkast, kunststof kozijnen bij de dakkapellen, een stenen berging met elektra en de Cv-ketel voor verwarming en warm water, vormt dit huis een fijne plek voor wie een betaalbaar en sfeervol thuis zoekt op een centrale locatie.
INDELING
BEGANE GROND
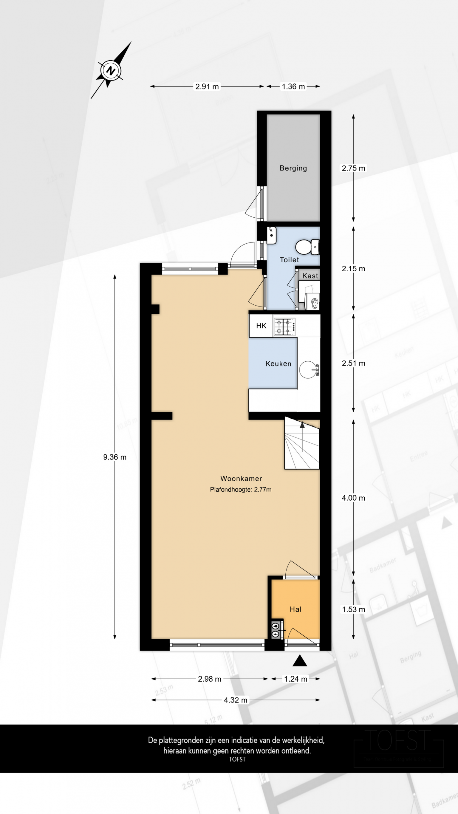
De voordeur is direct bereikbaar vanaf de straat en zorgt voor een binnenkomst in de entreehal. Deze is voorzien van de vernieuwde meterkast en geeft toegang tot de woonkamer. In de hal ligt een tegelvloer, met achter de voordeur een schoonloopmat en de wanden zijn afgewerkt met glasweefselbehang.
De woonkamer heeft een zithoek aan de voorzijde, waarbij de radiatoren netjes zijn weggewerkt achter een ombouw. Er is een wenteltrap naar de verdieping en in het verlengde bevindt zich in het midden de keuken met plaats voor een eethoek en aan de achterzijde is er toegang tot de tuin en het toilet. De vloer is voorzien van tegels, de wanden zijn afgewerkt met granol en langs het plafond in de woonkamer is een sierlijst aangebracht.
De open keuken in geplaatst in een U-vorm, waarbij het aanrechtblad doorloopt naar de achterwand. Er is een 4-pits gaskookplaat en een afzuigkap in de keuken verwerkt en er zijn bovenkasten met verlichting aanwezig. Het plafond is afgewerkt met houten schroten en de wanden zijn afgewerkt met granol.
Het toilet is ruim van opzet en beschikt over een fonteintje en een vaste kast met louvredeurtjes met daarin de opstelling van de Cv-ketel en de aansluitingen voor de wasmachine en de droger.
De tuin is een fijne buitenruimte die volledig is omheind door een hoge muur, dat zorgt voor voldoende privacy. De ondergrond is voorzien van kunstgras en vlonders en er is een stenen berging aanwezig, die is voorzien van verlichting en elektra.
1E VERDIEPING
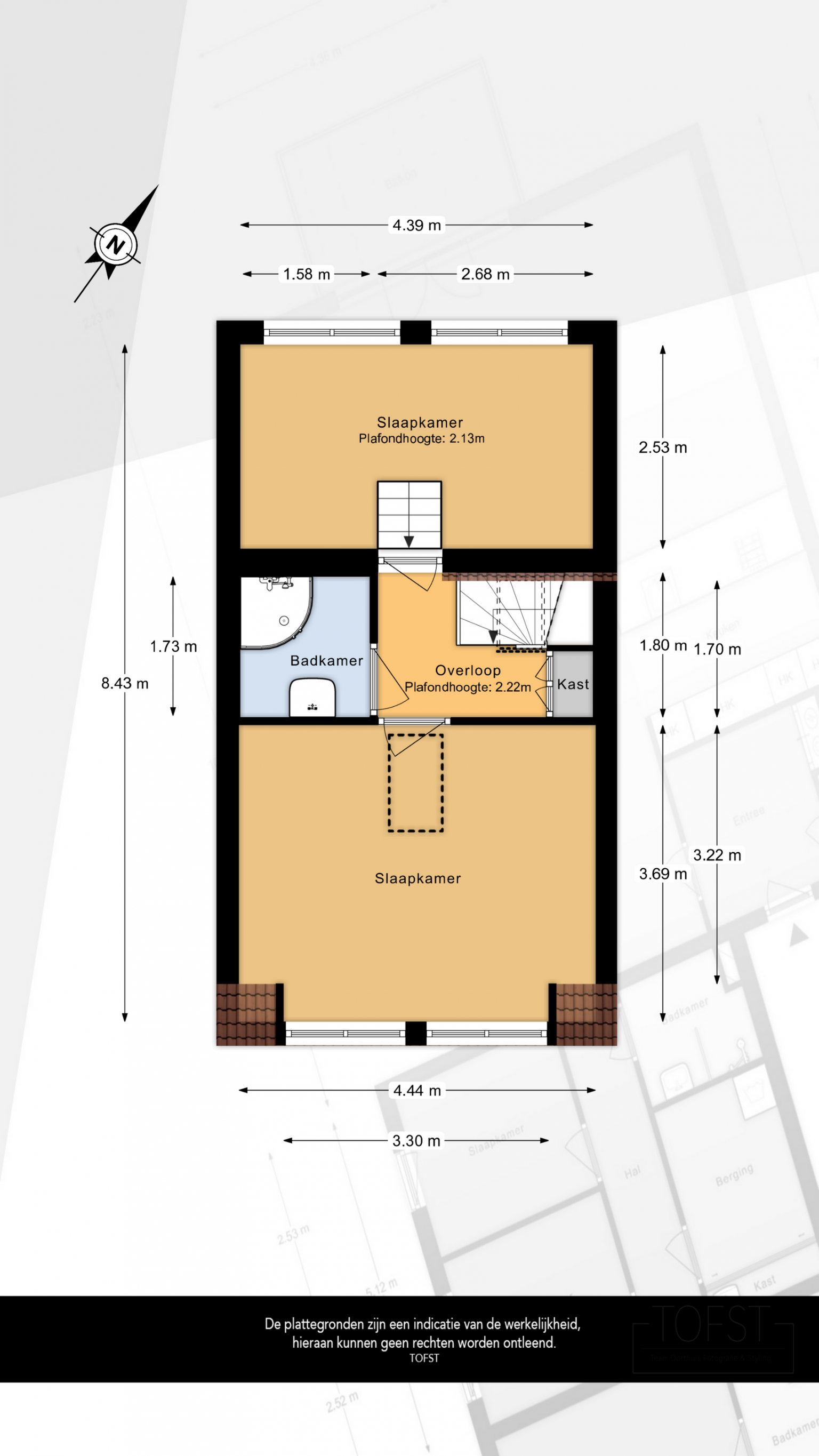
De trapopgang is in de schuine kap voorzien van dakraam en na de trapopgang is de overloop bereikbaar. Hier zijn de wanden afgewerkt met granol en ligt er een laminaatvloer, die is doorgetrokken naar de twee aanwezige slaapkamers. Daarnaast is er op de overloop een vaste kast aanwezig met louvredeurtjes en er is toegang tot de badkamer.
De hoofdslaapkamer is gelegen aan de voorzijde en beschikt over een dakkapel met kunststof kozijnen en dubbel glas. De balken zijn hier in het zicht gebleven en er is een luik naar de bergzolder. De tweede slaapkamer ligt aan de achterzijde en is bereikbaar via een klein trappetje. Er is een grote dakkapel aanwezig over de volledige breedte en deze is uitgevoerd in kunststof met dubbel glas. In beide slaapkamers zijn de wanden afgewerkt met granol.
De inpandige badkamer is volledig betegeld en uitgerust met een douchecabine en een wastafelmeubel. Ook hangt er een hoge kast en is het plafond voorzien van inbouw spots.
BIJZONDERHEDEN
- De begane grond is voorzien van houten kozijnen met aan de voorzijde dubbel glas en aan de achterzijde enkel glas
- De dakkapellen in de slaapkamers zijn uitgevoerd in kunststof met dubbel glas
- Meterkast is vernieuwd
- Stenen berging met verlichting en elektra
- Cv-ketel voor verwarming en warm water
- Vrij parkeren voor de deur
- Gelegen op eigen grond
- Bouwjaar 1887
- Energielabel D
- Oplevering in overleg
Woonoppervlakte
De Meetinstructie is gebaseerd op de NEN2580. De Meetinstructie is bedoeld om een meer eenduidige manier van meten toe te passen voor het geven van een indicatie van de gebruiksoppervlakte. De Meetinstructie sluit verschillen in meetuitkomsten niet volledig uit, door bijvoorbeeld interpretatieverschillen, afrondingen of beperkingen bij het uitvoeren van de meting. Indien de exacte maten voor een koper van cruciaal belang zijn, adviseren wij deze zelf na te meten. De (kandidaat)koper(s) zullen, indien gewenst, daartoe in de gelegenheid gesteld worden op een passend moment teneinde teleurstellingen en schade te voorkomen.
Ouderdomsclausule
Bij woningen ouder dan 30 jaar zal er standaard in de koopakte een ouderdomsclausule worden opgenomen.
Notariskeuze en kosten
In principe ligt de notariskeuze bij de koper. Het doorhalen van de hypothecaire inschrijving in het kadaster moet door de verkoper betaald worden. Zijn de kosten voor deze doorhaling hoger dan € 400,- inclusief BTW dan wordt het meerdere bij de koper in rekening gebracht. Indien de koper een notaris kiest buiten een straal van 20 kilometer van de verkochte onroerende zaak dan zijn de eventuele kosten die de notaris berekent voor een eventuele verkoopvolmacht en legalisatie hiervan ten behoeve van de verkoper voor rekening van de koper.
Zelfbewoningsplicht
Koper is bekend met de zelfbewoningsplicht welke vanaf 01-01-2023 binnen de gemeente Schiedam van kracht is. De verkopend makelaar heeft koper doorverwezen naar de gemeente Schiedam omtrent de desbetreffende regelgeving. Verkoper noch verkopend makelaar aanvaarden geen enkele aansprakelijkheid voor geleden schade wegens het niet juist naleven van deze zelfbewoningsplicht.
Gunning
Verkoper behoudt zich uitdrukkelijk het recht voor het object te gunnen aan de gegadigde van zijn keuze.
Nadrukkelijk zij vermeld dat alle informatie in deze brochure moet beschouwd worden als een uitnodiging tot het doen van een bod of om in onderhandeling te treden. Er kunnen geen rechten worden ontleend aan deze informatie.
Vlietlanden NVM Makelaars streeft ernaar de informatie op haar website / brochures en andere uitingen zo actueel en nauwkeurig mogelijk weer te geven. Hoewel de informatie met de grootst mogelijke zorgvuldigheid is samengesteld aanvaarden wij geen enkele aansprakelijkheid ten aanzien van de juistheid van de vermelde gegevens.
De woning zelf biedt een gezellige basis met een lichte woonkamer, een praktische open keuken en een knusse tuin waar je verrassend veel privacy hebt dankzij de hoge muren. Boven bevinden zich twee ruime slaapkamers met dakkapellen die voor extra licht en ruimte zorgen en de badkamer is compact maar volledig betegeld en voorzien van een douchecabine, een wastafelmeubel en een hoge kast. Met onder andere een vernieuwde meterkast, kunststof kozijnen bij de dakkapellen, een stenen berging met elektra en de Cv-ketel voor verwarming en warm water, vormt dit huis een fijne plek voor wie een betaalbaar en sfeervol thuis zoekt op een centrale locatie.
INDELING
BEGANE GROND
De voordeur is direct bereikbaar vanaf de straat en zorgt voor een binnenkomst in de entreehal. Deze is voorzien van de vernieuwde meterkast en geeft toegang tot de woonkamer. In de hal ligt een tegelvloer, met achter de voordeur een schoonloopmat en de wanden zijn afgewerkt met glasweefselbehang.
De woonkamer heeft een zithoek aan de voorzijde, waarbij de radiatoren netjes zijn weggewerkt achter een ombouw. Er is een wenteltrap naar de verdieping en in het verlengde bevindt zich in het midden de keuken met plaats voor een eethoek en aan de achterzijde is er toegang tot de tuin en het toilet. De vloer is voorzien van tegels, de wanden zijn afgewerkt met granol en langs het plafond in de woonkamer is een sierlijst aangebracht.
De open keuken in geplaatst in een U-vorm, waarbij het aanrechtblad doorloopt naar de achterwand. Er is een 4-pits gaskookplaat en een afzuigkap in de keuken verwerkt en er zijn bovenkasten met verlichting aanwezig. Het plafond is afgewerkt met houten schroten en de wanden zijn afgewerkt met granol.
Het toilet is ruim van opzet en beschikt over een fonteintje en een vaste kast met louvredeurtjes met daarin de opstelling van de Cv-ketel en de aansluitingen voor de wasmachine en de droger.
De tuin is een fijne buitenruimte die volledig is omheind door een hoge muur, dat zorgt voor voldoende privacy. De ondergrond is voorzien van kunstgras en vlonders en er is een stenen berging aanwezig, die is voorzien van verlichting en elektra.
1E VERDIEPING
De trapopgang is in de schuine kap voorzien van dakraam en na de trapopgang is de overloop bereikbaar. Hier zijn de wanden afgewerkt met granol en ligt er een laminaatvloer, die is doorgetrokken naar de twee aanwezige slaapkamers. Daarnaast is er op de overloop een vaste kast aanwezig met louvredeurtjes en er is toegang tot de badkamer.
De hoofdslaapkamer is gelegen aan de voorzijde en beschikt over een dakkapel met kunststof kozijnen en dubbel glas. De balken zijn hier in het zicht gebleven en er is een luik naar de bergzolder. De tweede slaapkamer ligt aan de achterzijde en is bereikbaar via een klein trappetje. Er is een grote dakkapel aanwezig over de volledige breedte en deze is uitgevoerd in kunststof met dubbel glas. In beide slaapkamers zijn de wanden afgewerkt met granol.
De inpandige badkamer is volledig betegeld en uitgerust met een douchecabine en een wastafelmeubel. Ook hangt er een hoge kast en is het plafond voorzien van inbouw spots.
BIJZONDERHEDEN
- De begane grond is voorzien van houten kozijnen met aan de voorzijde dubbel glas en aan de achterzijde enkel glas
- De dakkapellen in de slaapkamers zijn uitgevoerd in kunststof met dubbel glas
- Meterkast is vernieuwd
- Stenen berging met verlichting en elektra
- Cv-ketel voor verwarming en warm water
- Vrij parkeren voor de deur
- Gelegen op eigen grond
- Bouwjaar 1887
- Energielabel D
- Oplevering in overleg
Woonoppervlakte
De Meetinstructie is gebaseerd op de NEN2580. De Meetinstructie is bedoeld om een meer eenduidige manier van meten toe te passen voor het geven van een indicatie van de gebruiksoppervlakte. De Meetinstructie sluit verschillen in meetuitkomsten niet volledig uit, door bijvoorbeeld interpretatieverschillen, afrondingen of beperkingen bij het uitvoeren van de meting. Indien de exacte maten voor een koper van cruciaal belang zijn, adviseren wij deze zelf na te meten. De (kandidaat)koper(s) zullen, indien gewenst, daartoe in de gelegenheid gesteld worden op een passend moment teneinde teleurstellingen en schade te voorkomen.
Ouderdomsclausule
Bij woningen ouder dan 30 jaar zal er standaard in de koopakte een ouderdomsclausule worden opgenomen.
Notariskeuze en kosten
In principe ligt de notariskeuze bij de koper. Het doorhalen van de hypothecaire inschrijving in het kadaster moet door de verkoper betaald worden. Zijn de kosten voor deze doorhaling hoger dan € 400,- inclusief BTW dan wordt het meerdere bij de koper in rekening gebracht. Indien de koper een notaris kiest buiten een straal van 20 kilometer van de verkochte onroerende zaak dan zijn de eventuele kosten die de notaris berekent voor een eventuele verkoopvolmacht en legalisatie hiervan ten behoeve van de verkoper voor rekening van de koper.
Zelfbewoningsplicht
Koper is bekend met de zelfbewoningsplicht welke vanaf 01-01-2023 binnen de gemeente Schiedam van kracht is. De verkopend makelaar heeft koper doorverwezen naar de gemeente Schiedam omtrent de desbetreffende regelgeving. Verkoper noch verkopend makelaar aanvaarden geen enkele aansprakelijkheid voor geleden schade wegens het niet juist naleven van deze zelfbewoningsplicht.
Gunning
Verkoper behoudt zich uitdrukkelijk het recht voor het object te gunnen aan de gegadigde van zijn keuze.
Nadrukkelijk zij vermeld dat alle informatie in deze brochure moet beschouwd worden als een uitnodiging tot het doen van een bod of om in onderhandeling te treden. Er kunnen geen rechten worden ontleend aan deze informatie.
Vlietlanden NVM Makelaars streeft ernaar de informatie op haar website / brochures en andere uitingen zo actueel en nauwkeurig mogelijk weer te geven. Hoewel de informatie met de grootst mogelijke zorgvuldigheid is samengesteld aanvaarden wij geen enkele aansprakelijkheid ten aanzien van de juistheid van de vermelde gegevens.
Kenmerken
Overdracht
- vraagprijs
- € 275.000 k.k.
- Status
- Verkocht onder voorbehoud
- Aanvaarding
- In overleg
Bouw
- Soort woning
- Eengezinswoning, tussenwoning
- Soort bouw
- Bestaande bouw
Oppervlakten en inhoud
- Woonoppervlakte
- 79 m²
- Perceel
- 66 m²
- Inhoud
- 297 m³
Indeling
- Aantal kamers
- 3 kamers (2 slaapkamers)
- Aantal verdiepingen
- 2 Verdiepingen
- Voorzieningen
- Dakraam, tv kabel
Energie
- Energielabel
- D
- Isolatie
- Gedeeltelijk dubbel glas
Buitenruimte
- Ligging
- Aan rustige weg, in woonwijk
- Tuin
- Plaats
- Achtertuin
- 11 m² (3,81m Diep / 2,82m Breed)
- Ligging tuin
- Noordwest
Garage
- Soort garage
- Geen garage
Parkeren
- Soort parkeergelegenheid
- Openbaar parkeren