Toon Verheystraat 169
€ 250.000 k.k.
Schiedam
Galerijflat
67 m²
1 slaapkamer
In overleg
In het hart van een levendige, groene wijk ligt dit lichte en verzorgde appartement op de bovenste woonlaag van een keurig complex. Zodra je binnenstapt, voel je de rust en het gemak van wonen op hoogte, met een heerlijk vrij uitzicht over de omgeving. De afgesloten entree met lift en trap zorgt voor een veilige en nette toegang en beneden beschik je over je eigen berging. Ideaal voor de fiets of seizoensspullen. De woning zelf is verrassend ruim en praktisch ingedeeld. De woonkamer baadt in het licht dankzij de grote raampartij en staat in directe verbinding met de eetkamer, waar je via een schuifdeur toegang hebt. Vanuit de eetkamer is er toegang tot het beschutte balkon. Hier kun je in alle rust genieten van een kop koffie of het uitzicht over de wijk. De keuken is netjes ingericht met een inductiekookplaat, afzuigkap en voldoende kastruimte, terwijl de badkamer fris en functioneel is met een douchecabine, wastafelmeubel en aansluitingen voor wasmachine en droger. De locatie is zonder twijfel een groot pluspunt: op loopafstand vind je winkels voor de dagelijkse boodschappen, scholen en het openbaar vervoer. De historische binnenstad van Schiedam ligt op korte afstand, met gezellige terrasjes, restaurants en musea binnen handbereik. Ook uitvalswegen richting Rotterdam en Delft zijn snel te bereiken, waardoor dit appartement een perfecte balans biedt tussen rustig wonen en stedelijke levendigheid.
INDELING
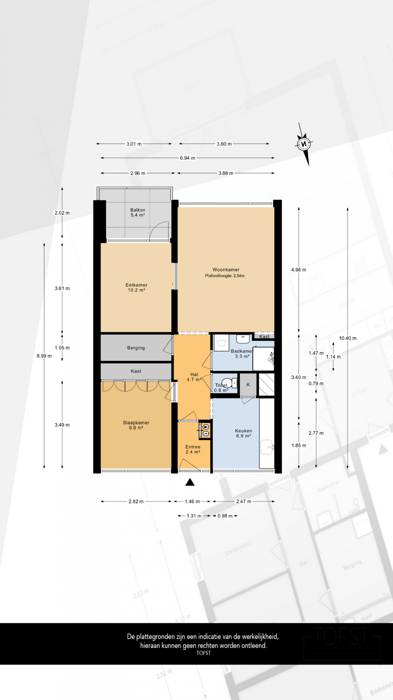
De entree van het complex is afgesloten en voorzien van een bellentableau en de brievenbussen. Na de ingang is er toegang tot de centrale entreehal, vanwaar er via een lift en een trap toegang is tot de verdiepingen en de eigen berging in de onderbouw.
APPARTEMENT
Na de voordeur is er een binnenkomst in de afsluitbare entreehal die is voorzien van de meterkast. De wanden zijn hier afgewerkt met granol en op de vloer ligt laminaat, dat is doorgetrokken naar de aangrenzende hal, de slaapkamer, de woonkamer, de eetkamer en de berging.
Vanuit de entreehal is er toegang tot de aangrenzende hal vanwaar de keuken, de badkamer, de woonkamer, de slaapkamer, de berging en het deels betegelde toilet bereikbaar zijn. Ook hangt hier de intercom en zijn de wanden afwisselend afgewerkt.
De keuken beschikt over een recht keukenblok met bovenkasten. Hierbij is de achterwand betegeld en voorzien van stopcontacten. Naast de spoelbak is er een inductiekookplaat aanwezig, met daarboven een afzuigkap. In een van de bovenkasten hangt de geiser en er is een aparte vaste kast aanwezig.
De volledig betegelde badkamer is uitgerust met een douchecabine, een wastafelmeubel met daarboven een spiegelkast en de aansluitingen voor de wasmachine en de droger bevinden zich in deze ruimte.
De woonkamer is direct toegankelijk via een toog en heeft veel lichtinval dankzij de grote raampartij. De wanden zijn hier afwisselend afgewerkt en er is een directe verbinding met de aangrenzende eetkamer. Deze is afsluitbaar doormiddel van een schuifdeur en heeft een toegangsdeur naar het balkon. De wanden zijn hier behangen en indien gewenst is deze kamer ook zeker als slaapkamer te gebruiken.
Het balkon is praktisch overdekt en geeft daardoor veel beschutting. Doordat het appartement is gelegen op de bovenste verdieping en er vanaf hier een weids uitzicht over de wijk.
De slaapkamer is gelegen tegenover de badkamer en beschikt over een grote vaste kast. De wanden zijn behangen en naast een tweepersoonsbed is er ook nog voldoende ruimte voor een garderobekast.
De inpandige berging is handig voor het opbergen van spullen, maar ook prima te gebruiken als inloopkast.
BIJZONDERHEDEN
- De woning is grotendeels voorzien van hardhouten kozijnen met dubbel glas, deels voorzien van enkel glas en de woonkamer beschikt over kunststof kozijnen met dubbel glas
- Geiser voor warm water (circa 10-12 jaar oud)
- Blokverwarming
- Actieve VvE € 264,- per maand, inclusief voorschot stookkosten van € 59,-- per maand
- Eigen berging in de onderbouw
- Erfpacht afgekocht tot 1-7-2040
- Bouwjaar 1967
- Energielabel E
- Oplevering in overleg
Woonoppervlakte
De Meetinstructie is gebaseerd op de NEN2580. De Meetinstructie is bedoeld om een meer eenduidige manier van meten toe te passen voor het geven van een indicatie van de gebruiksoppervlakte. De Meetinstructie sluit verschillen in meetuitkomsten niet volledig uit, door bijvoorbeeld interpretatieverschillen, afrondingen of beperkingen bij het uitvoeren van de meting. Indien de exacte maten voor een koper van cruciaal belang zijn, adviseren wij deze zelf na te meten. De (kandidaat)koper(s) zullen, indien gewenst, daartoe in de gelegenheid gesteld worden op een passend moment teneinde teleurstellingen en schade te voorkomen.
Ouderdomsclausule
Bij woningen ouder dan 30 jaar zal er standaard in de koopakte een ouderdomsclausule worden opgenomen.
Notariskeuze en kosten
In principe ligt de notariskeuze bij de koper. Het doorhalen van de hypothecaire inschrijving in het kadaster moet door de verkoper betaald worden. Zijn de kosten voor deze doorhaling hoger dan € 400,- inclusief BTW dan wordt het meerdere bij de koper in rekening gebracht. Indien de koper een notaris kiest buiten een straal van 20 kilometer van de verkochte onroerende zaak dan zijn de eventuele kosten die de notaris berekent voor een eventuele verkoopvolmacht en legalisatie hiervan ten behoeve van de verkoper voor rekening van de koper.
Zelfbewoningsplicht
Koper is bekend met de zelfbewoningsplicht welke vanaf 01-01-2023 binnen de gemeente Schiedam van kracht is. De verkopend makelaar heeft koper doorverwezen naar de gemeente Schiedam omtrent de desbetreffende regelgeving. Verkoper noch verkopend makelaar aanvaarden geen enkele aansprakelijkheid voor geleden schade wegens het niet juist naleven van deze zelfbewoningsplicht.
Gunning
Verkoper behoudt zich uitdrukkelijk het recht voor het object te gunnen aan de gegadigde van zijn keuze.
Nadrukkelijk zij vermeld dat alle informatie in deze brochure moet beschouwd worden als een uitnodiging tot het doen van een bod of om in onderhandeling te treden. Er kunnen geen rechten worden ontleend aan deze informatie.
Vlietlanden NVM Makelaars streeft ernaar de informatie op haar website / brochures en andere uitingen zo actueel en nauwkeurig mogelijk weer te geven. Hoewel de informatie met de grootst mogelijke zorgvuldigheid is samengesteld aanvaarden wij geen enkele aansprakelijkheid ten aanzien van de juistheid van de vermelde gegevens.
INDELING
De entree van het complex is afgesloten en voorzien van een bellentableau en de brievenbussen. Na de ingang is er toegang tot de centrale entreehal, vanwaar er via een lift en een trap toegang is tot de verdiepingen en de eigen berging in de onderbouw.
APPARTEMENT
Na de voordeur is er een binnenkomst in de afsluitbare entreehal die is voorzien van de meterkast. De wanden zijn hier afgewerkt met granol en op de vloer ligt laminaat, dat is doorgetrokken naar de aangrenzende hal, de slaapkamer, de woonkamer, de eetkamer en de berging.
Vanuit de entreehal is er toegang tot de aangrenzende hal vanwaar de keuken, de badkamer, de woonkamer, de slaapkamer, de berging en het deels betegelde toilet bereikbaar zijn. Ook hangt hier de intercom en zijn de wanden afwisselend afgewerkt.
De keuken beschikt over een recht keukenblok met bovenkasten. Hierbij is de achterwand betegeld en voorzien van stopcontacten. Naast de spoelbak is er een inductiekookplaat aanwezig, met daarboven een afzuigkap. In een van de bovenkasten hangt de geiser en er is een aparte vaste kast aanwezig.
De volledig betegelde badkamer is uitgerust met een douchecabine, een wastafelmeubel met daarboven een spiegelkast en de aansluitingen voor de wasmachine en de droger bevinden zich in deze ruimte.
De woonkamer is direct toegankelijk via een toog en heeft veel lichtinval dankzij de grote raampartij. De wanden zijn hier afwisselend afgewerkt en er is een directe verbinding met de aangrenzende eetkamer. Deze is afsluitbaar doormiddel van een schuifdeur en heeft een toegangsdeur naar het balkon. De wanden zijn hier behangen en indien gewenst is deze kamer ook zeker als slaapkamer te gebruiken.
Het balkon is praktisch overdekt en geeft daardoor veel beschutting. Doordat het appartement is gelegen op de bovenste verdieping en er vanaf hier een weids uitzicht over de wijk.
De slaapkamer is gelegen tegenover de badkamer en beschikt over een grote vaste kast. De wanden zijn behangen en naast een tweepersoonsbed is er ook nog voldoende ruimte voor een garderobekast.
De inpandige berging is handig voor het opbergen van spullen, maar ook prima te gebruiken als inloopkast.
BIJZONDERHEDEN
- De woning is grotendeels voorzien van hardhouten kozijnen met dubbel glas, deels voorzien van enkel glas en de woonkamer beschikt over kunststof kozijnen met dubbel glas
- Geiser voor warm water (circa 10-12 jaar oud)
- Blokverwarming
- Actieve VvE € 264,- per maand, inclusief voorschot stookkosten van € 59,-- per maand
- Eigen berging in de onderbouw
- Erfpacht afgekocht tot 1-7-2040
- Bouwjaar 1967
- Energielabel E
- Oplevering in overleg
Woonoppervlakte
De Meetinstructie is gebaseerd op de NEN2580. De Meetinstructie is bedoeld om een meer eenduidige manier van meten toe te passen voor het geven van een indicatie van de gebruiksoppervlakte. De Meetinstructie sluit verschillen in meetuitkomsten niet volledig uit, door bijvoorbeeld interpretatieverschillen, afrondingen of beperkingen bij het uitvoeren van de meting. Indien de exacte maten voor een koper van cruciaal belang zijn, adviseren wij deze zelf na te meten. De (kandidaat)koper(s) zullen, indien gewenst, daartoe in de gelegenheid gesteld worden op een passend moment teneinde teleurstellingen en schade te voorkomen.
Ouderdomsclausule
Bij woningen ouder dan 30 jaar zal er standaard in de koopakte een ouderdomsclausule worden opgenomen.
Notariskeuze en kosten
In principe ligt de notariskeuze bij de koper. Het doorhalen van de hypothecaire inschrijving in het kadaster moet door de verkoper betaald worden. Zijn de kosten voor deze doorhaling hoger dan € 400,- inclusief BTW dan wordt het meerdere bij de koper in rekening gebracht. Indien de koper een notaris kiest buiten een straal van 20 kilometer van de verkochte onroerende zaak dan zijn de eventuele kosten die de notaris berekent voor een eventuele verkoopvolmacht en legalisatie hiervan ten behoeve van de verkoper voor rekening van de koper.
Zelfbewoningsplicht
Koper is bekend met de zelfbewoningsplicht welke vanaf 01-01-2023 binnen de gemeente Schiedam van kracht is. De verkopend makelaar heeft koper doorverwezen naar de gemeente Schiedam omtrent de desbetreffende regelgeving. Verkoper noch verkopend makelaar aanvaarden geen enkele aansprakelijkheid voor geleden schade wegens het niet juist naleven van deze zelfbewoningsplicht.
Gunning
Verkoper behoudt zich uitdrukkelijk het recht voor het object te gunnen aan de gegadigde van zijn keuze.
Nadrukkelijk zij vermeld dat alle informatie in deze brochure moet beschouwd worden als een uitnodiging tot het doen van een bod of om in onderhandeling te treden. Er kunnen geen rechten worden ontleend aan deze informatie.
Vlietlanden NVM Makelaars streeft ernaar de informatie op haar website / brochures en andere uitingen zo actueel en nauwkeurig mogelijk weer te geven. Hoewel de informatie met de grootst mogelijke zorgvuldigheid is samengesteld aanvaarden wij geen enkele aansprakelijkheid ten aanzien van de juistheid van de vermelde gegevens.
Kenmerken
Overdracht
- vraagprijs
- € 250.000 k.k.
- Status
- Onder bod
- Aanvaarding
- In overleg
Bouw
- Soort woning
- Galerijflat, appartement
- Soort bouw
- Bestaande bouw
Oppervlakten en inhoud
- Woonoppervlakte
- 67 m²
- Externe bergruimte
- 5 m²
- Inhoud
- 213 m³
Indeling
- Aantal kamers
- 3 kamers (1 slaapkamer)
- Aantal verdiepingen
- 1 Verdiepingen
- Voorzieningen
- Tv kabel, lift
Energie
- Energielabel
- E
- Isolatie
- Gedeeltelijk dubbel glas
Buitenruimte
- Ligging
- In woonwijk, vrij uitzicht
- Tuin
- Geen tuin
Garage
- Soort garage
- Geen garage
Parkeren
- Soort parkeergelegenheid
- Openbaar parkeren