Ambonlaan 72
€ 325.000 k.k.
Vlaardingen
Eengezinswoning
70 m²
2 slaapkamers
Noord
In overleg
In de altijd levendige en sfeervolle Indische buurt vind je deze charmante twee-onder-een-kapwoning, waar het dagelijks leven moeiteloos samengaat met comfort en gemak. Hier woon je op een ideale locatie. Het gezellige stadscentrum ligt op loopafstand, het openbaar vervoer is om de hoek en via de nabijgelegen uitvalswegen ben je zó onderweg naar Rotterdam of het strand. De buurt staat bekend om haar vriendelijke sfeer, met scholen, winkels en groenvoorzieningen allemaal dichtbij, perfect voor wie graag alles binnen handbereik heeft. De woning zelf straalt warmte en karakter uit, met een fraai aangelegde voor- en achtertuin waar je heerlijk kunt genieten van het buitenleven. In de achtertuin vind je bovendien een houten berging en een praktische achterom. Binnen zorgen de open haard in de woonkamer, de nette afwerking en de fijne indeling met twee slaapkamers voor een huiselijke sfeer. De handige vliering biedt extra bergruimte en parkeren doe je hier nog gewoon gratis voor de deur. Kortom, een gezellige woning op een toplocatie waar wonen voelt als thuiskomen!
INDELING
Vanaf het trottoir is er een open toegang tot het bestraatte pad naar de voordeur. Hierboven hangt een gedeelde luifel en de voortuin heeft een laag sierhek ter afscheiding. Te midden van de voortuin staat een kleine boom met daaromheen sierbestrating. Rondom het hekwerk is diverse beplanting aanwezig en aan de gevel hangt een markies.
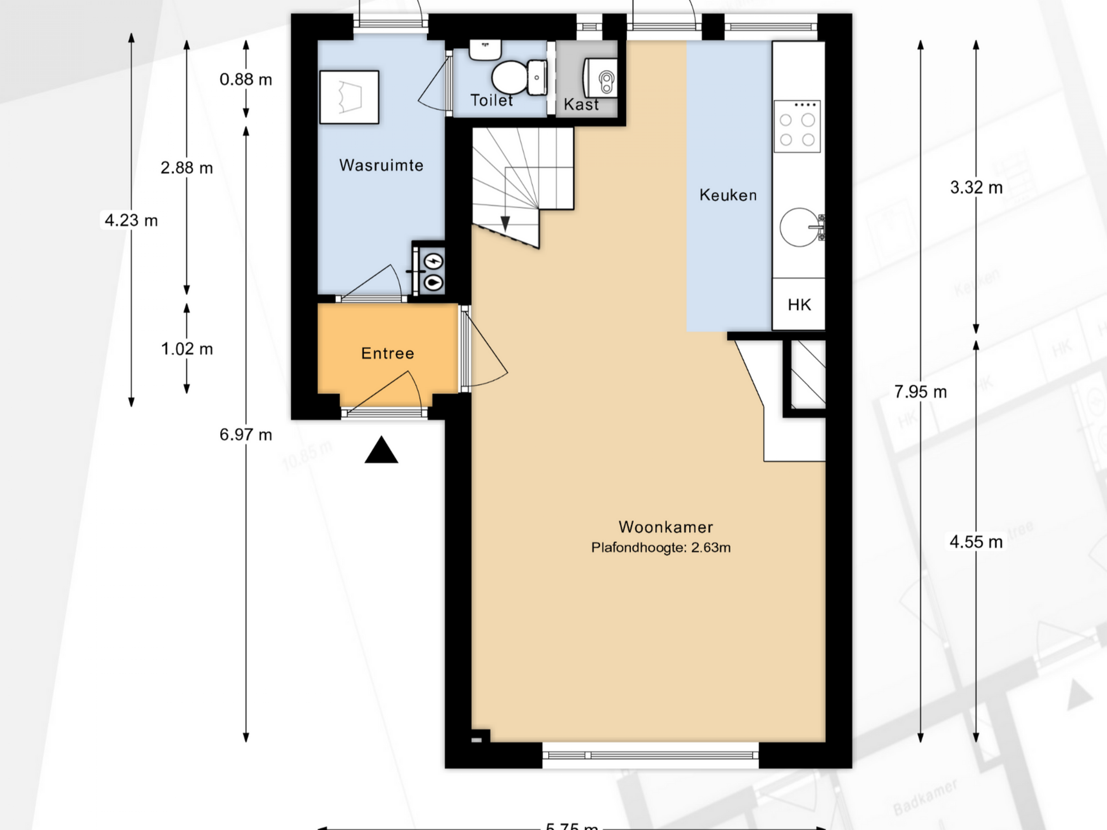
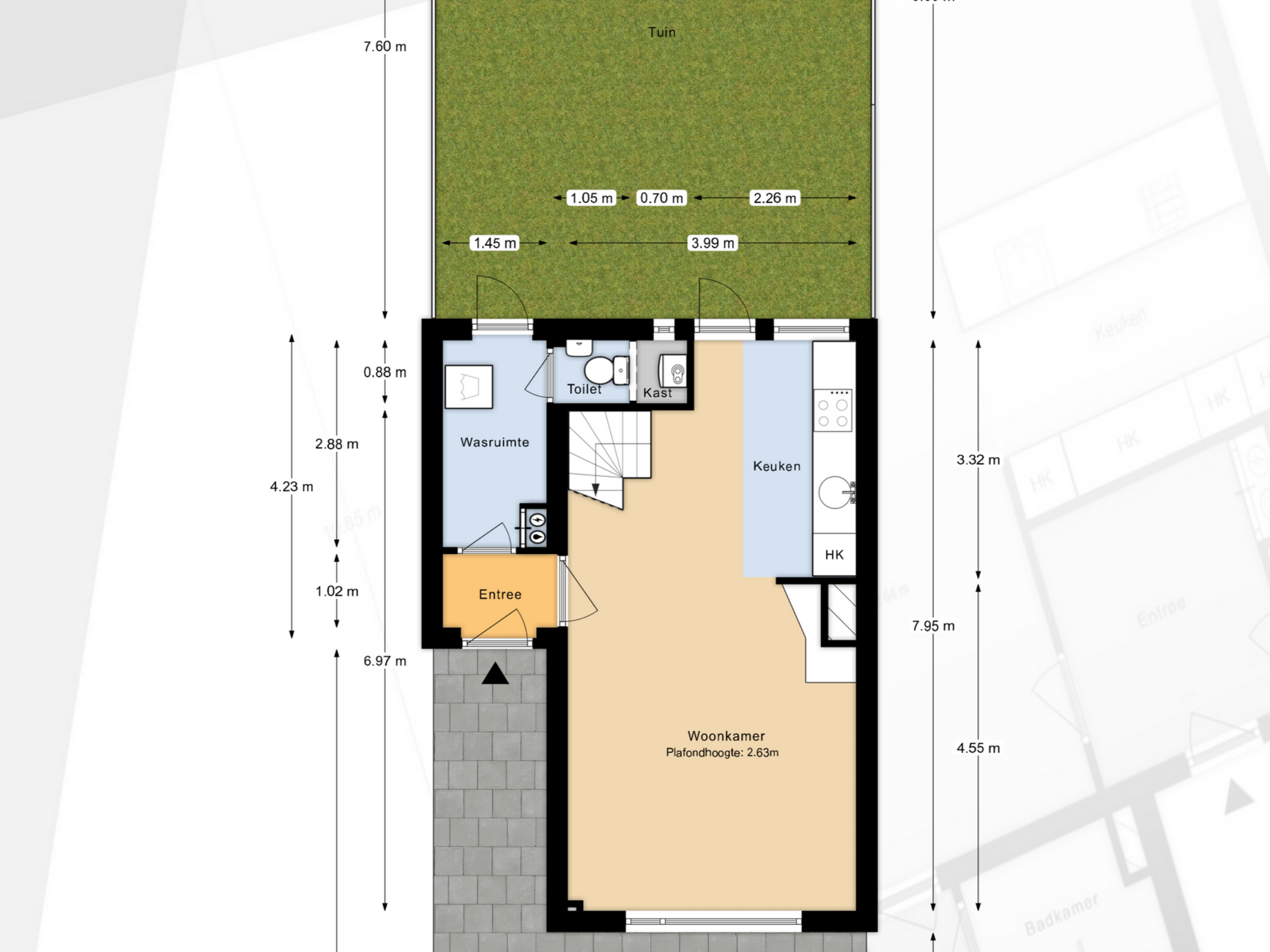
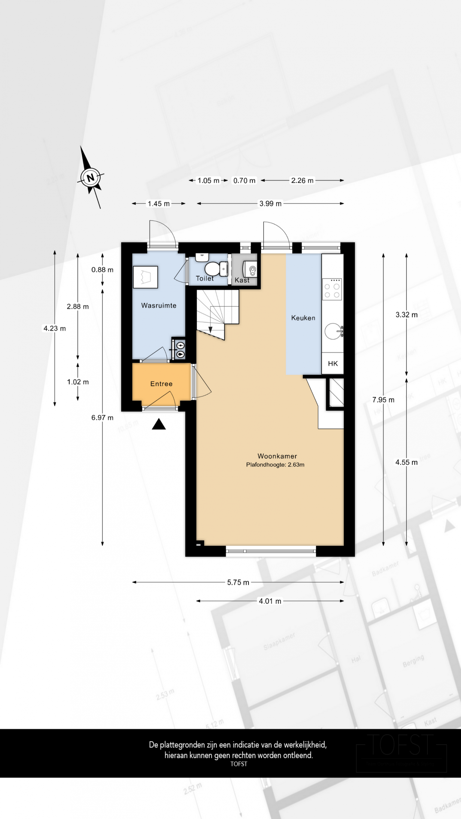
BEGANE GROND
Na de voordeur is er een binnenkomst in de afsluitbare entreehal, die geeft toegang tot de woonkamer en de wasruimte. De wanden zijn afgewerkt met spachtelputz, het kunststof plafond heeft een inbouw spots en de vloer is voorzien van tegels, die geheel zijn terug te vinden op deze verdieping. De woonkamer is opgedeeld met een zithoek aan de voorzijde en een eethoek met de trap naar de verdieping aan de achterzijde. De zithoek beschikt over een schouw met een open haard en vanuit de eethoek is er een open verbinding met de keuken.
De keuken is voorzien van een recht keukenblok met een hoge kast en bovenkasten met verlichting. Het aanrechtblad loopt door naar de achterwand en het muurtje onder het raam, naast de deur naar de tuin, is halfhoog betegeld. Daarnaast is er diverse apparatuur aanwezig, waaronder een koel-/vriescombinatie, een inductiekookplaat en een in een bovenkast verwerkte afzuigkap.
De achtertuin is grotendeels voorzien van siergrind tegels met langs de houten schuttingen stenen borders met beplanting. Achterin de tuin staat een berging en er is een achterom. Aan de gevel hangt een waterkraantje en er is een deur naar de wasruimte.
De wasruimte is voorzien van een aansluiting voor de wasmachine en de droger en heeft daarnaast ook de functie van een hal die toegang geeft tot de meterkast, de achtertuin en het toilet.
Het toilet is opgedeeld in een voor- en achtergedeelte. Het voorgedeelte is volledig betegeld en voorzien van een toiletpot en een fonteintje. Het plafond is hier glad afgewerkt en voorzien van een inbouw spots. Er is een open verbinding met het achtergedeelte, de kast, waarin de opstelling van de Cv-ketel zich bevindt. Het plafond is afgewerkt met kunststof panelen, de wanden zijn voorzien van spachtelputz en er is een raampje.
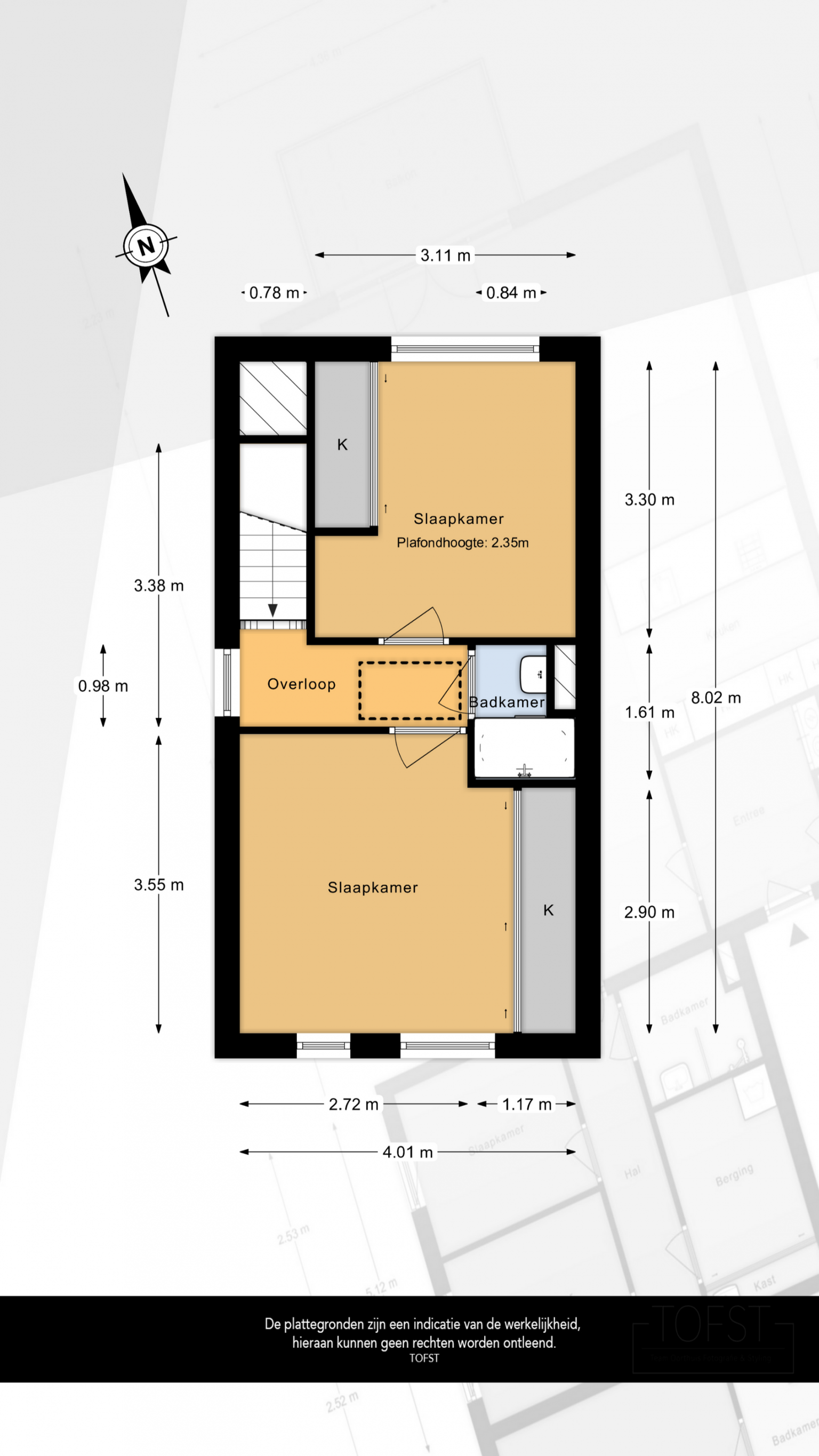
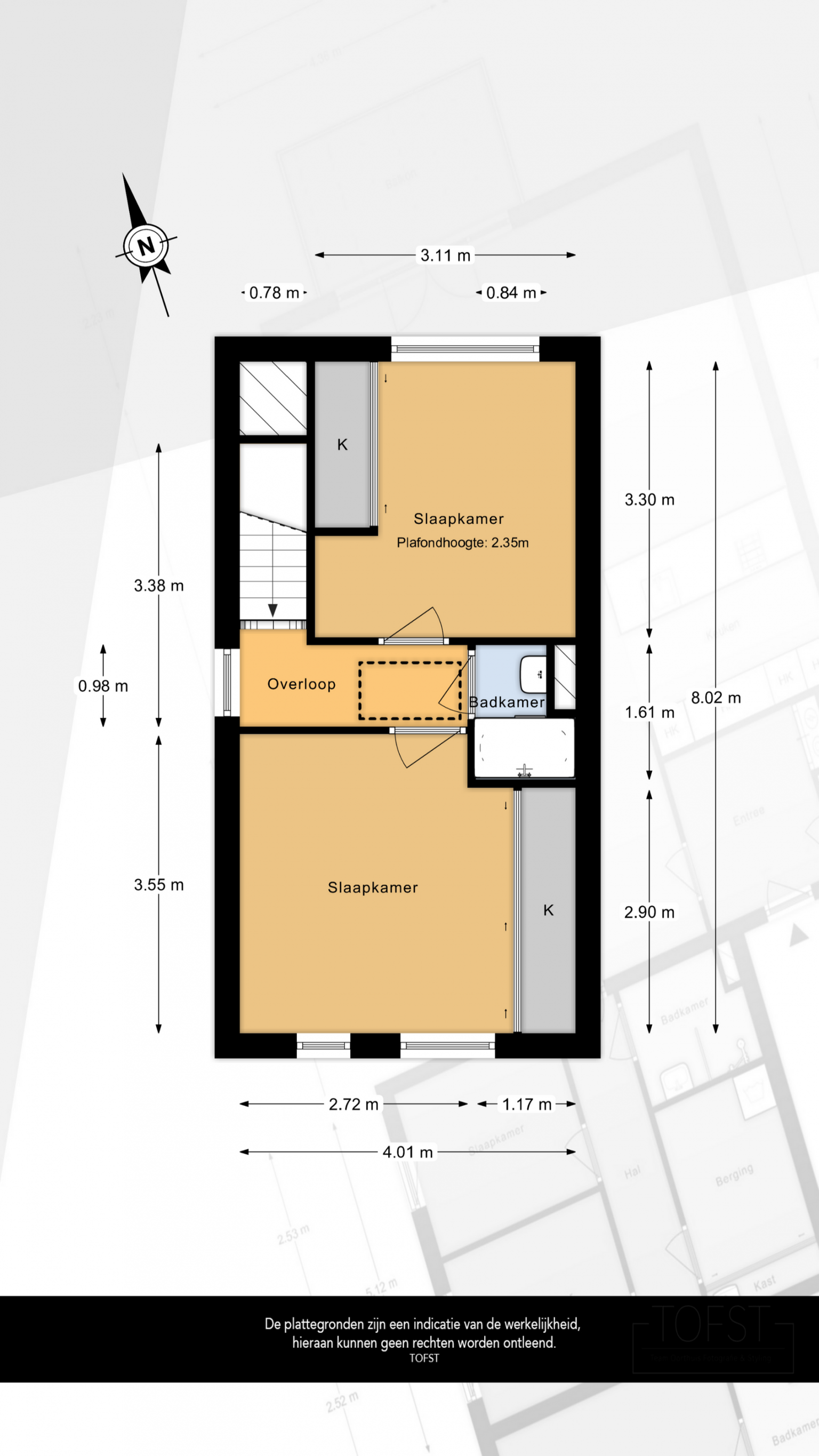
1E VERDIEPING
Na de trapopgang is de overloop bereikbaar. Deze geeft toegang tot twee slaapkamers, de badkamer en het luik naar de vliering die bereikbaar is via een vlizotrap. Op de vloer ligt vloerbedekking en de wanden zijn afgewerkt met granol.
De twee slaapkamers zijn verdeeld gelegen over de voor- en de achterzijde en beschikken beide over een vaste kast met schuifdeuren. De vloeren zijn voorzien van vloerbedekking, de wanden zijn behangen en de kunststof plafonds hebben inbouw spots.
De inpandige badkamer is volledig betegeld en heeft een kunststof plafond met inbouw spots. Het is uitgerust met een ligbad met een douche en een wastafel.
BIJZONDERHEDEN
- De woning is voorzien van hardhouten kozijnen met dubbel glas
- De kozijnen op de begane grond aan de achtergevel zijn voorzien van glas-in-lood
- Er is een open haard aanwezig
- Er hangt een markies aan de voorgevel
- Beschikking over een voor- en achtertuin
- Eigen berging in de achtertuin met achterom
- Cv-ketel voor verwarming en warm water (2020)
- Vrij parkeren voor de deur
- Gelegen op eigen grond
- Bouwjaar 1951
- Energielabel D
- Oplevering in overleg
Woonoppervlakte
De Meetinstructie is gebaseerd op de NEN2580. De Meetinstructie is bedoeld om een meer eenduidige manier van meten toe te passen voor het geven van een indicatie van de gebruiksoppervlakte. De Meetinstructie sluit verschillen in meetuitkomsten niet volledig uit, door bijvoorbeeld interpretatieverschillen, afrondingen of beperkingen bij het uitvoeren van de meting. Indien de exacte maten voor een koper van cruciaal belang zijn, adviseren wij deze zelf na te meten. De (kandidaat)koper(s) zullen, indien gewenst, daartoe in de gelegenheid gesteld worden op een passend moment teneinde teleurstellingen en schade te voorkomen.
Ouderdomsclausule
Bij woningen ouder dan 30 jaar zal er standaard in de koopakte een ouderdomsclausule worden opgenomen.
Notariskeuze en kosten
In principe ligt de notariskeuze bij de koper. Het doorhalen van de hypothecaire inschrijving in het kadaster moet door de verkoper betaald worden. Zijn de kosten voor deze doorhaling hoger dan € 400,- inclusief BTW dan wordt het meerdere bij de koper in rekening gebracht. Indien de koper een notaris kiest buiten een straal van 20 kilometer van de verkochte onroerende zaak dan zijn de eventuele kosten die de notaris berekent voor een eventuele verkoopvolmacht en legalisatie hiervan ten behoeve van de verkoper voor rekening van de koper.
Zelfbewoningsplicht
Koper is bekend met de zelfbewoningsplicht welke vanaf 01-01-2023 binnen de gemeente Vlaardingen van kracht is. De verkopend makelaar heeft koper doorverwezen naar de gemeente Vlaardingen omtrent de desbetreffende regelgeving. Verkoper noch verkopend makelaar aanvaarden geen enkele aansprakelijkheid voor geleden schade wegens het niet juist naleven van deze zelfbewoningsplicht.
Gunning
Verkoper behoudt zich uitdrukkelijk het recht voor het object te gunnen aan de gegadigde van zijn keuze.
Nadrukkelijk zij vermeld dat alle informatie in deze brochure moet beschouwd worden als een uitnodiging tot het doen van een bod of om in onderhandeling te treden. Er kunnen geen rechten worden ontleend aan deze informatie.
Vlietlanden NVM Makelaars streeft ernaar de informatie op haar website / brochures en andere uitingen zo actueel en nauwkeurig mogelijk weer te geven. Hoewel de informatie met de grootst mogelijke zorgvuldigheid is samengesteld aanvaarden wij geen enkele aansprakelijkheid ten aanzien van de juistheid van de vermelde gegevens.
INDELING
Vanaf het trottoir is er een open toegang tot het bestraatte pad naar de voordeur. Hierboven hangt een gedeelde luifel en de voortuin heeft een laag sierhek ter afscheiding. Te midden van de voortuin staat een kleine boom met daaromheen sierbestrating. Rondom het hekwerk is diverse beplanting aanwezig en aan de gevel hangt een markies.
BEGANE GROND
Na de voordeur is er een binnenkomst in de afsluitbare entreehal, die geeft toegang tot de woonkamer en de wasruimte. De wanden zijn afgewerkt met spachtelputz, het kunststof plafond heeft een inbouw spots en de vloer is voorzien van tegels, die geheel zijn terug te vinden op deze verdieping. De woonkamer is opgedeeld met een zithoek aan de voorzijde en een eethoek met de trap naar de verdieping aan de achterzijde. De zithoek beschikt over een schouw met een open haard en vanuit de eethoek is er een open verbinding met de keuken.
De keuken is voorzien van een recht keukenblok met een hoge kast en bovenkasten met verlichting. Het aanrechtblad loopt door naar de achterwand en het muurtje onder het raam, naast de deur naar de tuin, is halfhoog betegeld. Daarnaast is er diverse apparatuur aanwezig, waaronder een koel-/vriescombinatie, een inductiekookplaat en een in een bovenkast verwerkte afzuigkap.
De achtertuin is grotendeels voorzien van siergrind tegels met langs de houten schuttingen stenen borders met beplanting. Achterin de tuin staat een berging en er is een achterom. Aan de gevel hangt een waterkraantje en er is een deur naar de wasruimte.
De wasruimte is voorzien van een aansluiting voor de wasmachine en de droger en heeft daarnaast ook de functie van een hal die toegang geeft tot de meterkast, de achtertuin en het toilet.
Het toilet is opgedeeld in een voor- en achtergedeelte. Het voorgedeelte is volledig betegeld en voorzien van een toiletpot en een fonteintje. Het plafond is hier glad afgewerkt en voorzien van een inbouw spots. Er is een open verbinding met het achtergedeelte, de kast, waarin de opstelling van de Cv-ketel zich bevindt. Het plafond is afgewerkt met kunststof panelen, de wanden zijn voorzien van spachtelputz en er is een raampje.
1E VERDIEPING
Na de trapopgang is de overloop bereikbaar. Deze geeft toegang tot twee slaapkamers, de badkamer en het luik naar de vliering die bereikbaar is via een vlizotrap. Op de vloer ligt vloerbedekking en de wanden zijn afgewerkt met granol.
De twee slaapkamers zijn verdeeld gelegen over de voor- en de achterzijde en beschikken beide over een vaste kast met schuifdeuren. De vloeren zijn voorzien van vloerbedekking, de wanden zijn behangen en de kunststof plafonds hebben inbouw spots.
De inpandige badkamer is volledig betegeld en heeft een kunststof plafond met inbouw spots. Het is uitgerust met een ligbad met een douche en een wastafel.
BIJZONDERHEDEN
- De woning is voorzien van hardhouten kozijnen met dubbel glas
- De kozijnen op de begane grond aan de achtergevel zijn voorzien van glas-in-lood
- Er is een open haard aanwezig
- Er hangt een markies aan de voorgevel
- Beschikking over een voor- en achtertuin
- Eigen berging in de achtertuin met achterom
- Cv-ketel voor verwarming en warm water (2020)
- Vrij parkeren voor de deur
- Gelegen op eigen grond
- Bouwjaar 1951
- Energielabel D
- Oplevering in overleg
Woonoppervlakte
De Meetinstructie is gebaseerd op de NEN2580. De Meetinstructie is bedoeld om een meer eenduidige manier van meten toe te passen voor het geven van een indicatie van de gebruiksoppervlakte. De Meetinstructie sluit verschillen in meetuitkomsten niet volledig uit, door bijvoorbeeld interpretatieverschillen, afrondingen of beperkingen bij het uitvoeren van de meting. Indien de exacte maten voor een koper van cruciaal belang zijn, adviseren wij deze zelf na te meten. De (kandidaat)koper(s) zullen, indien gewenst, daartoe in de gelegenheid gesteld worden op een passend moment teneinde teleurstellingen en schade te voorkomen.
Ouderdomsclausule
Bij woningen ouder dan 30 jaar zal er standaard in de koopakte een ouderdomsclausule worden opgenomen.
Notariskeuze en kosten
In principe ligt de notariskeuze bij de koper. Het doorhalen van de hypothecaire inschrijving in het kadaster moet door de verkoper betaald worden. Zijn de kosten voor deze doorhaling hoger dan € 400,- inclusief BTW dan wordt het meerdere bij de koper in rekening gebracht. Indien de koper een notaris kiest buiten een straal van 20 kilometer van de verkochte onroerende zaak dan zijn de eventuele kosten die de notaris berekent voor een eventuele verkoopvolmacht en legalisatie hiervan ten behoeve van de verkoper voor rekening van de koper.
Zelfbewoningsplicht
Koper is bekend met de zelfbewoningsplicht welke vanaf 01-01-2023 binnen de gemeente Vlaardingen van kracht is. De verkopend makelaar heeft koper doorverwezen naar de gemeente Vlaardingen omtrent de desbetreffende regelgeving. Verkoper noch verkopend makelaar aanvaarden geen enkele aansprakelijkheid voor geleden schade wegens het niet juist naleven van deze zelfbewoningsplicht.
Gunning
Verkoper behoudt zich uitdrukkelijk het recht voor het object te gunnen aan de gegadigde van zijn keuze.
Nadrukkelijk zij vermeld dat alle informatie in deze brochure moet beschouwd worden als een uitnodiging tot het doen van een bod of om in onderhandeling te treden. Er kunnen geen rechten worden ontleend aan deze informatie.
Vlietlanden NVM Makelaars streeft ernaar de informatie op haar website / brochures en andere uitingen zo actueel en nauwkeurig mogelijk weer te geven. Hoewel de informatie met de grootst mogelijke zorgvuldigheid is samengesteld aanvaarden wij geen enkele aansprakelijkheid ten aanzien van de juistheid van de vermelde gegevens.
Kenmerken
Overdracht
- vraagprijs
- € 325.000 k.k.
- Status
- Verkocht onder voorbehoud
- Aanvaarding
- In overleg
Bouw
- Soort woning
- Eengezinswoning, 2-onder-1-kapwoning
- Soort bouw
- Bestaande bouw
Oppervlakten en inhoud
- Woonoppervlakte
- 70 m²
- Externe bergruimte
- 7 m²
- Perceel
- 139 m²
- Inhoud
- 277 m³
Indeling
- Aantal kamers
- 3 kamers (2 slaapkamers)
- Aantal verdiepingen
- 2 Verdiepingen
- Voorzieningen
- Buitenzonwering
Energie
- Energielabel
- D
- Isolatie
- Dubbel glas
Buitenruimte
- Ligging
- In woonwijk
- Tuin
- Achtertuin, voortuin
- Achtertuin
- 55 m² (9m Diep / 6,15m Breed)
- Ligging tuin
- Noord
Garage
- Soort garage
- Geen garage
Parkeren
- Soort parkeergelegenheid
- Openbaar parkeren