Celsiusstraat 42 A 1
€ 300.000 k.k.
Schiedam
Maisonnette
90 m²
2 slaapkamers
In overleg
Wonen op een plek waar het stadsleven en comfort elkaar ontmoeten? Dat kan hier! Dit 3-kamerappartement met twee woonlagen is gelegen in een gezellige, levendige buurt van Schiedam, waar je binnen no-time geniet van alles wat de stad te bieden heeft. Om de hoek vind je winkels, supermarkten, gezellige koffietentjes en het openbaar vervoer, terwijl het historische centrum met haar sfeervolle straatjes en horeca slechts een korte wandeling verwijderd is. Ook uitvalswegen richting Rotterdam en Vlaardingen zijn snel bereikbaar, wat deze locatie extra aantrekkelijk maakt. Binnen is het appartement minstens zo bijzonder als de ligging. De woonkamer met grote raampartijen en een opvallend afgewerkt plafond ademt sfeer en ruimte, terwijl de moderne open keuken met kookeiland het hart van de woning vormt. Een plek waar koken, gezelligheid en design perfect samenkomen. De volledig betegelde badkamer is een fijne verrassing: strak afgewerkt, voorzien van een moderne inloopdouche, een stijlvol wastafelmeubel, ingebouwde verlichting en een aansluiting voor de wasmachine. De twee slaapkamers zijn ruim van opzet, keurig afgewerkt en beide voorzien van airconditioning voor extra comfort. En alsof dat nog niet genoeg is, beschik je over twee balkons waar je op elk moment van de dag kunt genieten van zon, uitzicht en ontspanning. Kortom, een verrassend ruim, comfortabel en eigentijds appartement op een ideale plek in Schiedam.
INDELING
De entree van het complex is bereikbaar vanaf de straat. Binnen bevinden zich de brievenbussen en is er een trap naar de verdiepingen.
1E VERDIEPING
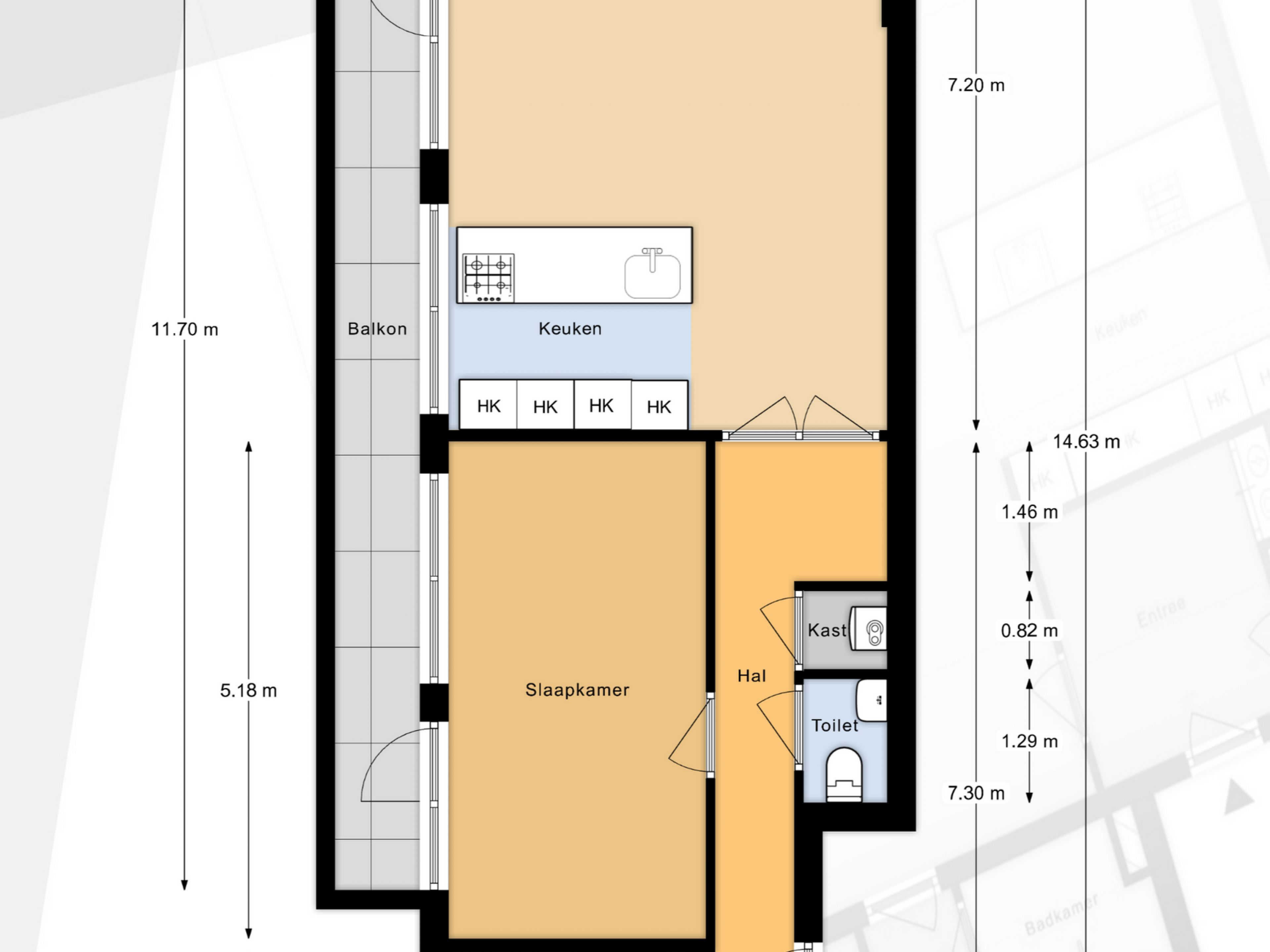
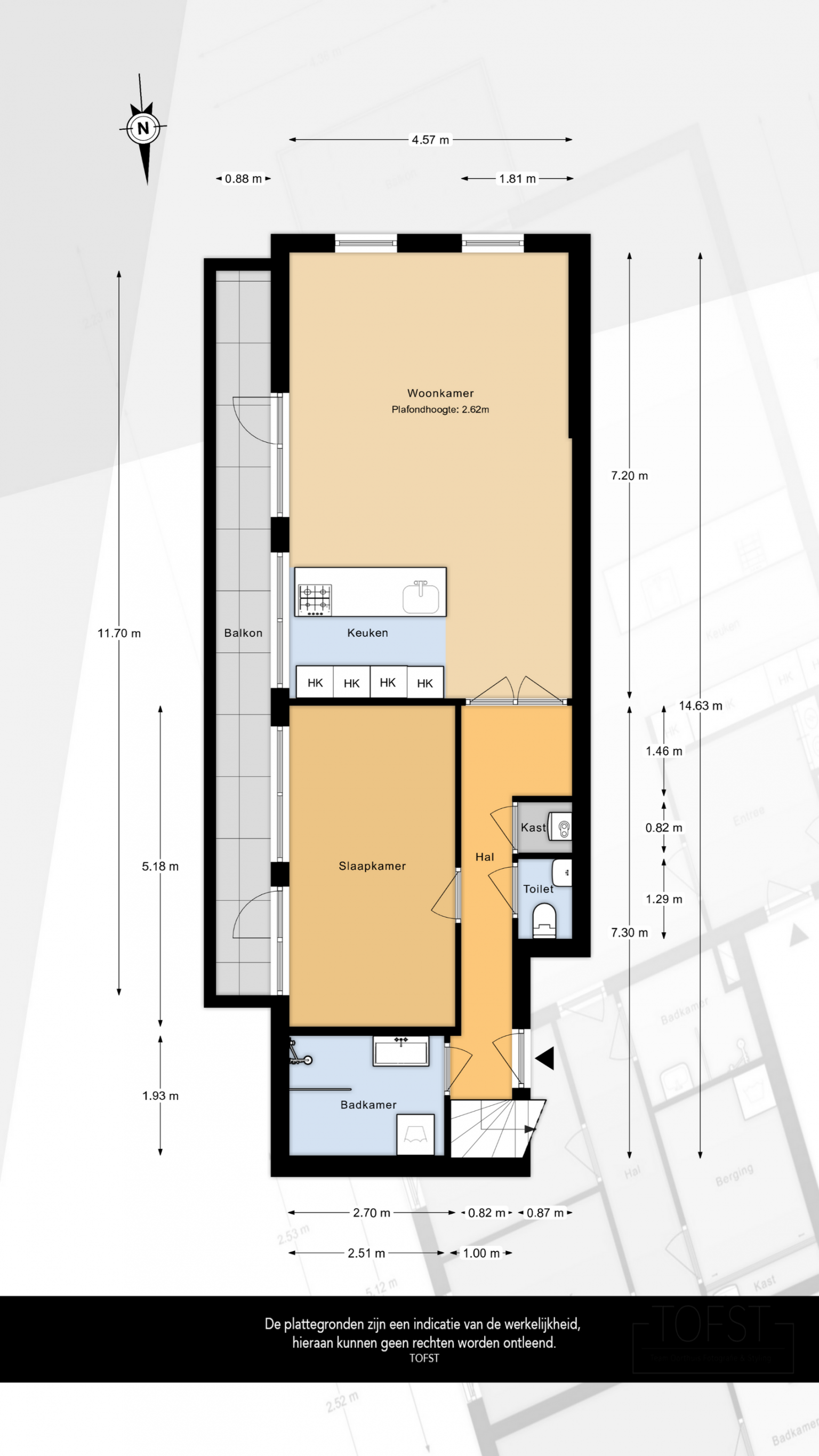
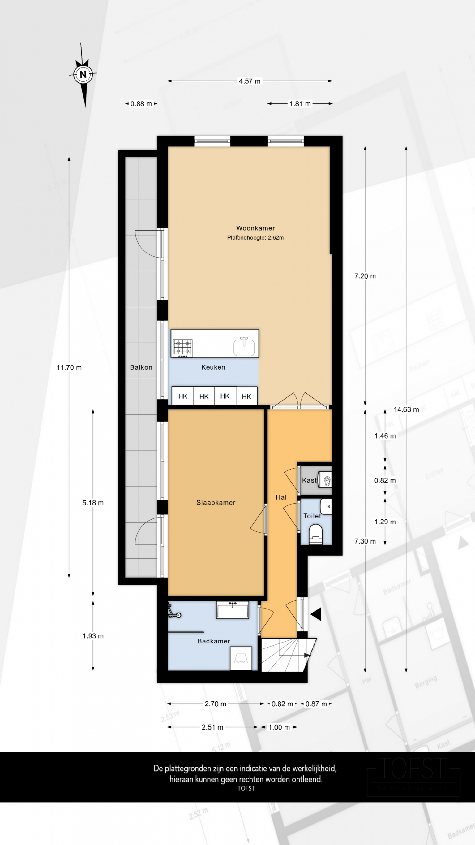
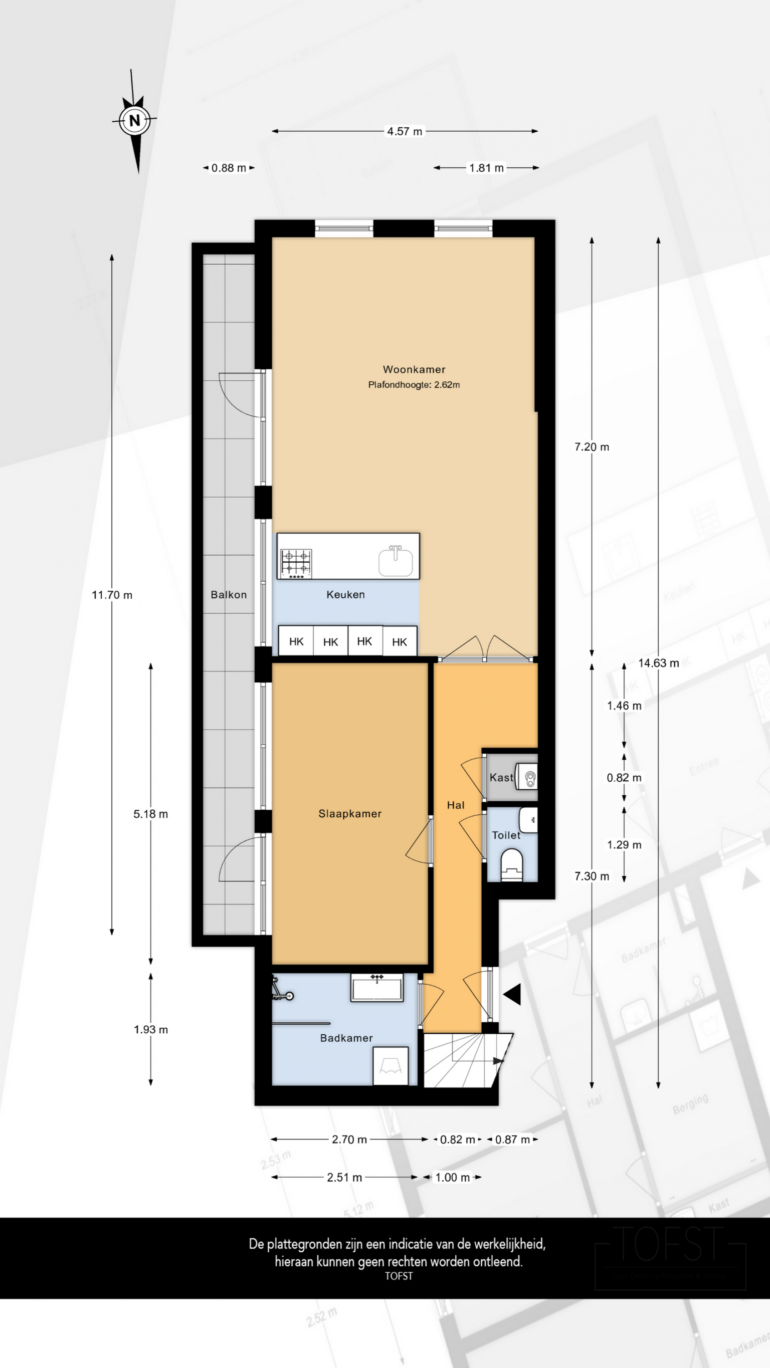
Na de voordeur is er een binnenkomst in de hal. Deze geeft toegang tot de gestoffeerde trap naar de verdieping, de badkamer, de eerste slaapkamer, de woonkamer, een vaste kast met daarin de opstelling van de Cv-ketel en het deels betegelde toilet dat extra is voorzien van een fonteintje. De wanden zijn afgewerkt met stucwerk en op de vloer ligt laminaat, dat drempelloos is doorgetrokken naar de woonkamer en de eerste slaapkamer.
De woonkamer is gelegen aan de eind van de hal en is bereikbaar via openslaande deuren. Er zijn grote raampartijen en het plafond is bijzonder afgewerkt met moderne verlichting. Er is een deur naar het balkon en er is een verbinding met de open keuken. Deze wordt door een groot kookeiland gescheiden van de woonkamer en biedt plaats aan zeker drie barkrukken. Achter het kookeiland is een grote kastenwand met daarboven airconditioning. De spoelbak is voorzien van een keukenkraan met een flexibele uitloop en er is diverse apparatuur aanwezig, zoals een koel-/vriescombinatie, een combi oven, een koffiezetapparaat, een vaatwasser, een 5-pits gaskookplaat en een afzuigkap.
De eerste slaapkamer heeft een goede afmeting en biedt voldoende ruimte voor een tweepersoonsbed en een grote garderobekast. Daarnaast is er een deur naar het balkon en hangt er airconditioning.
De inpandige badkamer is volledig betegeld en voorzien van een kunststof plafond met inbouw spots. Verder is de badkamer uitgerust met een inloopdouche, een wastafelmeubel en bevindt zich hier de wasmachineaansluiting.
3E VERDIEPING
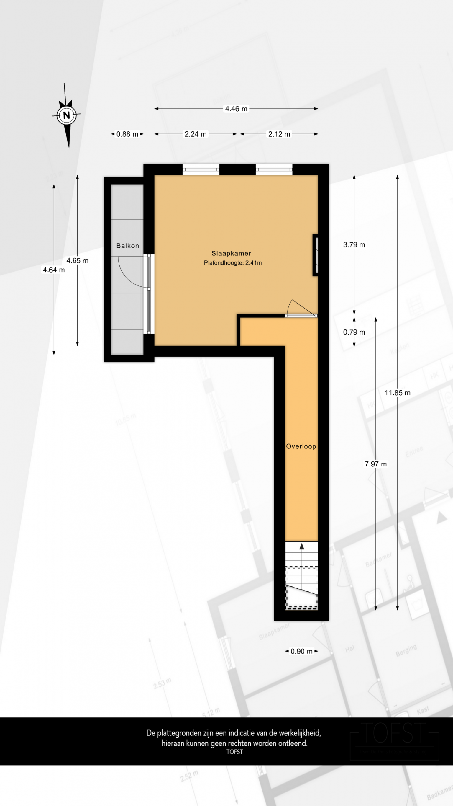
Na de trapopgang is er toegang tot de lange, smalle overloop die aan het eind toegang geeft tot de tweede slaapkamer. Het glad afgewerkte plafond is voorzien van inbouw spots, de wanden zijn gestuukt en op de vloer ligt laminaat, dat drempelloos doorloopt naar de slaapkamer.
De tweede slaapkamer biedt net als de eerste voldoende ruimte en heeft ook een deur naar een tweede balkon. Ook hier is het plafond glad afgewerkt en zijn de wanden voorzien van stucwerk.
BIJZONDERHEDEN
- De woning is voorzien van hardhouten kozijnen met dubbel glas
- Alle wanden zijn gestuukt
- De woning is grotendeels voorzien van een laminaatvloer
- De beschikking over twee balkons
- De keuken en de eerste slaapkamer zijn voorzien van airconditioning
- Cv-ketel voor verwarming en warm water
- Actieve VvE
- Bouwjaar 1930
- Energielabel E
- Oplevering in overleg
Woonoppervlakte
De Meetinstructie is gebaseerd op de NEN2580. De Meetinstructie is bedoeld om een meer eenduidige manier van meten toe te passen voor het geven van een indicatie van de gebruiksoppervlakte. De Meetinstructie sluit verschillen in meetuitkomsten niet volledig uit, door bijvoorbeeld interpretatieverschillen, afrondingen of beperkingen bij het uitvoeren van de meting. Indien de exacte maten voor een koper van cruciaal belang zijn, adviseren wij deze zelf na te meten. De (kandidaat)koper(s) zullen, indien gewenst, daartoe in de gelegenheid gesteld worden op een passend moment teneinde teleurstellingen en schade te voorkomen.
Ouderdomsclausule
Bij woningen ouder dan 30 jaar zal er standaard in de koopakte een ouderdomsclausule worden opgenomen.
Notariskeuze en kosten
In principe ligt de notariskeuze bij de koper. Het doorhalen van de hypothecaire inschrijving in het kadaster moet door de verkoper betaald worden. Zijn de kosten voor deze doorhaling hoger dan € 400,- inclusief BTW dan wordt het meerdere bij de koper in rekening gebracht. Indien de koper een notaris kiest buiten een straal van 20 kilometer van de verkochte onroerende zaak dan zijn de eventuele kosten die de notaris berekent voor een eventuele verkoopvolmacht en legalisatie hiervan ten behoeve van de verkoper voor rekening van de koper.
Zelfbewoningsplicht
Koper is bekend met de zelfbewoningsplicht welke vanaf 01-01-2023 binnen de gemeente Schiedam van kracht is. De verkopend makelaar heeft koper doorverwezen naar de gemeente Schiedam omtrent de desbetreffende regelgeving. Verkoper noch verkopend makelaar aanvaarden geen enkele aansprakelijkheid voor geleden schade wegens het niet juist naleven van deze zelfbewoningsplicht.
Gunning
Verkoper behoudt zich uitdrukkelijk het recht voor het object te gunnen aan de gegadigde van zijn keuze.
Nadrukkelijk zij vermeld dat alle informatie in deze brochure moet beschouwd worden als een uitnodiging tot het doen van een bod of om in onderhandeling te treden. Er kunnen geen rechten worden ontleend aan deze informatie.
Vlietlanden NVM Makelaars streeft ernaar de informatie op haar website / brochures en andere uitingen zo actueel en nauwkeurig mogelijk weer te geven. Hoewel de informatie met de grootst mogelijke zorgvuldigheid is samengesteld aanvaarden wij geen enkele aansprakelijkheid ten aanzien van de juistheid van de vermelde gegevens.
INDELING
De entree van het complex is bereikbaar vanaf de straat. Binnen bevinden zich de brievenbussen en is er een trap naar de verdiepingen.
1E VERDIEPING
Na de voordeur is er een binnenkomst in de hal. Deze geeft toegang tot de gestoffeerde trap naar de verdieping, de badkamer, de eerste slaapkamer, de woonkamer, een vaste kast met daarin de opstelling van de Cv-ketel en het deels betegelde toilet dat extra is voorzien van een fonteintje. De wanden zijn afgewerkt met stucwerk en op de vloer ligt laminaat, dat drempelloos is doorgetrokken naar de woonkamer en de eerste slaapkamer.
De woonkamer is gelegen aan de eind van de hal en is bereikbaar via openslaande deuren. Er zijn grote raampartijen en het plafond is bijzonder afgewerkt met moderne verlichting. Er is een deur naar het balkon en er is een verbinding met de open keuken. Deze wordt door een groot kookeiland gescheiden van de woonkamer en biedt plaats aan zeker drie barkrukken. Achter het kookeiland is een grote kastenwand met daarboven airconditioning. De spoelbak is voorzien van een keukenkraan met een flexibele uitloop en er is diverse apparatuur aanwezig, zoals een koel-/vriescombinatie, een combi oven, een koffiezetapparaat, een vaatwasser, een 5-pits gaskookplaat en een afzuigkap.
De eerste slaapkamer heeft een goede afmeting en biedt voldoende ruimte voor een tweepersoonsbed en een grote garderobekast. Daarnaast is er een deur naar het balkon en hangt er airconditioning.
De inpandige badkamer is volledig betegeld en voorzien van een kunststof plafond met inbouw spots. Verder is de badkamer uitgerust met een inloopdouche, een wastafelmeubel en bevindt zich hier de wasmachineaansluiting.
3E VERDIEPING
Na de trapopgang is er toegang tot de lange, smalle overloop die aan het eind toegang geeft tot de tweede slaapkamer. Het glad afgewerkte plafond is voorzien van inbouw spots, de wanden zijn gestuukt en op de vloer ligt laminaat, dat drempelloos doorloopt naar de slaapkamer.
De tweede slaapkamer biedt net als de eerste voldoende ruimte en heeft ook een deur naar een tweede balkon. Ook hier is het plafond glad afgewerkt en zijn de wanden voorzien van stucwerk.
BIJZONDERHEDEN
- De woning is voorzien van hardhouten kozijnen met dubbel glas
- Alle wanden zijn gestuukt
- De woning is grotendeels voorzien van een laminaatvloer
- De beschikking over twee balkons
- De keuken en de eerste slaapkamer zijn voorzien van airconditioning
- Cv-ketel voor verwarming en warm water
- Actieve VvE
- Bouwjaar 1930
- Energielabel E
- Oplevering in overleg
Woonoppervlakte
De Meetinstructie is gebaseerd op de NEN2580. De Meetinstructie is bedoeld om een meer eenduidige manier van meten toe te passen voor het geven van een indicatie van de gebruiksoppervlakte. De Meetinstructie sluit verschillen in meetuitkomsten niet volledig uit, door bijvoorbeeld interpretatieverschillen, afrondingen of beperkingen bij het uitvoeren van de meting. Indien de exacte maten voor een koper van cruciaal belang zijn, adviseren wij deze zelf na te meten. De (kandidaat)koper(s) zullen, indien gewenst, daartoe in de gelegenheid gesteld worden op een passend moment teneinde teleurstellingen en schade te voorkomen.
Ouderdomsclausule
Bij woningen ouder dan 30 jaar zal er standaard in de koopakte een ouderdomsclausule worden opgenomen.
Notariskeuze en kosten
In principe ligt de notariskeuze bij de koper. Het doorhalen van de hypothecaire inschrijving in het kadaster moet door de verkoper betaald worden. Zijn de kosten voor deze doorhaling hoger dan € 400,- inclusief BTW dan wordt het meerdere bij de koper in rekening gebracht. Indien de koper een notaris kiest buiten een straal van 20 kilometer van de verkochte onroerende zaak dan zijn de eventuele kosten die de notaris berekent voor een eventuele verkoopvolmacht en legalisatie hiervan ten behoeve van de verkoper voor rekening van de koper.
Zelfbewoningsplicht
Koper is bekend met de zelfbewoningsplicht welke vanaf 01-01-2023 binnen de gemeente Schiedam van kracht is. De verkopend makelaar heeft koper doorverwezen naar de gemeente Schiedam omtrent de desbetreffende regelgeving. Verkoper noch verkopend makelaar aanvaarden geen enkele aansprakelijkheid voor geleden schade wegens het niet juist naleven van deze zelfbewoningsplicht.
Gunning
Verkoper behoudt zich uitdrukkelijk het recht voor het object te gunnen aan de gegadigde van zijn keuze.
Nadrukkelijk zij vermeld dat alle informatie in deze brochure moet beschouwd worden als een uitnodiging tot het doen van een bod of om in onderhandeling te treden. Er kunnen geen rechten worden ontleend aan deze informatie.
Vlietlanden NVM Makelaars streeft ernaar de informatie op haar website / brochures en andere uitingen zo actueel en nauwkeurig mogelijk weer te geven. Hoewel de informatie met de grootst mogelijke zorgvuldigheid is samengesteld aanvaarden wij geen enkele aansprakelijkheid ten aanzien van de juistheid van de vermelde gegevens.
Kenmerken
Overdracht
- vraagprijs
- € 300.000 k.k.
- Status
- Beschikbaar
- Aanvaarding
- In overleg
Bouw
- Soort woning
- Maisonnette, appartement
- Soort bouw
- Bestaande bouw
Oppervlakten en inhoud
- Woonoppervlakte
- 90 m²
- Inhoud
- 299 m³
Indeling
- Aantal kamers
- 3 kamers (2 slaapkamers)
- Aantal verdiepingen
- 2 Verdiepingen
- Voorzieningen
- Tv kabel, airconditioning
Energie
- Energielabel
- E
- Isolatie
- Dubbel glas
Buitenruimte
- Ligging
- In woonwijk, vrij uitzicht
- Tuin
- Geen tuin
Garage
- Soort garage
- Geen garage
Parkeren
- Soort parkeergelegenheid
- Betaald parkeren, parkeervergunningen