Eendrachtstraat 97
€ 399.000 k.k.
Vlaardingen
Eengezinswoning
85 m²
3 slaapkamers
Oost
In overleg
In een sfeervolle straat met karakteristieke geveltjes staat deze compleet verbouwde tussenwoning die klaar is voor een nieuwe bewoner. Hier woon je in een levendige omgeving met alles binnen handbereik. De haven van Vlaardingen ligt om de hoek, het gezellige stadscentrum is op loopafstand en ook scholen en openbaar vervoer zijn gemakkelijk bereikbaar. De woning combineert de charme van vroeger met het comfort van nu. Denk aan een prachtige woonkamer met glas-in-lood ramen, vloerverwarming op de begane grond, de badkamer en het toilet, een moderne keuken met kookeiland en openslaande deuren naar een knusse patio. Ook boven is aan alles gedacht: drie slaapkamers met veel lichtinval, een stijlvolle badkamer, een extra toilet en een praktische vliering voor extra bergruimte. Dankzij de zorgvuldige afwerking en de vele details is dit een woning die niet alleen instapklaar is, maar ook écht bijzonder aanvoelt. Een plek om direct verliefd op te worden.
INDELING
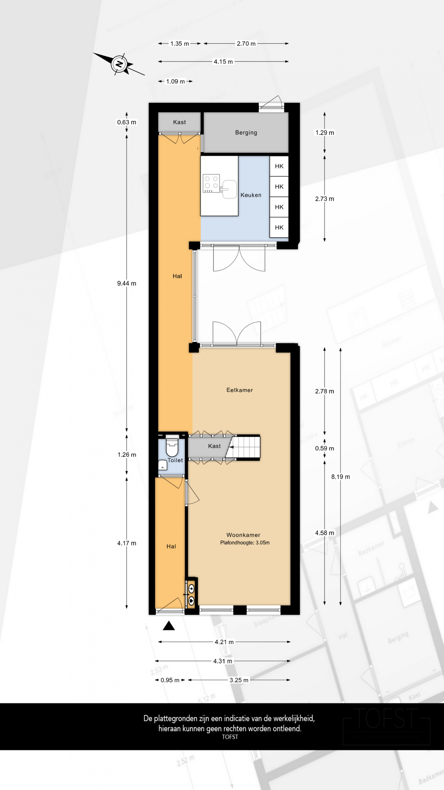
BEGANE GROND
De voordeur, met een glas-in-lood bovenlicht, is direct bereikbaar vanaf de straat en geeft toegang tot de afsluitbare entreehal. Deze is voorzien van strak afgewerkte wanden en een tegelvloer die is voorzien van vloerverwarming. Dit alles is terug te vinden op de gehele begane grond. Naast de voordeur bevindt zich de meterkast, achter de voordeur ligt een schoonloopmat en vanuit hier is er toegang tot de woonkamer en het gedeeltelijk betegelde toilet dat is voorzien van een zwevend toilet en een fonteintje. De achterwand is voorzien van een nis en het plafond is een inbouw spot verwerkt.
De woonkamer is gelegen aan de voorzijde en heeft twee hoge ramen met glas-in-lood bovenlichten, die een fraai zicht bieden over de straat. De woonkamer wordt in het midden gescheiden van de eethoek doormiddel van een dichte trap met eiken houten overzettreden, waarin dichte kasten zijn ingebouwd. De eethoek is hierdoor een aparte ruimte geworden met openslaande deuren naar de patio. In het verlengde is er een open hal, die langs de patio loopt, richting de keuken. De grote ramen zorgen er hier voor dat er veel natuurlijk lichtinval aanwezig is en het plafond is voorzien van inbouw spots.
De keuken is een aparte ruimte, maar dankzij de openslaande deuren naar de patio is er gemakkelijk een verbinding te maken met het woongedeelte. De keuken zelf beschikt over een kookeiland en een hoge kastenwand. Hierin is diverse apparatuur verwerkt, zoals een koel/vriescombinatie, een vaatwasser, een oven, een combioven, een inductiekookplaat en een in het plafond verwerkte afzuigkap. Het plafond is voorzien van inbouw spots en er is een afzuigpunt aanwezig. In een wand, naast de toegang tot de berging, is een vaste kast ingebouwd met hoge deuren tot aan het plafond.
De inpandige berging is voorzien van elektra en verlichting en heeft een achteruitgang richting de steeg met recht van overpad.
1E VERDIEPING
Na de trapopgang is er toegang tot de overloop die is voorzien van een laminaatvloer en glad afgewerkte wanden, dat terug te vinden is op deze gehele verdieping. Vanaf de overloop is er toegang tot drie slaapkamers, de badkamer en het tweede toilet, dat gedeeltelijk is betegeld en voorzien is van een zwevend toilet en vloerverwarming. Tevens is er op de overloop in het plafond een luik naar de vliering en er zijn inbouw spots aanwezig.
De hoofdslaapkamer is gelegen aan de voorzijde en beschikt over een grote dakkapel en inbouw spots. De tweede en derde slaapkamer zijn beide gelegen aan de achterzijde en delen de grote dakkapel. Ook is zijn de plafonds voorzien van inbouw spots.
De badkamer heeft gestuukte wanden, waarbij de douchehoek volledig is betegeld. De rondlopende wand zorgt voor een speels effect en naast de douche is de badkamer voorzien van een houten wastafelmeubel met een waskom. Er is vloerverwarming aanwezig en het plafond voorzien van inbouw spots.
De vliering is toegankelijk via een vlizotrap. Deze is voorzien van elektra en verlichting en hier bevindt zich ook de opstelling van de Cv-ketel.
BIJZONDERHEDEN
- Volledig voorzien van hardhouten kozijnen met dubbel glas
- Alle wanden zijn glad afgewerkt
- De begane grond, de badkamer en het toilet zijn voorzien van vloerverwarming
- De trap is voorzien van eikenhouten overzettreden
- De meterkast is voorzien van slimme meters
- Mooie inbouwkasten aanwezig
- Vliering voor extra bergruimte
- Cv-ketel voor verwarming en warm water (sept 2019)
- Erfpacht, eeuwigdurend: € 5,11 per jaar.
- Bouwjaar 1900
- Energielabel A
- Oplevering in overleg
Woonoppervlakte
De Meetinstructie is gebaseerd op de NEN2580. De Meetinstructie is bedoeld om een meer eenduidige manier van meten toe te passen voor het geven van een indicatie van de gebruiksoppervlakte. De Meetinstructie sluit verschillen in meetuitkomsten niet volledig uit, door bijvoorbeeld interpretatieverschillen, afrondingen of beperkingen bij het uitvoeren van de meting. Indien de exacte maten voor een koper van cruciaal belang zijn, adviseren wij deze zelf na te meten. De (kandidaat)koper(s) zullen, indien gewenst, daartoe in de gelegenheid gesteld worden op een passend moment teneinde teleurstellingen en schade te voorkomen.
Ouderdomsclausule
Bij woningen ouder dan 30 jaar zal er standaard in de koopakte een ouderdomsclausule worden opgenomen.
Notariskeuze en kosten
In principe ligt de notariskeuze bij de koper. Het doorhalen van de hypothecaire inschrijving in het kadaster moet door de verkoper betaald worden. Zijn de kosten voor deze doorhaling hoger dan € 400,- inclusief BTW dan wordt het meerdere bij de koper in rekening gebracht. Indien de koper een notaris kiest buiten een straal van 20 kilometer van de verkochte onroerende zaak dan zijn de eventuele kosten die de notaris berekent voor een eventuele verkoopvolmacht en legalisatie hiervan ten behoeve van de verkoper voor rekening van de koper.
Zelfbewoningsplicht
Koper is bekend met de zelfbewoningsplicht welke vanaf 01-01-2023 binnen de gemeente Vlaardingen van kracht is. De verkopend makelaar heeft koper doorverwezen naar de gemeente Vlaardingen omtrent de desbetreffende regelgeving. Verkoper noch verkopend makelaar aanvaarden geen enkele aansprakelijkheid voor geleden schade wegens het niet juist naleven van deze zelfbewoningsplicht.
Gunning
Verkoper behoudt zich uitdrukkelijk het recht voor het object te gunnen aan de gegadigde van zijn keuze.
Nadrukkelijk zij vermeld dat alle informatie in deze brochure moet beschouwd worden als een uitnodiging tot het doen van een bod of om in onderhandeling te treden. Er kunnen geen rechten worden ontleend aan deze informatie.
Vlietlanden NVM Makelaars streeft ernaar de informatie op haar website / brochures en andere uitingen zo actueel en nauwkeurig mogelijk weer te geven. Hoewel de informatie met de grootst mogelijke zorgvuldigheid is samengesteld aanvaarden wij geen enkele aansprakelijkheid ten aanzien van de juistheid van de vermelde gegevens.
INDELING
BEGANE GROND
De voordeur, met een glas-in-lood bovenlicht, is direct bereikbaar vanaf de straat en geeft toegang tot de afsluitbare entreehal. Deze is voorzien van strak afgewerkte wanden en een tegelvloer die is voorzien van vloerverwarming. Dit alles is terug te vinden op de gehele begane grond. Naast de voordeur bevindt zich de meterkast, achter de voordeur ligt een schoonloopmat en vanuit hier is er toegang tot de woonkamer en het gedeeltelijk betegelde toilet dat is voorzien van een zwevend toilet en een fonteintje. De achterwand is voorzien van een nis en het plafond is een inbouw spot verwerkt.
De woonkamer is gelegen aan de voorzijde en heeft twee hoge ramen met glas-in-lood bovenlichten, die een fraai zicht bieden over de straat. De woonkamer wordt in het midden gescheiden van de eethoek doormiddel van een dichte trap met eiken houten overzettreden, waarin dichte kasten zijn ingebouwd. De eethoek is hierdoor een aparte ruimte geworden met openslaande deuren naar de patio. In het verlengde is er een open hal, die langs de patio loopt, richting de keuken. De grote ramen zorgen er hier voor dat er veel natuurlijk lichtinval aanwezig is en het plafond is voorzien van inbouw spots.
De keuken is een aparte ruimte, maar dankzij de openslaande deuren naar de patio is er gemakkelijk een verbinding te maken met het woongedeelte. De keuken zelf beschikt over een kookeiland en een hoge kastenwand. Hierin is diverse apparatuur verwerkt, zoals een koel/vriescombinatie, een vaatwasser, een oven, een combioven, een inductiekookplaat en een in het plafond verwerkte afzuigkap. Het plafond is voorzien van inbouw spots en er is een afzuigpunt aanwezig. In een wand, naast de toegang tot de berging, is een vaste kast ingebouwd met hoge deuren tot aan het plafond.
De inpandige berging is voorzien van elektra en verlichting en heeft een achteruitgang richting de steeg met recht van overpad.
1E VERDIEPING
Na de trapopgang is er toegang tot de overloop die is voorzien van een laminaatvloer en glad afgewerkte wanden, dat terug te vinden is op deze gehele verdieping. Vanaf de overloop is er toegang tot drie slaapkamers, de badkamer en het tweede toilet, dat gedeeltelijk is betegeld en voorzien is van een zwevend toilet en vloerverwarming. Tevens is er op de overloop in het plafond een luik naar de vliering en er zijn inbouw spots aanwezig.
De hoofdslaapkamer is gelegen aan de voorzijde en beschikt over een grote dakkapel en inbouw spots. De tweede en derde slaapkamer zijn beide gelegen aan de achterzijde en delen de grote dakkapel. Ook is zijn de plafonds voorzien van inbouw spots.
De badkamer heeft gestuukte wanden, waarbij de douchehoek volledig is betegeld. De rondlopende wand zorgt voor een speels effect en naast de douche is de badkamer voorzien van een houten wastafelmeubel met een waskom. Er is vloerverwarming aanwezig en het plafond voorzien van inbouw spots.
De vliering is toegankelijk via een vlizotrap. Deze is voorzien van elektra en verlichting en hier bevindt zich ook de opstelling van de Cv-ketel.
BIJZONDERHEDEN
- Volledig voorzien van hardhouten kozijnen met dubbel glas
- Alle wanden zijn glad afgewerkt
- De begane grond, de badkamer en het toilet zijn voorzien van vloerverwarming
- De trap is voorzien van eikenhouten overzettreden
- De meterkast is voorzien van slimme meters
- Mooie inbouwkasten aanwezig
- Vliering voor extra bergruimte
- Cv-ketel voor verwarming en warm water (sept 2019)
- Erfpacht, eeuwigdurend: € 5,11 per jaar.
- Bouwjaar 1900
- Energielabel A
- Oplevering in overleg
Woonoppervlakte
De Meetinstructie is gebaseerd op de NEN2580. De Meetinstructie is bedoeld om een meer eenduidige manier van meten toe te passen voor het geven van een indicatie van de gebruiksoppervlakte. De Meetinstructie sluit verschillen in meetuitkomsten niet volledig uit, door bijvoorbeeld interpretatieverschillen, afrondingen of beperkingen bij het uitvoeren van de meting. Indien de exacte maten voor een koper van cruciaal belang zijn, adviseren wij deze zelf na te meten. De (kandidaat)koper(s) zullen, indien gewenst, daartoe in de gelegenheid gesteld worden op een passend moment teneinde teleurstellingen en schade te voorkomen.
Ouderdomsclausule
Bij woningen ouder dan 30 jaar zal er standaard in de koopakte een ouderdomsclausule worden opgenomen.
Notariskeuze en kosten
In principe ligt de notariskeuze bij de koper. Het doorhalen van de hypothecaire inschrijving in het kadaster moet door de verkoper betaald worden. Zijn de kosten voor deze doorhaling hoger dan € 400,- inclusief BTW dan wordt het meerdere bij de koper in rekening gebracht. Indien de koper een notaris kiest buiten een straal van 20 kilometer van de verkochte onroerende zaak dan zijn de eventuele kosten die de notaris berekent voor een eventuele verkoopvolmacht en legalisatie hiervan ten behoeve van de verkoper voor rekening van de koper.
Zelfbewoningsplicht
Koper is bekend met de zelfbewoningsplicht welke vanaf 01-01-2023 binnen de gemeente Vlaardingen van kracht is. De verkopend makelaar heeft koper doorverwezen naar de gemeente Vlaardingen omtrent de desbetreffende regelgeving. Verkoper noch verkopend makelaar aanvaarden geen enkele aansprakelijkheid voor geleden schade wegens het niet juist naleven van deze zelfbewoningsplicht.
Gunning
Verkoper behoudt zich uitdrukkelijk het recht voor het object te gunnen aan de gegadigde van zijn keuze.
Nadrukkelijk zij vermeld dat alle informatie in deze brochure moet beschouwd worden als een uitnodiging tot het doen van een bod of om in onderhandeling te treden. Er kunnen geen rechten worden ontleend aan deze informatie.
Vlietlanden NVM Makelaars streeft ernaar de informatie op haar website / brochures en andere uitingen zo actueel en nauwkeurig mogelijk weer te geven. Hoewel de informatie met de grootst mogelijke zorgvuldigheid is samengesteld aanvaarden wij geen enkele aansprakelijkheid ten aanzien van de juistheid van de vermelde gegevens.
Kenmerken
Overdracht
- vraagprijs
- € 399.000 k.k.
- Status
- Verkocht onder voorbehoud
- Aanvaarding
- In overleg
Bouw
- Soort woning
- Eengezinswoning, tussenwoning
- Soort bouw
- Bestaande bouw
Oppervlakten en inhoud
- Woonoppervlakte
- 85 m²
- Perceel
- 75 m²
- Inhoud
- 362 m³
Indeling
- Aantal kamers
- 4 kamers (3 slaapkamers)
- Aantal verdiepingen
- 3 Verdiepingen
- Voorzieningen
- Mechanische ventilatie, tv kabel
Energie
- Energielabel
- A
- Isolatie
- Vloerisolatie, dubbel glas
Buitenruimte
- Ligging
- In woonwijk
- Tuin
- Patio/atrium
- Achtertuin
- 10 m² (3m Diep / 3,25m Breed)
- Ligging tuin
- Oost
Garage
- Soort garage
- Geen garage
Parkeren
- Soort parkeergelegenheid
- Betaald parkeren, parkeervergunningen