Jan van Arkelstraat 66
€ 239.000 k.k.
Vlaardingen
Galerijflat
69 m²
3 slaapkamers
In overleg
Wonen op een plek waar natuur, ontspanning en gemak samenkomen? Dit fijne 4-kamerappartement ligt op de eerste verdieping en combineert een rustige, groene ligging met alle voorzieningen om de hoek. Direct aan de rand van het park wandel of fiets je zo richting de Broekpolder of de Surfplas, waar je kunt genieten van water, natuur en een gezellig restaurant. Voor de dagelijkse boodschappen en sportclubs hoef je de buurt niet uit en ook scholen zijn eenvoudig lopend bereikbaar. Binnen een paar minuten zit je bovendien op de snelweg, waardoor je gemakkelijk onderweg bent naar de omliggende steden. Het appartement zelf beschikt over een lichte woonkamer die uitzicht biedt over de straat en is voorzien van een groot raam met zonnescherm, terwijl twee slaapkamers juist uitzicht bieden op het groen en directe toegang hebben tot het zonnige balkon. De derde slaapkamer is aangrenzend aan de slaapkamer en verder is er een praktische keuken, een badkamer met wasmachineaansluiting en een apart toilet. Handig zijn ook de elektrische rolluiken in alle slaapkamers en de keuken, het zonnescherm bij het balkon en de woonkamer en de eigen ruime berging. Kortom, een plek waar je dagelijks geniet.
INDELING
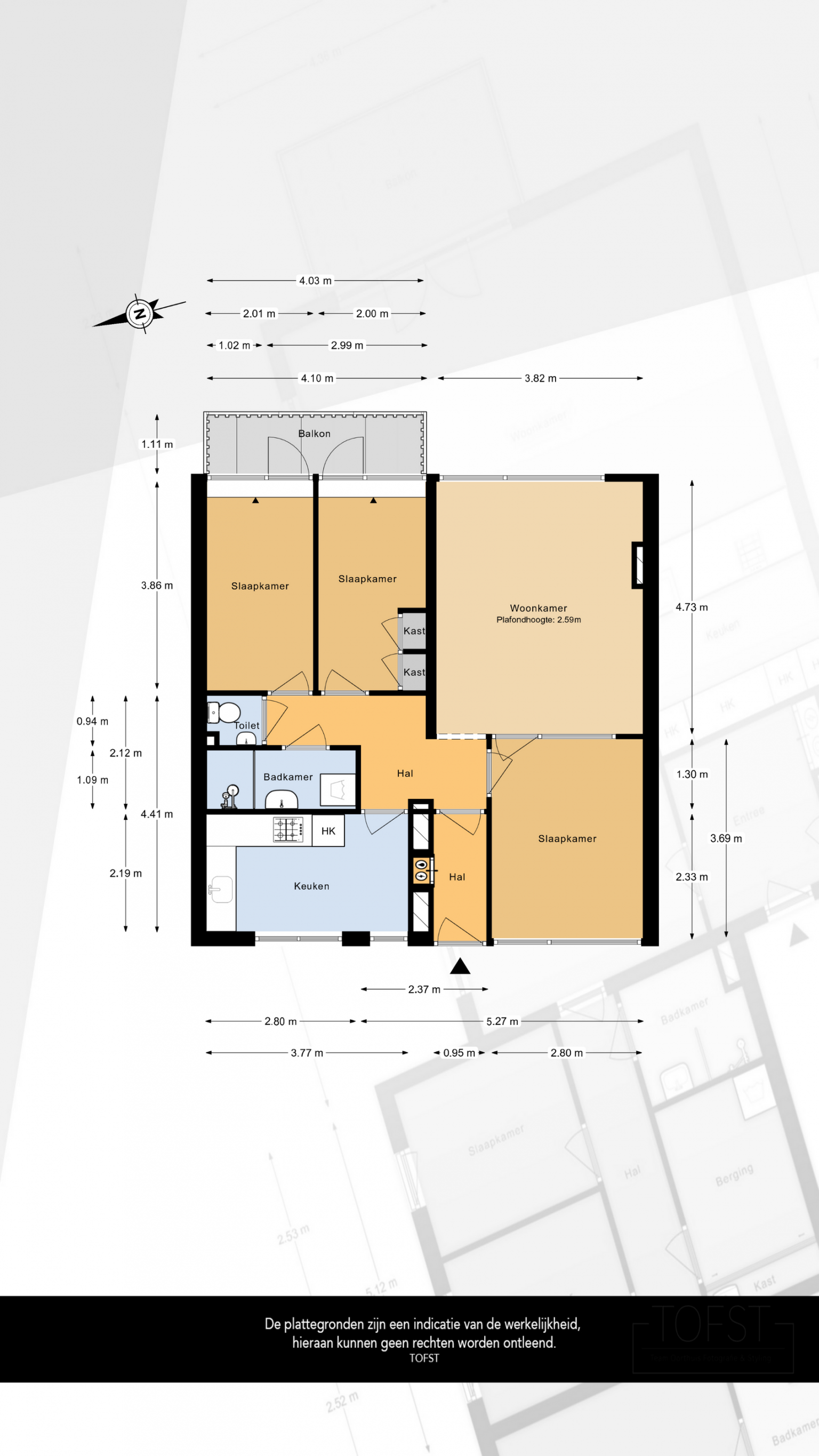
Vanuit de centrale afgesloten entree met de brievenbussen en het bellentableau is er via een trap toegang tot de verdiepingen en de eigen berging.
APPARTEMENT
Vanaf de overdekte galerij, met handige waslijnen, is er toegang tot de voordeur, waarna er toegang is tot de afgesloten entreehal. Deze is voorzien van plavuizen en de wanden zijn behangen. In de entreehal bevindt zich de meterkast en vanuit hier is er toegang tot de aangrenzende hal. Deze heeft een laminaatvloer, die drempelloos is doorgetrokken naar de woonkamer. Het plafond is afgewerkt met kunststof schroten, die zijn voorzien van inbouw spots en ook hier zijn de wanden behangen. Vanuit de hal is er een open toegang tot de woonkamer en verder zijn ook de keuken, de drie slaapkamers, de badkamer en het gedeeltelijk betegelde toilet vanuit hier te bereiken.
De woonkamer is gelegen aan de voorzijde en biedt dankzij het grote raam, vrij zicht over de straat. Fijn is daarbij het aanwezige zonnescherm, voor de nodige schaduw. De wanden zijn hier afwisselend afgewerkt met behang en spachtelputz en het plafond is gespoten. Het kozijnen is uitgevoerd in kunststof en voorzien van dubbel glas en er is een moederhaard aanwezig. Daarnaast biedt de ruimte toegang tot de aangrenzende slaapkamer.
De eerste slaapkamer is gelegen aan de achterzijde en heeft een bewerkt glazen raam richting de woonkamer, waardoor er nog meer daglicht deze ruimte binnenkomt. Op de vloer ligt vinyl, de wanden zijn behangen en het plafond is voorzien van zachtboard. Het kozijn is uitgevoerd in hout met enkel glas en er hangt een elektrisch bedienbaar rolluik.
De keuken is gelegen aan de galerijzijde en is opgesteld in een L-vorm. De wanden zijn halfhoog betegeld en de bovenkasten zijn voorzien van verlichting. De aanwezig hoge kast is voorzien van een koelkast met een vriesvak en boven het gasfornuis hangt een afzuigkap. Op de vloer ligt vinyl, de kunststof kozijnen zijn voorzien van dubbel glas en er hangt een elektrisch bedienbaar rolluik.
De tweede en derde slaapkamer zijn naast elkaar gelegen aan de voorzijde. Hierdoor hebben zij beide een rustgevend uitzicht over het groen en bieden zij toegang tot het balkon. Beide zijn ze voorzien van een vloer met vinyl en wanden die zijn behangen en zijn de kozijnen uitgevoerd in hout met enkel glas. Wel beschikken zij beide over elektrische rolluiken en heeft een van de slaapkamers twee vaste kasten.
Het balkon is fijn overdekt en biedt een mooi uitzicht over het groen, de brede sloot en de straat. Aan de gevel hangt een zonnescherm en het hekwerk is uitgevoerd in metaal.
De inpandige badkamer is gedeeltelijk betegeld en uitgerust met een douche, een wastafel en de wasmachine aansluiting.
BIJZONDERHEDEN
- Gedeeltelijk voorzien van kunststof kozijnen met dubbel glas en houten kozijnen met enkel glas
- Alle slaapkamers en de keuken zijn voorzien van elektrische rolluiken
- Het balkon en de woonkamer zijn voorzien van een zonnescherm
- Moederhaard
- Eigen berging
- Actieve VvE, bijdrage € 185,-- per maand
- Gelegen op erfpachtgrond tot februari 2056, canon € 45,38 per jaar
- Bouwjaar 1958
- Energielabel F
- Oplevering in overleg
Woonoppervlakte
De Meetinstructie is gebaseerd op de NEN2580. De Meetinstructie is bedoeld om een meer eenduidige manier van meten toe te passen voor het geven van een indicatie van de gebruiksoppervlakte. De Meetinstructie sluit verschillen in meetuitkomsten niet volledig uit, door bijvoorbeeld interpretatieverschillen, afrondingen of beperkingen bij het uitvoeren van de meting. Indien de exacte maten voor een koper van cruciaal belang zijn, adviseren wij deze zelf na te meten. De (kandidaat)koper(s) zullen, indien gewenst, daartoe in de gelegenheid gesteld worden op een passend moment teneinde teleurstellingen en schade te voorkomen.
Ouderdomsclausule
Bij woningen ouder dan 30 jaar zal er standaard in de koopakte een ouderdomsclausule worden opgenomen.
Notariskeuze en kosten
In principe ligt de notariskeuze bij de koper. Het doorhalen van de hypothecaire inschrijving in het kadaster moet door de verkoper betaald worden. Zijn de kosten voor deze doorhaling hoger dan € 400,- inclusief BTW dan wordt het meerdere bij de koper in rekening gebracht. Indien de koper een notaris kiest buiten een straal van 20 kilometer van de verkochte onroerende zaak dan zijn de eventuele kosten die de notaris berekent voor een eventuele verkoopvolmacht en legalisatie hiervan ten behoeve van de verkoper voor rekening van de koper.
Zelfbewoningsplicht
Koper is bekend met de zelfbewoningsplicht welke vanaf 01-01-2023 binnen de gemeente Vlaardingen van kracht is. De verkopend makelaar heeft koper doorverwezen naar de gemeente Vlaardingen omtrent de desbetreffende regelgeving. Verkoper noch verkopend makelaar aanvaarden geen enkele aansprakelijkheid voor geleden schade wegens het niet juist naleven van deze zelfbewoningsplicht.
Gunning
Verkoper behoudt zich uitdrukkelijk het recht voor het object te gunnen aan de gegadigde van zijn keuze.
Nadrukkelijk zij vermeld dat alle informatie in deze brochure moet beschouwd worden als een uitnodiging tot het doen van een bod of om in onderhandeling te treden. Er kunnen geen rechten worden ontleend aan deze informatie.
Vlietlanden NVM Makelaars streeft ernaar de informatie op haar website / brochures en andere uitingen zo actueel en nauwkeurig mogelijk weer te geven. Hoewel de informatie met de grootst mogelijke zorgvuldigheid is samengesteld aanvaarden wij geen enkele aansprakelijkheid ten aanzien van de juistheid van de vermelde gegevens.
INDELING
Vanuit de centrale afgesloten entree met de brievenbussen en het bellentableau is er via een trap toegang tot de verdiepingen en de eigen berging.
APPARTEMENT
Vanaf de overdekte galerij, met handige waslijnen, is er toegang tot de voordeur, waarna er toegang is tot de afgesloten entreehal. Deze is voorzien van plavuizen en de wanden zijn behangen. In de entreehal bevindt zich de meterkast en vanuit hier is er toegang tot de aangrenzende hal. Deze heeft een laminaatvloer, die drempelloos is doorgetrokken naar de woonkamer. Het plafond is afgewerkt met kunststof schroten, die zijn voorzien van inbouw spots en ook hier zijn de wanden behangen. Vanuit de hal is er een open toegang tot de woonkamer en verder zijn ook de keuken, de drie slaapkamers, de badkamer en het gedeeltelijk betegelde toilet vanuit hier te bereiken.
De woonkamer is gelegen aan de voorzijde en biedt dankzij het grote raam, vrij zicht over de straat. Fijn is daarbij het aanwezige zonnescherm, voor de nodige schaduw. De wanden zijn hier afwisselend afgewerkt met behang en spachtelputz en het plafond is gespoten. Het kozijnen is uitgevoerd in kunststof en voorzien van dubbel glas en er is een moederhaard aanwezig. Daarnaast biedt de ruimte toegang tot de aangrenzende slaapkamer.
De eerste slaapkamer is gelegen aan de achterzijde en heeft een bewerkt glazen raam richting de woonkamer, waardoor er nog meer daglicht deze ruimte binnenkomt. Op de vloer ligt vinyl, de wanden zijn behangen en het plafond is voorzien van zachtboard. Het kozijn is uitgevoerd in hout met enkel glas en er hangt een elektrisch bedienbaar rolluik.
De keuken is gelegen aan de galerijzijde en is opgesteld in een L-vorm. De wanden zijn halfhoog betegeld en de bovenkasten zijn voorzien van verlichting. De aanwezig hoge kast is voorzien van een koelkast met een vriesvak en boven het gasfornuis hangt een afzuigkap. Op de vloer ligt vinyl, de kunststof kozijnen zijn voorzien van dubbel glas en er hangt een elektrisch bedienbaar rolluik.
De tweede en derde slaapkamer zijn naast elkaar gelegen aan de voorzijde. Hierdoor hebben zij beide een rustgevend uitzicht over het groen en bieden zij toegang tot het balkon. Beide zijn ze voorzien van een vloer met vinyl en wanden die zijn behangen en zijn de kozijnen uitgevoerd in hout met enkel glas. Wel beschikken zij beide over elektrische rolluiken en heeft een van de slaapkamers twee vaste kasten.
Het balkon is fijn overdekt en biedt een mooi uitzicht over het groen, de brede sloot en de straat. Aan de gevel hangt een zonnescherm en het hekwerk is uitgevoerd in metaal.
De inpandige badkamer is gedeeltelijk betegeld en uitgerust met een douche, een wastafel en de wasmachine aansluiting.
BIJZONDERHEDEN
- Gedeeltelijk voorzien van kunststof kozijnen met dubbel glas en houten kozijnen met enkel glas
- Alle slaapkamers en de keuken zijn voorzien van elektrische rolluiken
- Het balkon en de woonkamer zijn voorzien van een zonnescherm
- Moederhaard
- Eigen berging
- Actieve VvE, bijdrage € 185,-- per maand
- Gelegen op erfpachtgrond tot februari 2056, canon € 45,38 per jaar
- Bouwjaar 1958
- Energielabel F
- Oplevering in overleg
Woonoppervlakte
De Meetinstructie is gebaseerd op de NEN2580. De Meetinstructie is bedoeld om een meer eenduidige manier van meten toe te passen voor het geven van een indicatie van de gebruiksoppervlakte. De Meetinstructie sluit verschillen in meetuitkomsten niet volledig uit, door bijvoorbeeld interpretatieverschillen, afrondingen of beperkingen bij het uitvoeren van de meting. Indien de exacte maten voor een koper van cruciaal belang zijn, adviseren wij deze zelf na te meten. De (kandidaat)koper(s) zullen, indien gewenst, daartoe in de gelegenheid gesteld worden op een passend moment teneinde teleurstellingen en schade te voorkomen.
Ouderdomsclausule
Bij woningen ouder dan 30 jaar zal er standaard in de koopakte een ouderdomsclausule worden opgenomen.
Notariskeuze en kosten
In principe ligt de notariskeuze bij de koper. Het doorhalen van de hypothecaire inschrijving in het kadaster moet door de verkoper betaald worden. Zijn de kosten voor deze doorhaling hoger dan € 400,- inclusief BTW dan wordt het meerdere bij de koper in rekening gebracht. Indien de koper een notaris kiest buiten een straal van 20 kilometer van de verkochte onroerende zaak dan zijn de eventuele kosten die de notaris berekent voor een eventuele verkoopvolmacht en legalisatie hiervan ten behoeve van de verkoper voor rekening van de koper.
Zelfbewoningsplicht
Koper is bekend met de zelfbewoningsplicht welke vanaf 01-01-2023 binnen de gemeente Vlaardingen van kracht is. De verkopend makelaar heeft koper doorverwezen naar de gemeente Vlaardingen omtrent de desbetreffende regelgeving. Verkoper noch verkopend makelaar aanvaarden geen enkele aansprakelijkheid voor geleden schade wegens het niet juist naleven van deze zelfbewoningsplicht.
Gunning
Verkoper behoudt zich uitdrukkelijk het recht voor het object te gunnen aan de gegadigde van zijn keuze.
Nadrukkelijk zij vermeld dat alle informatie in deze brochure moet beschouwd worden als een uitnodiging tot het doen van een bod of om in onderhandeling te treden. Er kunnen geen rechten worden ontleend aan deze informatie.
Vlietlanden NVM Makelaars streeft ernaar de informatie op haar website / brochures en andere uitingen zo actueel en nauwkeurig mogelijk weer te geven. Hoewel de informatie met de grootst mogelijke zorgvuldigheid is samengesteld aanvaarden wij geen enkele aansprakelijkheid ten aanzien van de juistheid van de vermelde gegevens.
Kenmerken
Overdracht
- vraagprijs
- € 239.000 k.k.
- Status
- Verkocht
- Aanvaarding
- In overleg
Bouw
- Soort woning
- Galerijflat, appartement
- Soort bouw
- Bestaande bouw
Oppervlakten en inhoud
- Woonoppervlakte
- 69 m²
- Externe bergruimte
- 12 m²
- Inhoud
- 220 m³
Indeling
- Aantal kamers
- 4 kamers (3 slaapkamers)
- Aantal verdiepingen
- 1 Verdiepingen
- Voorzieningen
- Buitenzonwering, rolluiken, tv kabel
Energie
- Energielabel
- F
- Isolatie
- Gedeeltelijk dubbel glas
Buitenruimte
- Ligging
- In woonwijk
- Tuin
- Geen tuin
Garage
- Soort garage
- Geen garage
Parkeren
- Soort parkeergelegenheid
- Openbaar parkeren