Sweelinckstraat 212
€ 315.000 k.k.
Vlaardingen
Bovenwoning
95 m²
4 slaapkamers
Zuidoost
In overleg
Stel je voor, wonen in een karaktervolle dubbele bovenwoning waar sfeer en ruimte samenkomen, midden in een levendige buurt met alle gemakken binnen handbereik. Op loopafstand vind je gezellige winkels, scholen, sportverenigingen en openbaar vervoer, terwijl ook de natuur nooit ver weg is dankzij de nabijgelegen parken en groene wandelroutes. De woning zelf combineert authentieke details, zoals de fraaie tegeltjes in de entree, met hedendaags wooncomfort. Met drie slaapkamers, een ruime woonkamer met open keuken en niet één maar twee overdekte balkons die uitnodigen om in alle seizoenen van de buitenlucht te genieten, voelt dit huis meteen als thuis. Extra praktisch zijn de vaste kasten, de bergvliering en de nette afwerking met glad gestuukte wanden en doorlopende laminaatvloeren. Een fijne plek voor wie comfortabel wil wonen op een centrale locatie, met volop mogelijkheden om er een eigen draai aan te geven.
INDELING
Via de voordeur van de benedenwoning is er toegang tot de voordeur.
BEGANE GROND
Na de voordeur is er toegang tot de entreehal die is voorzien van vloerbedekking en authentieke tegeltjes, die zich halfhoog tegen de wanden bevinden. De trap naar de verdieping is voorzien van overzettreden en naast de voordeur bevindt zich de meterkast.
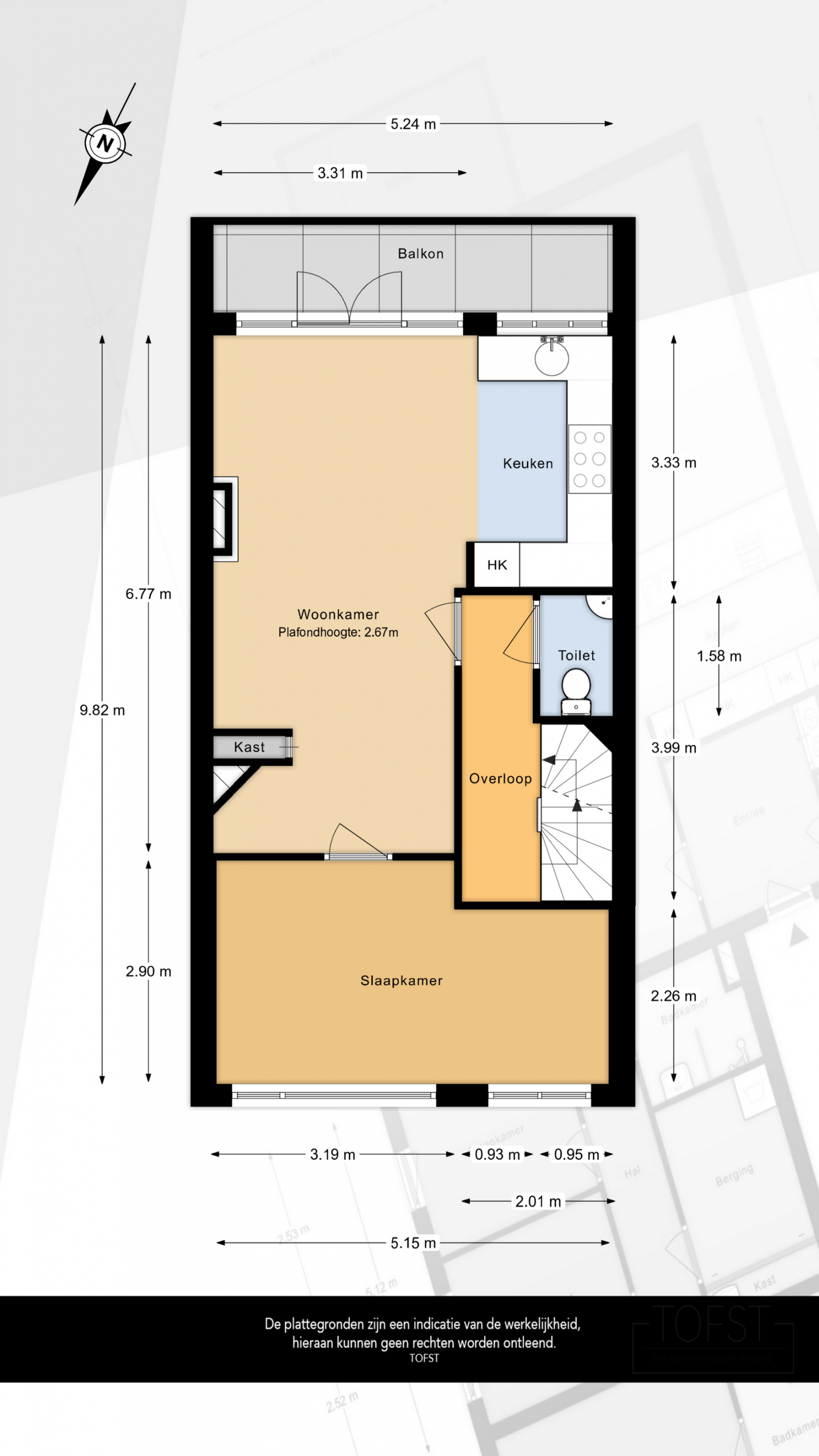
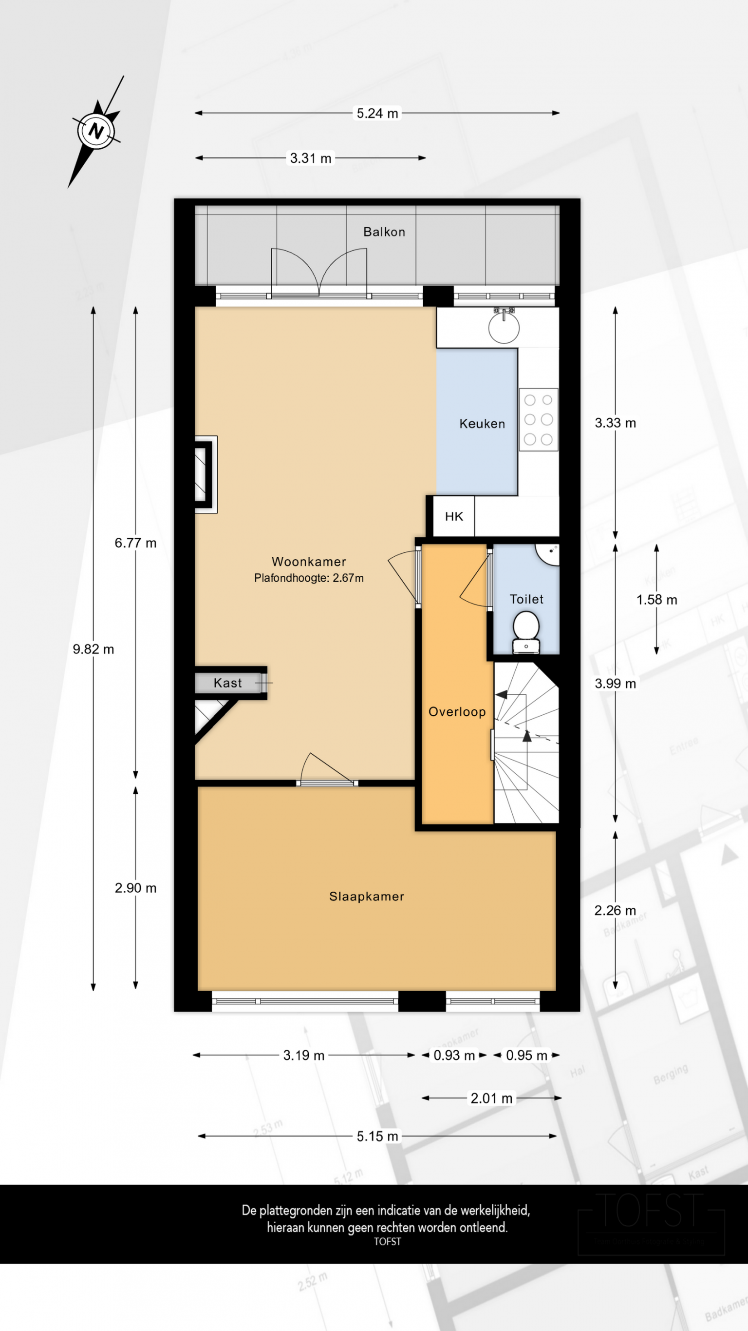
1E VERDIEPING
Na de trapopgang is de overloop bereikbaar. Deze is voorzien van laminaat en behang lambrisering. Vanaf de overloop is er een trap naar de 2e verdieping, die eveneens is voorzien van overzettreden, en zijn de woonkamer en het toilet toegankelijk. Het gedeeltelijk betegelde toilet heeft een staande toiletpot, een fonteintje en een afzuigpunt.
De woonkamer is gesitueerd aan de achterzijde en is ruim van afmeting. De originele schouw is nog aanwezig, maar dichtgezet en er is een vaste kast aanwezig. Er is een deur naar de aangrenzende slaapkamer en de openslaande deuren, met glas-in-lood bovenlichting, geven toegang tot het balkon. Op de vloer ligt laminaat en de wanden zijn glad afgewerkt. In de breedte van de woonkamer is de open keuken in een U-vorm geplaatst. Deze is uitgevoerd in een lichte teint met een houtlook aanrechtblad. De bovenkasten zorgen voor extra opbergmogelijkheden en de achterwand is handig betegeld. Temidden van het aanrechtblad bevindt zich een groot gasfornuis met een oven en daarboven is er een afzuigkap geplaatst. Daarnaast is er nog een vaatwasser, een koelkast en een vriezer aanwezig.
Het balkon is gelegen over de gehele breedte van de woning en is fijn overdekt. De stenen balustrade is bovenop voorzien van een gaaspanelen en de vloer is bedekt met rubberen tegels.
De eerste slaapkamer is gelegen aan de voorzijde en heeft een mooi uitzicht over de straat. De kozijnen zijn uitgevoerd in kunststof met dubbel glas en desgewenst is deze kamer gemakkelijk op te splitsen in een slaapkamer en werk-/hobbykamer of een hoofdslaapkamer met een inloopkast. De wanden zijn glas afgewerkt en de vloer is doorlopend vanuit de woonkamer.
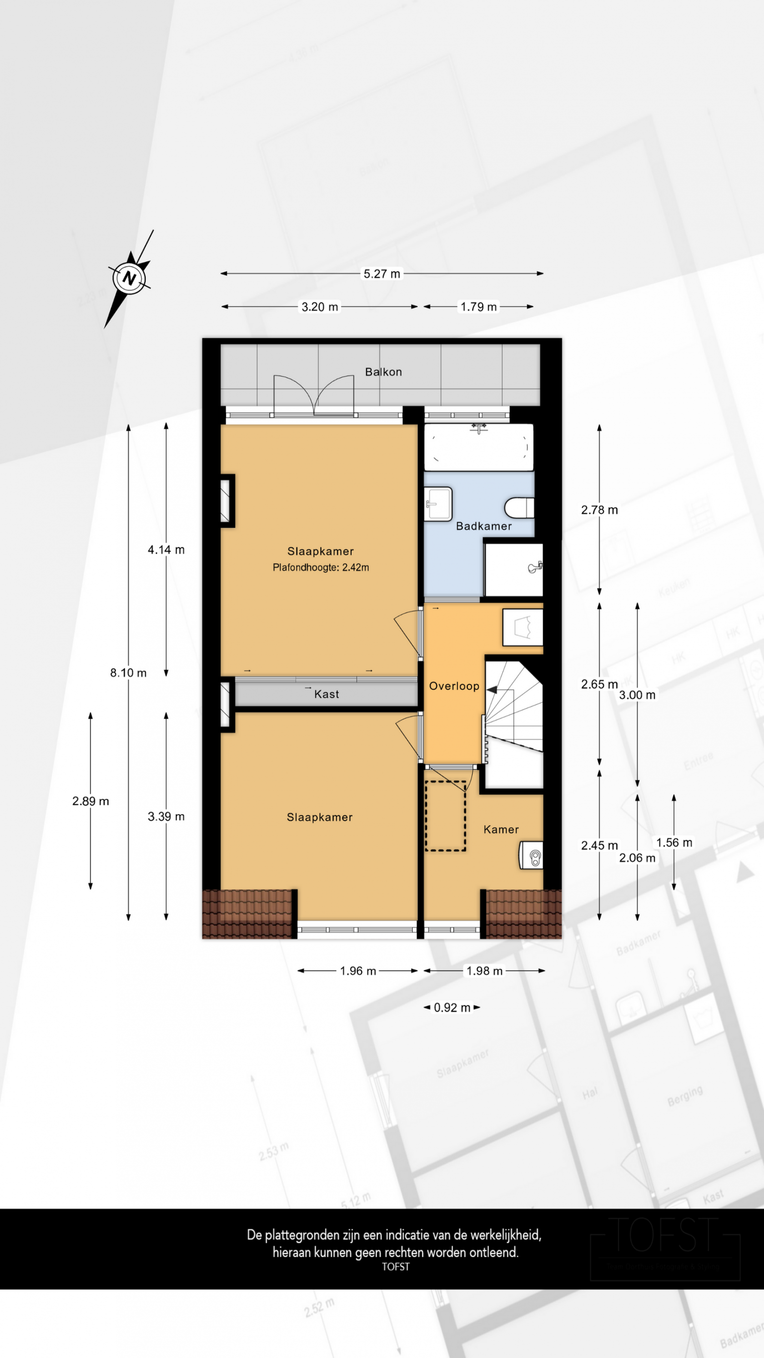
2E VERDIEPING
De overloop is eveneens voorzien van laminaat dat is doorgetrokken over de gehele verdieping en ook hier is behang lambrisering aanwezig. Om de hoek naast het trapgat bevindt zich de aansluiting voor de wasmachine en vanaf de overloop is er toegang tot nog twee slaapkamers, de badkamer en een werk-/hobbykamer met daarin de opstelling van de Cv-ketel en het luik naar de vliering.
De tweede slaapkamer is gelegen aan de voorzijde en beschikt over een dakkapel en wanden die zijn behangen. De derde slaapkamer is gelegen aan de achterzijde en ook hier zijn de wanden behangen. Daarnaast is er een vaste kast met schuifdeuren geplaatst en is er via openslaande deuren toegang tot het tweede balkon.
Het tweede balkon is net als het eerste balkon volledig gelegen over de gehele breedte van de woning en is overdekt. Ook hier is een stenen balustrade aanwezig en als extra hangt hier een, met de hand te bedienen, zonnescherm.
De badkamer is grotendeels betegeld en compleet uitgerust met een douchecabine, een wastafelmeubel, een ligbad met een handdouche, een toilet en een handdoeken radiator. Er zijn te openen ramen en in het plafond bevindt zich een inbouw spots.
BIJZONDERHEDEN
- De woning is deels voorzien van houten kozijnen en deels voorzien van kunststof kozijnen
- De woning beschikt over twee overdekte balkons
- De wanden zijn grotendeels glad afgewerkt
- De woning is grotendeels voorzien van laminaat
- Cv-ketel
- Slapende VvE, is in oprichting.
- Afgekochte erfpacht eeuwigdurend
- Bouwjaar 1938
- Energielabel D
- Oplevering in overleg
Woonoppervlakte
De Meetinstructie is gebaseerd op de NEN2580. De Meetinstructie is bedoeld om een meer eenduidige manier van meten toe te passen voor het geven van een indicatie van de gebruiksoppervlakte. De Meetinstructie sluit verschillen in meetuitkomsten niet volledig uit, door bijvoorbeeld interpretatieverschillen, afrondingen of beperkingen bij het uitvoeren van de meting. Indien de exacte maten voor een koper van cruciaal belang zijn, adviseren wij deze zelf na te meten. De (kandidaat)koper(s) zullen, indien gewenst, daartoe in de gelegenheid gesteld worden op een passend moment teneinde teleurstellingen en schade te voorkomen.
Ouderdomsclausule
Bij woningen ouder dan 30 jaar zal er standaard in de koopakte een ouderdomsclausule worden opgenomen.
Zelfbewoningsplicht
Koper is bekend met de zelfbewoningsplicht welke vanaf 01-01-2023 binnen de gemeente Vlaardingen van kracht is. De verkopend makelaar heeft koper doorverwezen naar de gemeente Vlaardingen omtrent de desbetreffende regelgeving. Verkoper noch verkopend makelaar aanvaarden geen enkele aansprakelijkheid voor geleden schade wegens het niet juist naleven van deze zelfbewoningsplicht.
Gunning
Verkoper behoudt zich uitdrukkelijk het recht voor het object te gunnen aan de gegadigde van zijn keuze.
Nadrukkelijk zij vermeld dat alle informatie in deze brochure moet beschouwd worden als een uitnodiging tot het doen van een bod of om in onderhandeling te treden. Er kunnen geen rechten worden ontleend aan deze informatie.
Vlietlanden NVM Makelaars streeft ernaar de informatie op haar website / brochures en andere uitingen zo actueel en nauwkeurig mogelijk weer te geven. Hoewel de informatie met de grootst mogelijke zorgvuldigheid is samengesteld aanvaarden wij geen enkele aansprakelijkheid ten aanzien van de juistheid van de vermelde gegevens.
INDELING
Via de voordeur van de benedenwoning is er toegang tot de voordeur.
BEGANE GROND
Na de voordeur is er toegang tot de entreehal die is voorzien van vloerbedekking en authentieke tegeltjes, die zich halfhoog tegen de wanden bevinden. De trap naar de verdieping is voorzien van overzettreden en naast de voordeur bevindt zich de meterkast.
1E VERDIEPING
Na de trapopgang is de overloop bereikbaar. Deze is voorzien van laminaat en behang lambrisering. Vanaf de overloop is er een trap naar de 2e verdieping, die eveneens is voorzien van overzettreden, en zijn de woonkamer en het toilet toegankelijk. Het gedeeltelijk betegelde toilet heeft een staande toiletpot, een fonteintje en een afzuigpunt.
De woonkamer is gesitueerd aan de achterzijde en is ruim van afmeting. De originele schouw is nog aanwezig, maar dichtgezet en er is een vaste kast aanwezig. Er is een deur naar de aangrenzende slaapkamer en de openslaande deuren, met glas-in-lood bovenlichting, geven toegang tot het balkon. Op de vloer ligt laminaat en de wanden zijn glad afgewerkt. In de breedte van de woonkamer is de open keuken in een U-vorm geplaatst. Deze is uitgevoerd in een lichte teint met een houtlook aanrechtblad. De bovenkasten zorgen voor extra opbergmogelijkheden en de achterwand is handig betegeld. Temidden van het aanrechtblad bevindt zich een groot gasfornuis met een oven en daarboven is er een afzuigkap geplaatst. Daarnaast is er nog een vaatwasser, een koelkast en een vriezer aanwezig.
Het balkon is gelegen over de gehele breedte van de woning en is fijn overdekt. De stenen balustrade is bovenop voorzien van een gaaspanelen en de vloer is bedekt met rubberen tegels.
De eerste slaapkamer is gelegen aan de voorzijde en heeft een mooi uitzicht over de straat. De kozijnen zijn uitgevoerd in kunststof met dubbel glas en desgewenst is deze kamer gemakkelijk op te splitsen in een slaapkamer en werk-/hobbykamer of een hoofdslaapkamer met een inloopkast. De wanden zijn glas afgewerkt en de vloer is doorlopend vanuit de woonkamer.
2E VERDIEPING
De overloop is eveneens voorzien van laminaat dat is doorgetrokken over de gehele verdieping en ook hier is behang lambrisering aanwezig. Om de hoek naast het trapgat bevindt zich de aansluiting voor de wasmachine en vanaf de overloop is er toegang tot nog twee slaapkamers, de badkamer en een werk-/hobbykamer met daarin de opstelling van de Cv-ketel en het luik naar de vliering.
De tweede slaapkamer is gelegen aan de voorzijde en beschikt over een dakkapel en wanden die zijn behangen. De derde slaapkamer is gelegen aan de achterzijde en ook hier zijn de wanden behangen. Daarnaast is er een vaste kast met schuifdeuren geplaatst en is er via openslaande deuren toegang tot het tweede balkon.
Het tweede balkon is net als het eerste balkon volledig gelegen over de gehele breedte van de woning en is overdekt. Ook hier is een stenen balustrade aanwezig en als extra hangt hier een, met de hand te bedienen, zonnescherm.
De badkamer is grotendeels betegeld en compleet uitgerust met een douchecabine, een wastafelmeubel, een ligbad met een handdouche, een toilet en een handdoeken radiator. Er zijn te openen ramen en in het plafond bevindt zich een inbouw spots.
BIJZONDERHEDEN
- De woning is deels voorzien van houten kozijnen en deels voorzien van kunststof kozijnen
- De woning beschikt over twee overdekte balkons
- De wanden zijn grotendeels glad afgewerkt
- De woning is grotendeels voorzien van laminaat
- Cv-ketel
- Slapende VvE, is in oprichting.
- Afgekochte erfpacht eeuwigdurend
- Bouwjaar 1938
- Energielabel D
- Oplevering in overleg
Woonoppervlakte
De Meetinstructie is gebaseerd op de NEN2580. De Meetinstructie is bedoeld om een meer eenduidige manier van meten toe te passen voor het geven van een indicatie van de gebruiksoppervlakte. De Meetinstructie sluit verschillen in meetuitkomsten niet volledig uit, door bijvoorbeeld interpretatieverschillen, afrondingen of beperkingen bij het uitvoeren van de meting. Indien de exacte maten voor een koper van cruciaal belang zijn, adviseren wij deze zelf na te meten. De (kandidaat)koper(s) zullen, indien gewenst, daartoe in de gelegenheid gesteld worden op een passend moment teneinde teleurstellingen en schade te voorkomen.
Ouderdomsclausule
Bij woningen ouder dan 30 jaar zal er standaard in de koopakte een ouderdomsclausule worden opgenomen.
Zelfbewoningsplicht
Koper is bekend met de zelfbewoningsplicht welke vanaf 01-01-2023 binnen de gemeente Vlaardingen van kracht is. De verkopend makelaar heeft koper doorverwezen naar de gemeente Vlaardingen omtrent de desbetreffende regelgeving. Verkoper noch verkopend makelaar aanvaarden geen enkele aansprakelijkheid voor geleden schade wegens het niet juist naleven van deze zelfbewoningsplicht.
Gunning
Verkoper behoudt zich uitdrukkelijk het recht voor het object te gunnen aan de gegadigde van zijn keuze.
Nadrukkelijk zij vermeld dat alle informatie in deze brochure moet beschouwd worden als een uitnodiging tot het doen van een bod of om in onderhandeling te treden. Er kunnen geen rechten worden ontleend aan deze informatie.
Vlietlanden NVM Makelaars streeft ernaar de informatie op haar website / brochures en andere uitingen zo actueel en nauwkeurig mogelijk weer te geven. Hoewel de informatie met de grootst mogelijke zorgvuldigheid is samengesteld aanvaarden wij geen enkele aansprakelijkheid ten aanzien van de juistheid van de vermelde gegevens.
Kenmerken
Overdracht
- vraagprijs
- € 315.000 k.k.
- Status
- Beschikbaar
- Aanvaarding
- In overleg
Bouw
- Soort woning
- Bovenwoning, appartement
- Soort bouw
- Bestaande bouw
Oppervlakten en inhoud
- Woonoppervlakte
- 95 m²
- Externe bergruimte
- 9 m²
- Perceel
- 247 m²
- Inhoud
- 320 m³
Indeling
- Aantal kamers
- 5 kamers (4 slaapkamers)
- Aantal verdiepingen
- 2 Verdiepingen
- Voorzieningen
- Tv kabel
Energie
- Energielabel
- D
- Isolatie
- Dubbel glas
Buitenruimte
- Ligging
- In woonwijk
- Tuin
- Achtertuin, voortuin
- Achtertuin
- 64 m² (12,50m Diep / 5,10m Breed)
- Ligging tuin
- Zuidoost
Garage
- Soort garage
- Geen garage
Parkeren
- Soort parkeergelegenheid
- Openbaar parkeren