Waalstraat 35
€ 419.000 k.k.
Vlaardingen
Eengezinswoning
113 m²
3 slaapkamers
Zuid
In overleg
Midden in het centrum staat deze karaktervolle familiewoning die meer ruimte en mogelijkheden biedt dan je op het eerste gezicht zou verwachten. Achter de gevel schuilt een verrassend compleet huis met drie slaapkamers, een groot dakterras op het zuiden en een royale, flexibel te gebruiken buiten- en bergruimte.
Je woont hier letterlijk in het hart van de stad. Winkels, supermarkten, horeca en het openbaar vervoer bevinden zich op loopafstand, met een snelle verbinding richting Rotterdam. Tegelijkertijd biedt de woning volop privacy en buitenruimte, wat deze plek bijzonder maakt voor zo’n centrale ligging.
Bij binnenkomst valt direct de prettige combinatie van karakter en comfort op. De woonkamer vormt het hart van de woning en is voorzien van vloerverwarming en originele openslaande deuren aan de voorzijde. Aansluitend ligt de moderne open keuken, compleet uitgerust met inbouwapparatuur en ruimte voor een eethoek.
Aan de achterzijde bevindt zich een overkapping die op meerdere manieren te gebruiken is. Deze ruimte is ideaal als overdekte stalling voor fietsen, een scooter of motor, maar kan net zo goed worden ingericht als een beschut terras. Aansluitend ligt de royale berging met toegang vanaf het achterpad. Deze ruimte leent zich uitstekend als hobbyruimte, werkplaats of atelier en beschikt over aansluitingen voor wasmachine en droger.
Op de eerste verdieping vind je een ruime slaapkamer, een comfortabele badkamer en het absolute pluspunt van deze woning: het riante dakterras op het zuiden. Hier geniet je de hele dag van de zon, met volop privacy en midden in de stad toch een heerlijk buitengevoel. Een perfecte plek voor lange zomeravonden, een barbecue met vrienden of ontspannen in de zon.
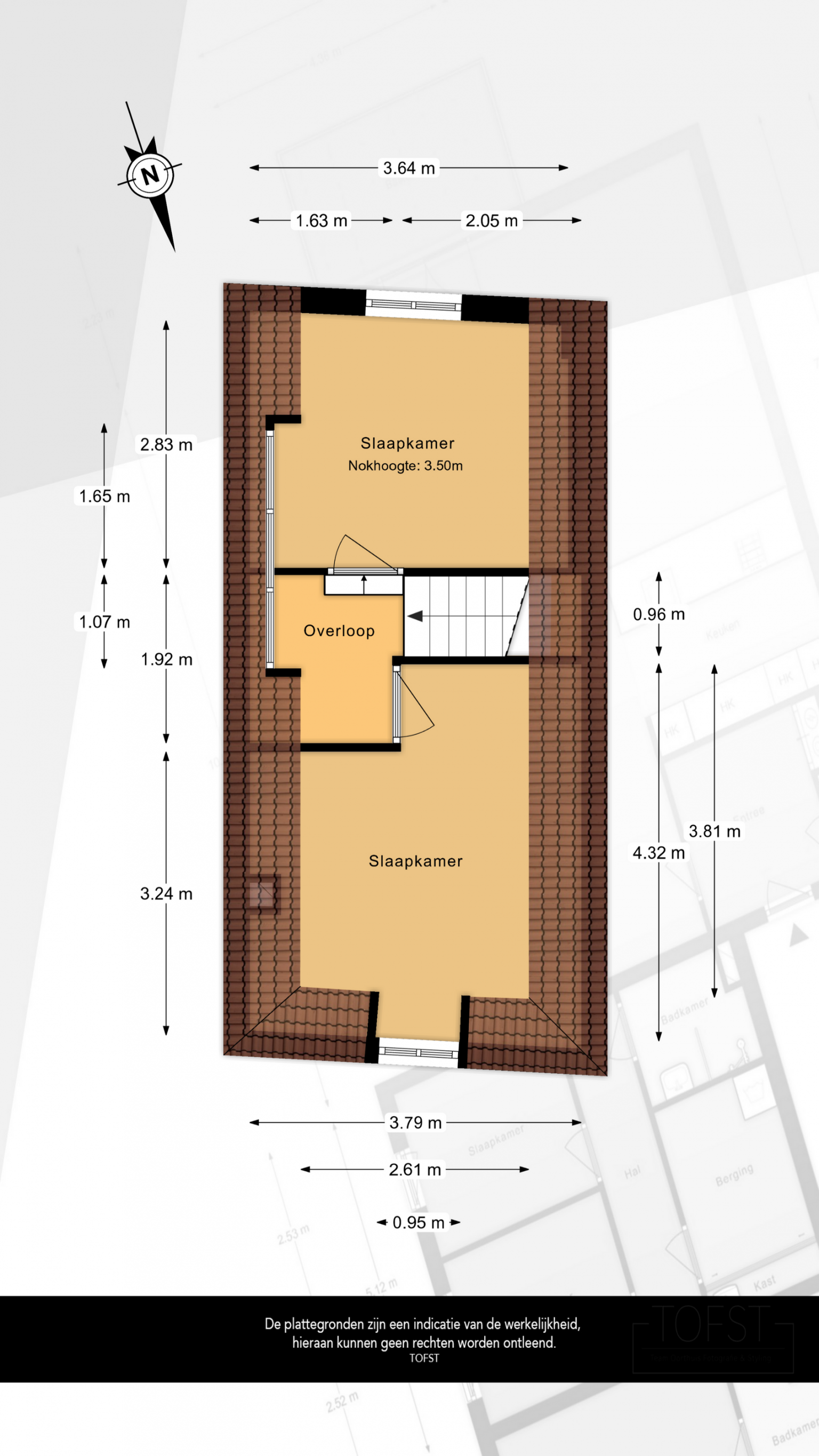
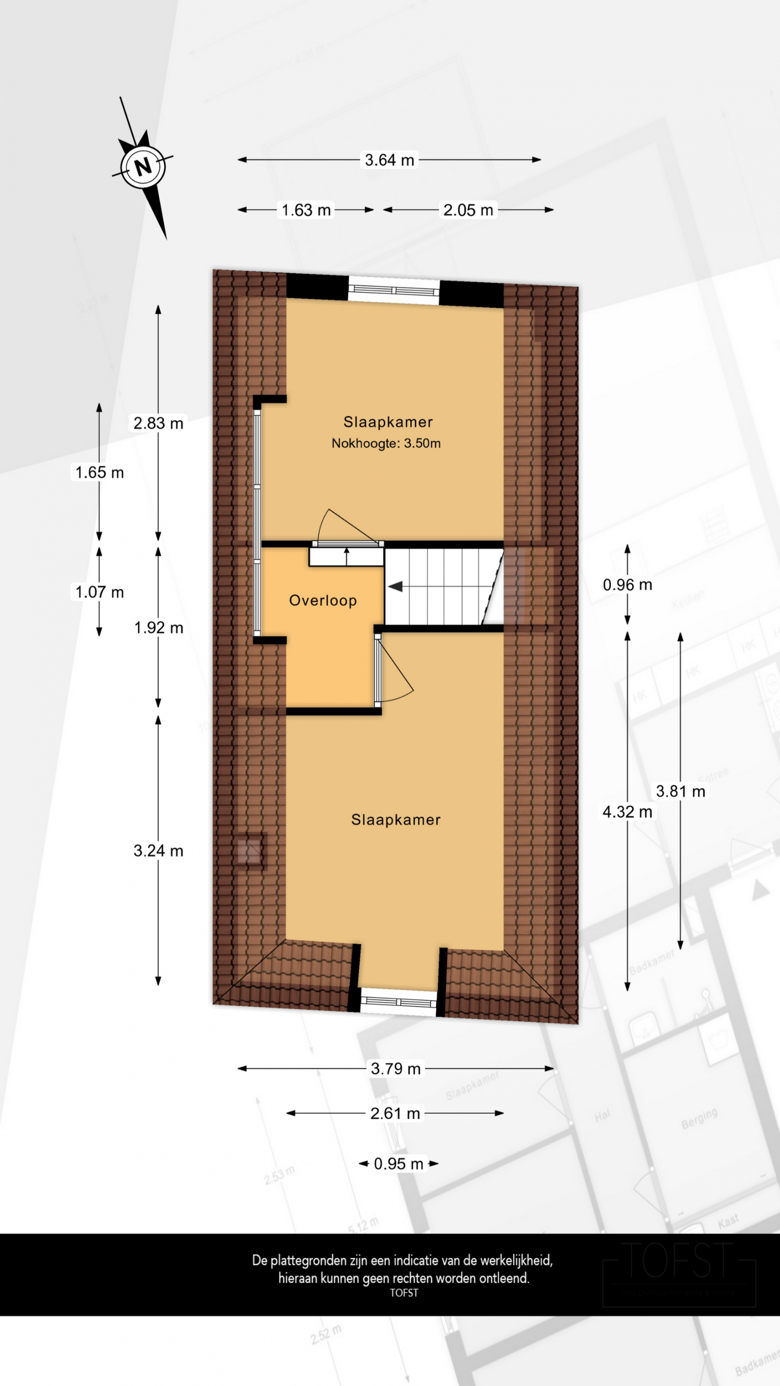
De tweede verdieping beschikt over nog twee sfeervolle slaapkamers met zichtbare balken en extra licht dankzij dakkapellen. Deze kamers zijn ideaal als slaap-, werk- of hobbyruimte en maken de woning geschikt voor gezinnen of mensen die thuis willen werken.
Met zijn karakteristieke uitstraling, praktische indeling en unieke combinatie van buitenruimte, berging en centrale ligging is dit een woning met veel mogelijkheden voor de toekomst.
INDELING
Begane grond
Vanaf de straat bereik je de voordeur met entreehal, waar zich ook de meterkast bevindt. De hal is afsluitbaar en afgewerkt met een tegelvloer en glasvliesbehang. Via een trede kom je in de woonkamer.
De woonkamer heeft aan de voorzijde een gezellige zithoek met originele openslaande deuren richting de straat. De vloer is voorzien van lichte tegels met vloerverwarming en de wanden zijn afgewerkt met glasvliesbehang. In het midden van de ruimte bevindt zich de spiltrap naar de eerste verdieping.
In het verlengde van de woonkamer ligt de open keuken met ruimte voor een eethoek. De keuken is uitgevoerd in een rechte opstelling en voorzien van een koel-vriescombinatie, oven, magnetron, vaatwasser, gaskookplaat en afzuigkap. Bovenkasten en een betegelde achterwand maken het geheel compleet.
Via een klein trapje bereik je de hoger gelegen hal met toegang tot het toilet en de overkapping. Het toilet is gedeeltelijk betegeld en voorzien van een zwevend toilet en fonteintje.
De overkapping biedt toegang tot het achterpad en de ruime berging. Deze berging is voorzien van elektra en verlichting en is uitstekend geschikt voor opslag, het stallen van fietsen of motor, of gebruik als werk- of hobbyruimte.
Eerste verdieping
De ruime overloop is voorzien van een laminaatvloer, glasvliesbehang en een raam voor daglichttoetreding. Hier bevinden zich de Cv-opstelling en de spiltrap naar de tweede verdieping.
De slaapkamer aan de voorzijde is ruim opgezet en beschikt over een dichtgemaakte open haard, die desgewenst weer in gebruik genomen kan worden.
De moderne badkamer is ruim opgezet en voorzien van een ligbad met douche, wastafelmeubel, zwevend toilet en designradiator. Het plafond is glad afgewerkt en voorzien van inbouwspots.
Vanuit de overloop stap je direct het riante dakterras op. Deze onderhoudsvriendelijke buitenruimte is gelegen op het zuiden en biedt veel privacy en zonuren.
Tweede verdieping
De overloop is voorzien van een laminaatvloer en beschikt over een gedeelde dakkapel met de aangrenzende slaapkamer. Via een trede is ook de derde slaapkamer bereikbaar.
De tweede slaapkamer heeft een hoogte tot in de nok, zichtbare balken en veel licht. De derde slaapkamer is eveneens voorzien van zichtbare balken en beschikt over een dakkapel aan de voorzijde.
Bijzonderheden
- Riant dakterras op het zuiden
- Drie slaapkamers
- Overkapping geschikt als stalling of beschutte buitenruimte
- Royale berging met toegang via achterpad, geschikt als hobby- of werkruimte
- Alle water- en gasleidingen vernieuwd
- Elektra volledig vernieuwd
- Rioolbuizen vervangen door PVC
- Dak volledig vernieuwd met pannen, latten en folie
- Hardhouten kozijnen met dubbel glas, m.u.v. voordeur en openslaande deuren aan de voorzijde
- Mogelijkheid tot vervangen van de openslaande deuren aan de voorzijde door een andere pui
- Woonkamer voorzien van vloerverwarming
- Moderne badkamer met ligbad
- Cv-ketel bouwjaar 2020
- Gelegen op eigen grond
- Bouwjaar 1900
- Energielabel E
Woonoppervlakte
De Meetinstructie is gebaseerd op de NEN2580. De Meetinstructie is bedoeld om een meer eenduidige manier van meten toe te passen voor het geven van een indicatie van de gebruiksoppervlakte. De Meetinstructie sluit verschillen in meetuitkomsten niet volledig uit, door bijvoorbeeld interpretatieverschillen, afrondingen of beperkingen bij het uitvoeren van de meting. Indien de exacte maten voor een koper van cruciaal belang zijn, adviseren wij deze zelf na te meten. De (kandidaat)koper(s) zullen, indien gewenst, daartoe in de gelegenheid gesteld worden op een passend moment teneinde teleurstellingen en schade te voorkomen.
Ouderdomsclausule
Bij woningen ouder dan 30 jaar zal er standaard in de koopakte een ouderdomsclausule worden opgenomen.
Notariskeuze en kosten
In principe ligt de notariskeuze bij de koper. Het doorhalen van de hypothecaire inschrijving in het kadaster moet door de verkoper betaald worden. Zijn de kosten voor deze doorhaling hoger dan € 400,- inclusief BTW dan wordt het meerdere bij de koper in rekening gebracht. Indien de koper een notaris kiest buiten een straal van 20 kilometer van de verkochte onroerende zaak dan zijn de eventuele kosten die de notaris berekent voor een eventuele verkoopvolmacht en legalisatie hiervan ten behoeve van de verkoper voor rekening van de koper.
Zelfbewoningsplicht
Koper is bekend met de zelfbewoningsplicht welke vanaf 01-01-2023 binnen de gemeente Vlaardingen van kracht is. De verkopend makelaar heeft koper doorverwezen naar de gemeente Vlaardingen omtrent de desbetreffende regelgeving. Verkoper noch verkopend makelaar aanvaarden geen enkele aansprakelijkheid voor geleden schade wegens het niet juist naleven van deze zelfbewoningsplicht.
Gunning
Verkoper behoudt zich uitdrukkelijk het recht voor het object te gunnen aan de gegadigde van zijn keuze.
Nadrukkelijk zij vermeld dat alle informatie in deze brochure moet beschouwd worden als een uitnodiging tot het doen van een bod of om in onderhandeling te treden. Er kunnen geen rechten worden ontleend aan deze informatie.
Vlietlanden NVM Makelaars streeft ernaar de informatie op haar website / brochures en andere uitingen zo actueel en nauwkeurig mogelijk weer te geven. Hoewel de informatie met de grootst mogelijke zorgvuldigheid is samengesteld aanvaarden wij geen enkele aansprakelijkheid ten aanzien van de juistheid van de vermelde gegevens.
Je woont hier letterlijk in het hart van de stad. Winkels, supermarkten, horeca en het openbaar vervoer bevinden zich op loopafstand, met een snelle verbinding richting Rotterdam. Tegelijkertijd biedt de woning volop privacy en buitenruimte, wat deze plek bijzonder maakt voor zo’n centrale ligging.
Bij binnenkomst valt direct de prettige combinatie van karakter en comfort op. De woonkamer vormt het hart van de woning en is voorzien van vloerverwarming en originele openslaande deuren aan de voorzijde. Aansluitend ligt de moderne open keuken, compleet uitgerust met inbouwapparatuur en ruimte voor een eethoek.
Aan de achterzijde bevindt zich een overkapping die op meerdere manieren te gebruiken is. Deze ruimte is ideaal als overdekte stalling voor fietsen, een scooter of motor, maar kan net zo goed worden ingericht als een beschut terras. Aansluitend ligt de royale berging met toegang vanaf het achterpad. Deze ruimte leent zich uitstekend als hobbyruimte, werkplaats of atelier en beschikt over aansluitingen voor wasmachine en droger.
Op de eerste verdieping vind je een ruime slaapkamer, een comfortabele badkamer en het absolute pluspunt van deze woning: het riante dakterras op het zuiden. Hier geniet je de hele dag van de zon, met volop privacy en midden in de stad toch een heerlijk buitengevoel. Een perfecte plek voor lange zomeravonden, een barbecue met vrienden of ontspannen in de zon.
De tweede verdieping beschikt over nog twee sfeervolle slaapkamers met zichtbare balken en extra licht dankzij dakkapellen. Deze kamers zijn ideaal als slaap-, werk- of hobbyruimte en maken de woning geschikt voor gezinnen of mensen die thuis willen werken.
Met zijn karakteristieke uitstraling, praktische indeling en unieke combinatie van buitenruimte, berging en centrale ligging is dit een woning met veel mogelijkheden voor de toekomst.
INDELING
Begane grond
Vanaf de straat bereik je de voordeur met entreehal, waar zich ook de meterkast bevindt. De hal is afsluitbaar en afgewerkt met een tegelvloer en glasvliesbehang. Via een trede kom je in de woonkamer.
De woonkamer heeft aan de voorzijde een gezellige zithoek met originele openslaande deuren richting de straat. De vloer is voorzien van lichte tegels met vloerverwarming en de wanden zijn afgewerkt met glasvliesbehang. In het midden van de ruimte bevindt zich de spiltrap naar de eerste verdieping.
In het verlengde van de woonkamer ligt de open keuken met ruimte voor een eethoek. De keuken is uitgevoerd in een rechte opstelling en voorzien van een koel-vriescombinatie, oven, magnetron, vaatwasser, gaskookplaat en afzuigkap. Bovenkasten en een betegelde achterwand maken het geheel compleet.
Via een klein trapje bereik je de hoger gelegen hal met toegang tot het toilet en de overkapping. Het toilet is gedeeltelijk betegeld en voorzien van een zwevend toilet en fonteintje.
De overkapping biedt toegang tot het achterpad en de ruime berging. Deze berging is voorzien van elektra en verlichting en is uitstekend geschikt voor opslag, het stallen van fietsen of motor, of gebruik als werk- of hobbyruimte.
Eerste verdieping
De ruime overloop is voorzien van een laminaatvloer, glasvliesbehang en een raam voor daglichttoetreding. Hier bevinden zich de Cv-opstelling en de spiltrap naar de tweede verdieping.
De slaapkamer aan de voorzijde is ruim opgezet en beschikt over een dichtgemaakte open haard, die desgewenst weer in gebruik genomen kan worden.
De moderne badkamer is ruim opgezet en voorzien van een ligbad met douche, wastafelmeubel, zwevend toilet en designradiator. Het plafond is glad afgewerkt en voorzien van inbouwspots.
Vanuit de overloop stap je direct het riante dakterras op. Deze onderhoudsvriendelijke buitenruimte is gelegen op het zuiden en biedt veel privacy en zonuren.
Tweede verdieping
De overloop is voorzien van een laminaatvloer en beschikt over een gedeelde dakkapel met de aangrenzende slaapkamer. Via een trede is ook de derde slaapkamer bereikbaar.
De tweede slaapkamer heeft een hoogte tot in de nok, zichtbare balken en veel licht. De derde slaapkamer is eveneens voorzien van zichtbare balken en beschikt over een dakkapel aan de voorzijde.
Bijzonderheden
- Riant dakterras op het zuiden
- Drie slaapkamers
- Overkapping geschikt als stalling of beschutte buitenruimte
- Royale berging met toegang via achterpad, geschikt als hobby- of werkruimte
- Alle water- en gasleidingen vernieuwd
- Elektra volledig vernieuwd
- Rioolbuizen vervangen door PVC
- Dak volledig vernieuwd met pannen, latten en folie
- Hardhouten kozijnen met dubbel glas, m.u.v. voordeur en openslaande deuren aan de voorzijde
- Mogelijkheid tot vervangen van de openslaande deuren aan de voorzijde door een andere pui
- Woonkamer voorzien van vloerverwarming
- Moderne badkamer met ligbad
- Cv-ketel bouwjaar 2020
- Gelegen op eigen grond
- Bouwjaar 1900
- Energielabel E
Woonoppervlakte
De Meetinstructie is gebaseerd op de NEN2580. De Meetinstructie is bedoeld om een meer eenduidige manier van meten toe te passen voor het geven van een indicatie van de gebruiksoppervlakte. De Meetinstructie sluit verschillen in meetuitkomsten niet volledig uit, door bijvoorbeeld interpretatieverschillen, afrondingen of beperkingen bij het uitvoeren van de meting. Indien de exacte maten voor een koper van cruciaal belang zijn, adviseren wij deze zelf na te meten. De (kandidaat)koper(s) zullen, indien gewenst, daartoe in de gelegenheid gesteld worden op een passend moment teneinde teleurstellingen en schade te voorkomen.
Ouderdomsclausule
Bij woningen ouder dan 30 jaar zal er standaard in de koopakte een ouderdomsclausule worden opgenomen.
Notariskeuze en kosten
In principe ligt de notariskeuze bij de koper. Het doorhalen van de hypothecaire inschrijving in het kadaster moet door de verkoper betaald worden. Zijn de kosten voor deze doorhaling hoger dan € 400,- inclusief BTW dan wordt het meerdere bij de koper in rekening gebracht. Indien de koper een notaris kiest buiten een straal van 20 kilometer van de verkochte onroerende zaak dan zijn de eventuele kosten die de notaris berekent voor een eventuele verkoopvolmacht en legalisatie hiervan ten behoeve van de verkoper voor rekening van de koper.
Zelfbewoningsplicht
Koper is bekend met de zelfbewoningsplicht welke vanaf 01-01-2023 binnen de gemeente Vlaardingen van kracht is. De verkopend makelaar heeft koper doorverwezen naar de gemeente Vlaardingen omtrent de desbetreffende regelgeving. Verkoper noch verkopend makelaar aanvaarden geen enkele aansprakelijkheid voor geleden schade wegens het niet juist naleven van deze zelfbewoningsplicht.
Gunning
Verkoper behoudt zich uitdrukkelijk het recht voor het object te gunnen aan de gegadigde van zijn keuze.
Nadrukkelijk zij vermeld dat alle informatie in deze brochure moet beschouwd worden als een uitnodiging tot het doen van een bod of om in onderhandeling te treden. Er kunnen geen rechten worden ontleend aan deze informatie.
Vlietlanden NVM Makelaars streeft ernaar de informatie op haar website / brochures en andere uitingen zo actueel en nauwkeurig mogelijk weer te geven. Hoewel de informatie met de grootst mogelijke zorgvuldigheid is samengesteld aanvaarden wij geen enkele aansprakelijkheid ten aanzien van de juistheid van de vermelde gegevens.
Kenmerken
Overdracht
- vraagprijs
- € 419.000 k.k.
- Status
- Beschikbaar
- Aanvaarding
- In overleg
Bouw
- Soort woning
- Eengezinswoning, tussenwoning
- Soort bouw
- Bestaande bouw
Oppervlakten en inhoud
- Woonoppervlakte
- 113 m²
- Externe bergruimte
- 33 m²
- Perceel
- 105 m²
- Inhoud
- 370 m³
Indeling
- Aantal kamers
- 4 kamers (3 slaapkamers)
- Aantal verdiepingen
- 3 Verdiepingen
- Voorzieningen
- Tv kabel
Energie
- Energielabel
- E
- Isolatie
- Gedeeltelijk dubbel glas
Buitenruimte
- Ligging
- In centrum
- Tuin
- Zonneterras
- Achtertuin
- 59 m² (13,90m Diep / 4,25m Breed)
- Ligging tuin
- Zuid
Garage
- Soort garage
- Geen garage
Parkeren
- Soort parkeergelegenheid
- Betaald parkeren, parkeervergunningen