Sweelinckstraat 71
€ 200.000 k.k.
Vlaardingen
Benedenwoning
52 m²
1 slaapkamer
Oost
In overleg
Wonen in een rustige straat, met het centrum van Vlaardingen op loopafstand, dat klinkt toch ideaal? Deze charmante benedenwoning combineert het gemak van gelijkvloers wonen met het plezier van een diepe tuin waar je heerlijk kunt ontspannen. Alle dagelijkse voorzieningen zoals winkels, scholen en het openbaar vervoer zijn in de directe omgeving te vinden, terwijl ook de uitvalswegen snel bereikbaar zijn. Binnen tref je een verrassend ruime 2-kamerwoning met een sfeervolle woonkamer met openslaande deuren naar de tuin, een keuken en een volledig betegelde badkamer. De slaapkamer aan de voorzijde is licht en comfortabel en de woning is grotendeels voorzien van laminaatvloeren en dubbele beglazing. Dankzij de originele details, zoals de sierlijsten langs het plafond en de karakteristieke schouw, ademt het huis nog steeds de charme van de bouwperiode, maar wel met hedendaags wooncomfort. De tuin maakt het plaatje compleet. Een fijne plek om te genieten van de buitenlucht, met genoeg ruimte voor een zithoek en extra opbergruimte in de houten berging. Kortom, een heerlijke woning op een centrale plek waar je meteen een fijn thuis van kunt maken.
INDELING
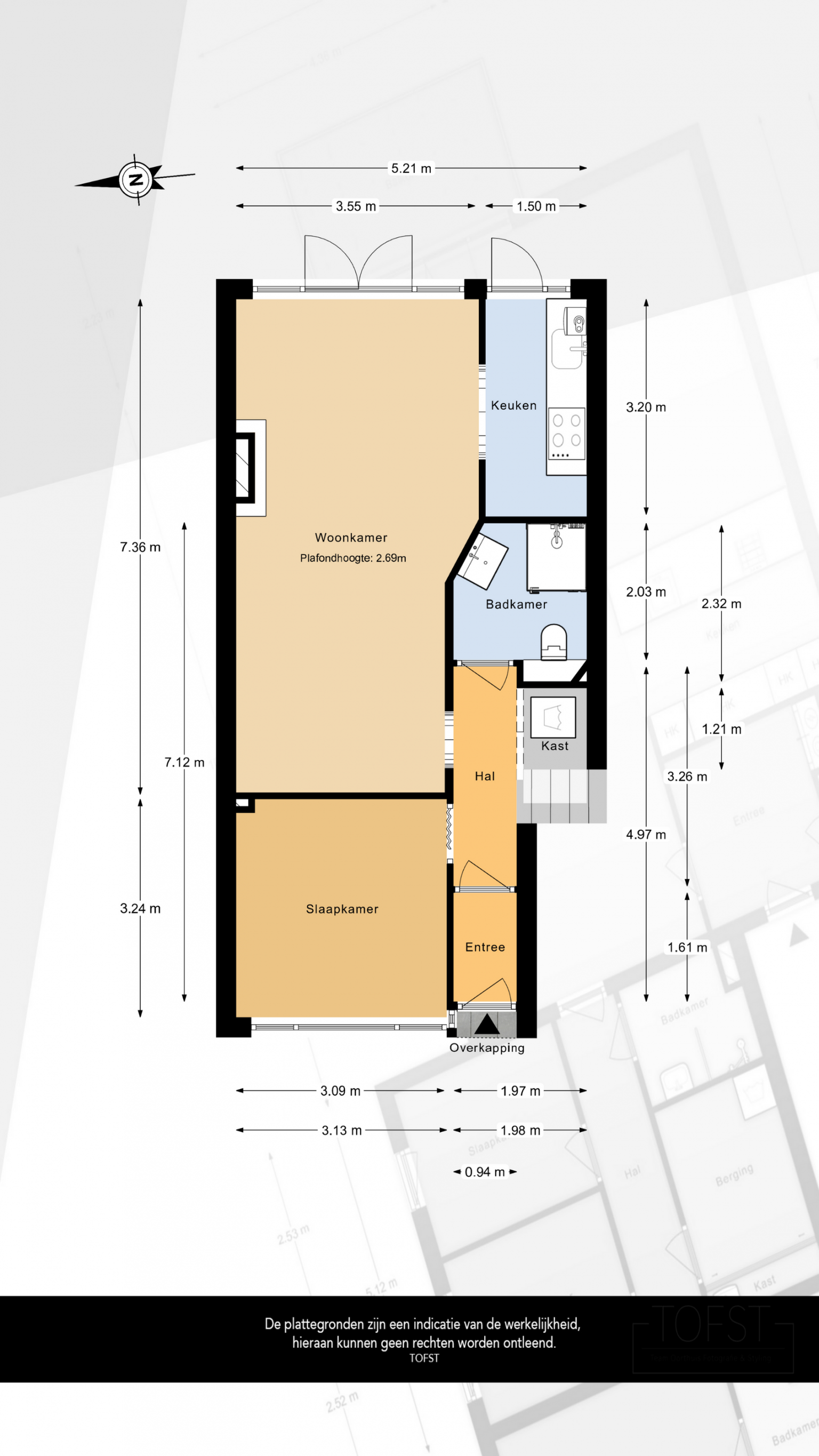
Na de voordeur is er toegang tot de afsluitbare entreehal met een laminaatvloer, die is doorgetrokken naar de aangrenzende hal. Deze hal beschikt over een ruime nis met de aansluitingen voor de wasmachine en de droger en er is toegang tot de badkamer, de slaapkamer en de woonkamer.
De badkamer is volledig betegeld, voorzien van inbouw spots en uitgerust met een douchecabine, een toilet en een wastafelmeubel met een spiegel en een hoge kast.
De slaapkamer is gelegen aan de voorzijde en heeft een laminaatvloer en een mooie sierlijst langs het plafond.
De woonkamer is toegankelijk via een toog en is tuingericht. Ook hier ligt een laminaatvloer, is het plafond afgewerkt met een sierlijst en is er via een toog toegang tot de keuken. De openslaande deuren geven toegang tot de achtertuin en in de woonkamer is de originele schouw nog aanwezig, maar deze is wel dichtgezet.
De keuken beschikt over een recht geplaatst keukenblok, bovenkasten en een betegelde achterwand. Naast de bovenkasten hangt de opstelling van de Cv-ketel en in de keuken is er nog een oven, een kookplaat en een afzuigkap aanwezig. Er is ruimte voor een losse koelkast en er is een deur naar de achtertuin. Het plafond heeft een sierlijst en op de vloer liggen tegels.
De diepe achtertuin is volledig bestraat en heeft houten schuttingen, die afscheiding bieden. Er staat een houten berging en er is diverse beplanting aanwezig.
BIJZONDERHEDEN
- De woning is grotendeels voorzien van laminaat
- De wanden zijn grotendeels afgewerkt met spachtelputz
- Diepe achtertuin met houten berging
- Volledig voorzien van houten kozijnen met dubbel glas
- Kunststof voordeur
- VvE bijdrage € 35,-- per maand
- Cv-ketel
- Gelegen op eigen grond
- Bouwjaar 1937
- Energielabel F
- Oplevering in overleg
Woonoppervlakte
De Meetinstructie is gebaseerd op de NEN2580. De Meetinstructie is bedoeld om een meer eenduidige manier van meten toe te passen voor het geven van een indicatie van de gebruiksoppervlakte. De Meetinstructie sluit verschillen in meetuitkomsten niet volledig uit, door bijvoorbeeld interpretatieverschillen, afrondingen of beperkingen bij het uitvoeren van de meting. Indien de exacte maten voor een koper van cruciaal belang zijn, adviseren wij deze zelf na te meten. De (kandidaat)koper(s) zullen, indien gewenst, daartoe in de gelegenheid gesteld worden op een passend moment teneinde teleurstellingen en schade te voorkomen.
Ouderdomsclausule
Bij woningen ouder dan 30 jaar zal er standaard in de koopakte een ouderdomsclausule worden opgenomen.
Notariskeuze en kosten
In principe ligt de notariskeuze bij de koper. Het doorhalen van de hypothecaire inschrijving in het kadaster moet door de verkoper betaald worden. Zijn de kosten voor deze doorhaling hoger dan € 400,- inclusief BTW dan wordt het meerdere bij de koper in rekening gebracht. Indien de koper een notaris kiest buiten een straal van 20 kilometer van de verkochte onroerende zaak dan zijn de eventuele kosten die de notaris berekent voor een eventuele verkoopvolmacht en legalisatie hiervan ten behoeve van de verkoper voor rekening van de koper.
Zelfbewoningsplicht
Koper is bekend met de zelfbewoningsplicht welke vanaf 01-01-2023 binnen de gemeente Vlaardingen van kracht is. De verkopend makelaar heeft koper doorverwezen naar de gemeente Vlaardingen omtrent de desbetreffende regelgeving. Verkoper noch verkopend makelaar aanvaarden geen enkele aansprakelijkheid voor geleden schade wegens het niet juist naleven van deze zelfbewoningsplicht.
Gunning
Verkoper behoudt zich uitdrukkelijk het recht voor het object te gunnen aan de gegadigde van zijn keuze.
Nadrukkelijk zij vermeld dat alle informatie in deze brochure moet beschouwd worden als een uitnodiging tot het doen van een bod of om in onderhandeling te treden. Er kunnen geen rechten worden ontleend aan deze informatie.
Vlietlanden NVM Makelaars streeft ernaar de informatie op haar website / brochures en andere uitingen zo actueel en nauwkeurig mogelijk weer te geven. Hoewel de informatie met de grootst mogelijke zorgvuldigheid is samengesteld aanvaarden wij geen enkele aansprakelijkheid ten aanzien van de juistheid van de vermelde gegevens.
INDELING
Na de voordeur is er toegang tot de afsluitbare entreehal met een laminaatvloer, die is doorgetrokken naar de aangrenzende hal. Deze hal beschikt over een ruime nis met de aansluitingen voor de wasmachine en de droger en er is toegang tot de badkamer, de slaapkamer en de woonkamer.
De badkamer is volledig betegeld, voorzien van inbouw spots en uitgerust met een douchecabine, een toilet en een wastafelmeubel met een spiegel en een hoge kast.
De slaapkamer is gelegen aan de voorzijde en heeft een laminaatvloer en een mooie sierlijst langs het plafond.
De woonkamer is toegankelijk via een toog en is tuingericht. Ook hier ligt een laminaatvloer, is het plafond afgewerkt met een sierlijst en is er via een toog toegang tot de keuken. De openslaande deuren geven toegang tot de achtertuin en in de woonkamer is de originele schouw nog aanwezig, maar deze is wel dichtgezet.
De keuken beschikt over een recht geplaatst keukenblok, bovenkasten en een betegelde achterwand. Naast de bovenkasten hangt de opstelling van de Cv-ketel en in de keuken is er nog een oven, een kookplaat en een afzuigkap aanwezig. Er is ruimte voor een losse koelkast en er is een deur naar de achtertuin. Het plafond heeft een sierlijst en op de vloer liggen tegels.
De diepe achtertuin is volledig bestraat en heeft houten schuttingen, die afscheiding bieden. Er staat een houten berging en er is diverse beplanting aanwezig.
BIJZONDERHEDEN
- De woning is grotendeels voorzien van laminaat
- De wanden zijn grotendeels afgewerkt met spachtelputz
- Diepe achtertuin met houten berging
- Volledig voorzien van houten kozijnen met dubbel glas
- Kunststof voordeur
- VvE bijdrage € 35,-- per maand
- Cv-ketel
- Gelegen op eigen grond
- Bouwjaar 1937
- Energielabel F
- Oplevering in overleg
Woonoppervlakte
De Meetinstructie is gebaseerd op de NEN2580. De Meetinstructie is bedoeld om een meer eenduidige manier van meten toe te passen voor het geven van een indicatie van de gebruiksoppervlakte. De Meetinstructie sluit verschillen in meetuitkomsten niet volledig uit, door bijvoorbeeld interpretatieverschillen, afrondingen of beperkingen bij het uitvoeren van de meting. Indien de exacte maten voor een koper van cruciaal belang zijn, adviseren wij deze zelf na te meten. De (kandidaat)koper(s) zullen, indien gewenst, daartoe in de gelegenheid gesteld worden op een passend moment teneinde teleurstellingen en schade te voorkomen.
Ouderdomsclausule
Bij woningen ouder dan 30 jaar zal er standaard in de koopakte een ouderdomsclausule worden opgenomen.
Notariskeuze en kosten
In principe ligt de notariskeuze bij de koper. Het doorhalen van de hypothecaire inschrijving in het kadaster moet door de verkoper betaald worden. Zijn de kosten voor deze doorhaling hoger dan € 400,- inclusief BTW dan wordt het meerdere bij de koper in rekening gebracht. Indien de koper een notaris kiest buiten een straal van 20 kilometer van de verkochte onroerende zaak dan zijn de eventuele kosten die de notaris berekent voor een eventuele verkoopvolmacht en legalisatie hiervan ten behoeve van de verkoper voor rekening van de koper.
Zelfbewoningsplicht
Koper is bekend met de zelfbewoningsplicht welke vanaf 01-01-2023 binnen de gemeente Vlaardingen van kracht is. De verkopend makelaar heeft koper doorverwezen naar de gemeente Vlaardingen omtrent de desbetreffende regelgeving. Verkoper noch verkopend makelaar aanvaarden geen enkele aansprakelijkheid voor geleden schade wegens het niet juist naleven van deze zelfbewoningsplicht.
Gunning
Verkoper behoudt zich uitdrukkelijk het recht voor het object te gunnen aan de gegadigde van zijn keuze.
Nadrukkelijk zij vermeld dat alle informatie in deze brochure moet beschouwd worden als een uitnodiging tot het doen van een bod of om in onderhandeling te treden. Er kunnen geen rechten worden ontleend aan deze informatie.
Vlietlanden NVM Makelaars streeft ernaar de informatie op haar website / brochures en andere uitingen zo actueel en nauwkeurig mogelijk weer te geven. Hoewel de informatie met de grootst mogelijke zorgvuldigheid is samengesteld aanvaarden wij geen enkele aansprakelijkheid ten aanzien van de juistheid van de vermelde gegevens.
Kenmerken
Overdracht
- vraagprijs
- € 200.000 k.k.
- Status
- Verkocht onder voorbehoud
- Aanvaarding
- In overleg
Bouw
- Soort woning
- Benedenwoning, appartement
- Soort bouw
- Bestaande bouw
Oppervlakten en inhoud
- Woonoppervlakte
- 52 m²
- Externe bergruimte
- 5 m²
- Inhoud
- 179 m³
Indeling
- Aantal kamers
- 2 kamers (1 slaapkamer)
- Aantal verdiepingen
- 1 Verdiepingen
- Voorzieningen
- Tv kabel
Energie
- Energielabel
- F
- Isolatie
- Dubbel glas
Buitenruimte
- Ligging
- Aan rustige weg, in woonwijk
- Tuin
- Achtertuin
- Achtertuin
- 32 m² (8,90m Diep / 3,55m Breed)
- Ligging tuin
- Oost
Garage
- Soort garage
- Geen garage
Parkeren
- Soort parkeergelegenheid
- Openbaar parkeren