Mahlerstraat 81
€ 245.000 k.k.
Vlaardingen
Portiekflat
62 m²
2 slaapkamers
In overleg
Op een fijne plek in Vlaardingen, ligt dit lichte 3-kamerappartement op de eerste verdieping van een kleinschalig complex. Hier woon je rustig en toch met alles binnen handbereik. Winkels, scholen, het openbaar vervoer en sportgelegenheden liggen in de buurt, net als het gezellige centrum en de uitvalswegen richting Rotterdam en Den Haag. Het appartement zelf voelt direct verzorgd aan, met een nette afwerking van de wanden met renovlies en een doorgelegde laminaatvloer. De woonkamer is heerlijk licht dankzij de ramen aan beide zijden en heeft voldoende ruimte voor een comfortabele zit- én eethoek. Vanuit hier loop je zo door naar de keuken, die praktisch is opgesteld en voorzien is van diverse inbouwapparatuur. Extra fijn is de toegang tot het balkon, waar je beschut en gezellig zit. Met twee slaapkamers, waarvan de grootste zelfs twee vaste kasten, een deur naar het balkon heeft en een recent gestukt plafond, is er genoeg ruimte voor een gezin, thuiswerken of hobby’s. De badkamer met inloopdouche en de grotendeels betegelde toiletruimte maken het geheel compleet. Bovendien is de woning grotendeels voorzien van kunststof kozijnen met dubbel glas, heeft het een actieve VvE en beschik je over een eigen berging buiten het complex. Kortom, een appartement met een frisse uitstraling, fijne buitenruimte en een prettige ligging in Vlaardingen
INDELING
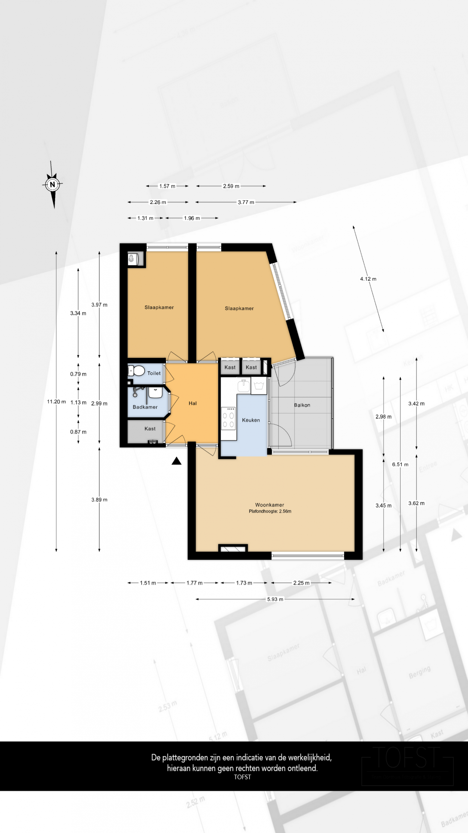
Via de afgesloten entree met een bellentableau en de brievenbussen is er toegang tot de centrale hal. Vanuit deze hal is er middels een trap toegang tot de 1e en 2e verdieping. De eigen afgesloten berging is buiten gelegen langs het complex, waarbij het dak recentelijk is vervangen.
APPARTEMENT
Na de voordeur is er toegang tot de hal. Deze is netjes verzorgt en voorzien van een plafond met inbouw spots. De vloer is voorzien van laminaat en de wanden zijn afgewerkt met renovlies. Dit alles is terug te vinden in het gehele appartement. Vanuit de hal is er toegang tot de woonkamer, twee slaapkamers, een vaste kast met daarin de meterkast, de badkamer en het toilet, dat grotendeels is betegeld.
De woonkamer heeft door de ramen aan weerszijden veel lichtinval en biedt voldoende ruimte voor zowel een zit- als een eethoek. De radiatoren zijn netjes weggewerkt achter een ombouw en er is een directe toegang tot de keuken.
De keuken is opgesteld in een L-vorm en is uitgerust met een oven, een inductiekookplaat, een afzuigkap en een wasmachine aansluiting. De achterwand is betegeld en er zijn bovenkasten aanwezig. Het plafond is voorzien van inbouw spots en vanuit de keuken is er een deur naar het balkon.
Het balkon is fijn overdekt door het bovengelegen balkon en is deels inpandig. Hierdoor is het hier fijn beschut en het metalen hekwerk is afgewerkt met een rieten mat, de vloer is afgewerkt met tegels.
De twee slaapkamers zijn beide gelegen aan de achterzijde, waarbij de hoofdslaapkamer de beschikking heeft over twee open vaste kasten en een deur naar het balkon. Tevens is het plafond hier recentelijk gestukt.
In de kleinere slaapkamer is de kast met de opstelling van de Cv-ketel,
De inpandige badkamer is volledig betegeld en voorzien van een inloopdouche en een wastafel met daarboven een spiegelkast. Het plafond is voorzien van een verlaagd plafond met inbouw spots en ventilatie-rooster.
BIJZONDERHEDEN
- De woning is grotendeels voorzien van kunststof kozijnen met dubbel glas (jan 2021), m.u.v. Alle kozijnen rondom het balkon,
Deze zijn uitgevoerd in hardhout met dubbel glas
- Alle wanden zijn voorzien van renovlies
- Geheel voorzien van een laminaatvloer, m.u.v. De badkamer en het toilet
- Plafond in de hoofdslaapkamer is recentelijk gestukt
- Cv-ketel (2013)
- Actieve VvE (€125,- per maand)
- Erfpacht: € 24,96 per jaar, loopt tot 16-08-2056
- Bouwjaar 1957
- Energielabel D
- Oplevering in overleg
Woonoppervlakte
De Meetinstructie is gebaseerd op de NEN2580. De Meetinstructie is bedoeld om een meer eenduidige manier van meten toe te passen voor het geven van een indicatie van de gebruiksoppervlakte. De Meetinstructie sluit verschillen in meetuitkomsten niet volledig uit, door bijvoorbeeld interpretatieverschillen, afrondingen of beperkingen bij het uitvoeren van de meting. Indien de exacte maten voor een koper van cruciaal belang zijn, adviseren wij deze zelf na te meten. De (kandidaat)koper(s) zullen, indien gewenst, daartoe in de gelegenheid gesteld worden op een passend moment teneinde teleurstellingen en schade te voorkomen.
Ouderdomsclausule
Bij woningen ouder dan 30 jaar zal er standaard in de koopakte een ouderdomsclausule worden opgenomen.
Notariskeuze en kosten
In principe ligt de notariskeuze bij de koper. Het doorhalen van de hypothecaire inschrijving in het kadaster moet door de verkoper betaald worden. Zijn de kosten voor deze doorhaling hoger dan € 400,- inclusief BTW dan wordt het meerdere bij de koper in rekening gebracht. Indien de koper een notaris kiest buiten een straal van 20 kilometer van de verkochte onroerende zaak dan zijn de eventuele kosten die de notaris berekent voor een eventuele verkoopvolmacht en legalisatie hiervan ten behoeve van de verkoper voor rekening van de koper.
Zelfbewoningsplicht
Koper is bekend met de zelfbewoningsplicht welke vanaf 01-01-2023 binnen de gemeente Vlaardingen van kracht is. De verkopend makelaar heeft koper doorverwezen naar de gemeente Vlaardingen omtrent de desbetreffende regelgeving. Verkoper noch verkopend makelaar aanvaarden geen enkele aansprakelijkheid voor geleden schade wegens het niet juist naleven van deze zelfbewoningsplicht.
Gunning
Verkoper behoudt zich uitdrukkelijk het recht voor het object te gunnen aan de gegadigde van zijn keuze.
Nadrukkelijk zij vermeld dat alle informatie in deze brochure moet beschouwd worden als een uitnodiging tot het doen van een bod of om in onderhandeling te treden. Er kunnen geen rechten worden ontleend aan deze informatie.
Vlietlanden NVM Makelaars streeft ernaar de informatie op haar website / brochures en andere uitingen zo actueel en nauwkeurig mogelijk weer te geven. Hoewel de informatie met de grootst mogelijke zorgvuldigheid is samengesteld aanvaarden wij geen enkele aansprakelijkheid ten aanzien van de juistheid van de vermelde gegevens.
INDELING
Via de afgesloten entree met een bellentableau en de brievenbussen is er toegang tot de centrale hal. Vanuit deze hal is er middels een trap toegang tot de 1e en 2e verdieping. De eigen afgesloten berging is buiten gelegen langs het complex, waarbij het dak recentelijk is vervangen.
APPARTEMENT
Na de voordeur is er toegang tot de hal. Deze is netjes verzorgt en voorzien van een plafond met inbouw spots. De vloer is voorzien van laminaat en de wanden zijn afgewerkt met renovlies. Dit alles is terug te vinden in het gehele appartement. Vanuit de hal is er toegang tot de woonkamer, twee slaapkamers, een vaste kast met daarin de meterkast, de badkamer en het toilet, dat grotendeels is betegeld.
De woonkamer heeft door de ramen aan weerszijden veel lichtinval en biedt voldoende ruimte voor zowel een zit- als een eethoek. De radiatoren zijn netjes weggewerkt achter een ombouw en er is een directe toegang tot de keuken.
De keuken is opgesteld in een L-vorm en is uitgerust met een oven, een inductiekookplaat, een afzuigkap en een wasmachine aansluiting. De achterwand is betegeld en er zijn bovenkasten aanwezig. Het plafond is voorzien van inbouw spots en vanuit de keuken is er een deur naar het balkon.
Het balkon is fijn overdekt door het bovengelegen balkon en is deels inpandig. Hierdoor is het hier fijn beschut en het metalen hekwerk is afgewerkt met een rieten mat, de vloer is afgewerkt met tegels.
De twee slaapkamers zijn beide gelegen aan de achterzijde, waarbij de hoofdslaapkamer de beschikking heeft over twee open vaste kasten en een deur naar het balkon. Tevens is het plafond hier recentelijk gestukt.
In de kleinere slaapkamer is de kast met de opstelling van de Cv-ketel,
De inpandige badkamer is volledig betegeld en voorzien van een inloopdouche en een wastafel met daarboven een spiegelkast. Het plafond is voorzien van een verlaagd plafond met inbouw spots en ventilatie-rooster.
BIJZONDERHEDEN
- De woning is grotendeels voorzien van kunststof kozijnen met dubbel glas (jan 2021), m.u.v. Alle kozijnen rondom het balkon,
Deze zijn uitgevoerd in hardhout met dubbel glas
- Alle wanden zijn voorzien van renovlies
- Geheel voorzien van een laminaatvloer, m.u.v. De badkamer en het toilet
- Plafond in de hoofdslaapkamer is recentelijk gestukt
- Cv-ketel (2013)
- Actieve VvE (€125,- per maand)
- Erfpacht: € 24,96 per jaar, loopt tot 16-08-2056
- Bouwjaar 1957
- Energielabel D
- Oplevering in overleg
Woonoppervlakte
De Meetinstructie is gebaseerd op de NEN2580. De Meetinstructie is bedoeld om een meer eenduidige manier van meten toe te passen voor het geven van een indicatie van de gebruiksoppervlakte. De Meetinstructie sluit verschillen in meetuitkomsten niet volledig uit, door bijvoorbeeld interpretatieverschillen, afrondingen of beperkingen bij het uitvoeren van de meting. Indien de exacte maten voor een koper van cruciaal belang zijn, adviseren wij deze zelf na te meten. De (kandidaat)koper(s) zullen, indien gewenst, daartoe in de gelegenheid gesteld worden op een passend moment teneinde teleurstellingen en schade te voorkomen.
Ouderdomsclausule
Bij woningen ouder dan 30 jaar zal er standaard in de koopakte een ouderdomsclausule worden opgenomen.
Notariskeuze en kosten
In principe ligt de notariskeuze bij de koper. Het doorhalen van de hypothecaire inschrijving in het kadaster moet door de verkoper betaald worden. Zijn de kosten voor deze doorhaling hoger dan € 400,- inclusief BTW dan wordt het meerdere bij de koper in rekening gebracht. Indien de koper een notaris kiest buiten een straal van 20 kilometer van de verkochte onroerende zaak dan zijn de eventuele kosten die de notaris berekent voor een eventuele verkoopvolmacht en legalisatie hiervan ten behoeve van de verkoper voor rekening van de koper.
Zelfbewoningsplicht
Koper is bekend met de zelfbewoningsplicht welke vanaf 01-01-2023 binnen de gemeente Vlaardingen van kracht is. De verkopend makelaar heeft koper doorverwezen naar de gemeente Vlaardingen omtrent de desbetreffende regelgeving. Verkoper noch verkopend makelaar aanvaarden geen enkele aansprakelijkheid voor geleden schade wegens het niet juist naleven van deze zelfbewoningsplicht.
Gunning
Verkoper behoudt zich uitdrukkelijk het recht voor het object te gunnen aan de gegadigde van zijn keuze.
Nadrukkelijk zij vermeld dat alle informatie in deze brochure moet beschouwd worden als een uitnodiging tot het doen van een bod of om in onderhandeling te treden. Er kunnen geen rechten worden ontleend aan deze informatie.
Vlietlanden NVM Makelaars streeft ernaar de informatie op haar website / brochures en andere uitingen zo actueel en nauwkeurig mogelijk weer te geven. Hoewel de informatie met de grootst mogelijke zorgvuldigheid is samengesteld aanvaarden wij geen enkele aansprakelijkheid ten aanzien van de juistheid van de vermelde gegevens.
Kenmerken
Overdracht
- vraagprijs
- € 245.000 k.k.
- Status
- Verkocht onder voorbehoud
- Aanvaarding
- In overleg
Bouw
- Soort woning
- Portiekflat, appartement
- Soort bouw
- Bestaande bouw
Oppervlakten en inhoud
- Woonoppervlakte
- 62 m²
- Externe bergruimte
- 4 m²
- Inhoud
- 203 m³
Indeling
- Aantal kamers
- 3 kamers (2 slaapkamers)
- Aantal verdiepingen
- 1 Verdiepingen
- Voorzieningen
- Tv kabel
Energie
- Energielabel
- D
- Isolatie
- Dubbel glas
Buitenruimte
- Ligging
- In woonwijk
- Tuin
- Geen tuin
Garage
- Soort garage
- Geen garage
Parkeren
- Soort parkeergelegenheid
- Openbaar parkeren