Billitonlaan 44
€ 300.000 k.k.
Vlaardingen
Maisonnette
83 m²
3 slaapkamers
In overleg
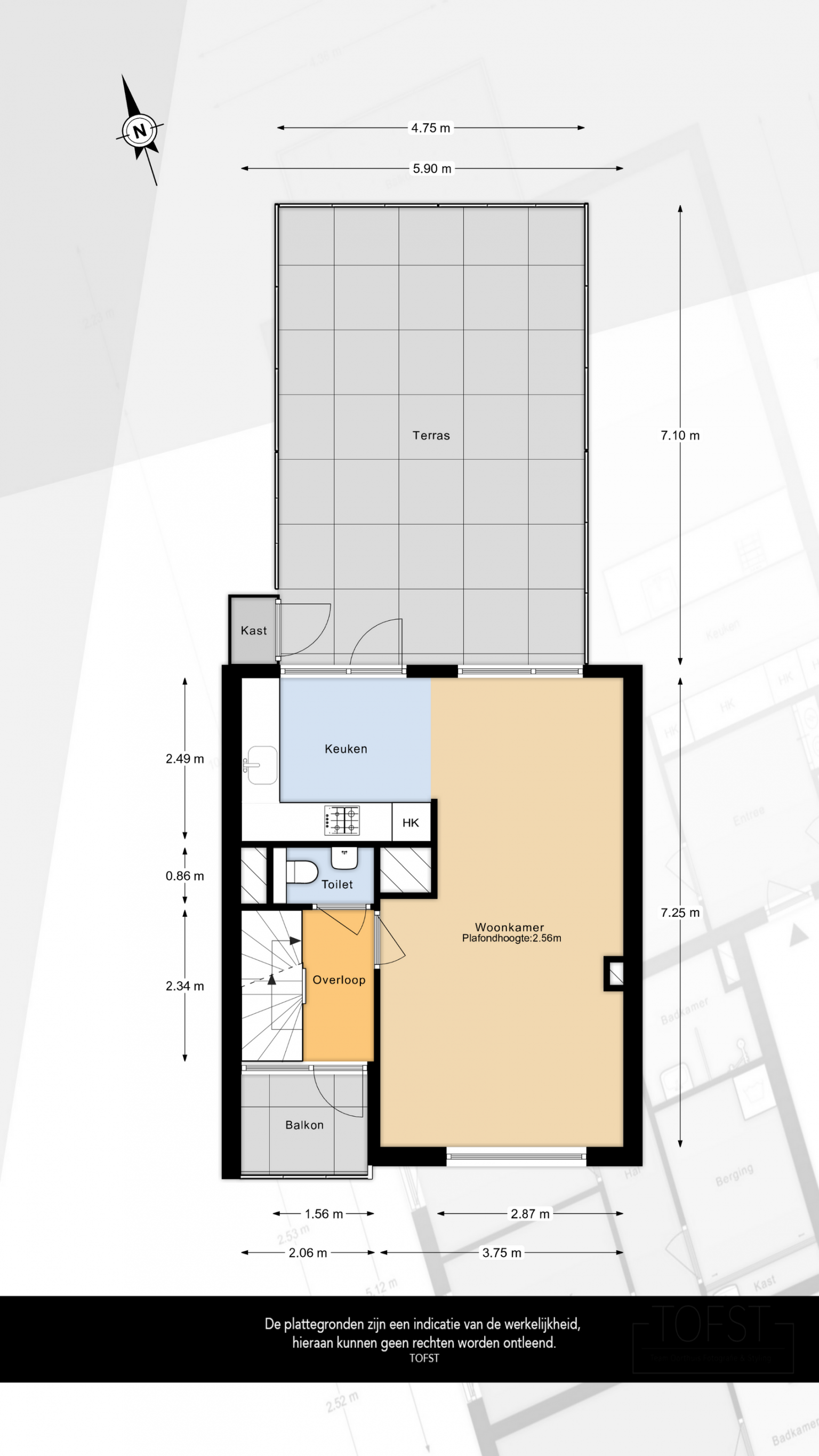
Deze 4-kamermaisonnette ligt boven een gezellige winkelstraat, met alle dagelijkse voorzieningen direct binnen handbereik en het bruisende stadscentrum op een paar minuten lopen. Bovendien stopt het openbaar vervoer praktisch voor de deur, waardoor je zo richting Rotterdam of de andere kanten van Vlaardingen reist. Zodra je de voordeur opent, kom je binnen in de hal met trapopgang naar jouw nieuwe thuis, waar op de eerste verdieping een ruime woonkamer op je wacht met een levendig uitzicht over de laan. De gehele verdieping is voorzien van een tegelvloer met comfortabele vloerverwarming en de wanden zijn netjes afgewerkt met spachtelputz. Je vindt hier een gezellige keuken met alle benodigde inbouwapparatuur om jouw kookkunsten op los te laten, een volledig betegeld toilet en toegang tot zowel een balkon aan de voorzijde, voorzien van kunstgras en een markies om lekker in de schaduw te zitten, als een groot, zonnig dakterras aan de achterzijde. Het terras is jouw privé plek om in alle rust te genieten, dankzij de houten vlonderplanken, schutting, verlichting en de handige houten berging met elektra. Op de tweede verdieping vind je drie fijne slaapkamers met laminaatvloeren en gestuukte wanden, waarvan de hoofdslaapkamer en de derde slaapkamer een vaste kast heeft. De badkamer is vernieuwd in 2017 en biedt een douche, een modern wastafelmeubel met spiegel en verlichting, natuurlijke ventilatie en een aansluiting voor de wasmachine. Boven deze verdieping is er bovendien een vliering met verlichting, ideaal voor al je extra spullen. Met energielabel D, houten kozijnen met dubbel glas, een Cv-ketel uit 2014, vrij parkeren rondom het complex en de gevels die in 2020 nog zijn geschilderd, is dit een plek waar je je geen zorgen hoeft te maken maar vooral kunt genieten van het wonen op een levendige locatie met alles dichtbij.
INDELING
Voordeur aan de straat waarna er toegang is tot de hal met de meterkast en de trapopgang, die is voorzien van vloerbedekking.
1E VERDIEPING
De overloop heeft ruimte voor de garderobe en geeft toegang tot de woonkamer, de gestoffeerde trap naar de 2e verdieping, het volledig betegelde toilet met als extra een fonteintje en het balkon. De wanden zijn voorzien van spachtelputz en de vloer is voorzien van tegels, die zijn terug te vinden op deze gehele verdieping.
Het balkon is gelegen aan de voorzijde en heeft een levendig uitzicht over de laan. De vloer is voorzien van kunstgras, er hangt een markies voor de nodige schaduw en de deur naar het balkon is voorzien van een hordeur.
De woonkamer heeft zicht naar zowel de voor- als de achterzijde en heeft ruimte voor zowel een zit- als een eethoek. Aan de voorzijde hangt een markies en aan de achterzijde, er is een deur met een hordeur naar het dakterras en er is een open toegang tot de keuken. De wanden zijn voorzien van spachtelputz en het plafond is gespoten.
De keuken heeft een betegelde achterwand en is opgesteld in een hoek. De aanwezige bovenkasten zorgen voor extra opbergmogelijkheden en in de keuken is diverse inbouwapparatuur aanwezig, zoals een oven, een koel/vriescombinatie, een vaatwasser, een 4-pits gaskookplaat en een afzuigkap met verlichting.
Het ruime dakterras heeft voldoende privacy en is voorzien van houten vlonderplanken en een houten schutting rondom, met verlichting. Langs de gevel is een lage houten overkapping geplaatst en er staat een houten berging die is voorzien van elektra.
2E VERDIEPING
De overloop op deze verdieping is voorzien van gestuukte wanden en een laminaatvloer, die is doorgetrokken naar de drie aanwezige slaapkamers. Vanaf de overloop is er een luik naar de vliering, is er een vaste kast met de opstelling van de Cv-ketel en geeft het toegang tot drie slaapkamers en de badkamer.
De hoofdslaapkamer en de tweede slaapkamer zijn gelegen aan de achterzijde, waarbij de hoofdslaapkamer is voorzien van een vaste kast. De derde slaapkamer is gelegen aan de voorzijde en is eveneens voorzien van een vaste kast.
De volledig betegelde badkamer is uitgerust met een douche, een wastafelmeubel met daarboven een spiegel met verlichting en een wasmachine aansluiting. Het aanwezig raam zorgt voor natuurlijke ventilatie en het plafond is glad afgewerkt en daarbij voorzien van een inbouw spot en een afzuigpunt.
BIJZONDERHEDEN
- Erfpacht tot 15-11-2050, canon € 85,31 per jaar.
- Geheel voorzien van houten kozijnen met dubbel glas
- Badkamer vernieuwd in (2017)
- Gestuukte wanden op de verdieping
- Cv-ketel voor verwarming en warm water (2014)
- Vliering met extra bergruimte en verlichting
- Woonverdieping is voorzien van vloerverwarming
- Voorzijde en achterzijde gevel opnieuw geschilderd (2020)
- Vrij parkeren rondom het complex
- Slapende VvE
- Bouwjaar 1952
- Energielabel D
- Oplevering in overleg
Woonoppervlakte
De Meetinstructie is gebaseerd op de NEN2580. De Meetinstructie is bedoeld om een meer eenduidige manier van meten toe te passen voor het geven van een indicatie van de gebruiksoppervlakte. De Meetinstructie sluit verschillen in meetuitkomsten niet volledig uit, door bijvoorbeeld interpretatieverschillen, afrondingen of beperkingen bij het uitvoeren van de meting. Indien de exacte maten voor een koper van cruciaal belang zijn, adviseren wij deze zelf na te meten. De (kandidaat)koper(s) zullen, indien gewenst, daartoe in de gelegenheid gesteld worden op een passend moment teneinde teleurstellingen en schade te voorkomen.
Ouderdomsclausule
Bij woningen ouder dan 30 jaar zal er standaard in de koopakte een ouderdomsclausule worden opgenomen.
Notariskeuze en kosten
In principe ligt de notariskeuze bij de koper. Het doorhalen van de hypothecaire inschrijving in het kadaster moet door de verkoper betaald worden. Zijn de kosten voor deze doorhaling hoger dan € 400,- inclusief BTW dan wordt het meerdere bij de koper in rekening gebracht. Indien de koper een notaris kiest buiten een straal van 20 kilometer van de verkochte onroerende zaak dan zijn de eventuele kosten die de notaris berekent voor een eventuele verkoopvolmacht en legalisatie hiervan ten behoeve van de verkoper voor rekening van de koper.
Zelfbewoningsplicht
Koper is bekend met de zelfbewoningsplicht welke vanaf 01-01-2023 binnen de gemeente Vlaardingen van kracht is. De verkopend makelaar heeft koper doorverwezen naar de gemeente Vlaardingen omtrent de desbetreffende regelgeving. Verkoper noch verkopend makelaar aanvaarden geen enkele aansprakelijkheid voor geleden schade wegens het niet juist naleven van deze zelfbewoningsplicht.
Gunning
Verkoper behoudt zich uitdrukkelijk het recht voor het object te gunnen aan de gegadigde van zijn keuze.
Nadrukkelijk zij vermeld dat alle informatie in deze brochure moet beschouwd worden als een uitnodiging tot het doen van een bod of om in onderhandeling te treden. Er kunnen geen rechten worden ontleend aan deze informatie.
Vlietlanden NVM Makelaars streeft ernaar de informatie op haar website / brochures en andere uitingen zo actueel en nauwkeurig mogelijk weer te geven. Hoewel de informatie met de grootst mogelijke zorgvuldigheid is samengesteld aanvaarden wij geen enkele aansprakelijkheid ten aanzien van de juistheid van de vermelde gegevens.
INDELING
Voordeur aan de straat waarna er toegang is tot de hal met de meterkast en de trapopgang, die is voorzien van vloerbedekking.
1E VERDIEPING
De overloop heeft ruimte voor de garderobe en geeft toegang tot de woonkamer, de gestoffeerde trap naar de 2e verdieping, het volledig betegelde toilet met als extra een fonteintje en het balkon. De wanden zijn voorzien van spachtelputz en de vloer is voorzien van tegels, die zijn terug te vinden op deze gehele verdieping.
Het balkon is gelegen aan de voorzijde en heeft een levendig uitzicht over de laan. De vloer is voorzien van kunstgras, er hangt een markies voor de nodige schaduw en de deur naar het balkon is voorzien van een hordeur.
De woonkamer heeft zicht naar zowel de voor- als de achterzijde en heeft ruimte voor zowel een zit- als een eethoek. Aan de voorzijde hangt een markies en aan de achterzijde, er is een deur met een hordeur naar het dakterras en er is een open toegang tot de keuken. De wanden zijn voorzien van spachtelputz en het plafond is gespoten.
De keuken heeft een betegelde achterwand en is opgesteld in een hoek. De aanwezige bovenkasten zorgen voor extra opbergmogelijkheden en in de keuken is diverse inbouwapparatuur aanwezig, zoals een oven, een koel/vriescombinatie, een vaatwasser, een 4-pits gaskookplaat en een afzuigkap met verlichting.
Het ruime dakterras heeft voldoende privacy en is voorzien van houten vlonderplanken en een houten schutting rondom, met verlichting. Langs de gevel is een lage houten overkapping geplaatst en er staat een houten berging die is voorzien van elektra.
2E VERDIEPING
De overloop op deze verdieping is voorzien van gestuukte wanden en een laminaatvloer, die is doorgetrokken naar de drie aanwezige slaapkamers. Vanaf de overloop is er een luik naar de vliering, is er een vaste kast met de opstelling van de Cv-ketel en geeft het toegang tot drie slaapkamers en de badkamer.
De hoofdslaapkamer en de tweede slaapkamer zijn gelegen aan de achterzijde, waarbij de hoofdslaapkamer is voorzien van een vaste kast. De derde slaapkamer is gelegen aan de voorzijde en is eveneens voorzien van een vaste kast.
De volledig betegelde badkamer is uitgerust met een douche, een wastafelmeubel met daarboven een spiegel met verlichting en een wasmachine aansluiting. Het aanwezig raam zorgt voor natuurlijke ventilatie en het plafond is glad afgewerkt en daarbij voorzien van een inbouw spot en een afzuigpunt.
BIJZONDERHEDEN
- Erfpacht tot 15-11-2050, canon € 85,31 per jaar.
- Geheel voorzien van houten kozijnen met dubbel glas
- Badkamer vernieuwd in (2017)
- Gestuukte wanden op de verdieping
- Cv-ketel voor verwarming en warm water (2014)
- Vliering met extra bergruimte en verlichting
- Woonverdieping is voorzien van vloerverwarming
- Voorzijde en achterzijde gevel opnieuw geschilderd (2020)
- Vrij parkeren rondom het complex
- Slapende VvE
- Bouwjaar 1952
- Energielabel D
- Oplevering in overleg
Woonoppervlakte
De Meetinstructie is gebaseerd op de NEN2580. De Meetinstructie is bedoeld om een meer eenduidige manier van meten toe te passen voor het geven van een indicatie van de gebruiksoppervlakte. De Meetinstructie sluit verschillen in meetuitkomsten niet volledig uit, door bijvoorbeeld interpretatieverschillen, afrondingen of beperkingen bij het uitvoeren van de meting. Indien de exacte maten voor een koper van cruciaal belang zijn, adviseren wij deze zelf na te meten. De (kandidaat)koper(s) zullen, indien gewenst, daartoe in de gelegenheid gesteld worden op een passend moment teneinde teleurstellingen en schade te voorkomen.
Ouderdomsclausule
Bij woningen ouder dan 30 jaar zal er standaard in de koopakte een ouderdomsclausule worden opgenomen.
Notariskeuze en kosten
In principe ligt de notariskeuze bij de koper. Het doorhalen van de hypothecaire inschrijving in het kadaster moet door de verkoper betaald worden. Zijn de kosten voor deze doorhaling hoger dan € 400,- inclusief BTW dan wordt het meerdere bij de koper in rekening gebracht. Indien de koper een notaris kiest buiten een straal van 20 kilometer van de verkochte onroerende zaak dan zijn de eventuele kosten die de notaris berekent voor een eventuele verkoopvolmacht en legalisatie hiervan ten behoeve van de verkoper voor rekening van de koper.
Zelfbewoningsplicht
Koper is bekend met de zelfbewoningsplicht welke vanaf 01-01-2023 binnen de gemeente Vlaardingen van kracht is. De verkopend makelaar heeft koper doorverwezen naar de gemeente Vlaardingen omtrent de desbetreffende regelgeving. Verkoper noch verkopend makelaar aanvaarden geen enkele aansprakelijkheid voor geleden schade wegens het niet juist naleven van deze zelfbewoningsplicht.
Gunning
Verkoper behoudt zich uitdrukkelijk het recht voor het object te gunnen aan de gegadigde van zijn keuze.
Nadrukkelijk zij vermeld dat alle informatie in deze brochure moet beschouwd worden als een uitnodiging tot het doen van een bod of om in onderhandeling te treden. Er kunnen geen rechten worden ontleend aan deze informatie.
Vlietlanden NVM Makelaars streeft ernaar de informatie op haar website / brochures en andere uitingen zo actueel en nauwkeurig mogelijk weer te geven. Hoewel de informatie met de grootst mogelijke zorgvuldigheid is samengesteld aanvaarden wij geen enkele aansprakelijkheid ten aanzien van de juistheid van de vermelde gegevens.
Kenmerken
Overdracht
- vraagprijs
- € 300.000 k.k.
- Status
- Verkocht onder voorbehoud
- Aanvaarding
- In overleg
Bouw
- Soort woning
- Maisonnette, appartement
- Soort bouw
- Bestaande bouw
Oppervlakten en inhoud
- Woonoppervlakte
- 83 m²
- Externe bergruimte
- 1 m²
- Inhoud
- 291 m³
Indeling
- Aantal kamers
- 4 kamers (3 slaapkamers)
- Aantal verdiepingen
- 2 Verdiepingen
- Voorzieningen
- Buitenzonwering, mechanische ventilatie, tv kabel
Energie
- Energielabel
- D
- Isolatie
- Dubbel glas
Buitenruimte
- Ligging
- In woonwijk
- Tuin
- Geen tuin
Garage
- Soort garage
- Geen garage
Parkeren
- Soort parkeergelegenheid
- Openbaar parkeren