Dr Schaepmansingel 139
€ 350.000 k.k.
Schiedam
Portiekflat
83 m²
2 slaapkamers
In overleg
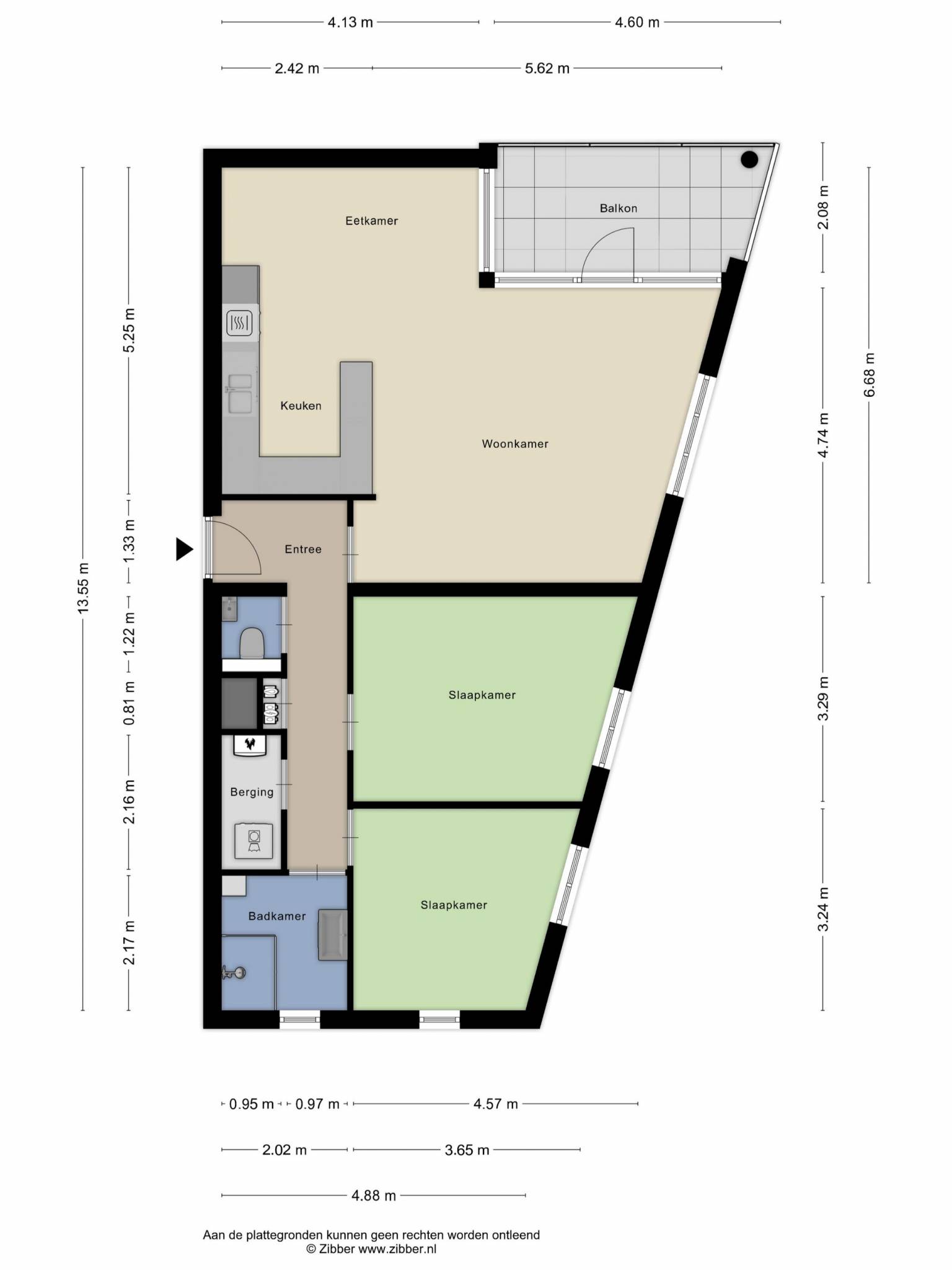
Dit uitstekend onderhouden appartement met een woonoppervlakte van ca. 82 m² biedt u alle ruimte, comfort en gemak die u zich kunt wensen. Gelegen op een rustige locatie in een verzorgd complex, beschikt deze woning over twee volwaardige slaapkamers, een moderne open keuken, een stijlvolle badkamer en een ruim balkon met fraai uitzicht. De externe berging maakt het geheel compleet. Een woning waar u zó in kunt trekken. Ideaal voor wie op zoek is naar gemak, stijl én functionaliteit.
Deze woning bevindt zich in een rustige woonwijk in Schiedam, met alle voorzieningen binnen handbereik. In de directe omgeving vindt u meerdere supermarkten, winkels en gezellige eetgelegenheden. Scholen en kinderdagverblijven bevinden zich op loopafstand, net als diverse sportclubs en recreatieve voorzieningen. Op slechts enkele minuten lopen vindt u openbaar vervoersmogelijkheden zoals bus-, metro en tramhaltes, en ook treinstation Schiedam Centrum is eenvoudig te bereiken. Met de auto bent u bovendien binnen enkele minuten op uitvalswegen zoals de A20 en A4, waarmee u snel richting Rotterdam, Delft of Den Haag rijdt. Kortom, een fijne, praktische locatie om te wonen.
Entree:
Via de verzorgde, gezamenlijke entree met intercominstallatie en brievenbussen betreedt u het complex. U bereikt het appartement gemakkelijk via de trap of lift. Eenmaal binnen komt u in een uitnodigende hal die direct een gevoel van ruimte en rust biedt. Hier is voldoende plek voor een garderobekast of opbergmeubel, en vanuit deze centrale hal heeft u toegang tot alle vertrekken van de woning.
Woonkamer:
Een zee van licht verwelkomt u in de royale woonkamer, waar de grote raampartijen een open en luchtig gevoel creëren. De ruimte biedt volop mogelijkheden voor het creëren van een comfortabele zithoek én een gezellige eethoek. Dankzij de slimme indeling is dit een ideale plek om te ontspannen, te werken of gasten te ontvangen. Vanuit de woonkamer stapt u bovendien zo het balkon op, waardoor binnen en buiten naadloos in elkaar overlopen.
Keuken:
Deze moderne, open keuken sluit perfect aan op de woonkamer en is voorzien van een stijlvol U-vormig aanrechtblad. Hier kookt u met plezier dankzij de hoogwaardige inbouwapparatuur, waaronder een gasfornuis met afzuigkap, combi-oven, koelkast, vaatwasser en een spoelbak. De praktische lades en kastjes zorgen voor voldoende opbergruimte, en de nette afwerking maakt het geheel compleet. Een fijne keuken die zowel functioneel als uitnodigend is.
Slaapkamers:
Twee comfortabele slaapkamers grenzen direct aan de hal en bieden u rust en flexibiliteit. De kamers zijn voorzien van grote ramen die zorgen voor een aangename lichtinval. Of u ze nu inricht als slaapkamer, thuiskantoor of hobbyruimte – aan mogelijkheden geen gebrek. Beide ruimtes zijn royaal genoeg voor een tweepersoonsbed, bureau of kledingkast.
Sanitair:
Een strak afgewerkte badkamer, volledig betegeld en voorzien van een ruime inloopdouche met glazen wand, biedt u een fijne plek om de dag fris te beginnen of ontspannen af te sluiten. De wastafel biedt voldoende ruimte voor uw verzorgingsproducten. Daarnaast is er een separate toiletruimte met een modern zwevend toilet – praktisch en stijlvol tegelijk.
Buitenruimte:
Het balkon, bereikbaar via de woonkamer, biedt u een prettige buitenruimte met uitzicht over de rustige omgeving. Hier is voldoende plek voor een gezellige loungeset of een knus buitentafeltje. Een perfecte plek om te genieten van een kop koffie in de zon of een drankje aan het einde van de dag.
Externe berging:
Voor extra opslagruimte beschikt u over een externe berging in het gebouw. Ideaal voor het opbergen van seizoensspullen, gereedschap of fietsen. Zo houdt u uw appartement aangenaam opgeruimd.
BIJZONDERHEDEN
- woonoppervlakte ca. 82 m²
- bouwjaar 1997
- centrale verwarming Remeha (2012)
- actieve VvE (bijdrage € 248,32)
- afgekochte erfpacht tot en met 01-01-2046
- twee ruime slaapkamers
- moderne open keuken met inbouwapparatuur
- verzorgde badkamer met inloopdouche
- separate toiletruimte
- ruim en licht appartement met veel raampartijen
- balkon met fraai uitzicht
- externe berging in het gebouw
- gelegen in rustige en goed bereikbare buurt
- nabij scholen, winkels, OV en uitvalswegen
- oplevering in overleg
Woonoppervlakte
De Meetinstructie is gebaseerd op de NEN2580. De Meetinstructie is bedoeld om een meer eenduidige manier van meten toe te passen voor het geven van een indicatie van de gebruiksoppervlakte. De Meetinstructie sluit verschillen in meetuitkomsten niet volledig uit, door bijvoorbeeld interpretatieverschillen, afrondingen of beperkingen bij het uitvoeren van de meting. Indien de exacte maten voor een koper van cruciaal belang zijn, adviseren wij deze zelf na te meten. De (kandidaat)koper(s) zullen, indien gewenst, daartoe in de gelegenheid gesteld worden op een passend moment teneinde teleurstellingen en schade te voorkomen.
Opkoopbescherming
Koper is bekend met de opkoopbescherming welke van kracht is binnen bepaalde wijken binnen de gemeente Schiedam. De verkopend makelaar heeft koper doorverwezen naar de gemeente Schiedam omtrent de desbetreffende regelgeving. Verkoper noch verkopend makelaar aanvaarden geen enkele aansprakelijkheid voor geleden schade wegens het niet juist naleven van deze opkoopbescherming.
Ouderdomsclausule
Bij woningen ouder dan 30 jaar zal er standaard in de koopakte een ouderdomsclausule worden opgenomen.
Notariskeuze en kosten
In principe ligt de notariskeuze bij de koper. Het doorhalen van de hypothecaire inschrijving in het kadaster moet door de verkoper betaald worden. Zijn de kosten voor deze doorhaling hoger dan € 400,- inclusief BTW dan wordt het meerdere bij de koper in rekening gebracht. Indien de koper een notaris kiest buiten een straal van 20 kilometer van de verkochte onroerende zaak dan zijn de eventuele kosten die de notaris berekent voor een eventuele verkoopvolmacht en legalisatie hiervan ten behoeve van de verkoper voor rekening van de koper.
Gunning
Verkoper behoudt zich uitdrukkelijk het recht voor het object te gunnen aan de gegadigde van zijn keuze.
Nadrukkelijk zij vermeld dat alle informatie in deze brochure moet beschouwd worden als een uitnodiging tot het doen van een bod of om in onderhandeling te treden. Er kunnen geen rechten worden ontleend aan deze informatie.
Vlietlanden NVM Makelaars streeft ernaar de informatie op haar website / brochures en andere uitingen zo actueel en nauwkeurig mogelijk weer te geven. Hoewel de informatie met de grootst mogelijke zorgvuldigheid is samengesteld aanvaarden wij geen enkele aansprakelijkheid ten aanzien van de juistheid van de vermelde gegevens.
Deze woning bevindt zich in een rustige woonwijk in Schiedam, met alle voorzieningen binnen handbereik. In de directe omgeving vindt u meerdere supermarkten, winkels en gezellige eetgelegenheden. Scholen en kinderdagverblijven bevinden zich op loopafstand, net als diverse sportclubs en recreatieve voorzieningen. Op slechts enkele minuten lopen vindt u openbaar vervoersmogelijkheden zoals bus-, metro en tramhaltes, en ook treinstation Schiedam Centrum is eenvoudig te bereiken. Met de auto bent u bovendien binnen enkele minuten op uitvalswegen zoals de A20 en A4, waarmee u snel richting Rotterdam, Delft of Den Haag rijdt. Kortom, een fijne, praktische locatie om te wonen.
Entree:
Via de verzorgde, gezamenlijke entree met intercominstallatie en brievenbussen betreedt u het complex. U bereikt het appartement gemakkelijk via de trap of lift. Eenmaal binnen komt u in een uitnodigende hal die direct een gevoel van ruimte en rust biedt. Hier is voldoende plek voor een garderobekast of opbergmeubel, en vanuit deze centrale hal heeft u toegang tot alle vertrekken van de woning.
Woonkamer:
Een zee van licht verwelkomt u in de royale woonkamer, waar de grote raampartijen een open en luchtig gevoel creëren. De ruimte biedt volop mogelijkheden voor het creëren van een comfortabele zithoek én een gezellige eethoek. Dankzij de slimme indeling is dit een ideale plek om te ontspannen, te werken of gasten te ontvangen. Vanuit de woonkamer stapt u bovendien zo het balkon op, waardoor binnen en buiten naadloos in elkaar overlopen.
Keuken:
Deze moderne, open keuken sluit perfect aan op de woonkamer en is voorzien van een stijlvol U-vormig aanrechtblad. Hier kookt u met plezier dankzij de hoogwaardige inbouwapparatuur, waaronder een gasfornuis met afzuigkap, combi-oven, koelkast, vaatwasser en een spoelbak. De praktische lades en kastjes zorgen voor voldoende opbergruimte, en de nette afwerking maakt het geheel compleet. Een fijne keuken die zowel functioneel als uitnodigend is.
Slaapkamers:
Twee comfortabele slaapkamers grenzen direct aan de hal en bieden u rust en flexibiliteit. De kamers zijn voorzien van grote ramen die zorgen voor een aangename lichtinval. Of u ze nu inricht als slaapkamer, thuiskantoor of hobbyruimte – aan mogelijkheden geen gebrek. Beide ruimtes zijn royaal genoeg voor een tweepersoonsbed, bureau of kledingkast.
Sanitair:
Een strak afgewerkte badkamer, volledig betegeld en voorzien van een ruime inloopdouche met glazen wand, biedt u een fijne plek om de dag fris te beginnen of ontspannen af te sluiten. De wastafel biedt voldoende ruimte voor uw verzorgingsproducten. Daarnaast is er een separate toiletruimte met een modern zwevend toilet – praktisch en stijlvol tegelijk.
Buitenruimte:
Het balkon, bereikbaar via de woonkamer, biedt u een prettige buitenruimte met uitzicht over de rustige omgeving. Hier is voldoende plek voor een gezellige loungeset of een knus buitentafeltje. Een perfecte plek om te genieten van een kop koffie in de zon of een drankje aan het einde van de dag.
Externe berging:
Voor extra opslagruimte beschikt u over een externe berging in het gebouw. Ideaal voor het opbergen van seizoensspullen, gereedschap of fietsen. Zo houdt u uw appartement aangenaam opgeruimd.
BIJZONDERHEDEN
- woonoppervlakte ca. 82 m²
- bouwjaar 1997
- centrale verwarming Remeha (2012)
- actieve VvE (bijdrage € 248,32)
- afgekochte erfpacht tot en met 01-01-2046
- twee ruime slaapkamers
- moderne open keuken met inbouwapparatuur
- verzorgde badkamer met inloopdouche
- separate toiletruimte
- ruim en licht appartement met veel raampartijen
- balkon met fraai uitzicht
- externe berging in het gebouw
- gelegen in rustige en goed bereikbare buurt
- nabij scholen, winkels, OV en uitvalswegen
- oplevering in overleg
Woonoppervlakte
De Meetinstructie is gebaseerd op de NEN2580. De Meetinstructie is bedoeld om een meer eenduidige manier van meten toe te passen voor het geven van een indicatie van de gebruiksoppervlakte. De Meetinstructie sluit verschillen in meetuitkomsten niet volledig uit, door bijvoorbeeld interpretatieverschillen, afrondingen of beperkingen bij het uitvoeren van de meting. Indien de exacte maten voor een koper van cruciaal belang zijn, adviseren wij deze zelf na te meten. De (kandidaat)koper(s) zullen, indien gewenst, daartoe in de gelegenheid gesteld worden op een passend moment teneinde teleurstellingen en schade te voorkomen.
Opkoopbescherming
Koper is bekend met de opkoopbescherming welke van kracht is binnen bepaalde wijken binnen de gemeente Schiedam. De verkopend makelaar heeft koper doorverwezen naar de gemeente Schiedam omtrent de desbetreffende regelgeving. Verkoper noch verkopend makelaar aanvaarden geen enkele aansprakelijkheid voor geleden schade wegens het niet juist naleven van deze opkoopbescherming.
Ouderdomsclausule
Bij woningen ouder dan 30 jaar zal er standaard in de koopakte een ouderdomsclausule worden opgenomen.
Notariskeuze en kosten
In principe ligt de notariskeuze bij de koper. Het doorhalen van de hypothecaire inschrijving in het kadaster moet door de verkoper betaald worden. Zijn de kosten voor deze doorhaling hoger dan € 400,- inclusief BTW dan wordt het meerdere bij de koper in rekening gebracht. Indien de koper een notaris kiest buiten een straal van 20 kilometer van de verkochte onroerende zaak dan zijn de eventuele kosten die de notaris berekent voor een eventuele verkoopvolmacht en legalisatie hiervan ten behoeve van de verkoper voor rekening van de koper.
Gunning
Verkoper behoudt zich uitdrukkelijk het recht voor het object te gunnen aan de gegadigde van zijn keuze.
Nadrukkelijk zij vermeld dat alle informatie in deze brochure moet beschouwd worden als een uitnodiging tot het doen van een bod of om in onderhandeling te treden. Er kunnen geen rechten worden ontleend aan deze informatie.
Vlietlanden NVM Makelaars streeft ernaar de informatie op haar website / brochures en andere uitingen zo actueel en nauwkeurig mogelijk weer te geven. Hoewel de informatie met de grootst mogelijke zorgvuldigheid is samengesteld aanvaarden wij geen enkele aansprakelijkheid ten aanzien van de juistheid van de vermelde gegevens.
Kenmerken
Overdracht
- vraagprijs
- € 350.000 k.k.
- Status
- Onder bod
- Aanvaarding
- In overleg
Bouw
- Soort woning
- Portiekflat, appartement
- Soort bouw
- Bestaande bouw
Oppervlakten en inhoud
- Woonoppervlakte
- 83 m²
- Externe bergruimte
- 5 m²
- Inhoud
- 273 m³
Indeling
- Aantal kamers
- 3 kamers (2 slaapkamers)
- Aantal verdiepingen
- 1 Verdiepingen
- Voorzieningen
- Mechanische ventilatie, lift
Energie
- Energielabel
- B
- Isolatie
- Dubbel glas
Buitenruimte
- Ligging
- Aan water, aan park, aan rustige weg, in woonwijk, beschutte ligging, open ligging
- Tuin
- Geen tuin
Garage
- Soort garage
- Geen garage
Parkeren
- Soort parkeergelegenheid
- Openbaar parkeren