2e Maasbosstraat 94
€ 285.000 k.k.
Vlaardingen
Bovenwoning
81 m²
2 slaapkamers
In overleg
Wonen in een rustige straat met alles binnen handbereik? Dat kan in deze charmante dubbele bovenwoning! De woning ligt in een prettige, kindvriendelijke buurt met volop voorzieningen in de directe omgeving. Op loopafstand vind je winkels voor de dagelijkse boodschappen, scholen, het openbaar vervoer en met de fiets sta je zo in het gezellige centrum van Vlaardingen of in de natuur van de Broekpolder. Ook de uitvalswegen richting Rotterdam en Hoek van Holland zijn snel bereikbaar. Ideaal voor wie graag centraal woont, maar toch rust zoekt. Binnen geniet je van een lichte woonkamer met hoge ramen aan de voorzijde en een keuken die via openslaande deuren toegang biedt tot een zonnig balkon. De badkamer is praktisch ingericht met een douchecabine, een wastafelmeubel en een aansluiting voor de wasmachine. De woning beschikt over twee fijne slaapkamers met een kleine dakkapel op de bovenste verdieping, waardoor er verrassend veel licht en ruimte is. Kortom, een heerlijke woning met een energielabel B, op een gunstige locatie, waarbij de hardhouten kozijnen zijn voorzien van dubbel glas.
INDELING
De voordeur is direct bereikbaar vanaf de straat en geeft toegang tot de entreehal met de meterkast en de trapopgang naar de 1e verdieping.
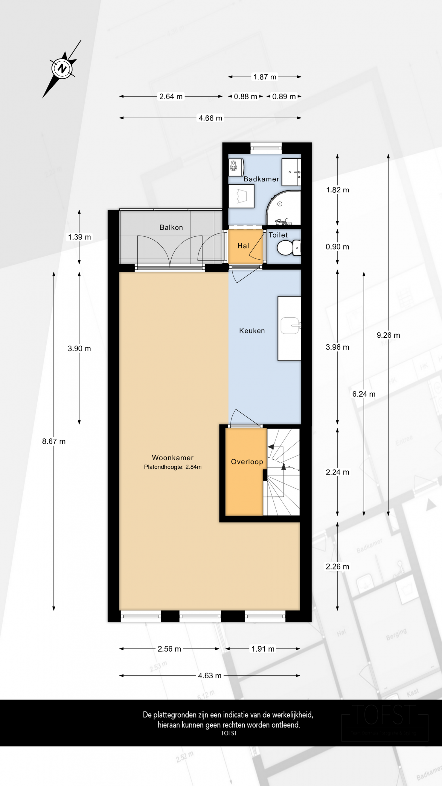
1E VERDIEPING
Vanaf de overloop met een laminaatvloer en spachtelputz wanden is er toegang tot de trap naar de 2e verdieping en de keuken die in directe verbinding staat met de woonkamer.
De keuken is gesitueerd aan de achterzijde en beschikt over een recht keukenblok met bovenkasten en een betegelde achterwand. De vloer is voorzien van laminaat en de wanden zijn afgewerkt met spachtelputz. De openslaande deuren geven toegang tot het balkon en er is voldoende ruimte voor een grote eettafel. Doorlopend naar de voorzijde bevindt zich de woonkamer. Deze heeft drie hoge ramen, die een fraai zicht geven over de straat.
In het verlengde van de keuken is er een deur naar een klein halletje die is voorzien van een PVC vloer. Vanuit dit halletje is er een deur naar het balkon en het gedeeltelijk betegelde toilet. Daarnaast is er een open toegang tot de badkamer. Deze is grotendeels betegeld en uitgerust met een douchecabine, een wastafelmeubel en een wasmachine aansluiting. In deze ruimte bevindt zich ook de opstelling van de Cv-ketel, er hangt een radiator en er is een te openen raam voor natuurlijke ventilatie.
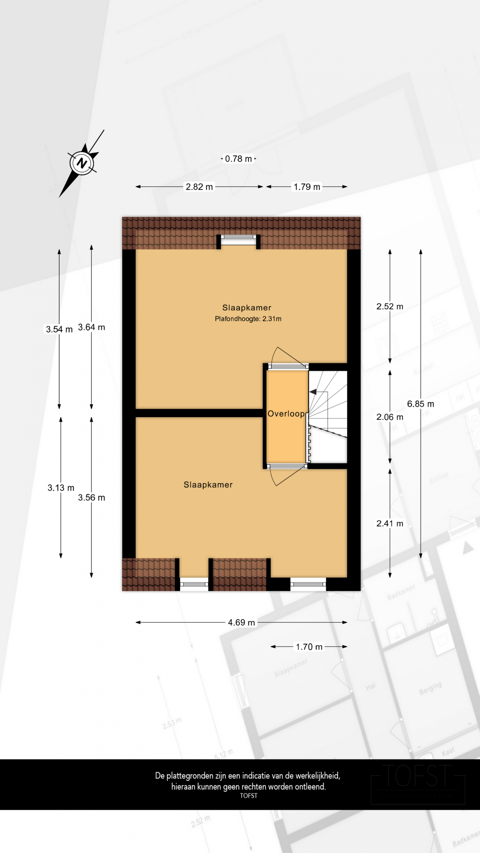
2E VERDIEPING
Na de trapopgang is er toegang tot de overloop. Deze overloop is eveneens voorzien van laminaat en de wanden zijn deels afgewerkt met spachtelputz en deels behangen. Vanaf deze overloop is er toegang tot twee slaapkamers.
De slaapkamers zijn verdeeld gelegen over de voor- en achterzijde en beschikken beide over een kleine dakkapel. In beide kamers is de vloer voorzien van laminaat en zijn de wanden behangen.
BIJZONDERHEDEN
- De woning is geheel voorzien van hardhouten kozijnen met dubbel glas
- De meterkast is voorzien van slimme meters
- Cv-ketel voor verwarming en warm water
- De slaapkamers beschikken over een kleine dakkapel
- Actieve VvE, bijdrage € 65,-- per maand
- Erfpacht, eeuwigdurend, canon € 420,-- per jaar
- Bouwjaar 1989
- Energielabel B
- Oplevering in overleg, kan snel
Woonoppervlakte De Meetinstructie is gebaseerd op de NEN2580. De Meetinstructie is bedoeld om een meer eenduidige manier van meten toe te passen voor het geven van een indicatie van de gebruiksoppervlakte. De Meetinstructie sluit verschillen in meetuitkomsten niet volledig uit, door bijvoorbeeld interpretatieverschillen, afrondingen of beperkingen bij het uitvoeren van de meting. Indien de exacte maten voor een koper van cruciaal belang zijn, adviseren wij deze zelf na te meten. De (kandidaat)koper(s) zullen, indien gewenst, daartoe in de gelegenheid gesteld worden op een passend moment teneinde teleurstellingen en schade te voorkomen.
Ouderdomsclausule Bij woningen ouder dan 30 jaar zal er standaard in de koopakte een ouderdomsclausule worden opgenomen.
Notariskeuze en kosten
In principe ligt de notariskeuze bij de koper. Het doorhalen van de hypothecaire inschrijving in het kadaster moet door de verkoper betaald worden. Zijn de kosten voor deze doorhaling hoger dan € 400,- inclusief BTW dan wordt het meerdere bij de koper in rekening gebracht. Indien de koper een notaris kiest buiten een straal van 20 kilometer van de verkochte onroerende zaak dan zijn de eventuele kosten die de notaris berekent voor een eventuele verkoopvolmacht en legalisatie hiervan ten behoeve van de verkoper voor rekening van de koper.
Zelfbewoningsplicht
Koper is bekend met de zelfbewoningsplicht welke vanaf 01-01-2023 binnen de gemeente Vlaardingen van kracht is. De verkopend makelaar heeft koper doorverwezen naar de gemeente Vlaardingen omtrent de desbetreffende regelgeving. Verkoper noch verkopend makelaar aanvaarden geen enkele aansprakelijkheid voor geleden schade wegens het niet juist naleven van deze zelfbewoningsplicht.
Gunning Verkoper behoudt zich uitdrukkelijk het recht voor het object te gunnen aan de gegadigde van zijn keuze.
Nadrukkelijk zij vermeld dat alle informatie in deze brochure moet beschouwd worden als een uitnodiging tot het doen van een bod of om in onderhandeling te treden. Er kunnen geen rechten worden ontleend aan deze informatie.
Vlietlanden NVM Makelaars streeft ernaar de informatie op haar website / brochures en andere uitingen zo actueel en nauwkeurig mogelijk weer te geven. Hoewel de informatie met de grootst mogelijke zorgvuldigheid is samengesteld aanvaarden wij geen enkele aansprakelijkheid ten aanzien van de juistheid van de vermelde gegevens.
INDELING
De voordeur is direct bereikbaar vanaf de straat en geeft toegang tot de entreehal met de meterkast en de trapopgang naar de 1e verdieping.
1E VERDIEPING
Vanaf de overloop met een laminaatvloer en spachtelputz wanden is er toegang tot de trap naar de 2e verdieping en de keuken die in directe verbinding staat met de woonkamer.
De keuken is gesitueerd aan de achterzijde en beschikt over een recht keukenblok met bovenkasten en een betegelde achterwand. De vloer is voorzien van laminaat en de wanden zijn afgewerkt met spachtelputz. De openslaande deuren geven toegang tot het balkon en er is voldoende ruimte voor een grote eettafel. Doorlopend naar de voorzijde bevindt zich de woonkamer. Deze heeft drie hoge ramen, die een fraai zicht geven over de straat.
In het verlengde van de keuken is er een deur naar een klein halletje die is voorzien van een PVC vloer. Vanuit dit halletje is er een deur naar het balkon en het gedeeltelijk betegelde toilet. Daarnaast is er een open toegang tot de badkamer. Deze is grotendeels betegeld en uitgerust met een douchecabine, een wastafelmeubel en een wasmachine aansluiting. In deze ruimte bevindt zich ook de opstelling van de Cv-ketel, er hangt een radiator en er is een te openen raam voor natuurlijke ventilatie.
2E VERDIEPING
Na de trapopgang is er toegang tot de overloop. Deze overloop is eveneens voorzien van laminaat en de wanden zijn deels afgewerkt met spachtelputz en deels behangen. Vanaf deze overloop is er toegang tot twee slaapkamers.
De slaapkamers zijn verdeeld gelegen over de voor- en achterzijde en beschikken beide over een kleine dakkapel. In beide kamers is de vloer voorzien van laminaat en zijn de wanden behangen.
BIJZONDERHEDEN
- De woning is geheel voorzien van hardhouten kozijnen met dubbel glas
- De meterkast is voorzien van slimme meters
- Cv-ketel voor verwarming en warm water
- De slaapkamers beschikken over een kleine dakkapel
- Actieve VvE, bijdrage € 65,-- per maand
- Erfpacht, eeuwigdurend, canon € 420,-- per jaar
- Bouwjaar 1989
- Energielabel B
- Oplevering in overleg, kan snel
Woonoppervlakte De Meetinstructie is gebaseerd op de NEN2580. De Meetinstructie is bedoeld om een meer eenduidige manier van meten toe te passen voor het geven van een indicatie van de gebruiksoppervlakte. De Meetinstructie sluit verschillen in meetuitkomsten niet volledig uit, door bijvoorbeeld interpretatieverschillen, afrondingen of beperkingen bij het uitvoeren van de meting. Indien de exacte maten voor een koper van cruciaal belang zijn, adviseren wij deze zelf na te meten. De (kandidaat)koper(s) zullen, indien gewenst, daartoe in de gelegenheid gesteld worden op een passend moment teneinde teleurstellingen en schade te voorkomen.
Ouderdomsclausule Bij woningen ouder dan 30 jaar zal er standaard in de koopakte een ouderdomsclausule worden opgenomen.
Notariskeuze en kosten
In principe ligt de notariskeuze bij de koper. Het doorhalen van de hypothecaire inschrijving in het kadaster moet door de verkoper betaald worden. Zijn de kosten voor deze doorhaling hoger dan € 400,- inclusief BTW dan wordt het meerdere bij de koper in rekening gebracht. Indien de koper een notaris kiest buiten een straal van 20 kilometer van de verkochte onroerende zaak dan zijn de eventuele kosten die de notaris berekent voor een eventuele verkoopvolmacht en legalisatie hiervan ten behoeve van de verkoper voor rekening van de koper.
Zelfbewoningsplicht
Koper is bekend met de zelfbewoningsplicht welke vanaf 01-01-2023 binnen de gemeente Vlaardingen van kracht is. De verkopend makelaar heeft koper doorverwezen naar de gemeente Vlaardingen omtrent de desbetreffende regelgeving. Verkoper noch verkopend makelaar aanvaarden geen enkele aansprakelijkheid voor geleden schade wegens het niet juist naleven van deze zelfbewoningsplicht.
Gunning Verkoper behoudt zich uitdrukkelijk het recht voor het object te gunnen aan de gegadigde van zijn keuze.
Nadrukkelijk zij vermeld dat alle informatie in deze brochure moet beschouwd worden als een uitnodiging tot het doen van een bod of om in onderhandeling te treden. Er kunnen geen rechten worden ontleend aan deze informatie.
Vlietlanden NVM Makelaars streeft ernaar de informatie op haar website / brochures en andere uitingen zo actueel en nauwkeurig mogelijk weer te geven. Hoewel de informatie met de grootst mogelijke zorgvuldigheid is samengesteld aanvaarden wij geen enkele aansprakelijkheid ten aanzien van de juistheid van de vermelde gegevens.
Kenmerken
Overdracht
- vraagprijs
- € 285.000 k.k.
- Status
- Beschikbaar
- Aanvaarding
- In overleg
Bouw
- Soort woning
- Bovenwoning, dubbel bovenhuis
- Soort bouw
- Bestaande bouw
Oppervlakten en inhoud
- Woonoppervlakte
- 81 m²
- Inhoud
- 278 m³
Indeling
- Aantal kamers
- 3 kamers (2 slaapkamers)
- Aantal verdiepingen
- 2 Verdiepingen
- Voorzieningen
- Tv kabel
Energie
- Energielabel
- B
- Isolatie
- Dubbel glas
Buitenruimte
- Ligging
- Aan rustige weg, in woonwijk
- Tuin
- Geen tuin
Garage
- Soort garage
- Geen garage
Parkeren
- Soort parkeergelegenheid
- Openbaar parkeren