Stationstraat 49
€ 235.000 k.k.
Schiedam
Benedenwoning
59 m²
2 slaapkamers
Zuid
In overleg
Dit fijne appartement ligt op de begane grond van een kleinschalig complex met meerdere portieken en combineert een centrale ligging met verrassend veel comfort. De ligging is top: op loopafstand van station Schiedam Centrum, dus trein, metro, tram of bus zijn altijd binnen handbereik. Ook het sfeervolle historische centrum van Schiedam met leuke winkels, gezellige restaurants en barretjes ligt om de hoek. En met de auto zit je binnen een paar minuten op de snelweg – handig toch? Voor de dagelijkse boodschappen is er volop keuze aan supermarkten en speciaalzaken in de buurt. Binnen stap je een nette hal in, met toegang tot onder meer de woonkamer met open keuken, de badkamer en de eerste slaapkamer. De woonkamer is licht en aangenaam, met laminaat op de vloer, spachtelputz op de wanden en een eenvoudige maar functionele open keuken. Aan de achterzijde bevindt zich een tweede slaapkamer met een groot raampartij en een deur naar het balkon, vanwaar je via een trap in de tuin komt. Een buitenruimte met potentie, klaar om jouw groene oase te worden. De badkamer is praktisch ingericht en de boiler voorziet in warm water. Extra handig is de eigen berging in de onderbouw, ideaal voor je fiets of spullen die je niet dagelijks nodig hebt. Een appartement met potentie, op een plek waar alles dichtbij is. Perfect voor wie de stad aan zijn voeten wil hebben en toch wil genieten van een eigen buitenruimte. De oplevering is in overleg en kan snel!
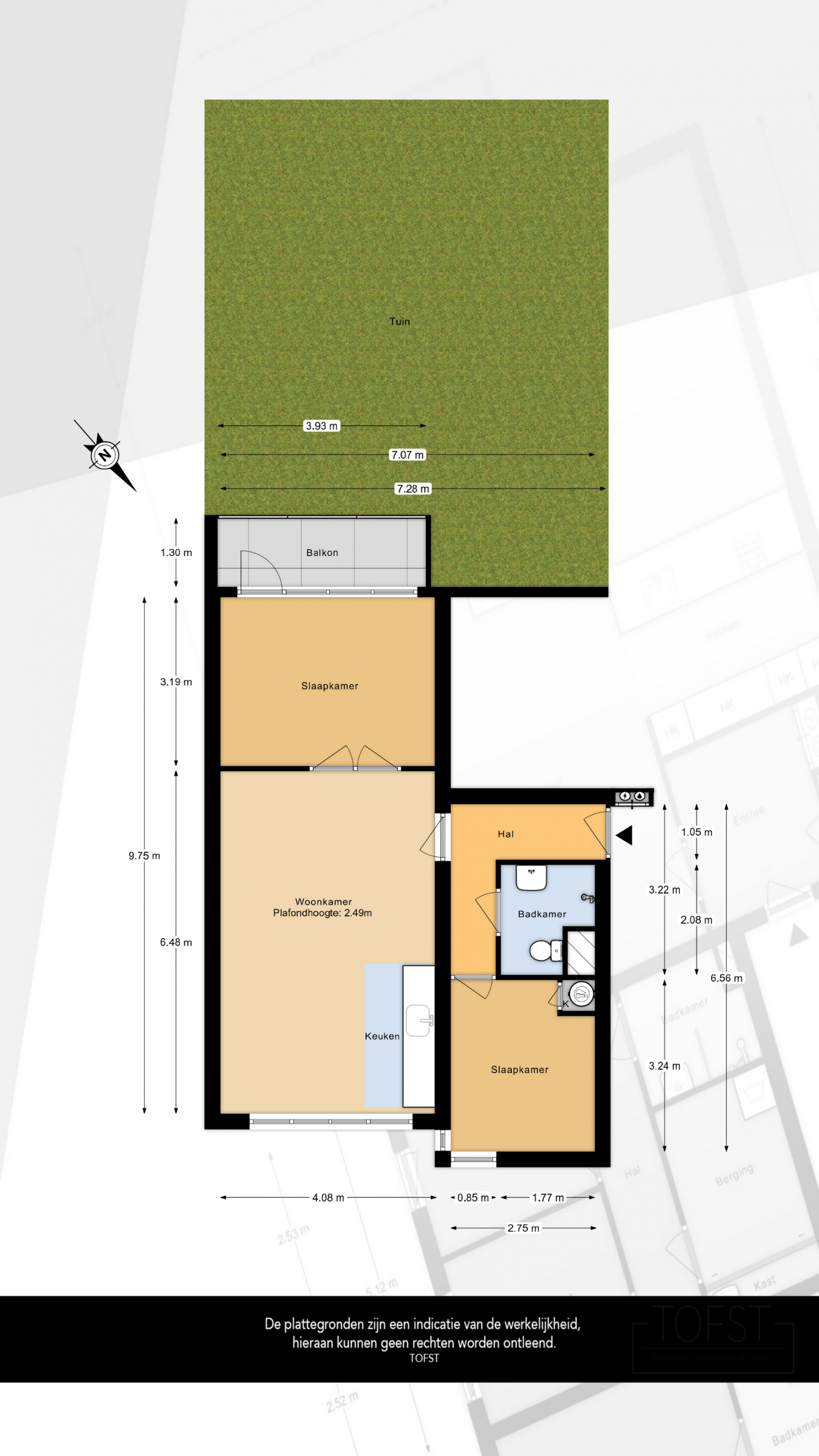
INDELING
De centrale entreehal is afgesloten en beschikt over een bellentableau met de brievenbussen. Vanuit de entreehal is direct de voordeur te bereiken.
APPARTEMENT
Binnenkomst in de hal, die is voorzien van plavuizen en spachtelputz wanden. Vanuit hier is er toegang tot de badkamer, de eerste slaapkamer en de woonkamer.
De inpandige badkamer is deels betegeld en uitgerust met een douche, een wastafel en een toilet. Er hangt een radiator voor de verwarming en er is een afzuigpunt aanwezig.
De eerste slaapkamer is gelegen aan de voorzijde en beschikt over een vaste kast met daarin de boiler. De wanden zijn afgewerkt met stucwerk en er ligt een laminaatvloer. De tweede slaapkamer is gelegen aan de achterzijde en is toegankelijk vanuit de woonkamer. Hier ligt een laminaatvloer en de wanden zijn afgewerkt met stucwerk. De grote raampartij zorgt voor veel daglicht en er is een deur naar het balkon.
Het balkon is overdekt en het geeft via een trap toegang tot de tuin. Deze behoeft enige onderhoud, maar is daarna een fijne ruimte om van de buitenlucht te genieten.
De woonkamer is gelegen aan de voorzijde en heeft een open keuken. Deze bestaat uit een recht keukenblok met een spoelbak, bovenkasten en een afzuigkap. De achterwand is betegeld en voorzien van stopcontacten. De vloer is voorzien van laminaat en de wanden zijn afgewerkt met spachtelputz.
BIJZONDERHEDEN
- Actieve Vereniging van Eigenaren, bijdrage : € 129,53 per maand inclusief voorschot stookkosten.
- Grotendeels voorzien van aluminium kozijnen met dubbel glas.
- Boiler voor warm water
- Blokverwarming
- Eigen berging in de onderbouw
- Beschikking over een balkon met toegang tot een tuin
- Gelegen op erfpachtgrond tot 30 juni 2085, de canon is afgekocht tot 01-07-2036
- Bouwjaar 1986
- Energielabel D
- Centraal gelegen
- Oplevering in overleg, kan snel
Woonoppervlakte De Meetinstructie is gebaseerd op de NEN2580. De Meetinstructie is bedoeld om een meer eenduidige manier van meten toe te passen voor het geven van een indicatie van de gebruiksoppervlakte. De Meetinstructie sluit verschillen in meetuitkomsten niet volledig uit, door bijvoorbeeld interpretatieverschillen, afrondingen of beperkingen bij het uitvoeren van de meting. Indien de exacte maten voor een koper van cruciaal belang zijn, adviseren wij deze zelf na te meten. De (kandidaat)koper(s) zullen, indien gewenst, daartoe in de gelegenheid gesteld worden op een passend moment teneinde teleurstellingen en schade te voorkomen.
Ouderdomsclausule
Bij woningen ouder dan 30 jaar zal er standaard in de koopakte een ouderdomsclausule worden opgenomen.
Notariskeuze en kosten
In principe ligt de notariskeuze bij de koper. Het doorhalen van de hypothecaire inschrijving in het kadaster moet door de verkoper betaald worden. Zijn de kosten voor deze doorhaling hoger dan € 400,- inclusief BTW dan wordt het meerdere bij de koper in rekening gebracht. Indien de koper een notaris kiest buiten een straal van 20 kilometer van de verkochte onroerende zaak dan zijn de eventuele kosten die de notaris berekent voor een eventuele verkoopvolmacht en legalisatie hiervan ten behoeve van de verkoper voor rekening van de koper.
Zelfbewoningsplicht
Koper is bekend met de zelfbewoningsplicht welke vanaf 01-01-2023 binnen de gemeente Schiedam van kracht is. De verkopend makelaar heeft koper doorverwezen naar de gemeente Schiedam omtrent de desbetreffende regelgeving. Verkoper noch verkopend makelaar aanvaarden geen enkele aansprakelijkheid voor geleden schade wegens het niet juist naleven van deze zelfbewoningsplicht.
Vlietlanden NVM Makelaars streeft ernaar de informatie op haar website / brochures en andere uitingen zo actueel en nauwkeurig mogelijk weer te geven. Hoewel de informatie met de grootst mogelijke zorgvuldigheid is samengesteld aanvaarden wij geen enkele aansprakelijkheid ten aanzien van de juistheid van de vermelde gegevens.
INDELING
De centrale entreehal is afgesloten en beschikt over een bellentableau met de brievenbussen. Vanuit de entreehal is direct de voordeur te bereiken.
APPARTEMENT
Binnenkomst in de hal, die is voorzien van plavuizen en spachtelputz wanden. Vanuit hier is er toegang tot de badkamer, de eerste slaapkamer en de woonkamer.
De inpandige badkamer is deels betegeld en uitgerust met een douche, een wastafel en een toilet. Er hangt een radiator voor de verwarming en er is een afzuigpunt aanwezig.
De eerste slaapkamer is gelegen aan de voorzijde en beschikt over een vaste kast met daarin de boiler. De wanden zijn afgewerkt met stucwerk en er ligt een laminaatvloer. De tweede slaapkamer is gelegen aan de achterzijde en is toegankelijk vanuit de woonkamer. Hier ligt een laminaatvloer en de wanden zijn afgewerkt met stucwerk. De grote raampartij zorgt voor veel daglicht en er is een deur naar het balkon.
Het balkon is overdekt en het geeft via een trap toegang tot de tuin. Deze behoeft enige onderhoud, maar is daarna een fijne ruimte om van de buitenlucht te genieten.
De woonkamer is gelegen aan de voorzijde en heeft een open keuken. Deze bestaat uit een recht keukenblok met een spoelbak, bovenkasten en een afzuigkap. De achterwand is betegeld en voorzien van stopcontacten. De vloer is voorzien van laminaat en de wanden zijn afgewerkt met spachtelputz.
BIJZONDERHEDEN
- Actieve Vereniging van Eigenaren, bijdrage : € 129,53 per maand inclusief voorschot stookkosten.
- Grotendeels voorzien van aluminium kozijnen met dubbel glas.
- Boiler voor warm water
- Blokverwarming
- Eigen berging in de onderbouw
- Beschikking over een balkon met toegang tot een tuin
- Gelegen op erfpachtgrond tot 30 juni 2085, de canon is afgekocht tot 01-07-2036
- Bouwjaar 1986
- Energielabel D
- Centraal gelegen
- Oplevering in overleg, kan snel
Woonoppervlakte De Meetinstructie is gebaseerd op de NEN2580. De Meetinstructie is bedoeld om een meer eenduidige manier van meten toe te passen voor het geven van een indicatie van de gebruiksoppervlakte. De Meetinstructie sluit verschillen in meetuitkomsten niet volledig uit, door bijvoorbeeld interpretatieverschillen, afrondingen of beperkingen bij het uitvoeren van de meting. Indien de exacte maten voor een koper van cruciaal belang zijn, adviseren wij deze zelf na te meten. De (kandidaat)koper(s) zullen, indien gewenst, daartoe in de gelegenheid gesteld worden op een passend moment teneinde teleurstellingen en schade te voorkomen.
Ouderdomsclausule
Bij woningen ouder dan 30 jaar zal er standaard in de koopakte een ouderdomsclausule worden opgenomen.
Notariskeuze en kosten
In principe ligt de notariskeuze bij de koper. Het doorhalen van de hypothecaire inschrijving in het kadaster moet door de verkoper betaald worden. Zijn de kosten voor deze doorhaling hoger dan € 400,- inclusief BTW dan wordt het meerdere bij de koper in rekening gebracht. Indien de koper een notaris kiest buiten een straal van 20 kilometer van de verkochte onroerende zaak dan zijn de eventuele kosten die de notaris berekent voor een eventuele verkoopvolmacht en legalisatie hiervan ten behoeve van de verkoper voor rekening van de koper.
Zelfbewoningsplicht
Koper is bekend met de zelfbewoningsplicht welke vanaf 01-01-2023 binnen de gemeente Schiedam van kracht is. De verkopend makelaar heeft koper doorverwezen naar de gemeente Schiedam omtrent de desbetreffende regelgeving. Verkoper noch verkopend makelaar aanvaarden geen enkele aansprakelijkheid voor geleden schade wegens het niet juist naleven van deze zelfbewoningsplicht.
Vlietlanden NVM Makelaars streeft ernaar de informatie op haar website / brochures en andere uitingen zo actueel en nauwkeurig mogelijk weer te geven. Hoewel de informatie met de grootst mogelijke zorgvuldigheid is samengesteld aanvaarden wij geen enkele aansprakelijkheid ten aanzien van de juistheid van de vermelde gegevens.
Kenmerken
Overdracht
- vraagprijs
- € 235.000 k.k.
- Status
- Verkocht onder voorbehoud
- Aanvaarding
- In overleg
Bouw
- Soort woning
- Benedenwoning
- Soort bouw
- Bestaande bouw
Oppervlakten en inhoud
- Woonoppervlakte
- 59 m²
- Inhoud
- 189 m³
Indeling
- Aantal kamers
- 3 kamers (2 slaapkamers)
- Aantal verdiepingen
- 1 Verdiepingen
Energie
- Energielabel
- D
- Isolatie
- Dubbel glas
Buitenruimte
- Ligging
- In woonwijk
- Tuin
- Achtertuin
- Achtertuin
- 44 m² (6,50m Diep / 6,80m Breed)
- Ligging tuin
- Zuid
Garage
- Soort garage
- Geen garage
Parkeren
- Soort parkeergelegenheid
- Openbaar parkeren