Jan Vermeerstraat 36 B
€ 269.000 k.k.
Schiedam
Bovenwoning
84 m²
3 slaapkamers
In overleg
Deze praktische bovenwoning is een fijne basis voor iedereen die een woning zoekt met mogelijkheden om het helemaal naar eigen smaak te maken. De woonkamer aan de voorzijde biedt een prettig uitzicht over de straat en sluit aan op de functionele L-vormige keuken, die toegang geeft tot een gezellig balkon. Daarnaast vind je op de eerste verdieping een handige hobby-/werkkamer. Op de tweede verdieping zijn twee slaapkamers, een badkamer en een ruim dakterras waar je heerlijk kunt ontspannen. Met kunststof kozijnen en dubbel glas is de basis al goed, maar er is nog ruimte voor een persoonlijke touch. De woning ligt op een centrale locatie, dichtbij winkels, scholen, het openbaar vervoer en het sfeervolle centrum van Schiedam. Hier kun je met wat aandacht en liefde een heerlijk thuis creëren!
INDELING
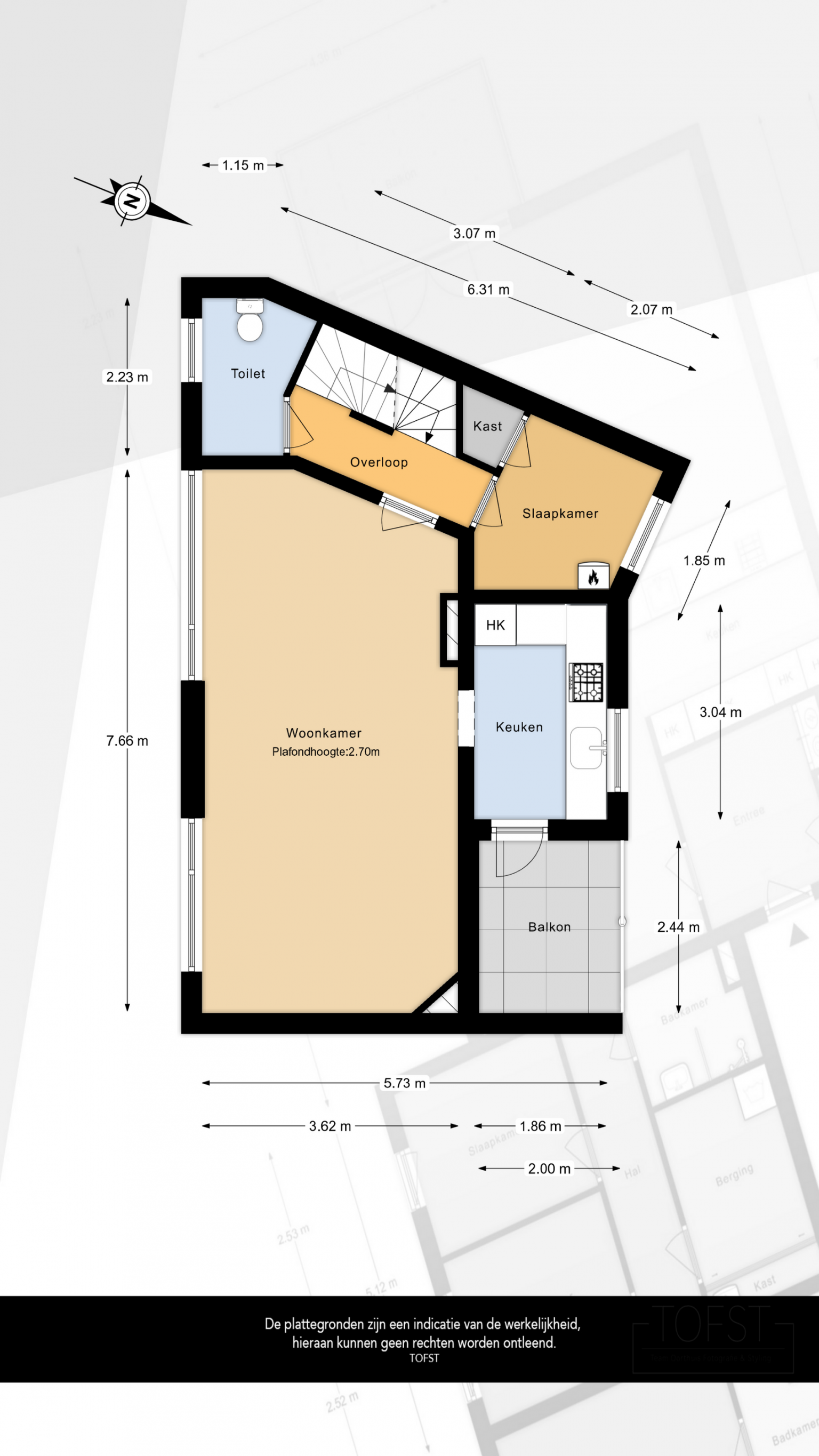
Trapopgang naar de eerste verdieping.
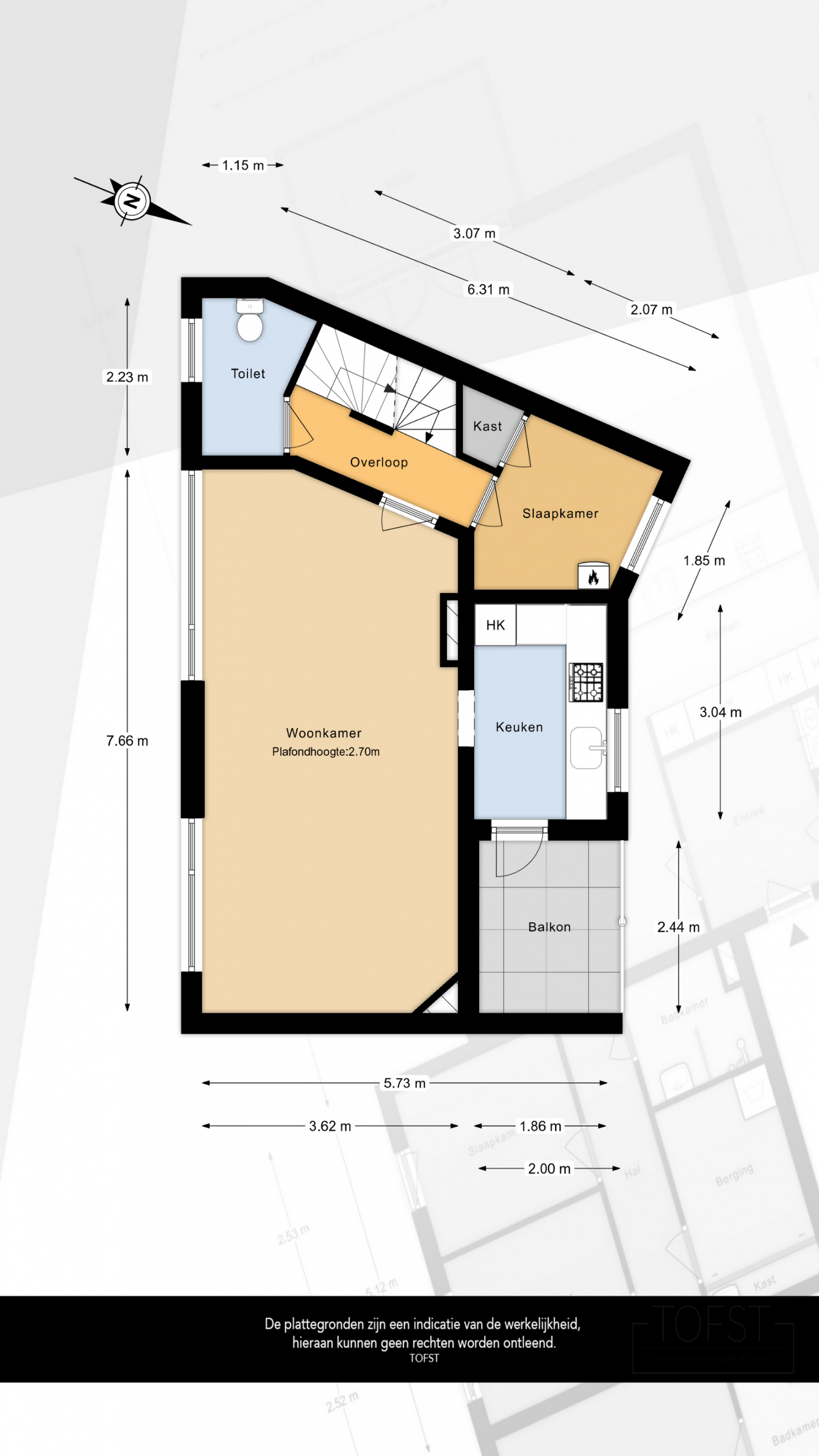
1E VERDIEPING:
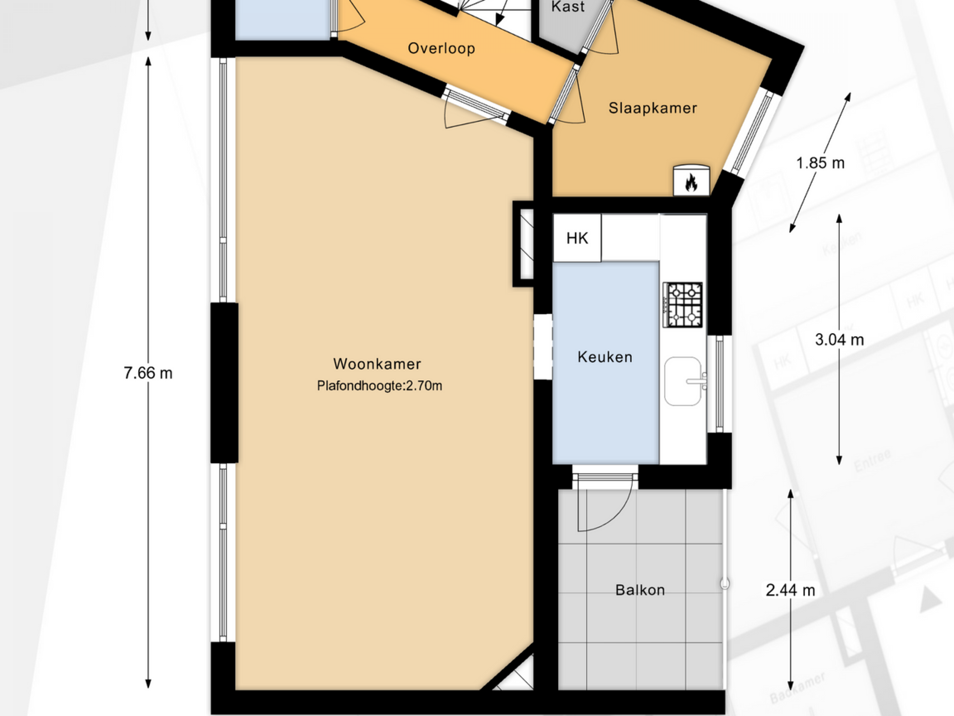
Binnenkomst op de overloop voorzien van een laminaatvloer die drempelloos doorloopt naar de woonkamer en de keuken. Vanaf de overloop is er toegang tot de het toilet, de woonkamer en een hobby-/werkkamer. Het toilet is volledig betegeld en voorzien van een staande toiletpot. Er is een te openen raam aanwezig, uitgevoerd in kunststof en het plafond is voorzien van inbouw spots. De woonkamer is gelegen aan de voorzijde en is voorzien van een laminaatvloer en kunststof kozijnen met dubbel glas. Het plafond is afgewerkt met kunststof schroten met inbouw spots. Vanuit de woonkamer is doormiddel van een toog toegang tot de keuken. De keuken is geplaatst in een L-vorm en de wanden zijn gedeeltelijk betegeld. Er zijn bovenkasten aanwezig en er is een dubbele spoelbak geplaatst in het aanrechtblad. Daarnaast is de keuken uitgerust met een koelkast, een 4-pits gaskookplaat en een afzuigkap. Er is een te openen raam, uitgevoerd in kunststof met dubbel glas en vanuit deze ruimte is er toegang tot het balkon. In de hobby-/werkkamer is een vast kast aanwezig voor extra bergruimte en hier bevindt zich de opstelling van de Cv-ketel. De vloer is voorzien van laminaat en het houten schuifraam biedt voldoende lichtinval.
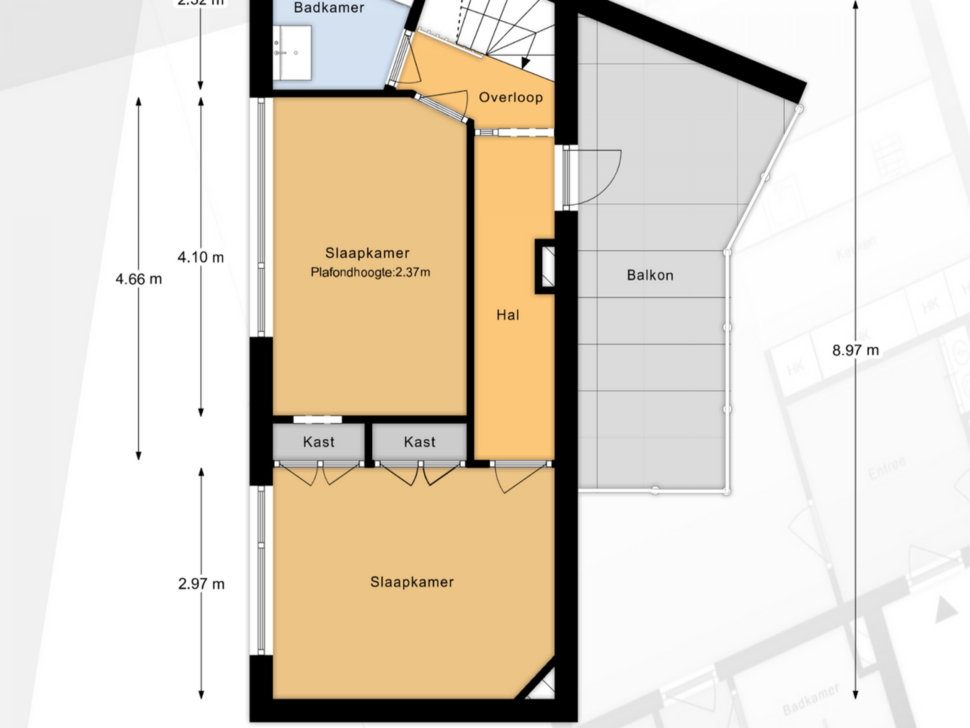
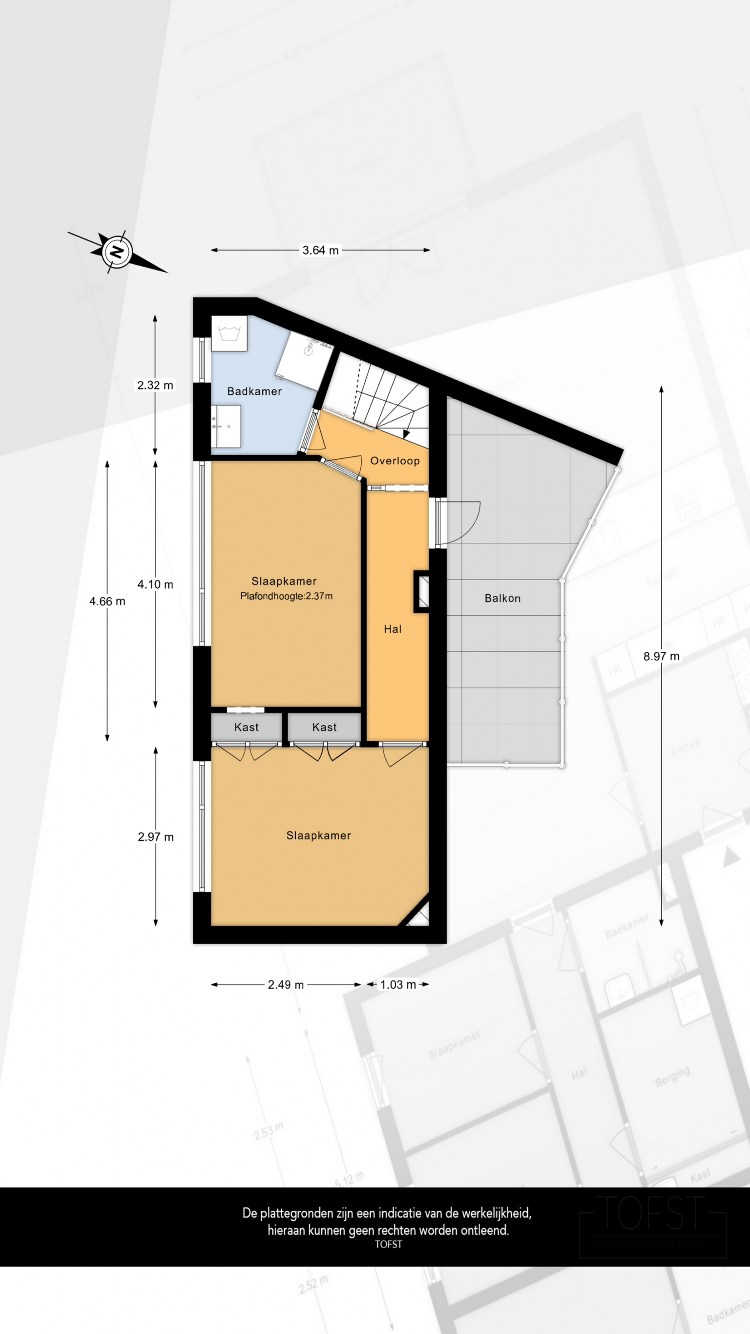
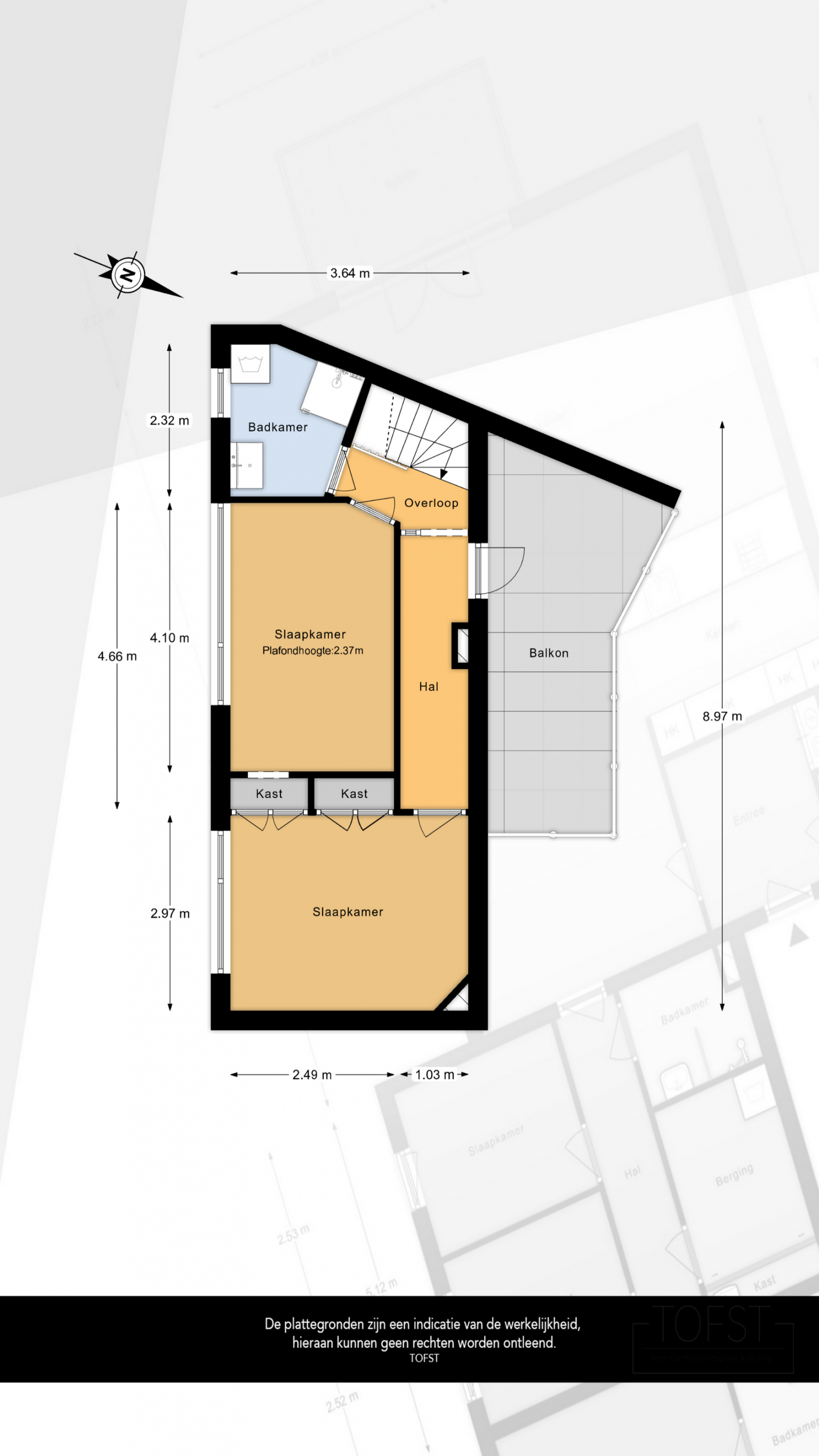
2E VERDIEPING:
De overloop op deze verdieping loopt over in een hal en is eveneens voorzien van een laminaatvloer. Vanuit hier is er toegang tot de badkamer, de twee slaapkamers en het dakterras. De badkamer is voorzien van een douchecabine en een wastafel. Op de vloer is vinyl gelegd en het kunststof kozijn is voorzien van dubbel glas. De twee slaapkamers zijn beide gelegen aan de voorzijde en zijn voorzien van een laminaatvloer en kunststof kozijnen met dubbel glas. een slaapkamer is voorzien van vaste kasten en de andere slaapkamer heeft een open kast.
EXTERIEUR:
Het balkon is gelegen aan de achterzijde en heeft een gemetselde muur als afscheiding naar de buren. De tegelvloer maakt het onderhoudsvrij en er is een aluminium hekwerk geplaatst.
Het ruime dakterras is gelegen aan de achterzijde en biedt genoeg ruimte om heerlijk buiten te zitten. De vloer is bedekt met vlondertegels en er is een aluminium hekwerk geplaatst.
Goed om te weten:
- Grotendeels voorzien van kunststof kozijnen met dubbel glas
- De woning beschikt over een balkon en een dakterras
- De woning is gelegen op eigen grond
- Bouwjaar 1930
- Energielabel F
- Oplevering in overleg
Woonoppervlakte De Meetinstructie is gebaseerd op de NEN2580. De Meetinstructie is bedoeld om een meer eenduidige manier van meten toe te passen voor het geven van een indicatie van de gebruiksoppervlakte. De Meetinstructie sluit verschillen in meetuitkomsten niet volledig uit, door bijvoorbeeld interpretatieverschillen, afrondingen of beperkingen bij het uitvoeren van de meting. Indien de exacte maten voor een koper van cruciaal belang zijn, adviseren wij deze zelf na te meten. De (kandidaat)koper(s) zullen, indien gewenst, daartoe in de gelegenheid gesteld worden op een passend moment teneinde teleurstellingen en schade te voorkomen.
Ouderdomsclausule
Bij woningen ouder dan 30 jaar zal er standaard in de koopakte een ouderdomsclausule worden opgenomen.
Notariskeuze en kosten
In principe ligt de notariskeuze bij de koper. Het doorhalen van de hypothecaire inschrijving in het kadaster moet door de verkoper betaald worden. Zijn de kosten voor deze doorhaling hoger dan € 400,- inclusief BTW dan wordt het meerdere bij de koper in rekening gebracht. Indien de koper een notaris kiest buiten een straal van 20 kilometer van de verkochte onroerende zaak dan zijn de eventuele kosten die de notaris berekent voor een eventuele verkoopvolmacht en legalisatie hiervan ten behoeve van de verkoper voor rekening van de koper.
Zelfbewoningsplicht
Koper is bekend met de zelfbewoningsplicht welke vanaf 01-01-2023 binnen de gemeente Schiedam van kracht is. De verkopend makelaar heeft koper doorverwezen naar de gemeente Schiedam omtrent de desbetreffende regelgeving. Verkoper noch verkopend makelaar aanvaarden geen enkele aansprakelijkheid voor geleden schade wegens het niet juist naleven van deze zelfbewoningsplicht.
Gunning
Verkoper behoudt zich uitdrukkelijk het recht voor het object te gunnen aan de gegadigde van zijn keuze.
Nadrukkelijk zij vermeld dat alle informatie in deze brochure moet beschouwd worden als een uitnodiging tot het doen van een bod of om in onderhandeling te treden.
Vlietlanden NVM Makelaars streeft ernaar de informatie op haar website / brochures en andere uitingen zo actueel en nauwkeurig mogelijk weer te geven. Hoewel de informatie met de grootst mogelijke zorgvuldigheid is samengesteld aanvaarden wij geen enkele aansprakelijkheid ten aanzien van de juistheid van de vermelde gegevens.
INDELING
Trapopgang naar de eerste verdieping.
1E VERDIEPING:
Binnenkomst op de overloop voorzien van een laminaatvloer die drempelloos doorloopt naar de woonkamer en de keuken. Vanaf de overloop is er toegang tot de het toilet, de woonkamer en een hobby-/werkkamer. Het toilet is volledig betegeld en voorzien van een staande toiletpot. Er is een te openen raam aanwezig, uitgevoerd in kunststof en het plafond is voorzien van inbouw spots. De woonkamer is gelegen aan de voorzijde en is voorzien van een laminaatvloer en kunststof kozijnen met dubbel glas. Het plafond is afgewerkt met kunststof schroten met inbouw spots. Vanuit de woonkamer is doormiddel van een toog toegang tot de keuken. De keuken is geplaatst in een L-vorm en de wanden zijn gedeeltelijk betegeld. Er zijn bovenkasten aanwezig en er is een dubbele spoelbak geplaatst in het aanrechtblad. Daarnaast is de keuken uitgerust met een koelkast, een 4-pits gaskookplaat en een afzuigkap. Er is een te openen raam, uitgevoerd in kunststof met dubbel glas en vanuit deze ruimte is er toegang tot het balkon. In de hobby-/werkkamer is een vast kast aanwezig voor extra bergruimte en hier bevindt zich de opstelling van de Cv-ketel. De vloer is voorzien van laminaat en het houten schuifraam biedt voldoende lichtinval.
2E VERDIEPING:
De overloop op deze verdieping loopt over in een hal en is eveneens voorzien van een laminaatvloer. Vanuit hier is er toegang tot de badkamer, de twee slaapkamers en het dakterras. De badkamer is voorzien van een douchecabine en een wastafel. Op de vloer is vinyl gelegd en het kunststof kozijn is voorzien van dubbel glas. De twee slaapkamers zijn beide gelegen aan de voorzijde en zijn voorzien van een laminaatvloer en kunststof kozijnen met dubbel glas. een slaapkamer is voorzien van vaste kasten en de andere slaapkamer heeft een open kast.
EXTERIEUR:
Het balkon is gelegen aan de achterzijde en heeft een gemetselde muur als afscheiding naar de buren. De tegelvloer maakt het onderhoudsvrij en er is een aluminium hekwerk geplaatst.
Het ruime dakterras is gelegen aan de achterzijde en biedt genoeg ruimte om heerlijk buiten te zitten. De vloer is bedekt met vlondertegels en er is een aluminium hekwerk geplaatst.
Goed om te weten:
- Grotendeels voorzien van kunststof kozijnen met dubbel glas
- De woning beschikt over een balkon en een dakterras
- De woning is gelegen op eigen grond
- Bouwjaar 1930
- Energielabel F
- Oplevering in overleg
Woonoppervlakte De Meetinstructie is gebaseerd op de NEN2580. De Meetinstructie is bedoeld om een meer eenduidige manier van meten toe te passen voor het geven van een indicatie van de gebruiksoppervlakte. De Meetinstructie sluit verschillen in meetuitkomsten niet volledig uit, door bijvoorbeeld interpretatieverschillen, afrondingen of beperkingen bij het uitvoeren van de meting. Indien de exacte maten voor een koper van cruciaal belang zijn, adviseren wij deze zelf na te meten. De (kandidaat)koper(s) zullen, indien gewenst, daartoe in de gelegenheid gesteld worden op een passend moment teneinde teleurstellingen en schade te voorkomen.
Ouderdomsclausule
Bij woningen ouder dan 30 jaar zal er standaard in de koopakte een ouderdomsclausule worden opgenomen.
Notariskeuze en kosten
In principe ligt de notariskeuze bij de koper. Het doorhalen van de hypothecaire inschrijving in het kadaster moet door de verkoper betaald worden. Zijn de kosten voor deze doorhaling hoger dan € 400,- inclusief BTW dan wordt het meerdere bij de koper in rekening gebracht. Indien de koper een notaris kiest buiten een straal van 20 kilometer van de verkochte onroerende zaak dan zijn de eventuele kosten die de notaris berekent voor een eventuele verkoopvolmacht en legalisatie hiervan ten behoeve van de verkoper voor rekening van de koper.
Zelfbewoningsplicht
Koper is bekend met de zelfbewoningsplicht welke vanaf 01-01-2023 binnen de gemeente Schiedam van kracht is. De verkopend makelaar heeft koper doorverwezen naar de gemeente Schiedam omtrent de desbetreffende regelgeving. Verkoper noch verkopend makelaar aanvaarden geen enkele aansprakelijkheid voor geleden schade wegens het niet juist naleven van deze zelfbewoningsplicht.
Gunning
Verkoper behoudt zich uitdrukkelijk het recht voor het object te gunnen aan de gegadigde van zijn keuze.
Nadrukkelijk zij vermeld dat alle informatie in deze brochure moet beschouwd worden als een uitnodiging tot het doen van een bod of om in onderhandeling te treden.
Vlietlanden NVM Makelaars streeft ernaar de informatie op haar website / brochures en andere uitingen zo actueel en nauwkeurig mogelijk weer te geven. Hoewel de informatie met de grootst mogelijke zorgvuldigheid is samengesteld aanvaarden wij geen enkele aansprakelijkheid ten aanzien van de juistheid van de vermelde gegevens.
Kenmerken
Overdracht
- vraagprijs
- € 269.000 k.k.
- Status
- Verkocht onder voorbehoud
- Aanvaarding
- In overleg
Bouw
- Soort woning
- Bovenwoning, appartement
- Soort bouw
- Bestaande bouw
Oppervlakten en inhoud
- Woonoppervlakte
- 84 m²
- Inhoud
- 290 m³
Indeling
- Aantal kamers
- 4 kamers (3 slaapkamers)
- Aantal verdiepingen
- 2 Verdiepingen
- Voorzieningen
- Tv kabel
Energie
- Energielabel
- F
- Isolatie
- Dubbel glas
Buitenruimte
- Ligging
- In woonwijk
- Tuin
- Geen tuin
Garage
- Soort garage
- Geen garage
Parkeren
- Soort parkeergelegenheid
- Openbaar parkeren