Robert Schumanring 103
€ 325.000 k.k.
Vlaardingen
Maisonnette
83 m²
3 slaapkamers
In overleg
Wonen met ruimte, licht en een fijn uitzicht. Deze verrassende maisonnette op de bovenste lagen van het complex heeft het allemaal! Via de open entree en de overdekte galerij bereik je de woning, waar je binnenkomt in een nette hal met modern toilet en een doorlopende laminaatvloer die direct een verzorgde indruk geeft. De lichte woonkamer aan de achterzijde is een heerlijke plek om te ontspannen, met voldoende ruimte voor een gezellige zithoek en een eethoek, én een deur naar het balkon. Hier geniet je van een rustig uitzicht over de binnentuin, terwijl het elektrische zonnescherm en de beschutte ligging zorgen voor extra comfort en privacy. Aan de voorzijde vind je de open keuken in L-opstelling, compleet met een extra keukenblok en diverse inbouwapparatuur. Op de verdieping zet de nette afwerking zich voort met een overloop die toegang biedt tot drie slaapkamers en de badkamer. De hoofdslaapkamer aan de voorzijde beschikt over een ruime kast en elektrische rolluiken, terwijl de twee slaapkamers aan de achterzijde eveneens prettig van formaat zijn en voorzien zijn van rolluiken. De badkamer is volledig betegeld en ingericht met een inloopdouche, tweede toilet en een dubbel wastafelmeubel, afgewerkt met inbouwspots. Ook praktisch is de vaste kast met wasmachineaansluiting. De woning is goed onderhouden, voorzien van dubbele beglazing, een vernieuwde keuken en toilet (2025) en beschikt over een externe berging met elektra. De ligging maakt het plaatje compleet. In een groene, rustige woonomgeving met alle dagelijkse voorzieningen binnen handbereik, zoals winkels, scholen en openbaar vervoer. Daarnaast zijn er volop recreatiemogelijkheden in de buurt en ben je zo onderweg richting uitvalswegen. Een fijne plek waar comfortabel wonen en een prettige omgeving perfect samenkomen.
INDELING
Vanaf een open toegang met de brievenbussen is de trap naar de verdieping, waarna vanaf de overdekte galerij de voordeur bereikbaar is.
2E VERDIEPING
Na de voordeur is er een binnenkomst in de afsluitbare entreehal met de meterkast en het volledig betegelde toilet. Achter de voordeur ligt een schoonloopmat met aansluitend een laminaatvloer, die is doorgetrokken naar de woonkamer.
De woonkamer, met gestuukte wanden, bevindt zich aan de achterzijde en heeft ruimte voor zowel een zit- als een eethoek. Er is een deur naar het balkon, dat uitzicht biedt over de binnentuin. Naast de entreedeur bevindt zich de trap naar de verdieping, met daarnaast een trapkast. In het verlengde, aan de voorzijde is de open keuken geplaatst in een L-vorm met extra vrijstaand keukenblok met een bovenkast. Het aanrechtblad is doorgetrokken naar de achterwand en er is diverse apparatuur aanwezig, zoals een combi oven, een vaatwasser, een koelkast en een kookplaat met een geïntegreerde afzuiging.
Het balkon met rustgevend uitzicht beschikt aan de gevel over een elektrisch zonnescherm en een netjes afgewerkt ondergrond. Aan weerszijde zijn houten schuttingen geplaatst en de stenen balustrade biedt extra privacy.
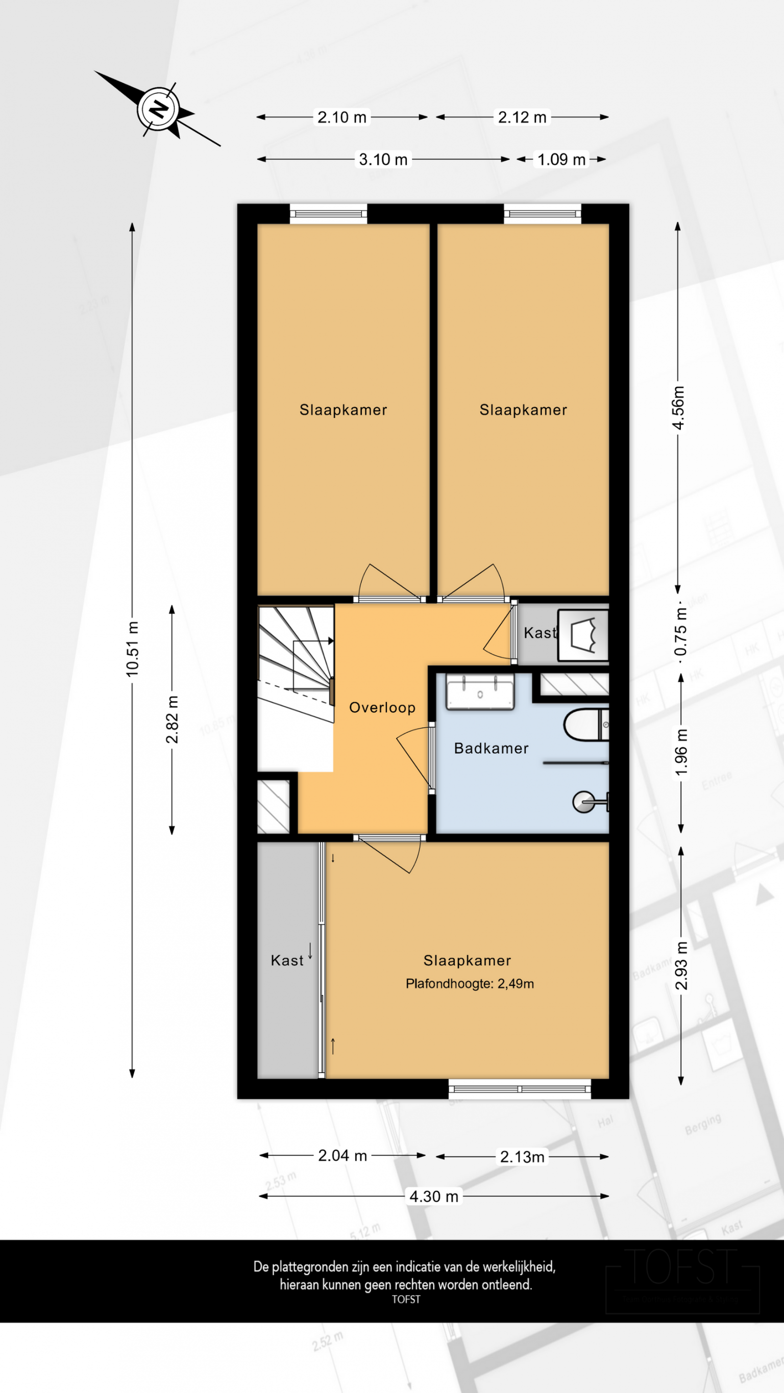
3E VERDIEPING
Na de trapopgang is de overloop bereikbaar. Deze geeft toegang tot drie slaapkamers, de badkamer en beschikt over een vaste kast met daarin de aansluiting voor de wasmachine. Alle wanden zijn hier gestuukt en de laminaatvloer is doorgetrokken naar alle slaapkamers.
De hoofdslaapkamer bevindt zich aan de voorzijde en beschikt over een grote vaste kast met schuifdeuren en elektrische rolluiken. De andere twee slaapkamer zijn naast elkaar gelegen aan de achterzijde en zijn beide voorzien van hand bedienbare rolluiken, waarvan er eentje defect is.
De volledig betegelde badkamer is uitgerust met een inloopdouche, een toilet en een dubbel wastafelmeubel met daarboven een spiegelkast. Daarnaast is het plafond netjes voorzien van inbouw spots.
BIJZONDERHEDEN
- Volledig voorzien van houten kozijnen met dubbel glas
- Balkon voorzien van elektrisch zonnescherm
- Hoofdslaapkamer voorzien van elektrische rolluiken
- Tweede en derde slaapkamer zijn voorzien van hand bedienbare rolluiken, waarvan er eentje defect is
- Blokverwarming
- Electrische boiler t.b.v. warmwater.
- Keuken, toilet en trapbekleding (2025)
- Externe berging met verlichting en elektra
- Actieve VvE (€ 309,50, inclusief voorschot stookkosten en opstalverzekering)
- Gelegen op eigen grond
- Energielabel 1982
- Energielabel C
- Oplevering in overleg
INDELING
Vanaf een open toegang met de brievenbussen is de trap naar de verdieping, waarna vanaf de overdekte galerij de voordeur bereikbaar is.
2E VERDIEPING
Na de voordeur is er een binnenkomst in de afsluitbare entreehal met de meterkast en het volledig betegelde toilet. Achter de voordeur ligt een schoonloopmat met aansluitend een laminaatvloer, die is doorgetrokken naar de woonkamer.
De woonkamer, met gestuukte wanden, bevindt zich aan de achterzijde en heeft ruimte voor zowel een zit- als een eethoek. Er is een deur naar het balkon, dat uitzicht biedt over de binnentuin. Naast de entreedeur bevindt zich de trap naar de verdieping, met daarnaast een trapkast. In het verlengde, aan de voorzijde is de open keuken geplaatst in een L-vorm met extra vrijstaand keukenblok met een bovenkast. Het aanrechtblad is doorgetrokken naar de achterwand en er is diverse apparatuur aanwezig, zoals een combi oven, een vaatwasser, een koelkast en een kookplaat met een geïntegreerde afzuiging.
Het balkon met rustgevend uitzicht beschikt aan de gevel over een elektrisch zonnescherm en een netjes afgewerkt ondergrond. Aan weerszijde zijn houten schuttingen geplaatst en de stenen balustrade biedt extra privacy.
3E VERDIEPING
Na de trapopgang is de overloop bereikbaar. Deze geeft toegang tot drie slaapkamers, de badkamer en beschikt over een vaste kast met daarin de aansluiting voor de wasmachine. Alle wanden zijn hier gestuukt en de laminaatvloer is doorgetrokken naar alle slaapkamers.
De hoofdslaapkamer bevindt zich aan de voorzijde en beschikt over een grote vaste kast met schuifdeuren en elektrische rolluiken. De andere twee slaapkamer zijn naast elkaar gelegen aan de achterzijde en zijn beide voorzien van hand bedienbare rolluiken, waarvan er eentje defect is.
De volledig betegelde badkamer is uitgerust met een inloopdouche, een toilet en een dubbel wastafelmeubel met daarboven een spiegelkast. Daarnaast is het plafond netjes voorzien van inbouw spots.
BIJZONDERHEDEN
- Volledig voorzien van houten kozijnen met dubbel glas
- Balkon voorzien van elektrisch zonnescherm
- Hoofdslaapkamer voorzien van elektrische rolluiken
- Tweede en derde slaapkamer zijn voorzien van hand bedienbare rolluiken, waarvan er eentje defect is
- Blokverwarming
- Electrische boiler t.b.v. warmwater.
- Keuken, toilet en trapbekleding (2025)
- Externe berging met verlichting en elektra
- Actieve VvE (€ 309,50, inclusief voorschot stookkosten en opstalverzekering)
- Gelegen op eigen grond
- Energielabel 1982
- Energielabel C
- Oplevering in overleg
Kenmerken
Overdracht
- vraagprijs
- € 325.000 k.k.
- Status
- Beschikbaar
- Aanvaarding
- In overleg
Bouw
- Soort woning
- Maisonnette, appartement
- Soort bouw
- Bestaande bouw
Oppervlakten en inhoud
- Woonoppervlakte
- 83 m²
- Externe bergruimte
- 9 m²
- Inhoud
- 273 m³
Indeling
- Aantal kamers
- 4 kamers (3 slaapkamers)
- Aantal verdiepingen
- 2 Verdiepingen
- Voorzieningen
- Buitenzonwering, tv kabel
Energie
- Energielabel
- C
- Isolatie
- Dubbel glas
Buitenruimte
- Tuin
- Geen tuin
Garage
- Soort garage
- Geen garage
Parkeren
- Soort parkeergelegenheid
- Openbaar parkeren