Coornhertstraat 179
€ 260.000 k.k.
Vlaardingen
Galerijflat
77 m²
1 slaapkamer
In overleg
Wonen in het groen én met alle voorzieningen binnen handbereik? Dit 2-kamer topappartement in de geliefde Westwijk, aan de rand van de charmante Zuidbuurt, biedt precies dat. Hier geniet je dagelijks van rust, ruimte en een vrij uitzicht, terwijl winkels, openbaar vervoer en uitvalswegen zich op korte afstand bevinden. Een fijne plek voor wie graag rustig woont, maar toch verbonden wil blijven met de stad. Het appartement zelf biedt volop mogelijkheden voor wie graag zijn eigen stempel drukt. Met een praktische indeling en een royale woonkamer die is vergroot door het samenvoegen van een extra kamer, ontstaat een heerlijk lichte leefruimte. Liever een extra slaapkamer? Die is eenvoudig weer te realiseren, waardoor de woning flexibel met je woonwensen meebeweegt. Het beschutte inpandige balkon vormt een fijne plek om te ontspannen, ongeacht het seizoen. Daarnaast beschikt de woning over een eigen berging in de onderbouw én een garage welke apart te koop wordt aangeboden, wat zorgt voor extra gemak en bergruimte. De centrale entree met lift en afgesloten toegang draagt bij aan een comfortabel en veilig woongevoel. Hoewel de woning wat aandacht vraagt, vormt dit juist een mooie kans om hier een eigentijds en persoonlijk thuis te creëren op een plek waar groen, rust en bereikbaarheid perfect samenkomen.
INDELING
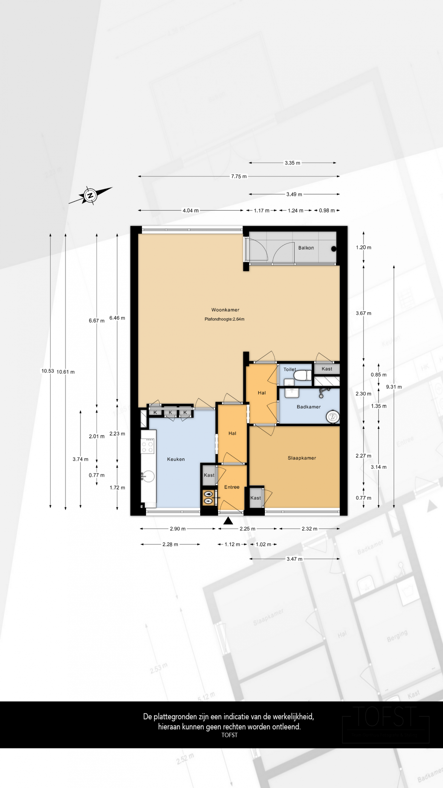
De entree van het complex is afgesloten en voorzien van een bellentableau met de brievenbussen, waarna de centrale hal toegankelijk is. Vanuit hier is er een lift en een trap naar de verdiepingen, vanwaar vanaf de galerij de voordeur bereikbaar is. De berging is gelegen in de onderbouw, evenals de garage, die bereikbaar is vanaf de straat.
APPARTEMENT
Na de voordeur is er een binnenkomst in de afsluitbare entreehal, die is voorzien van de meterkast en een vaste kast. De wanden zijn deels betegeld en de vloer is niet afgewerkt. Vanuit de entreehal is er toegang tot de twee aangrenzende hallen, die in open verbinding staan. Vanuit hier zijn alle vertrekken toegankelijk, te weten de keuken, de woonkamer, de badkamer, de slaapkamer en het gedeeltelijk betegelde toilet. De wanden zijn hier behangen en de vloer is niet afgewerkt.
De keuken is gelegen aan de galerijzijde is beschikt over een recht keukenblok met bovenkasten. De wanden zijn deels betegeld en er is een kookplaat en een afzuigkap aanwezig. Daarnaast zijn er nog twee vaste kasten en is er toegang tot de woonkamer.
De woonkamer is gelegen aan de achterzijde en biedt een wijds uitzicht. De aangrenzende kamer is doorgebroken, waardoor er een grote ruimte is ontstaan. Eventueel kan deze weer worden dichtgezet, zodat er een extra slaapkamer kan worden gecreëerd. Er zijn twee deuren naar het inpandige balkon en er zijn vaste kasten aanwezig. De wanden zijn behangen en op de vloer ligt vloerbedekking.
Het inpandige balkon is heerlijk beschut gelegen, wat het extra fijn maakt op deze hoogte. Het balkon kan worden dichtgezet met een rolluik, wat handmatig te bedienen is.
De badkamer is grotendeels betegeld en uitgerust met een douche en een wastafelmeubel. Tevens hangt hier de boiler voor het warme water en is er een wasmachine aansluiting.
De slaapkamer is gelegen aan de galerijzijde en beschikt over een vaste kast. De wanden zijn behangen en de vloer is niet afgewerkt.
BIJZONDERHEDEN
- Deels voorzien van kunststof kozijnen en deels voorzien van houten kozijnen, beide met dubbel glas
- Balkon voorzien van een rolluik
- Boiler voor warm water
- Blokverwarming
- Actieve VvE
- Externe berging
- Eigen garage (koper appartement heeft eerste recht op koop van de garage)
- Garage apart te koop voor € 50.000,-- k.k.
- Mogelijk tot het creëren van een extra slaapkamer
- Gelegen op erfpachtgrond
- Bouwjaar 1963
- Energielabel G
- Projectnotaris Randamie & Verstoep notarissen
- Oplevering in overleg, kan snel
Woonoppervlakte
De Meetinstructie is gebaseerd op de NEN2580. De Meetinstructie is bedoeld om een meer eenduidige manier van meten toe te passen voor het geven van een indicatie van de gebruiksoppervlakte. De Meetinstructie sluit verschillen in meetuitkomsten niet volledig uit, door bijvoorbeeld interpretatieverschillen, afrondingen of beperkingen bij het uitvoeren van de meting. Indien de exacte maten voor een koper van cruciaal belang zijn, adviseren wij deze zelf na te meten. De (kandidaat)koper(s) zullen, indien gewenst, daartoe in de gelegenheid gesteld worden op een passend moment teneinde teleurstellingen en schade te voorkomen.
Ouderdomsclausule
Bij woningen ouder dan 30 jaar zal er standaard in de koopakte een ouderdomsclausule worden opgenomen.
Zelfbewoningsplicht
Koper is bekend met de zelfbewoningsplicht welke vanaf 01-01-2023 binnen de gemeente Vlaardingen van kracht is. De verkopend makelaar heeft koper doorverwezen naar de gemeente Vlaardingen omtrent de desbetreffende regelgeving. Verkoper noch verkopend makelaar aanvaarden geen enkele aansprakelijkheid voor geleden schade wegens het niet juist naleven van deze zelfbewoningsplicht.
Gunning
Verkoper behoudt zich uitdrukkelijk het recht voor het object te gunnen aan de gegadigde van zijn keuze.
Nadrukkelijk zij vermeld dat alle informatie in deze brochure moet beschouwd worden als een uitnodiging tot het doen van een bod of om in onderhandeling te treden. Er kunnen geen rechten worden ontleend aan deze informatie.
Vlietlanden NVM Makelaars streeft ernaar de informatie op haar website / brochures en andere uitingen zo actueel en nauwkeurig mogelijk weer te geven. Hoewel de informatie met de grootst mogelijke zorgvuldigheid is samengesteld aanvaarden wij geen enkele aansprakelijkheid ten aanzien van de juistheid van de vermelde gegevens.
De impressie foto's zijn AI gegenereerde beelden waar geen rechten aan kunnen worden onteent.
INDELING
De entree van het complex is afgesloten en voorzien van een bellentableau met de brievenbussen, waarna de centrale hal toegankelijk is. Vanuit hier is er een lift en een trap naar de verdiepingen, vanwaar vanaf de galerij de voordeur bereikbaar is. De berging is gelegen in de onderbouw, evenals de garage, die bereikbaar is vanaf de straat.
APPARTEMENT
Na de voordeur is er een binnenkomst in de afsluitbare entreehal, die is voorzien van de meterkast en een vaste kast. De wanden zijn deels betegeld en de vloer is niet afgewerkt. Vanuit de entreehal is er toegang tot de twee aangrenzende hallen, die in open verbinding staan. Vanuit hier zijn alle vertrekken toegankelijk, te weten de keuken, de woonkamer, de badkamer, de slaapkamer en het gedeeltelijk betegelde toilet. De wanden zijn hier behangen en de vloer is niet afgewerkt.
De keuken is gelegen aan de galerijzijde is beschikt over een recht keukenblok met bovenkasten. De wanden zijn deels betegeld en er is een kookplaat en een afzuigkap aanwezig. Daarnaast zijn er nog twee vaste kasten en is er toegang tot de woonkamer.
De woonkamer is gelegen aan de achterzijde en biedt een wijds uitzicht. De aangrenzende kamer is doorgebroken, waardoor er een grote ruimte is ontstaan. Eventueel kan deze weer worden dichtgezet, zodat er een extra slaapkamer kan worden gecreëerd. Er zijn twee deuren naar het inpandige balkon en er zijn vaste kasten aanwezig. De wanden zijn behangen en op de vloer ligt vloerbedekking.
Het inpandige balkon is heerlijk beschut gelegen, wat het extra fijn maakt op deze hoogte. Het balkon kan worden dichtgezet met een rolluik, wat handmatig te bedienen is.
De badkamer is grotendeels betegeld en uitgerust met een douche en een wastafelmeubel. Tevens hangt hier de boiler voor het warme water en is er een wasmachine aansluiting.
De slaapkamer is gelegen aan de galerijzijde en beschikt over een vaste kast. De wanden zijn behangen en de vloer is niet afgewerkt.
BIJZONDERHEDEN
- Deels voorzien van kunststof kozijnen en deels voorzien van houten kozijnen, beide met dubbel glas
- Balkon voorzien van een rolluik
- Boiler voor warm water
- Blokverwarming
- Actieve VvE
- Externe berging
- Eigen garage (koper appartement heeft eerste recht op koop van de garage)
- Garage apart te koop voor € 50.000,-- k.k.
- Mogelijk tot het creëren van een extra slaapkamer
- Gelegen op erfpachtgrond
- Bouwjaar 1963
- Energielabel G
- Projectnotaris Randamie & Verstoep notarissen
- Oplevering in overleg, kan snel
Woonoppervlakte
De Meetinstructie is gebaseerd op de NEN2580. De Meetinstructie is bedoeld om een meer eenduidige manier van meten toe te passen voor het geven van een indicatie van de gebruiksoppervlakte. De Meetinstructie sluit verschillen in meetuitkomsten niet volledig uit, door bijvoorbeeld interpretatieverschillen, afrondingen of beperkingen bij het uitvoeren van de meting. Indien de exacte maten voor een koper van cruciaal belang zijn, adviseren wij deze zelf na te meten. De (kandidaat)koper(s) zullen, indien gewenst, daartoe in de gelegenheid gesteld worden op een passend moment teneinde teleurstellingen en schade te voorkomen.
Ouderdomsclausule
Bij woningen ouder dan 30 jaar zal er standaard in de koopakte een ouderdomsclausule worden opgenomen.
Zelfbewoningsplicht
Koper is bekend met de zelfbewoningsplicht welke vanaf 01-01-2023 binnen de gemeente Vlaardingen van kracht is. De verkopend makelaar heeft koper doorverwezen naar de gemeente Vlaardingen omtrent de desbetreffende regelgeving. Verkoper noch verkopend makelaar aanvaarden geen enkele aansprakelijkheid voor geleden schade wegens het niet juist naleven van deze zelfbewoningsplicht.
Gunning
Verkoper behoudt zich uitdrukkelijk het recht voor het object te gunnen aan de gegadigde van zijn keuze.
Nadrukkelijk zij vermeld dat alle informatie in deze brochure moet beschouwd worden als een uitnodiging tot het doen van een bod of om in onderhandeling te treden. Er kunnen geen rechten worden ontleend aan deze informatie.
Vlietlanden NVM Makelaars streeft ernaar de informatie op haar website / brochures en andere uitingen zo actueel en nauwkeurig mogelijk weer te geven. Hoewel de informatie met de grootst mogelijke zorgvuldigheid is samengesteld aanvaarden wij geen enkele aansprakelijkheid ten aanzien van de juistheid van de vermelde gegevens.
De impressie foto's zijn AI gegenereerde beelden waar geen rechten aan kunnen worden onteent.
Kenmerken
Overdracht
- vraagprijs
- € 260.000 k.k.
- Status
- Beschikbaar
- Aanvaarding
- In overleg
Bouw
- Soort woning
- Galerijflat, appartement
- Soort bouw
- Bestaande bouw
Oppervlakten en inhoud
- Woonoppervlakte
- 77 m²
- Externe bergruimte
- 6 m²
- Inhoud
- 250 m³
Indeling
- Aantal kamers
- 2 kamers (1 slaapkamer)
- Aantal verdiepingen
- 1 Verdiepingen
- Voorzieningen
- Rolluiken, lift
Energie
- Energielabel
- G
- Isolatie
- Dubbel glas
Buitenruimte
- Ligging
- In woonwijk, vrij uitzicht
- Tuin
- Geen tuin
Garage
- Soort garage
- Geen garage
Parkeren
- Soort parkeergelegenheid
- Openbaar parkeren