Groen van Prinstererstraat 100
€ 269.000 k.k.
Vlaardingen
Portiekflat
60 m²
2 slaapkamers
In overleg
Op een fijne plek in Vlaardingen, waar je alle dagelijkse voorzieningen binnen handbereik hebt en het bruisende stadsleven moeiteloos combineert met een rustige woonomgeving, ligt dit charmante appartement op de eerste verdieping. In de directe omgeving vind je winkels, openbaar vervoer en gezellige voorzieningen, terwijl je ook zo in het groen bent voor een ontspannen wandeling. Een ideale locatie voor wie comfortabel wil wonen met alles dichtbij.
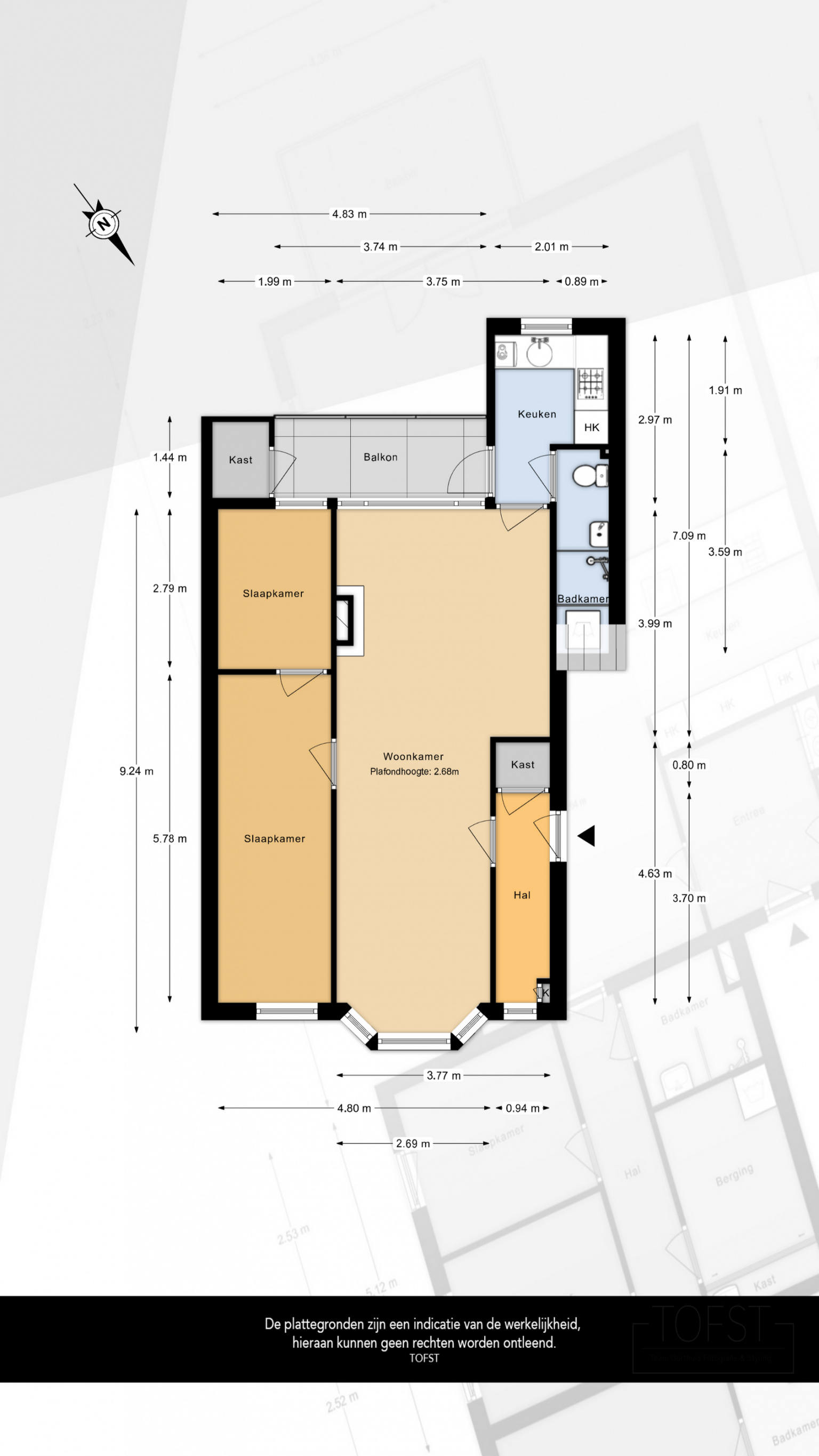
Achter de karakteristieke gevel schuilt een verrassend sfeervol geheel, waarin originele details zoals de erker met glas-in-lood bovenlichten en de authentieke schouw direct in het oog springen. De lichte doorzonwoonkamer strekt zich uit van voor tot achter en biedt volop ruimte voor zowel een gezellige zithoek als een eethoek. De keuken is praktisch ingericht en van alle gemakken voorzien, met aansluitend een beschut en overdekt balkon op het zonnige zuiden waar je heerlijk kunt genieten van de buitenlucht in alle rust. De indeling is speels en efficiënt, met een slimme opdeling van de slaapkamer waardoor er twee aparte kamers zijn ontstaan, ideaal als slaap- en werkkamer of bijvoorbeeld een inloopkast. De badkamer is volledig betegeld en compleet ingericht en ook aan bergruimte is gedacht met onder andere een vaste kast en een handige opbergkast op het balkon. Een woning met karakter, een fijne indeling en een heerlijke buitenruimte.
INDELING
Vanaf de straat is er een open trapopgang met de brievenbussen naar de voordeur op de 1e verdieping.
APPARTEMENT
Na de voordeur is er een binnenkomst in de afsluitbare entreehal, die is voorzien van vloerbedekking en afwisselend afgewerkte wanden. Vanuit de entreehal is er toegang tot de woonkamer en een vaste kast.
De doorzonwoonkamer loopt helemaal voor de voorzijde naar achterzijde en beschikt aan de voorzijde over een erker met glas-in-lood bovenlichten. Er is ruimte voor een gezellige zithoek en in het verlengde is er ruimte voor een eethoek, bij de originele schouw, die is dichtgezet met deurtjes. Op de vloer ligt laminaat en de wanden zijn afgewerkt met spachtelputz. Vanuit de woonkamer is er toegang tot de eerste slaapkamer en de keuken met een open voorportaaltje, vanwaar er toegang is tot de badkamer en het balkon.
De keuken is opgesteld in een hoek en is handig voorzien van bovenkasten en diverse apparatuur, waaronder een koelkast, een combi magnetron, een 4-pits gaskookplaat en een afzuigkap. Daarnaast is de Cv-ketel netjes weggewerkt in een kastje. Ook hier ligt een laminaatvloer en de wanden zijn afgewerkt met spachtelputz.
Het overdekte balkon op het zuiden is heerlijk beschut gelegen en heeft de beschikking over een vaste opbergkast. De balustrade heeft glazen panelen en de ondergrond is betegeld.
De inpandige badkamer is volledig betegeld en uitgerust met een toilet, een wastafelmeubel en een douchecabine, waarbij helemaal achterin de badkamer zich ook de wasmachine aansluiting bevindt. Het kunststof plafond is voorzien van inbouw spots.
De slaapkamer is opgedeeld, waardoor er twee kamers zijn ontstaan met temidden daarvan ruimte voor een garderobekast. In deze twee kamers ligt vloerbedekking en de wanden zijn deels behangen en deels voorzien van spachtelputz.
BIJZONDERHEDEN
- Deels voorzien van houten kozijnen met enkel glas en deels voorzien van dubbel glas
- Keuken voorzien van kunststof kozijn met dubbel glas
- Erker met glas-in-lood bovenlichten
- Balkon aan de achterzijde
- Cv-ketel
- Bijdrage Vereniging van Eigenaren € 70,-- per maand
- Gelegen op eeuwigdurende erfpacht grond, € 19,07 per jaar
- Bouwjaar 1929
- Energielabel D
- in de koopakte zal een artikel opgenomen worden over de niet-zelfbewoningsclausule
- Oplevering in overleg
Woonoppervlakte
De Meetinstructie is gebaseerd op de NEN2580. De Meetinstructie is bedoeld om een meer eenduidige manier van meten toe te passen voor het geven van een indicatie van de gebruiksoppervlakte. De Meetinstructie sluit verschillen in meetuitkomsten niet volledig uit, door bijvoorbeeld interpretatieverschillen, afrondingen of beperkingen bij het uitvoeren van de meting. Indien de exacte maten voor een koper van cruciaal belang zijn, adviseren wij deze zelf na te meten. De (kandidaat)koper(s) zullen, indien gewenst, daartoe in de gelegenheid gesteld worden op een passend moment teneinde teleurstellingen en schade te voorkomen.
Ouderdomsclausule
Bij woningen ouder dan 30 jaar zal er standaard in de koopakte een ouderdomsclausule worden opgenomen.
Notariskeuze en kosten
In principe ligt de notariskeuze bij de koper. Het doorhalen van de hypothecaire inschrijving in het kadaster moet door de verkoper betaald worden. Zijn de kosten voor deze doorhaling hoger dan € 400,- inclusief BTW dan wordt het meerdere bij de koper in rekening gebracht. Indien de koper een notaris kiest buiten een straal van 20 kilometer van de verkochte onroerende zaak dan zijn de eventuele kosten die de notaris berekent voor een eventuele verkoopvolmacht en legalisatie hiervan ten behoeve van de verkoper voor rekening van de koper.
Zelfbewoningsplicht
Koper is bekend met de zelfbewoningsplicht welke vanaf 01-01-2023 binnen de gemeente Vlaardingen van kracht is. De verkopend makelaar heeft koper doorverwezen naar de gemeente Vlaardingen omtrent de desbetreffende regelgeving. Verkoper noch verkopend makelaar aanvaarden geen enkele aansprakelijkheid voor geleden schade wegens het niet juist naleven van deze zelfbewoningsplicht.
Bekendheid eigenschappen onroerende zaak:
Verkoper heeft de onroerende zaak nooit zelf feitelijk gebruikt, hij kan derhalve koper niet informeren over eigenschappen van c.q. gebreken aan de onroerende zaak.
Gunning
Verkoper behoudt zich uitdrukkelijk het recht voor het object te gunnen aan de gegadigde van zijn keuze.
Nadrukkelijk zij vermeld dat alle informatie in deze brochure moet beschouwd worden als een uitnodiging tot het doen van een bod of om in onderhandeling te treden. Er kunnen geen rechten worden ontleend aan deze informatie.
Vlietlanden NVM Makelaars streeft ernaar de informatie op haar website / brochures en andere uitingen zo actueel en nauwkeurig mogelijk weer te geven. Hoewel de informatie met de grootst mogelijke zorgvuldigheid is samengesteld aanvaarden wij geen enkele aansprakelijkheid ten aanzien van de juistheid van de vermelde gegevens.
Achter de karakteristieke gevel schuilt een verrassend sfeervol geheel, waarin originele details zoals de erker met glas-in-lood bovenlichten en de authentieke schouw direct in het oog springen. De lichte doorzonwoonkamer strekt zich uit van voor tot achter en biedt volop ruimte voor zowel een gezellige zithoek als een eethoek. De keuken is praktisch ingericht en van alle gemakken voorzien, met aansluitend een beschut en overdekt balkon op het zonnige zuiden waar je heerlijk kunt genieten van de buitenlucht in alle rust. De indeling is speels en efficiënt, met een slimme opdeling van de slaapkamer waardoor er twee aparte kamers zijn ontstaan, ideaal als slaap- en werkkamer of bijvoorbeeld een inloopkast. De badkamer is volledig betegeld en compleet ingericht en ook aan bergruimte is gedacht met onder andere een vaste kast en een handige opbergkast op het balkon. Een woning met karakter, een fijne indeling en een heerlijke buitenruimte.
INDELING
Vanaf de straat is er een open trapopgang met de brievenbussen naar de voordeur op de 1e verdieping.
APPARTEMENT
Na de voordeur is er een binnenkomst in de afsluitbare entreehal, die is voorzien van vloerbedekking en afwisselend afgewerkte wanden. Vanuit de entreehal is er toegang tot de woonkamer en een vaste kast.
De doorzonwoonkamer loopt helemaal voor de voorzijde naar achterzijde en beschikt aan de voorzijde over een erker met glas-in-lood bovenlichten. Er is ruimte voor een gezellige zithoek en in het verlengde is er ruimte voor een eethoek, bij de originele schouw, die is dichtgezet met deurtjes. Op de vloer ligt laminaat en de wanden zijn afgewerkt met spachtelputz. Vanuit de woonkamer is er toegang tot de eerste slaapkamer en de keuken met een open voorportaaltje, vanwaar er toegang is tot de badkamer en het balkon.
De keuken is opgesteld in een hoek en is handig voorzien van bovenkasten en diverse apparatuur, waaronder een koelkast, een combi magnetron, een 4-pits gaskookplaat en een afzuigkap. Daarnaast is de Cv-ketel netjes weggewerkt in een kastje. Ook hier ligt een laminaatvloer en de wanden zijn afgewerkt met spachtelputz.
Het overdekte balkon op het zuiden is heerlijk beschut gelegen en heeft de beschikking over een vaste opbergkast. De balustrade heeft glazen panelen en de ondergrond is betegeld.
De inpandige badkamer is volledig betegeld en uitgerust met een toilet, een wastafelmeubel en een douchecabine, waarbij helemaal achterin de badkamer zich ook de wasmachine aansluiting bevindt. Het kunststof plafond is voorzien van inbouw spots.
De slaapkamer is opgedeeld, waardoor er twee kamers zijn ontstaan met temidden daarvan ruimte voor een garderobekast. In deze twee kamers ligt vloerbedekking en de wanden zijn deels behangen en deels voorzien van spachtelputz.
BIJZONDERHEDEN
- Deels voorzien van houten kozijnen met enkel glas en deels voorzien van dubbel glas
- Keuken voorzien van kunststof kozijn met dubbel glas
- Erker met glas-in-lood bovenlichten
- Balkon aan de achterzijde
- Cv-ketel
- Bijdrage Vereniging van Eigenaren € 70,-- per maand
- Gelegen op eeuwigdurende erfpacht grond, € 19,07 per jaar
- Bouwjaar 1929
- Energielabel D
- in de koopakte zal een artikel opgenomen worden over de niet-zelfbewoningsclausule
- Oplevering in overleg
Woonoppervlakte
De Meetinstructie is gebaseerd op de NEN2580. De Meetinstructie is bedoeld om een meer eenduidige manier van meten toe te passen voor het geven van een indicatie van de gebruiksoppervlakte. De Meetinstructie sluit verschillen in meetuitkomsten niet volledig uit, door bijvoorbeeld interpretatieverschillen, afrondingen of beperkingen bij het uitvoeren van de meting. Indien de exacte maten voor een koper van cruciaal belang zijn, adviseren wij deze zelf na te meten. De (kandidaat)koper(s) zullen, indien gewenst, daartoe in de gelegenheid gesteld worden op een passend moment teneinde teleurstellingen en schade te voorkomen.
Ouderdomsclausule
Bij woningen ouder dan 30 jaar zal er standaard in de koopakte een ouderdomsclausule worden opgenomen.
Notariskeuze en kosten
In principe ligt de notariskeuze bij de koper. Het doorhalen van de hypothecaire inschrijving in het kadaster moet door de verkoper betaald worden. Zijn de kosten voor deze doorhaling hoger dan € 400,- inclusief BTW dan wordt het meerdere bij de koper in rekening gebracht. Indien de koper een notaris kiest buiten een straal van 20 kilometer van de verkochte onroerende zaak dan zijn de eventuele kosten die de notaris berekent voor een eventuele verkoopvolmacht en legalisatie hiervan ten behoeve van de verkoper voor rekening van de koper.
Zelfbewoningsplicht
Koper is bekend met de zelfbewoningsplicht welke vanaf 01-01-2023 binnen de gemeente Vlaardingen van kracht is. De verkopend makelaar heeft koper doorverwezen naar de gemeente Vlaardingen omtrent de desbetreffende regelgeving. Verkoper noch verkopend makelaar aanvaarden geen enkele aansprakelijkheid voor geleden schade wegens het niet juist naleven van deze zelfbewoningsplicht.
Bekendheid eigenschappen onroerende zaak:
Verkoper heeft de onroerende zaak nooit zelf feitelijk gebruikt, hij kan derhalve koper niet informeren over eigenschappen van c.q. gebreken aan de onroerende zaak.
Gunning
Verkoper behoudt zich uitdrukkelijk het recht voor het object te gunnen aan de gegadigde van zijn keuze.
Nadrukkelijk zij vermeld dat alle informatie in deze brochure moet beschouwd worden als een uitnodiging tot het doen van een bod of om in onderhandeling te treden. Er kunnen geen rechten worden ontleend aan deze informatie.
Vlietlanden NVM Makelaars streeft ernaar de informatie op haar website / brochures en andere uitingen zo actueel en nauwkeurig mogelijk weer te geven. Hoewel de informatie met de grootst mogelijke zorgvuldigheid is samengesteld aanvaarden wij geen enkele aansprakelijkheid ten aanzien van de juistheid van de vermelde gegevens.
Kenmerken
Overdracht
- vraagprijs
- € 269.000 k.k.
- Status
- Verkocht onder voorbehoud
- Aanvaarding
- In overleg
Bouw
- Soort woning
- Portiekflat, appartement
- Soort bouw
- Bestaande bouw
Oppervlakten en inhoud
- Woonoppervlakte
- 60 m²
- Inhoud
- 206 m³
Indeling
- Aantal kamers
- 3 kamers (2 slaapkamers)
- Aantal verdiepingen
- 1 Verdiepingen
- Voorzieningen
- Tv kabel
Energie
- Energielabel
- D
- Isolatie
- Gedeeltelijk dubbel glas
Buitenruimte
- Ligging
- Aan rustige weg, in centrum, in woonwijk, vrij uitzicht
- Tuin
- Geen tuin
Garage
- Soort garage
- Geen garage
Parkeren
- Soort parkeergelegenheid
- Openbaar parkeren, betaald parkeren, parkeervergunningen